Qubik 4
 
 
 
     
 
 
 
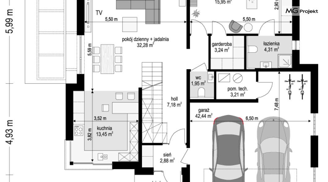
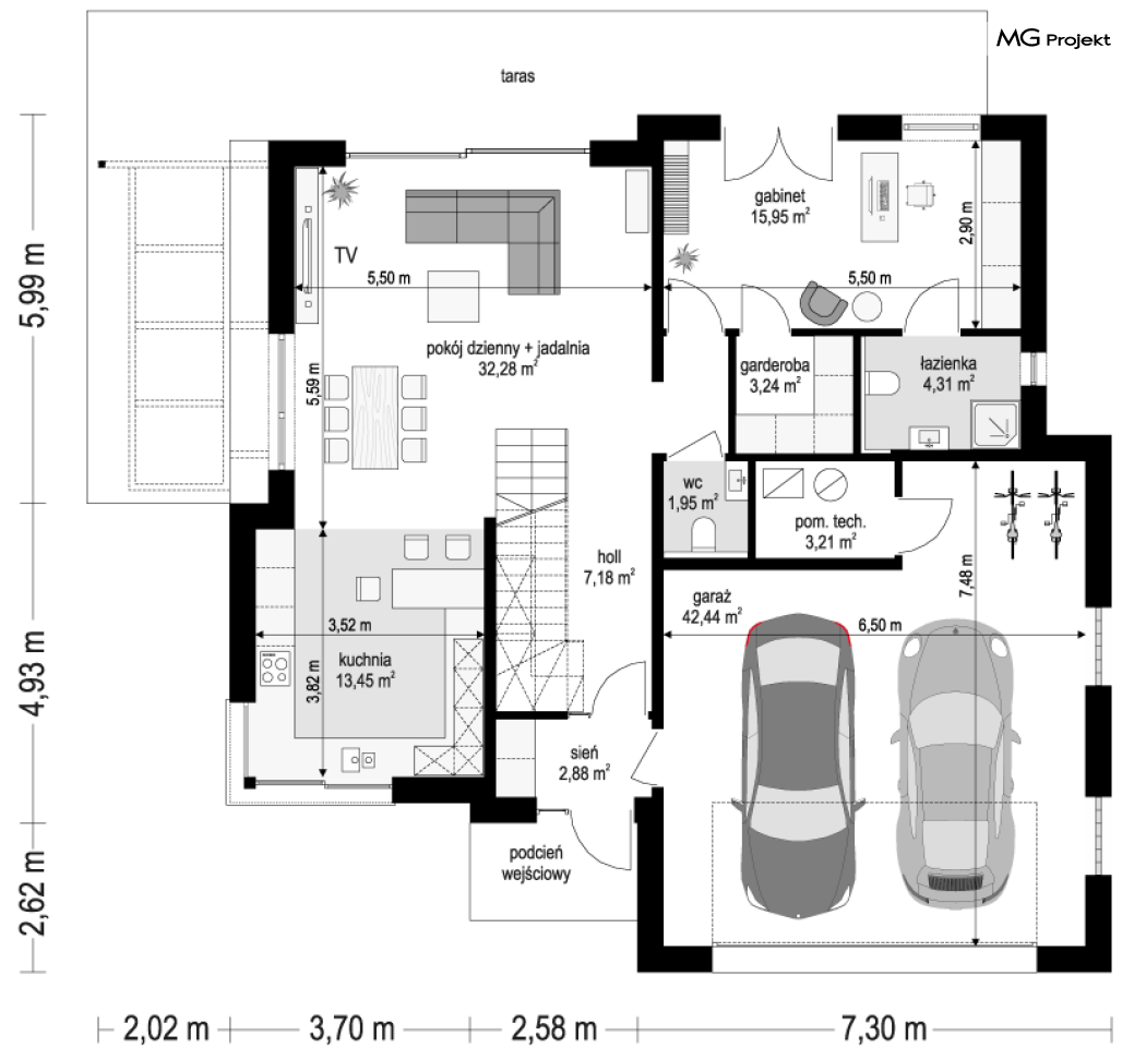
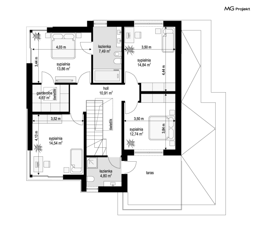
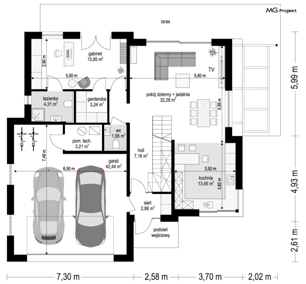
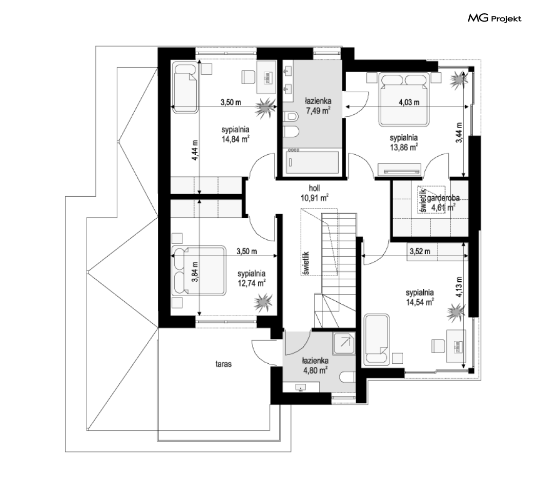
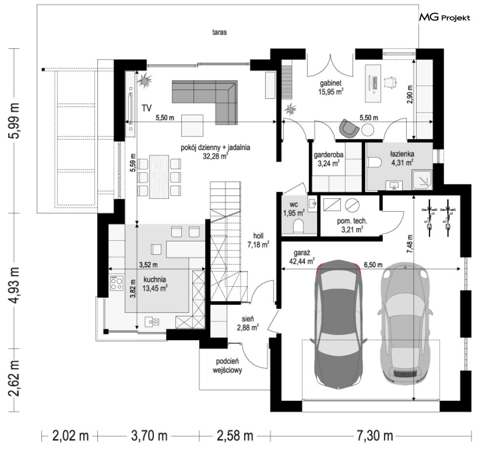
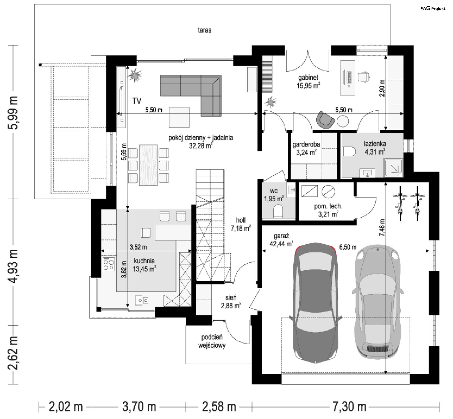
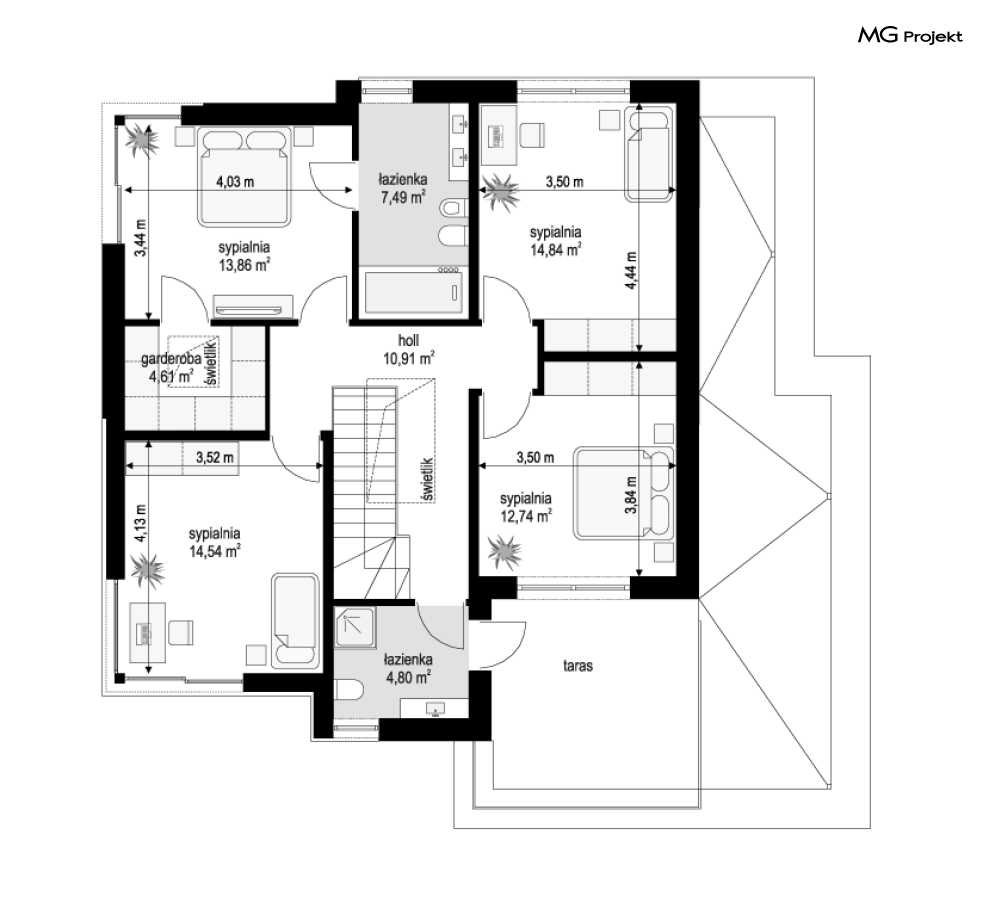
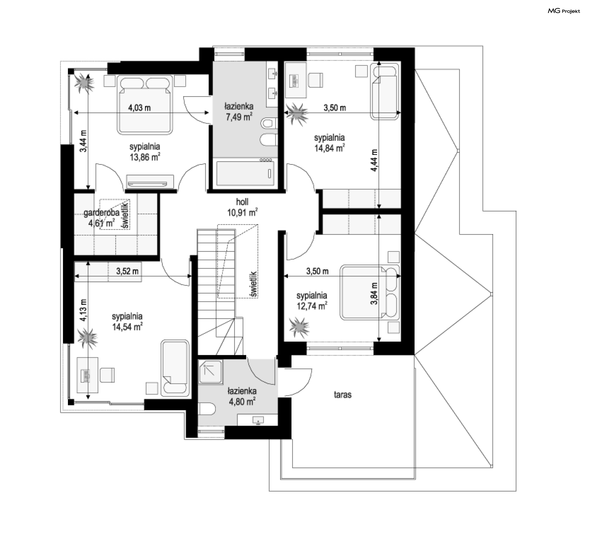
Projekt domu Qubik 4 jest to projekt nowoczesnego piętrowego domu jednorodzinnego z przeznaczeniem dla rodziny 4-6 osobowej. Dom został zaprojektowany na planie zbliżonym do kwadratu, z wbudowanym dwustanowiskowym garażem. Budynek składa się z kilku przenikających się wzajemnie prostopadłościennych brył i zwieńczony jest dachem płaskim. Elewację frontową zdobi wystający nad podestem wejściowym wykusz, ściany podzielone poziomymi pasami i duże przeszklenia pomieszczeń na parterze i piętrze. Od strony ogrodowej elewacja domu została uspokojona. Zastosowano tu delikatne przesunięcie fragmentów bryły wykończonych w kontrastujących kolorach. uzyskano tym samym ciekawy efekt, jednocześnie pozostawiając tą stronę domu spokojniejszą, mniej agresywną, bardziej współgrającą z otaczającym ogrodem i tarasem dostępnym z salonu. Kontrastujące materiały i kolory elewacji i duże przeszklenia okien dają budynkowi wyrazisty nowoczesny styl. Wnętrze domu podzielone zostało na cześć dzienną i techniczną na parterze i pokoje sypialne na piętrze. Jednoprzestrzenne wnętrze salonu połączonego wizualnie z kuchnią i holem daje bardzo komfortową część do codziennego funkcjonowania domowników. Dodatkowy pokój na parterze z własną łazienką i garderobą może pełnić rozmaite funkcje – gabinetu lub sypialni. Dwustanowiskowy garaż z kotłownią domykają parter. Na piętrze mamy cztery pokoje sypialne z dwiema łazienkami, garderobą i szafami w zabudowie. Sypialnia master ma własną łazienkę i garderobę. Konstrukcja budynku jest prosta i dość łatwa w budowie. W domu zastosowano bardzo dobre izolacje i nowoczesne instalacje, dzięki czemu jest on energooszczędny i będzie niedrogi w przyszłej eksploatacji. Qubik 4 to doskonała propozycja dla Inwestorów pragnących oryginalnego nowoczesnego komfortowego domu o funkcjonalnym wnętrzu i nietuzinkowej architekturze, wyróżniającej się w otoczeniu. Zapraszamy !
 
 
             
 
 
 
 
 
 
 
 
 
 
 
 
 
 
 
 
 
 
 
 
 
 
 
 
 
 
 
 
 
 
 
 
 
 
 
 
 
 
 
 
 
 
 
 
 
 
 
 
 
 
 
 
 
 
 
 
 
 
 
 
 
 
 
 
 
 
 
 
 
 
 
 
 
 
 
 
 
 
 
 
 
 
 
 
 
 
 
 
 
 
 
 
 
 
                                         
 
                                         
                         
                         
                     
                         
                        