Toledo (LMB27)
                
                    Dodaj do porównania
                
                
                    Usuń z porównania
                
            
            
        
                
                    Dodaj do ulubionych
                
                
                    Usuń z ulubionych
                
            
            
        
        Pow. użytkowa:
    
    
        92.52m2
    
        Pow. zabudowy:
    
    
        118.66m2
    
        Koszt budowy:
    
    
        361000zł
    
        Liczba pokoi:
    
    
        4
    
        Liczba łazienek:
    
    
        1
    
        Rzuty
    
        
                                                         
                        
                        Lustrzane odbicie
                    
                    
                                    Rzut parteru
                                
                                
                                    104.52 m2
                                
                            
                                            Wiatrołap
                                        
                                        
                                            4.41 m2
                                        
                                    
                                            Pom.gosp., c.o.
                                        
                                        
                                            3.29 m2
                                        
                                    
                                            Komunikacja
                                        
                                        
                                            10.35 m2
                                        
                                    
                                            Łazienka
                                        
                                        
                                            5.4 m2
                                        
                                    
                                            Pokój
                                        
                                        
                                            10.8 m2
                                        
                                    
                                            Pokój
                                        
                                        
                                            15.3 m2
                                        
                                    
                                            Pokój
                                        
                                        
                                            11.25 m2
                                        
                                    
                                            Pokój dzienny
                                        
                                        
                                            24.02 m2
                                        
                                    
                                            Kuchnia
                                        
                                        
                                            7.7 m2
                                        
                                    
                                            Podest
                                        
                                        
                                            6 m2
                                        
                                    
                                            Taras
                                        
                                        
                                            6 m2
                                        
                                    
                            
                            Pobierz rysunki szczegółowe
                        
                        
                            
                            Zapytaj, co możesz zmienić
                        
                     
                        
                        Lustrzane odbicie
                    
                    
                            
                            Pobierz rysunki szczegółowe
                        
                        
                            
                            Zapytaj, co możesz zmienić
                        
                     
                        
                        Lustrzane odbicie
                    
                    
                            
                            Pobierz rysunki szczegółowe
                        
                        
                            
                            Zapytaj, co możesz zmienić
                        
                    
            Zamów rysunki szczegółowe
        
        
            Zapoznaj się ze szczegółowymi rysunkami rzutów kondygnacji w PDF dla tego projektu.
        
        
            ZAMAWIAM
        
     
    
                    Elewacje
                
             
                                Frontowa
                            
                                                             
                                Ogrodowa
                            
                                                             
                                Lewa
                            
                                                             
                                Prawa
                            
                                                            
        Specyfikacja techniczna
    
    
        Główne parametry
    
    
                            Powierzchnia użytkowa
                        
                        
                                                            
                                                                                                                                                                                        92,52 m2
                                
                                                    
                                                    
                                Łączna powierzchnia tzw. pomieszczeń użytkowych. Przede wszystkim nie zalicza się do niej powierzchni garażu, nieużytkowego strychu, piwnicy, kotłowni.
                            
                                            
                            Liczba pokoi
                        
                        
                                                            
                                                                                                                                                                                        4 
                                
                                                    
                                            
                            Liczba łazienek
                        
                        
                                                            
                                                                                                                                                                                        1 
                                
                                                    
                                            
                            Powierzchnia zabudowy
                        
                        
                                                            
                                                                                                                                                                                        118,66 m2
                                
                                                    
                                                    
                                Powierzchnia zajmowana przez budynek na działce. W praktyce tzw. powierzchnia rzutu budynku wyznaczana po obrysie ścian zewnętrznych.
                            
                                            
        Pełna specyfikacja
    
    
                            Maksymalna wysokość budynku
                        
                        
                                                            
                                                                                                                                                                                        6,93 m
                                
                                                    
                                                    
                                Wysokość wyznaczona od poziomu terenu do najwyżej położonej części dachu (np. kalenicy), zwykle bez uwzględnienia kominów.
                            
                                            
                            Kąt nachylenia dachu
                        
                        
                                                            
                                                                                                                                                                                        35,00°
                                
                                                    
                                                    
                                Nachylenie połaci dachu podane w stopniach.
                            
                                            
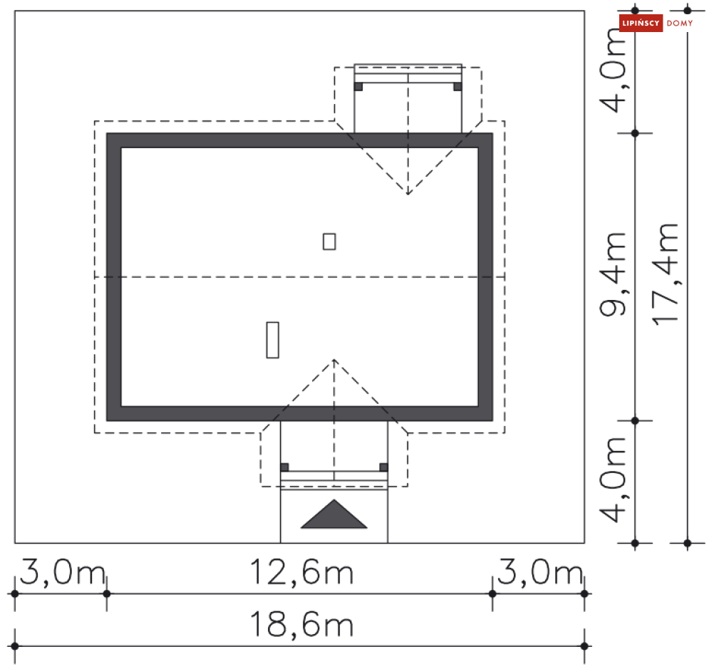
                            Minimalne wymiary działki (szerokość)
                        
                        
                                                            
                                                                                                                                                                                        18,60 m
                                
                                                    
                                                    
                                Szerokość działki wyznaczona przy założeniu, że minimalna odległość budynku od granic działki wynosi przynajmniej 3 m w przypadku ścian bez otworów okiennych lub drzwiowych, albo 4 m w przypadku ścian budynku z takimi otworami.
                            
                                            
                            Minimalne wymiary działki (długość)
                        
                        
                                                            
                                                                                                                                                                                        17,40 m
                                
                                                    
                                                    
                                Długość działki wyznaczona przy założeniu, że minimalna odległość budynku od granic działki wynosi przynajmniej 3 m w przypadku ścian bez otworów okiennych lub drzwiowych, albo 4 m w przypadku ścian budynku z takimi otworami.
                            
                                            
                            Technologia budowy
                        
                        
                                                            
                                                                            Murowany
                                                                    
                                                    
                                            
                            Typ dachu
                        
                        
                                                            
                                                                            Dwuspadowy
                                                                    
                                                    
                                                    
                                Kształt dachu – płaski, jednospadowy (jedna skośna połać), dwuspadowy (dwie połacie), wielospadowy (w praktyce o przynajmniej czterech połaciach).
                            
                                            
                            Energooszczędność
                        
                        
                                                            
                                                                            Energooszczędny
                                                                    
                                                    
                                                    
                                Energooszczędny – dom o zapotrzebowaniu na tzw. nieodnawialna energię pierwotną (EP) niższym, niż wymagana przepisami maksymalna wartość.
                            
                                            
                            Typ zabudowy
                        
                        
                                                            
                                                                            Jednorodzinny
                                                                    
                                                    
                                            
                            Powierzchnia netto budynku
                        
                        
                                                            
                                                                                                                                                                                        92,52 m2
                                
                                                    
                                                    
                                Łączna powierzchnia wszystkich kondygnacjach obliczana z pominięciem elementów
konstrukcyjnych (ściany nośne, słupy itp.) ale wraz z powierzchnią zajmowaną przez ścianki działowe lub inne elementy, które można potencjalnie zdemontować.
                            
                                            
                            Kubatura budynku
                        
                        
                                                            
                                                                                                                                                                                        620,00 m3
                                
                                                    
                                                    
                                Objętość budynku, zwykle wraz z elementami konstrukcyjnymi (ścianami, stropami itd.).
                            
                                            
                            Ściany zewnętrzne (materiały)
                        
                        
                                                            
                                                                                                                                                                                        Bloczek betonu komórkowego 36 cm + styropian 10 cm 
                                
                                                    
                                            
                            Strop
                        
                        
                                                            
                                                                                                                                                                                        drewniany 
                                
                                                    
                                            
                            Pokrycie dachu
                        
                        
                                                            
                                                                                                                                                                                        tradycyjna więźba ciesielska,
                                                                                                                                pokrycie: dachówka cementowa lub ceramiczna 
                                
                                                    
                                            
                            EUCO (energia użytkowa)
                        
                        
                                                            
                                                                                                                                                                                        53,23 kWh/m2 rok
                                
                                                    
                                            
                            Sposób ogrzewania
                        
                        
                                                            
                                                                                                                                                                                        c.o. grzejnikowe + c.w.u. - kocioł gazowy,
                                                                                                                                c.w.u - kolektory słoneczne 
                                
                                                    
                                            
                            W stylu
                        
                        
                                                            
                                                                            Tradycyjnym
                                                                    
                                                    
                                            
                            Liczba kondygnacji
                        
                        
                                                            
                                                                            Z poddaszem do adaptacji
                                                                    
                                                    
                                                    
                                Za kondygnacje uznawane są również poddasza użytkowe oraz piwnice. Kondygnacją nie jest natomiast poddasze nieużytkowe ani antresola.
                            
                                            
                    Koszty
                
            
                            Koszty budowy
                        
                        
                                        361 000 zł
                                    
                                    
                                        Koszt: Stan pod klucz
                                    
                                                                            
                                            Obejmuje koszt wszystkich robót stanu surowego, wykonania instalacji wewnętrznych oraz robót wykończeniowych.
                                        
                                                                    
                                        210 000 zł
                                    
                                                                            
                                            Koszt: Stan surowy zamknięty
                                        
                                                                                                                
                                            Koszt wzniesienia budynku wraz z pokryciem dachu i stolarką zewnętrzną (okna i drzwi). Bez instalacji, ocieplenia i robót wykończeniowych.
                                        
                                                                    
                            Koszty utrzymania
                        
                        
                            EP = 68,11  kWh/m2 rok
                        
                        
                            Oznacza ilość energii nieodnawialnej, jaką budynek może pozyskiwać z nieodnawialnych surowców energetycznych, czyli energii zawartej w paliwach i nośnikach takich jak węgiel, gaz czy ropa naftowa.
                        
                    
            Opis
        
        
            Projekt domu Toledo to tradycyjny budynek z dwuspadowym dachem okapowym oraz zadaszeniami nad wejściem i tarasem wspartymi na kolumnach. Tradycyjny charakter domu podkreśla również podział okien wzbogaconych o szprosy, co dodatkowo  uwydatnia jego ponadczasowy styl. Po wejściu do domu otwiera się strefa dzienna z kominkiem, która poprzez podwójne przeszklone drzwi prowadzi na zadaszony taras i zaprasza do ogrodu. Mieszkańcy mają do dyspozycji wydzieloną strefę prywatną, w której znajdują się trzy sypialnie - dwie mniejsze i jedna większa - oraz funkcjonalna łazienka. Tuż przy wejściu zlokalizowane jest pomieszczenie gospodarcze z kotłem gazowym i pralką. W strefie komunikacji znalazło się miejsce na dwie duże szafy ubraniowe, jedno przy wejściu a drugie w wiatrołapie, także mieszkańcy nie będą narzekać na brak przestrzeni do przechowywania. Projekt Toledo nie posiada garażu, ale ma go wersja Toledo II.
W projekcie przewidziano ogrzewanie kotłem na gaz. Możliwa jest zmiana ogrzewania na pompę ciepła.
        
                            
                CZYTAJ WIĘCEJ
                
            
             
                            Toledo (LMB27)
                        
                        
                            BD43720
                        
                    
                            Powierzchnia użytkowa
                                                            
                                    
                                
                                
                        
                                    Łączna powierzchnia tzw. pomieszczeń użytkowych. Przede wszystkim nie zalicza się do niej powierzchni garażu, nieużytkowego strychu, piwnicy, kotłowni.
                                
                                                    
                            92,52 m2
                        
                    
                            Liczba pokoi
                                                    
                        
                            4 
                        
                    
                            Liczba łazienek
                                                    
                        
                            1 
                        
                    
                            Powierzchnia zabudowy
                                                            
                                    
                                
                                
                        
                                    Powierzchnia zajmowana przez budynek na działce. W praktyce tzw. powierzchnia rzutu budynku wyznaczana po obrysie ścian zewnętrznych.
                                
                                                    
                            118,66 m2
                        
                     
 
 
 
 
 
 
 
 
 
 
 
 
 
 
 
 
 
 
 
 
 
 
 
 
 
 
 
             
 
 
 
 
 
                                         
 
                                         
 
                                         
                         
                         
                     
                         
                        