Darmstadt Pasywny 1 (LDP01)
Dodaj do porównania
Usuń z porównania
Dodaj do ulubionych
Usuń z ulubionych
Pow. użytkowa:
133m2
Pow. zabudowy:
129.43m2
Koszt budowy:
659000zł
Liczba pokoi:
6
Liczba łazienek:
2
Garaż:
1
Rzuty

Lustrzane odbicie
Rzut parteru
116.86 m2
Wiatrołap
4.77 m2
Łazienka
2.47 m2
Komunikacja
4.39 m2
Pom.gosp.
5.23 m2
Kuchnia
10.67 m2
Jadalnia
10.09 m2
Pokój dzienny
27.21 m2
Pokój
11.62 m2
Garaż
18.63 m2
Podest
6.72 m2
Taras
15.06 m2
Pobierz rysunki szczegółowe
Zapytaj, co możesz zmienić

Lustrzane odbicie
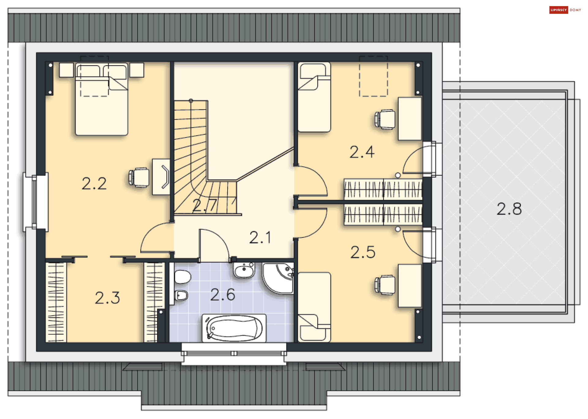
Rzut poddasza
76.41 m2
Komunikacja
6.48 m2
Pokój
15.75 m2
Garderoba
4.21 m2
Pokój
10.07 m2
Pokój
10.07 m2
Łazienka
6.41 m2
Schody
3.56 m2
Balkon
19.86 m2
Pobierz rysunki szczegółowe
Zapytaj, co możesz zmienić

Lustrzane odbicie
Pobierz rysunki szczegółowe
Zapytaj, co możesz zmienić
Zamów rysunki szczegółowe
Zapoznaj się ze szczegółowymi rysunkami rzutów kondygnacji w PDF dla tego projektu.
ZAMAWIAM

Elewacje

Frontowa

Ogrodowa

Lewa

Prawa
Specyfikacja techniczna
Główne parametry
Powierzchnia użytkowa
133,00 m2
Łączna powierzchnia tzw. pomieszczeń użytkowych. Przede wszystkim nie zalicza się do niej powierzchni garażu, nieużytkowego strychu, piwnicy, kotłowni.
Liczba pokoi
6
Liczba łazienek
2
Garaż
1
Powierzchnia zabudowy
129,43 m2
Powierzchnia zajmowana przez budynek na działce. W praktyce tzw. powierzchnia rzutu budynku wyznaczana po obrysie ścian zewnętrznych.
Pełna specyfikacja
Maksymalna wysokość budynku
8,55 m
Wysokość wyznaczona od poziomu terenu do najwyżej położonej części dachu (np. kalenicy), zwykle bez uwzględnienia kominów.
Kąt nachylenia dachu
40,00°
Nachylenie połaci dachu podane w stopniach.
Minimalne wymiary działki (szerokość)
22,40 m
Szerokość działki wyznaczona przy założeniu, że minimalna odległość budynku od granic działki wynosi przynajmniej 3 m w przypadku ścian bez otworów okiennych lub drzwiowych, albo 4 m w przypadku ścian budynku z takimi otworami.
Minimalne wymiary działki (długość)
20,80 m
Długość działki wyznaczona przy założeniu, że minimalna odległość budynku od granic działki wynosi przynajmniej 3 m w przypadku ścian bez otworów okiennych lub drzwiowych, albo 4 m w przypadku ścian budynku z takimi otworami.
Technologia budowy
Murowany
Typ dachu
Dwuspadowy
Kształt dachu – płaski, jednospadowy (jedna skośna połać), dwuspadowy (dwie połacie), wielospadowy (w praktyce o przynajmniej czterech połaciach).
Energooszczędność
Pasywny
Energooszczędny – dom o zapotrzebowaniu na tzw. nieodnawialna energię pierwotną (EP) niższym, niż wymagana przepisami maksymalna wartość.
Typ zabudowy
Jednorodzinny
Powierzchnia netto budynku
188,31 m2
Łączna powierzchnia wszystkich kondygnacjach obliczana z pominięciem elementów
konstrukcyjnych (ściany nośne, słupy itp.) ale wraz z powierzchnią zajmowaną przez ścianki działowe lub inne elementy, które można potencjalnie zdemontować.
Kubatura budynku
779,00 m3
Objętość budynku, zwykle wraz z elementami konstrukcyjnymi (ścianami, stropami itd.).
Ściany zewnętrzne (materiały)
Bloczek silikatowy 24 cm + styropian 30 cm
Strop
gęstożebrowy
Pokrycie dachu
tradycyjna więźba ciesielska
EUCO (energia użytkowa)
10,01 kWh/m2 rok
Sposób ogrzewania
c.o. powietrzne + c.w.u. - kompaktowa pompa ciepła + kolektory
W stylu
Tradycyjnym
Liczba kondygnacji
Z poddaszem użytkowym
Za kondygnacje uznawane są również poddasza użytkowe oraz piwnice. Kondygnacją nie jest natomiast poddasze nieużytkowe ani antresola.
Koszty
Koszty budowy
659 000 zł
Koszt: Stan pod klucz
Obejmuje koszt wszystkich robót stanu surowego, wykonania instalacji wewnętrznych oraz robót wykończeniowych.
386 000 zł
Koszt: Stan surowy zamknięty
Koszt wzniesienia budynku wraz z pokryciem dachu i stolarką zewnętrzną (okna i drzwi). Bez instalacji, ocieplenia i robót wykończeniowych.
Koszty utrzymania
EP = 46,40 kWh/m2 rok
Oznacza ilość energii nieodnawialnej, jaką budynek może pozyskiwać z nieodnawialnych surowców energetycznych, czyli energii zawartej w paliwach i nośnikach takich jak węgiel, gaz czy ropa naftowa.
Opis
Spełnienie marzeń o rodzinnym, ciepłym domu. Prosta bryła o harmonijnych proporcjach, nawiązuje formą do archetypu domu. Poprzez zdecydowane dachy i przyjazny detal, doskonale wpisuje się w rodzimy krajobraz. Sercem jego jest przestronny pokój dzienny, z antresolą poddasza. Kuchnia jest wygodnie usytuowana, duża i jasna. Posiada użyteczne pomieszczenie gospodarcze i wydzielone miejsce na rodzinny stół. Gabinet może być z powodzeniem użytkowany jako pokój gościnny. Poddasze tworzy przestrzeń sypialni. Jest tu wygodny pokój rodziców wraz z garderobą, efektowna łazienka i królestwo dzieci: dwa ustawne pokoje, powiększane w lecie o taras nad garażem. Ten nowoczesny dom zaprojektowany w standardzie domu pasywnego jest wyposażony w kompaktowe urządzenie z pompą ciepła i rekuperacją oraz gruntowy wymiennik ciepła, przez co uzyskuje się bardzo przyjazny klimat domu (wskazany dla osób z alergią).<br/><a href="http://www.domy-pasywne.pl/" target="_blank"><b>www.domy-pasywne.pl</b></a>
CZYTAJ WIĘCEJ
Dodatki do projektu
Opieka konsultacyjna
0zł
599 zł
Prenumerata 12 tytułów
0zł
599 zł
-
Tabela kosztów0 zł
-
Usługa wykonania kosztorysu ślepego123 zł
Prenumerata 12 tytułów
0zł
599 zł
-
Usługa wykonania kosztorysu inwestorskiego492 zł

Darmstadt Pasywny 1 (LDP01)
BD43739
Powierzchnia użytkowa
Łączna powierzchnia tzw. pomieszczeń użytkowych. Przede wszystkim nie zalicza się do niej powierzchni garażu, nieużytkowego strychu, piwnicy, kotłowni.
133,00 m2
Liczba pokoi
6
Liczba łazienek
2
Garaż
1
Powierzchnia zabudowy
Powierzchnia zajmowana przez budynek na działce. W praktyce tzw. powierzchnia rzutu budynku wyznaczana po obrysie ścian zewnętrznych.
129,43 m2
Kup projekt
6 270 zł
Projekt + opieka konsultacyjna
Tylko u nas
kupujesz projekt wraz z
opieką konsultacyjną w trakcie budowy domu
opieką konsultacyjną w trakcie budowy domu
Kup projekt
6 270 zł
Masz pytania?
Zadzwoń!
22 257 84 76
pon-pt: 9-17