Budynek agroturystyczny Jesion (DCPS03)
Dodaj do porównania
Usuń z porównania
Dodaj do ulubionych
Usuń z ulubionych
Pow. użytkowa:
265.11m2
Pow. zabudowy:
318.5m2
Koszt budowy:
1245000zł
Liczba pokoi:
6
Liczba łazienek:
8
Rzuty

Lustrzane odbicie
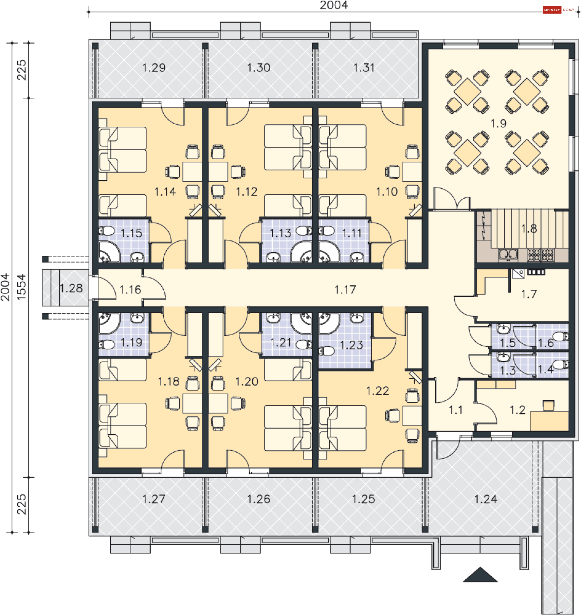
Rzut parteru
361.89 m2
Przedsionek
3.91 m2
Gabinet
7.82 m2
Przedsionek WC
1.82 m2
WC
1.43 m2
Przedsionek WC
1.82 m2
WC
1.43 m2
Pom.gosp., c.o.
7.95 m2
Kuchnia
8.15 m2
Jadalnia
37.54 m2
Pokój
22.75 m2
Łazienka
3.67 m2
Pokój
22.75 m2
Łazienka
3.67 m2
Pokój
22.75 m2
Łazienka
3.67 m2
Przedsionek
2.71 m2
Komunikacja
32.08 m2
Pokój
22.75 m2
Łazienka
3.67 m2
Pokój
22.75 m2
Łazienka
3.67 m2
Pokój
21.43 m2
Łazienka
4.92 m2
Taras
31.85 m2
Taras
10.62 m2
Taras
10.62 m2
Taras
10.62 m2
Taras
1.79 m2
Taras
10.62 m2
Taras
10.62 m2
Taras
10.04 m2
Pobierz rysunki szczegółowe
Zapytaj, co możesz zmienić

Lustrzane odbicie
Pobierz rysunki szczegółowe
Zapytaj, co możesz zmienić
Zamów rysunki szczegółowe
Zapoznaj się ze szczegółowymi rysunkami rzutów kondygnacji w PDF dla tego projektu.
ZAMAWIAM

Elewacje

Frontowa

Ogrodowa

Lewa

Prawa
Specyfikacja techniczna
Główne parametry
Powierzchnia użytkowa
265,11 m2
Łączna powierzchnia tzw. pomieszczeń użytkowych. Przede wszystkim nie zalicza się do niej powierzchni garażu, nieużytkowego strychu, piwnicy, kotłowni.
Liczba pokoi
6
Liczba łazienek
8
Powierzchnia zabudowy
318,50 m2
Powierzchnia zajmowana przez budynek na działce. W praktyce tzw. powierzchnia rzutu budynku wyznaczana po obrysie ścian zewnętrznych.
Pełna specyfikacja
Maksymalna wysokość budynku
4,99 m
Wysokość wyznaczona od poziomu terenu do najwyżej położonej części dachu (np. kalenicy), zwykle bez uwzględnienia kominów.
Kąt nachylenia dachu
1,20°
Nachylenie połaci dachu podane w stopniach.
Minimalne wymiary działki (szerokość)
28,00 m
Szerokość działki wyznaczona przy założeniu, że minimalna odległość budynku od granic działki wynosi przynajmniej 3 m w przypadku ścian bez otworów okiennych lub drzwiowych, albo 4 m w przypadku ścian budynku z takimi otworami.
Minimalne wymiary działki (długość)
29,00 m
Długość działki wyznaczona przy założeniu, że minimalna odległość budynku od granic działki wynosi przynajmniej 3 m w przypadku ścian bez otworów okiennych lub drzwiowych, albo 4 m w przypadku ścian budynku z takimi otworami.
Technologia budowy
Murowany
Typ dachu
Płaski
Kształt dachu – płaski, jednospadowy (jedna skośna połać), dwuspadowy (dwie połacie), wielospadowy (w praktyce o przynajmniej czterech połaciach).
Energooszczędność
Energooszczędny
Energooszczędny – dom o zapotrzebowaniu na tzw. nieodnawialna energię pierwotną (EP) niższym, niż wymagana przepisami maksymalna wartość.
Powierzchnia netto budynku
265,11 m2
Łączna powierzchnia wszystkich kondygnacjach obliczana z pominięciem elementów
konstrukcyjnych (ściany nośne, słupy itp.) ale wraz z powierzchnią zajmowaną przez ścianki działowe lub inne elementy, które można potencjalnie zdemontować.
Kubatura budynku
1 258,00 m3
Objętość budynku, zwykle wraz z elementami konstrukcyjnymi (ścianami, stropami itd.).
Ściany zewnętrzne (materiały)
Bloczek silikatowy 24 cm + styropian 15 cm
Strop
gęstożebrowy
Pokrycie dachu
stropodach gęstożebrowy
EUCO (energia użytkowa)
45,13 kWh/m2 rok
Sposób ogrzewania
c.o. grzejnikowe + c.w.u. - kocioł gazowy
W stylu
Tradycyjnym
Liczba kondygnacji
Parterowe
Za kondygnacje uznawane są również poddasza użytkowe oraz piwnice. Kondygnacją nie jest natomiast poddasze nieużytkowe ani antresola.
Koszty
Koszty budowy
1 245 000 zł
Koszt: Stan pod klucz
Obejmuje koszt wszystkich robót stanu surowego, wykonania instalacji wewnętrznych oraz robót wykończeniowych.
792 000 zł
Koszt: Stan surowy zamknięty
Koszt wzniesienia budynku wraz z pokryciem dachu i stolarką zewnętrzną (okna i drzwi). Bez instalacji, ocieplenia i robót wykończeniowych.
Koszty utrzymania
EP = 69,90 kWh/m2 rok
Oznacza ilość energii nieodnawialnej, jaką budynek może pozyskiwać z nieodnawialnych surowców energetycznych, czyli energii zawartej w paliwach i nośnikach takich jak węgiel, gaz czy ropa naftowa.
Opis
Budynek mieszkalny jednorodzinny z pokojami na wynajem, możliwy do wykorzystania jako obiekt agroturystyczny na terenach do tego przeznaczonych. Prosty w konstrukcji, a jednocześnie nie pozbawiony uroku projekt parterowego energooszczędnego budynku. Nowoczesna bryła ocieplona została drewnianymi elementami i ciekawymi podcieniami. Wnętrze kryje sześć pokoi, każdy z łazienką. Z pokoju mieszkańcy mogą wyjść na zewnątrz przez oszklone drzwi tarasowe. Goście mogą skorzystać z ogólnodostępnej jadalni, przy której przewidziano półotwartą, wygodną kuchnię, gdzie można samodzielnie przygotować posiłki. Są tu także dwie toalety, pomieszczenie gospodarcze z kotłem grzewczym oraz pokój, który może pełnić funkcje administracyjne.
Dodatki do projektu
Opieka konsultacyjna
0zł
599 zł
Prenumerata 12 tytułów
0zł
599 zł
-
Tabela kosztów0 zł
-
Usługa wykonania kosztorysu ślepego123 zł
Prenumerata 12 tytułów
0zł
599 zł
-
Usługa wykonania kosztorysu inwestorskiego492 zł

Budynek agroturystyczny Jesion (DCPS03)
BD43775
Powierzchnia użytkowa
Łączna powierzchnia tzw. pomieszczeń użytkowych. Przede wszystkim nie zalicza się do niej powierzchni garażu, nieużytkowego strychu, piwnicy, kotłowni.
265,11 m2
Liczba pokoi
6
Liczba łazienek
8
Powierzchnia zabudowy
Powierzchnia zajmowana przez budynek na działce. W praktyce tzw. powierzchnia rzutu budynku wyznaczana po obrysie ścian zewnętrznych.
318,50 m2
Kup projekt
12 270 zł
Projekt + opieka konsultacyjna
Tylko u nas
kupujesz projekt wraz z
opieką konsultacyjną w trakcie budowy domu
opieką konsultacyjną w trakcie budowy domu
Kup projekt
12 270 zł
Masz pytania?
Zadzwoń!
22 257 84 76
pon-pt: 9-17
