Budynek usługowy Dakar (GW02)
Dodaj do porównania
Usuń z porównania
Dodaj do ulubionych
Usuń z ulubionych
Pow. użytkowa:
378.84m2
Pow. zabudowy:
448.76m2
Koszt budowy:
1728000zł
Liczba pokoi:
4
Liczba łazienek:
3
Rzuty

Lustrzane odbicie
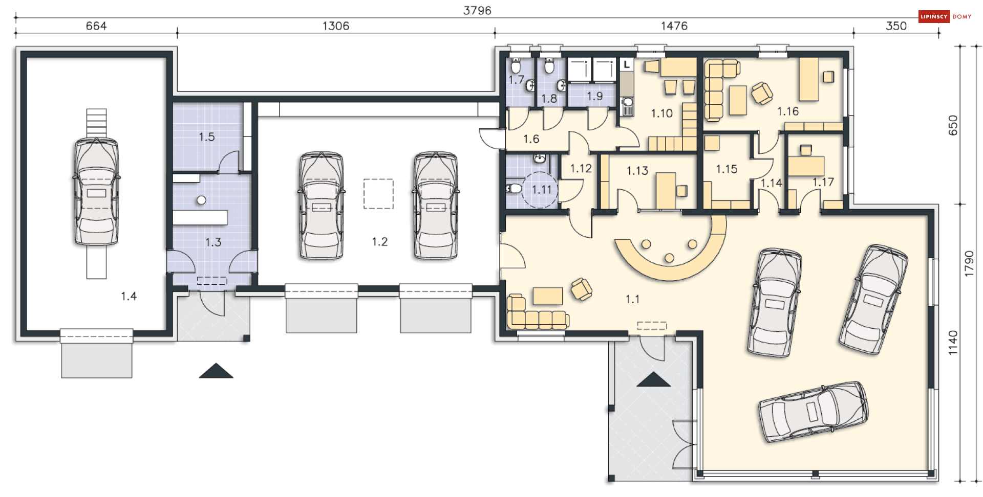
Rzut parteru
378.84 m2
Pom. handlowo-usługowe
135.51 m2
Warsztat
74.95 m2
Biuro
14.84 m2
Stacja kontroli
64.52 m2
Magazyn
9.14 m2
Hall
7.63 m2
WC
2.41 m2
WC
2.41 m2
Natryski
4.04 m2
Pom.socjalne
12.27 m2
WC
4.79 m2
Hall
3.32 m2
Gabinet
8.87 m2
Hall
3.94 m2
Pom. techniczne
5.94 m2
Gabinet
17.33 m2
Gabinet
6.93 m2
Pobierz rysunki szczegółowe
Zapytaj, co możesz zmienić
Zamów rysunki szczegółowe
Zapoznaj się ze szczegółowymi rysunkami rzutów kondygnacji w PDF dla tego projektu.
ZAMAWIAM

Elewacje

Frontowa

Ogrodowa

Lewa

Prawa
Specyfikacja techniczna
Główne parametry
Powierzchnia użytkowa
378,84 m2
Łączna powierzchnia tzw. pomieszczeń użytkowych. Przede wszystkim nie zalicza się do niej powierzchni garażu, nieużytkowego strychu, piwnicy, kotłowni.
Liczba pokoi
4
Liczba łazienek
3
Powierzchnia zabudowy
448,76 m2
Powierzchnia zajmowana przez budynek na działce. W praktyce tzw. powierzchnia rzutu budynku wyznaczana po obrysie ścian zewnętrznych.
Pełna specyfikacja
Maksymalna wysokość budynku
7,05 m
Wysokość wyznaczona od poziomu terenu do najwyżej położonej części dachu (np. kalenicy), zwykle bez uwzględnienia kominów.
Kąt nachylenia dachu
2,00°
Nachylenie połaci dachu podane w stopniach.
Technologia budowy
Murowany
Energooszczędność
Standardowy
Energooszczędny – dom o zapotrzebowaniu na tzw. nieodnawialna energię pierwotną (EP) niższym, niż wymagana przepisami maksymalna wartość.
Powierzchnia netto budynku
378,84 m2
Łączna powierzchnia wszystkich kondygnacjach obliczana z pominięciem elementów
konstrukcyjnych (ściany nośne, słupy itp.) ale wraz z powierzchnią zajmowaną przez ścianki działowe lub inne elementy, które można potencjalnie zdemontować.
Kubatura budynku
2 911,00 m3
Objętość budynku, zwykle wraz z elementami konstrukcyjnymi (ścianami, stropami itd.).
Ściany zewnętrzne (materiały)
Bloczek betonu komórkowego 24 cm + styropian 20 cm
Strop
drewniany,
wiązary
Pokrycie dachu
wiązary
Sposób ogrzewania
c.o. grzejnikowe + c.w.u. - kocioł gazowy
W stylu
Tradycyjnym
Liczba kondygnacji
Parterowe
Za kondygnacje uznawane są również poddasza użytkowe oraz piwnice. Kondygnacją nie jest natomiast poddasze nieużytkowe ani antresola.
Koszty
Koszty budowy
1 728 000 zł
Koszt: Stan pod klucz
Obejmuje koszt wszystkich robót stanu surowego, wykonania instalacji wewnętrznych oraz robót wykończeniowych.
1 099 000 zł
Koszt: Stan surowy zamknięty
Koszt wzniesienia budynku wraz z pokryciem dachu i stolarką zewnętrzną (okna i drzwi). Bez instalacji, ocieplenia i robót wykończeniowych.
Opis
Projekt przestronnego warsztatu samochodowego, który może być również salonem sprzedaży. Niewątpliwym atutem jest tutaj duża przeszklona sala, pozwalająca na ekspozycję samochodów i obsługę klientów. W projekcie znajduje się również warsztat dwustanowiskowy oraz stacja kontroli pojazdów. Przewidziano także obszerne zaplecze z trzema gabinetami, pomieszczeniem socjalnym oraz częścią sanitarną.<br>

Budynek usługowy Dakar (GW02)
BD43890
Powierzchnia użytkowa
Łączna powierzchnia tzw. pomieszczeń użytkowych. Przede wszystkim nie zalicza się do niej powierzchni garażu, nieużytkowego strychu, piwnicy, kotłowni.
378,84 m2
Liczba pokoi
4
Liczba łazienek
3
Powierzchnia zabudowy
Powierzchnia zajmowana przez budynek na działce. W praktyce tzw. powierzchnia rzutu budynku wyznaczana po obrysie ścian zewnętrznych.
448,76 m2
