Budynek usługowy Jastrząb (DCU03)
Dodaj do porównania
Usuń z porównania
Dodaj do ulubionych
Usuń z ulubionych
Pow. użytkowa:
557.42m2
Pow. zabudowy:
449.76m2
Koszt budowy:
2542000zł
Liczba pokoi:
5
Liczba łazienek:
6
Rzuty

Lustrzane odbicie
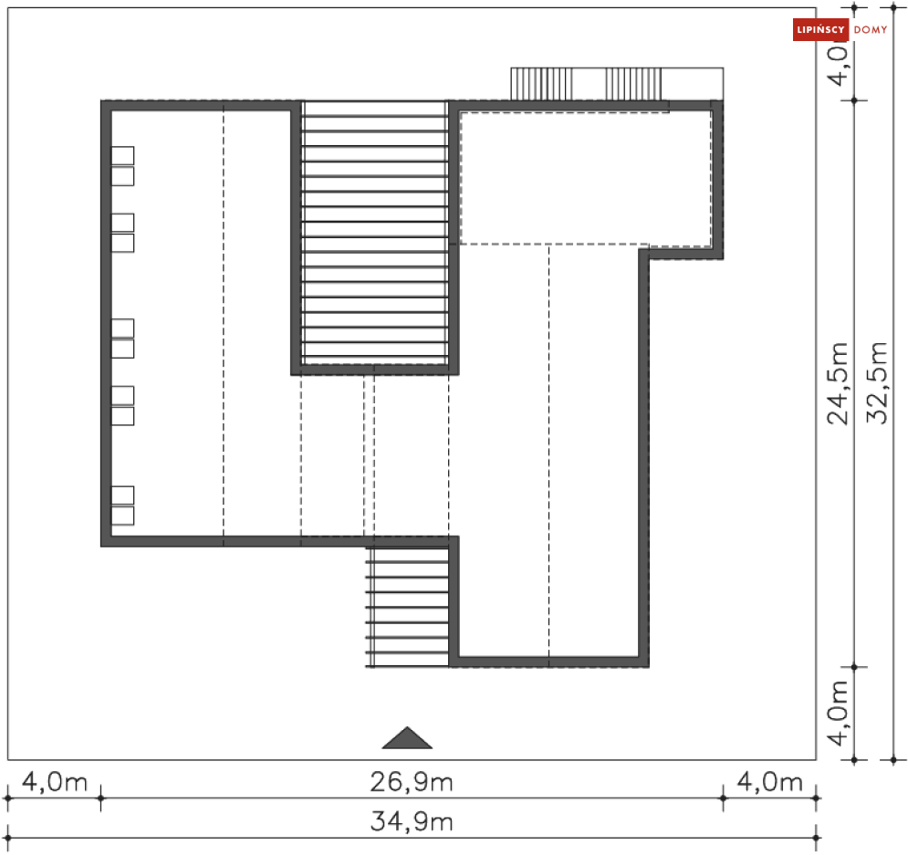
Rzut parteru
479.68 m2
Hall
24.09 m2
Sala bankietowa
99.14 m2
Bar
32.72 m2
Kuchnia
21.52 m2
Magazyn
5.3 m2
Łazienka
3.16 m2
Pom.socjalne
5.19 m2
Komunikacja
3.75 m2
Kotłownia
7.32 m2
Komunikacja
8.79 m2
Zmywalnia naczyń
5.74 m2
Komunikacja
5.06 m2
Schody
12.84 m2
Komunikacja
11.23 m2
Sala bankietowa
86.03 m2
Przedsionek
5.13 m2
WC damski
12.43 m2
Przedsionek
4.37 m2
WC męski
10.89 m2
WC
5 m2
Podest
20.13 m2
Taras
85 m2
Podest
4.85 m2
Pobierz rysunki szczegółowe
Zapytaj, co możesz zmienić

Lustrzane odbicie
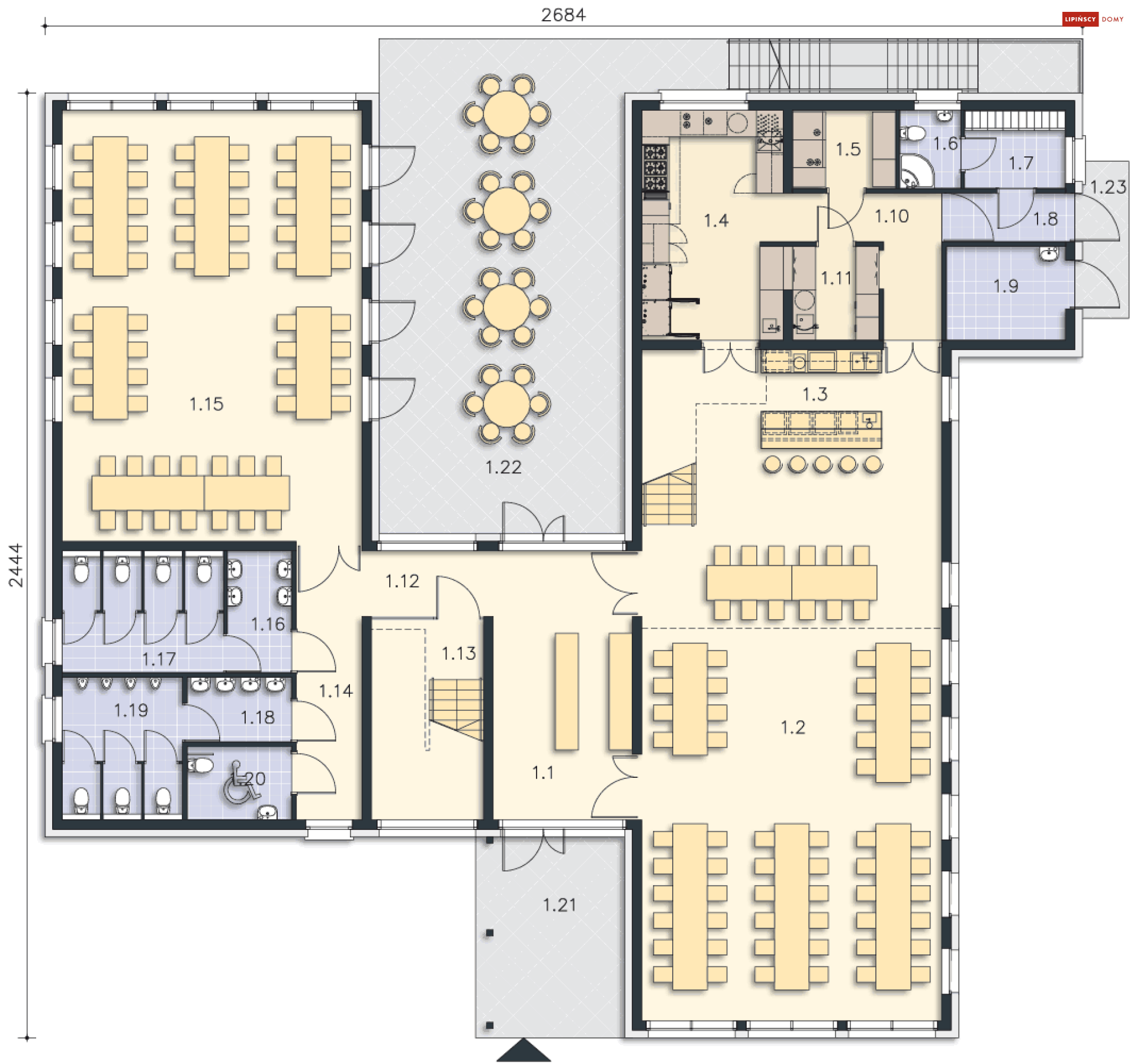
Rzut poddasza
256.04 m2
Schody
19.38 m2
Komunikacja
26.92 m2
Pom. techniczne
3.5 m2
Sekretariat
12.56 m2
Biuro
11.74 m2
Komunikacja
2.49 m2
Łazienka
3.56 m2
Pokój
11.74 m2
Komunikacja
2.95 m2
Łazienka
3.47 m2
Pokój
12.36 m2
Komunikacja
2.95 m2
Łazienka
3.47 m2
Pokój
11.32 m2
Komunikacja
2.95 m2
Łazienka
3.68 m2
Pokój
12.77 m2
Schody
7.67 m2
Sala bankietowa
39.56 m2
Taras
61 m2
Pobierz rysunki szczegółowe
Zapytaj, co możesz zmienić

Lustrzane odbicie
Pobierz rysunki szczegółowe
Zapytaj, co możesz zmienić
Zamów rysunki szczegółowe
Zapoznaj się ze szczegółowymi rysunkami rzutów kondygnacji w PDF dla tego projektu.
ZAMAWIAM

Elewacje

Frontowa

Ogrodowa

Lewa

Prawa
Specyfikacja techniczna
Główne parametry
Powierzchnia użytkowa
557,42 m2
Łączna powierzchnia tzw. pomieszczeń użytkowych. Przede wszystkim nie zalicza się do niej powierzchni garażu, nieużytkowego strychu, piwnicy, kotłowni.
Liczba pokoi
5
Liczba łazienek
6
Powierzchnia zabudowy
449,76 m2
Powierzchnia zajmowana przez budynek na działce. W praktyce tzw. powierzchnia rzutu budynku wyznaczana po obrysie ścian zewnętrznych.
Pełna specyfikacja
Maksymalna wysokość budynku
9,18 m
Wysokość wyznaczona od poziomu terenu do najwyżej położonej części dachu (np. kalenicy), zwykle bez uwzględnienia kominów.
Kąt nachylenia dachu
35,00°
Nachylenie połaci dachu podane w stopniach.
Minimalne wymiary działki (szerokość)
34,90 m
Szerokość działki wyznaczona przy założeniu, że minimalna odległość budynku od granic działki wynosi przynajmniej 3 m w przypadku ścian bez otworów okiennych lub drzwiowych, albo 4 m w przypadku ścian budynku z takimi otworami.
Minimalne wymiary działki (długość)
32,50 m
Długość działki wyznaczona przy założeniu, że minimalna odległość budynku od granic działki wynosi przynajmniej 3 m w przypadku ścian bez otworów okiennych lub drzwiowych, albo 4 m w przypadku ścian budynku z takimi otworami.
Technologia budowy
Murowany
Energooszczędność
Standardowy
Energooszczędny – dom o zapotrzebowaniu na tzw. nieodnawialna energię pierwotną (EP) niższym, niż wymagana przepisami maksymalna wartość.
Powierzchnia netto budynku
638,99 m2
Łączna powierzchnia wszystkich kondygnacjach obliczana z pominięciem elementów
konstrukcyjnych (ściany nośne, słupy itp.) ale wraz z powierzchnią zajmowaną przez ścianki działowe lub inne elementy, które można potencjalnie zdemontować.
Kubatura budynku
2 820,00 m3
Objętość budynku, zwykle wraz z elementami konstrukcyjnymi (ścianami, stropami itd.).
Ściany zewnętrzne (materiały)
Bloczek silikatowy 24 cm + styropian 20 cm
Strop
gęstożebrowy
Pokrycie dachu
tradycyjna więźba ciesielska
Sposób ogrzewania
c.o. grzejnikowe + c.w.u. - kocioł gazowy
W stylu
Tradycyjnym
Liczba kondygnacji
Z poddaszem użytkowym
Za kondygnacje uznawane są również poddasza użytkowe oraz piwnice. Kondygnacją nie jest natomiast poddasze nieużytkowe ani antresola.
Koszty
Koszty budowy
2 542 000 zł
Koszt: Stan pod klucz
Obejmuje koszt wszystkich robót stanu surowego, wykonania instalacji wewnętrznych oraz robót wykończeniowych.
1 617 000 zł
Koszt: Stan surowy zamknięty
Koszt wzniesienia budynku wraz z pokryciem dachu i stolarką zewnętrzną (okna i drzwi). Bez instalacji, ocieplenia i robót wykończeniowych.
Opis
Nowoczesny, bardzo funkcjonalnie i wygodnie rozplanowany budynek usługowy, który mieści aż trzy sale bankietowe, zaplecze kuchenno-gospodarcze, bar i część hotelową. Dużym atutem są dwa przepiękne tarasy, jeden wewnętrzny, usytuowany pomiędzy dwoma skrzydłami budynku, drugi zaś na piętrze. Ten projekt na pewno zwróci uwagę inwestorów szukających niebanalnych, ciekawych rozwiązań. Jego cechą charakterystyczną jest niewątpliwie nowoczesna bryła, z licznymi przeszkleniami, elewacją z cegły klinkierowej.
Dodatki do projektu
Opieka konsultacyjna
0zł
599 zł
Prenumerata 12 tytułów
0zł
599 zł
-
Tabela kosztów0 zł
-
Usługa wykonania kosztorysu ślepego123 zł
Prenumerata 12 tytułów
0zł
599 zł
-
Usługa wykonania kosztorysu inwestorskiego492 zł

Budynek usługowy Jastrząb (DCU03)
BD43903
Powierzchnia użytkowa
Łączna powierzchnia tzw. pomieszczeń użytkowych. Przede wszystkim nie zalicza się do niej powierzchni garażu, nieużytkowego strychu, piwnicy, kotłowni.
557,42 m2
Liczba pokoi
5
Liczba łazienek
6
Powierzchnia zabudowy
Powierzchnia zajmowana przez budynek na działce. W praktyce tzw. powierzchnia rzutu budynku wyznaczana po obrysie ścian zewnętrznych.
449,76 m2
Kup projekt
19 270 zł
Projekt + opieka konsultacyjna
Tylko u nas
kupujesz projekt wraz z
opieką konsultacyjną w trakcie budowy domu
opieką konsultacyjną w trakcie budowy domu
Kup projekt
19 270 zł
Masz pytania?
Zadzwoń!
22 257 84 76
pon-pt: 9-17
