Lucia VIII (DCB88g)
Dodaj do porównania
Usuń z porównania
Dodaj do ulubionych
Usuń z ulubionych
Pow. użytkowa:
100.46m2
Pow. zabudowy:
161.3m2
Koszt budowy:
530000zł
Liczba pokoi:
4
Liczba łazienek:
2
Garaż:
1
Rzuty

Lustrzane odbicie
Rzut parteru
149.84 m2
Wiatrołap
4.16 m2
Komunikacja
8.25 m2
Pokój
11.75 m2
Łazienka
5.02 m2
Pokój
11.83 m2
Pokój
10.04 m2
Łazienka
2.93 m2
Pokój dzienny
31.3 m2
Kuchnia
10.89 m2
Garderoba
4.29 m2
Garaż
20.28 m2
Kotłownia
8.75 m2
Podest
4.11 m2
Taras
13.6 m2
Podest
2.64 m2
Pobierz rysunki szczegółowe
Zapytaj, co możesz zmienić

Lustrzane odbicie
Pobierz rysunki szczegółowe
Zapytaj, co możesz zmienić
Zamów rysunki szczegółowe
Zapoznaj się ze szczegółowymi rysunkami rzutów kondygnacji w PDF dla tego projektu.
ZAMAWIAM

Elewacje

Frontowa

Ogrodowa

Lewa

Prawa
Specyfikacja techniczna
Główne parametry
Powierzchnia użytkowa
100,46 m2
Łączna powierzchnia tzw. pomieszczeń użytkowych. Przede wszystkim nie zalicza się do niej powierzchni garażu, nieużytkowego strychu, piwnicy, kotłowni.
Liczba pokoi
4
Liczba łazienek
2
Garaż
1
Powierzchnia zabudowy
161,30 m2
Powierzchnia zajmowana przez budynek na działce. W praktyce tzw. powierzchnia rzutu budynku wyznaczana po obrysie ścian zewnętrznych.
Pełna specyfikacja
Maksymalna wysokość budynku
6,66 m
Wysokość wyznaczona od poziomu terenu do najwyżej położonej części dachu (np. kalenicy), zwykle bez uwzględnienia kominów.
Kąt nachylenia dachu
28,00°
Nachylenie połaci dachu podane w stopniach.
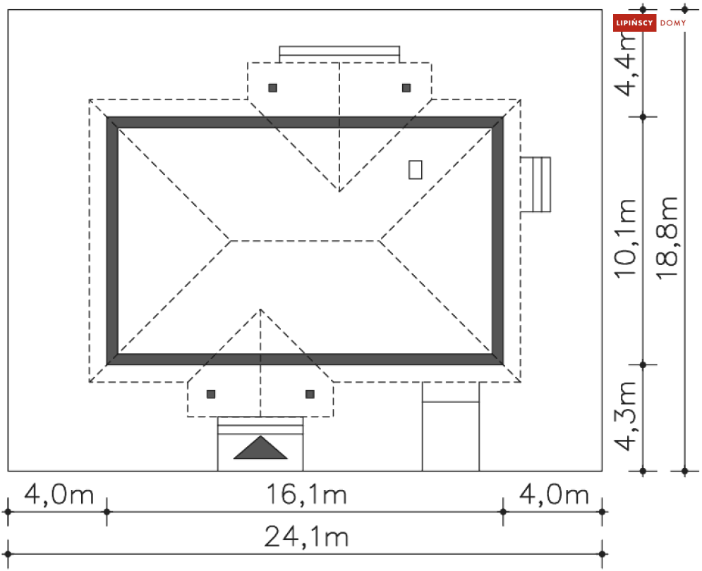
Minimalne wymiary działki (szerokość)
24,10 m
Szerokość działki wyznaczona przy założeniu, że minimalna odległość budynku od granic działki wynosi przynajmniej 3 m w przypadku ścian bez otworów okiennych lub drzwiowych, albo 4 m w przypadku ścian budynku z takimi otworami.
Minimalne wymiary działki (długość)
18,80 m
Długość działki wyznaczona przy założeniu, że minimalna odległość budynku od granic działki wynosi przynajmniej 3 m w przypadku ścian bez otworów okiennych lub drzwiowych, albo 4 m w przypadku ścian budynku z takimi otworami.
Technologia budowy
Murowany
Typ dachu
Wielospadowy
Kształt dachu – płaski, jednospadowy (jedna skośna połać), dwuspadowy (dwie połacie), wielospadowy (w praktyce o przynajmniej czterech połaciach).
Energooszczędność
Energooszczędny
Energooszczędny – dom o zapotrzebowaniu na tzw. nieodnawialna energię pierwotną (EP) niższym, niż wymagana przepisami maksymalna wartość.
Typ zabudowy
Jednorodzinny
Powierzchnia netto budynku
129,49 m2
Łączna powierzchnia wszystkich kondygnacjach obliczana z pominięciem elementów
konstrukcyjnych (ściany nośne, słupy itp.) ale wraz z powierzchnią zajmowaną przez ścianki działowe lub inne elementy, które można potencjalnie zdemontować.
Kubatura budynku
780,00 m3
Objętość budynku, zwykle wraz z elementami konstrukcyjnymi (ścianami, stropami itd.).
Ściany zewnętrzne (materiały)
Bloczek silikatowy 24 cm + styropian 20 cm
Pokrycie dachu
wiązary prefabrykowane
EUCO (energia użytkowa)
24,93 kWh/m2 rok
Sposób ogrzewania
c.o. grzejnikowe + c.w.u. - kocioł gazowy (alternatywa paliwo stałe)
W stylu
Tradycyjnym
Liczba kondygnacji
Parterowe
Za kondygnacje uznawane są również poddasza użytkowe oraz piwnice. Kondygnacją nie jest natomiast poddasze nieużytkowe ani antresola.
Koszty
Koszty budowy
530 000 zł
Koszt: Stan pod klucz
Obejmuje koszt wszystkich robót stanu surowego, wykonania instalacji wewnętrznych oraz robót wykończeniowych.
318 000 zł
Koszt: Stan surowy zamknięty
Koszt wzniesienia budynku wraz z pokryciem dachu i stolarką zewnętrzną (okna i drzwi). Bez instalacji, ocieplenia i robót wykończeniowych.
Koszty utrzymania
EP = 68,67 kWh/m2 rok
Oznacza ilość energii nieodnawialnej, jaką budynek może pozyskiwać z nieodnawialnych surowców energetycznych, czyli energii zawartej w paliwach i nośnikach takich jak węgiel, gaz czy ropa naftowa.
Opis
Funkcjonalny i wygodny dom energooszczędny, parterowy, o prostej bryle i konstrukcji, z jednostanowiskowym garażem i pomieszczeniem gospodarczym z kotłownią za nim. W domu zaplanowano salon z wyjściem na częściowo zadaszony taras, otwarta kuchnię, przy której znajduje się podręczna spiżarnia oraz trzy sypialnie i dwie łazienki. Dzięki temu, że dom ma bryłę na bazie prostokąta i dwuspadowy dach, jest on niedrogi w budowie, a dzięki temu, że jest energooszczędny – również w użytkowaniu. Lucia VIII to idealna propozycja dla Inwestorów szukających wygodnego domu w rozsądnej cenie.
Dodatki do projektu
Opieka konsultacyjna
0zł
599 zł
Prenumerata 12 tytułów
0zł
599 zł
-
Tabela kosztów0 zł
-
Usługa wykonania kosztorysu ślepego123 zł
Prenumerata 12 tytułów
0zł
599 zł
-
Usługa wykonania kosztorysu inwestorskiego492 zł

Lucia VIII (DCB88g)
BD43914
Powierzchnia użytkowa
Łączna powierzchnia tzw. pomieszczeń użytkowych. Przede wszystkim nie zalicza się do niej powierzchni garażu, nieużytkowego strychu, piwnicy, kotłowni.
100,46 m2
Liczba pokoi
4
Liczba łazienek
2
Garaż
1
Powierzchnia zabudowy
Powierzchnia zajmowana przez budynek na działce. W praktyce tzw. powierzchnia rzutu budynku wyznaczana po obrysie ścian zewnętrznych.
161,30 m2
Kup projekt
4 570 zł
Projekt + opieka konsultacyjna
Tylko u nas
kupujesz projekt wraz z
opieką konsultacyjną w trakcie budowy domu
opieką konsultacyjną w trakcie budowy domu
Kup projekt
4 570 zł
Masz pytania?
Zadzwoń!
22 257 84 76
pon-pt: 9-17
Inne wersje projektu
PODOBNE PROJEKTY
