Tarrafal (DCP372)
Dodaj do porównania
Usuń z porównania
Dodaj do ulubionych
Usuń z ulubionych
Pow. użytkowa:
256.78m2
Pow. zabudowy:
256.53m2
Koszt budowy:
1310000zł
Liczba pokoi:
5
Liczba łazienek:
4
Garaż:
2
Rzuty

Lustrzane odbicie
Rzut parteru
283.48 m2
Wiatrołap
10.79 m2
Komunikacja
7.51 m2
Łazienka
7.89 m2
Komunikacja
12.79 m2
Kuchnia, jadalnia
31.15 m2
Spiżarnia
3.52 m2
Pokój dzienny
32.95 m2
Pokój rekreacyjny
27.01 m2
Łazienka
2.8 m2
Kotłownia
12.88 m2
Garaż
32.66 m2
Taras
27.12 m2
Taras
40.5 m2
Taras
30.31 m2
Podest
3.6 m2
Pobierz rysunki szczegółowe
Zapytaj, co możesz zmienić

Lustrzane odbicie
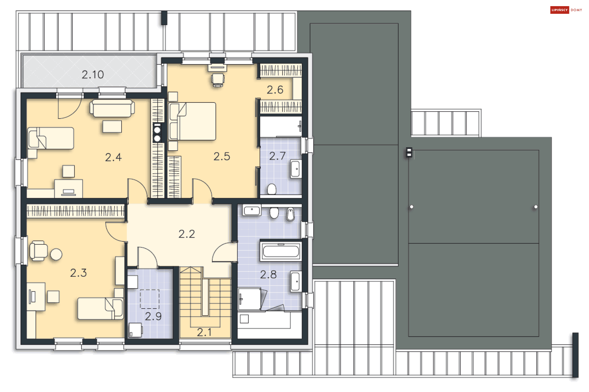
Rzut I piętra
128.35 m2
Schody
5.82 m2
Komunikacja
12.42 m2
Pokój
24.05 m2
Pokój
24.52 m2
Pokój
22.1 m2
Garderoba
3.89 m2
Łazienka
6.19 m2
Łazienka
15.55 m2
Pralnia
5.83 m2
Balkon
7.98 m2
Pobierz rysunki szczegółowe
Zapytaj, co możesz zmienić

Lustrzane odbicie
Pobierz rysunki szczegółowe
Zapytaj, co możesz zmienić
Zamów rysunki szczegółowe
Zapoznaj się ze szczegółowymi rysunkami rzutów kondygnacji w PDF dla tego projektu.
ZAMAWIAM

Elewacje

Frontowa

Ogrodowa

Lewa

Prawa
Specyfikacja techniczna
Główne parametry
Powierzchnia użytkowa
256,78 m2
Łączna powierzchnia tzw. pomieszczeń użytkowych. Przede wszystkim nie zalicza się do niej powierzchni garażu, nieużytkowego strychu, piwnicy, kotłowni.
Liczba pokoi
5
Liczba łazienek
4
Garaż
2
Powierzchnia zabudowy
256,53 m2
Powierzchnia zajmowana przez budynek na działce. W praktyce tzw. powierzchnia rzutu budynku wyznaczana po obrysie ścian zewnętrznych.
Pełna specyfikacja
Maksymalna wysokość budynku
7,37 m
Wysokość wyznaczona od poziomu terenu do najwyżej położonej części dachu (np. kalenicy), zwykle bez uwzględnienia kominów.
Kąt nachylenia dachu
0,20°
Nachylenie połaci dachu podane w stopniach.
Minimalne wymiary działki (szerokość)
30,90 m
Szerokość działki wyznaczona przy założeniu, że minimalna odległość budynku od granic działki wynosi przynajmniej 3 m w przypadku ścian bez otworów okiennych lub drzwiowych, albo 4 m w przypadku ścian budynku z takimi otworami.
Minimalne wymiary działki (długość)
22,60 m
Długość działki wyznaczona przy założeniu, że minimalna odległość budynku od granic działki wynosi przynajmniej 3 m w przypadku ścian bez otworów okiennych lub drzwiowych, albo 4 m w przypadku ścian budynku z takimi otworami.
Technologia budowy
Murowany
Typ dachu
Płaski
Kształt dachu – płaski, jednospadowy (jedna skośna połać), dwuspadowy (dwie połacie), wielospadowy (w praktyce o przynajmniej czterech połaciach).
Energooszczędność
Energooszczędny
Energooszczędny – dom o zapotrzebowaniu na tzw. nieodnawialna energię pierwotną (EP) niższym, niż wymagana przepisami maksymalna wartość.
Typ zabudowy
Jednorodzinny
Powierzchnia netto budynku
312,40 m2
Łączna powierzchnia wszystkich kondygnacjach obliczana z pominięciem elementów
konstrukcyjnych (ściany nośne, słupy itp.) ale wraz z powierzchnią zajmowaną przez ścianki działowe lub inne elementy, które można potencjalnie zdemontować.
Kubatura budynku
1 556,00 m3
Objętość budynku, zwykle wraz z elementami konstrukcyjnymi (ścianami, stropami itd.).
Strop
gęstożebrowy
Pokrycie dachu
stropodach żelbetowy
EUCO (energia użytkowa)
23,20 kWh/m2 rok
Sposób ogrzewania
c.o. grzejnikowe + c.w.u. - kocioł gazowy
W stylu
Nowoczesnym
Liczba kondygnacji
Piętrowe
Za kondygnacje uznawane są również poddasza użytkowe oraz piwnice. Kondygnacją nie jest natomiast poddasze nieużytkowe ani antresola.
Koszty
Koszty budowy
1 310 000 zł
Koszt: Stan pod klucz
Obejmuje koszt wszystkich robót stanu surowego, wykonania instalacji wewnętrznych oraz robót wykończeniowych.
841 000 zł
Koszt: Stan surowy zamknięty
Koszt wzniesienia budynku wraz z pokryciem dachu i stolarką zewnętrzną (okna i drzwi). Bez instalacji, ocieplenia i robót wykończeniowych.
Koszty utrzymania
EP = 69,90 kWh/m2 rok
Oznacza ilość energii nieodnawialnej, jaką budynek może pozyskiwać z nieodnawialnych surowców energetycznych, czyli energii zawartej w paliwach i nośnikach takich jak węgiel, gaz czy ropa naftowa.
Opis
Duży, wygodny dom piętrowy, o nowoczesnej stylistyce, z płaskim dachem, przewidziany w standardzie energooszczędnym. Układ pomieszczeń i funkcji domu został tak zaplanowany, by trafić w gusta wymagających inwestorów. Parter stanowi część wspólną dla mieszkańców, a jego centrum to wygodny salon. Osobną część parteru przeznaczono na ustawną kuchnię, w której zmieści się duży stół oraz na wygodną łazienkę. Na parterze znajduje się także część rekreacyjna i toaleta. Pokój rekreacyjny można przeznaczyć np. na gabinet masażu czy gabinet kosmetyczny, czemu sprzyja to, że jest wydzielony od reszty pomieszczeń. Drugą kondygnację przeznaczono na trzy sypialnie – w tym jedna posiada własną łazienkę i garderobę, pralnię i komfortową wspólną łazienkę. W bryłę wpisano duży garaż, a drewniana pergola wokół domu urozmaica wygląd, a obsadzona roślinnością - zacienia duże przeszklenia.
CZYTAJ WIĘCEJ

Tarrafal (DCP372)
BD44234
Powierzchnia użytkowa
Łączna powierzchnia tzw. pomieszczeń użytkowych. Przede wszystkim nie zalicza się do niej powierzchni garażu, nieużytkowego strychu, piwnicy, kotłowni.
256,78 m2
Liczba pokoi
5
Liczba łazienek
4
Garaż
2
Powierzchnia zabudowy
Powierzchnia zajmowana przez budynek na działce. W praktyce tzw. powierzchnia rzutu budynku wyznaczana po obrysie ścian zewnętrznych.
256,53 m2
