Annecy (DCP360)
Dodaj do porównania
Usuń z porównania
Dodaj do ulubionych
Usuń z ulubionych
Pow. użytkowa:
357.32m2
Pow. zabudowy:
334.46m2
Koszt budowy:
1823000zł
Liczba pokoi:
6
Liczba łazienek:
5
Garaż:
2
Rzuty

Lustrzane odbicie
Rzut parteru
345.58 m2
Wiatrołap
7.83 m2
Garderoba
5.66 m2
Komunikacja
34.75 m2
Pokój
16.35 m2
Łazienka
9.98 m2
Pokój
32.45 m2
Pokój dzienny z aneksem kuch. i jadalnią
55.25 m2
Pokój rekreacyjny
43.28 m2
Sauna
5.36 m2
WC
2.14 m2
Komunikacja
7.62 m2
Pralnia
7.33 m2
Spiżarnia
3.28 m2
WC
2.69 m2
Kotłownia
7.83 m2
Garaż
33.48 m2
Taras
12 m2
Taras
58.3 m2
Pobierz rysunki szczegółowe
Zapytaj, co możesz zmienić

Lustrzane odbicie
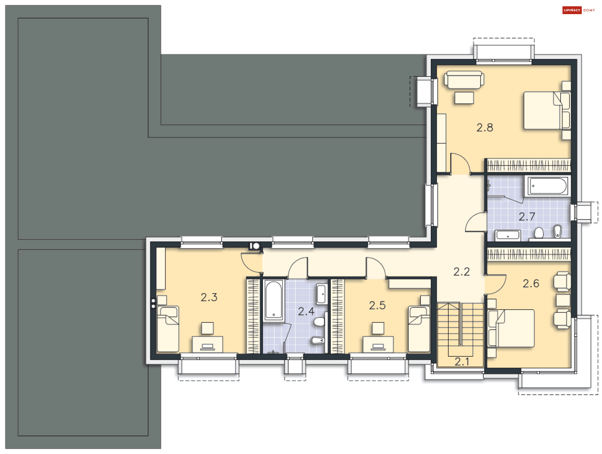
Rzut I piętra
123.35 m2
Schody
5.6 m2
Komunikacja
20.27 m2
Pokój
20.1 m2
Łazienka
8.87 m2
Pokój
13.65 m2
Pokój
18.45 m2
Łazienka
10.19 m2
Pokój
26.22 m2
Pobierz rysunki szczegółowe
Zapytaj, co możesz zmienić

Lustrzane odbicie
Pobierz rysunki szczegółowe
Zapytaj, co możesz zmienić
Zamów rysunki szczegółowe
Zapoznaj się ze szczegółowymi rysunkami rzutów kondygnacji w PDF dla tego projektu.
ZAMAWIAM

Elewacje

Frontowa

Ogrodowa

Lewa

Prawa
Specyfikacja techniczna
Główne parametry
Powierzchnia użytkowa
357,32 m2
Łączna powierzchnia tzw. pomieszczeń użytkowych. Przede wszystkim nie zalicza się do niej powierzchni garażu, nieużytkowego strychu, piwnicy, kotłowni.
Liczba pokoi
6
Liczba łazienek
5
Garaż
2
Powierzchnia zabudowy
334,46 m2
Powierzchnia zajmowana przez budynek na działce. W praktyce tzw. powierzchnia rzutu budynku wyznaczana po obrysie ścian zewnętrznych.
Pełna specyfikacja
Maksymalna wysokość budynku
6,91 m
Wysokość wyznaczona od poziomu terenu do najwyżej położonej części dachu (np. kalenicy), zwykle bez uwzględnienia kominów.
Kąt nachylenia dachu
0,20°
Nachylenie połaci dachu podane w stopniach.
Minimalne wymiary działki (szerokość)
32,70 m
Szerokość działki wyznaczona przy założeniu, że minimalna odległość budynku od granic działki wynosi przynajmniej 3 m w przypadku ścian bez otworów okiennych lub drzwiowych, albo 4 m w przypadku ścian budynku z takimi otworami.
Minimalne wymiary działki (długość)
27,80 m
Długość działki wyznaczona przy założeniu, że minimalna odległość budynku od granic działki wynosi przynajmniej 3 m w przypadku ścian bez otworów okiennych lub drzwiowych, albo 4 m w przypadku ścian budynku z takimi otworami.
Technologia budowy
Murowany
Typ dachu
Płaski
Kształt dachu – płaski, jednospadowy (jedna skośna połać), dwuspadowy (dwie połacie), wielospadowy (w praktyce o przynajmniej czterech połaciach).
Energooszczędność
Energooszczędny
Energooszczędny – dom o zapotrzebowaniu na tzw. nieodnawialna energię pierwotną (EP) niższym, niż wymagana przepisami maksymalna wartość.
Typ zabudowy
Jednorodzinny
Powierzchnia netto budynku
400,73 m2
Łączna powierzchnia wszystkich kondygnacjach obliczana z pominięciem elementów
konstrukcyjnych (ściany nośne, słupy itp.) ale wraz z powierzchnią zajmowaną przez ścianki działowe lub inne elementy, które można potencjalnie zdemontować.
Kubatura budynku
1 942,00 m3
Objętość budynku, zwykle wraz z elementami konstrukcyjnymi (ścianami, stropami itd.).
Strop
gęstożebrowy
Pokrycie dachu
stropodach żelbetowy
EUCO (energia użytkowa)
18,98 kWh/m2 rok
Sposób ogrzewania
c.o. podłogowe + c.w.u. - pompa ciepła ze źródłem dolnym
W stylu
Nowoczesnym
Liczba kondygnacji
Piętrowe
Za kondygnacje uznawane są również poddasza użytkowe oraz piwnice. Kondygnacją nie jest natomiast poddasze nieużytkowe ani antresola.
Koszty
Koszty budowy
1 823 000 zł
Koszt: Stan pod klucz
Obejmuje koszt wszystkich robót stanu surowego, wykonania instalacji wewnętrznych oraz robót wykończeniowych.
1 171 000 zł
Koszt: Stan surowy zamknięty
Koszt wzniesienia budynku wraz z pokryciem dachu i stolarką zewnętrzną (okna i drzwi). Bez instalacji, ocieplenia i robót wykończeniowych.
Koszty utrzymania
EP = 68,60 kWh/m2 rok
Oznacza ilość energii nieodnawialnej, jaką budynek może pozyskiwać z nieodnawialnych surowców energetycznych, czyli energii zawartej w paliwach i nośnikach takich jak węgiel, gaz czy ropa naftowa.
Opis
Przepiękny rozłożysty dom z częściowym pietrem wg projektu Annecy to komfortowa propozycja dla wymagających inwestorów. Nietypowa bryła domu z ciekawymi przeszkleniami, mieści bogaty program funkcjonalny. Parter podzielono na 3 części, w tym środkowa to podwyższona otwarta strefa dzienna, a boczne mieszczą z jednej strony dwustanowiskowy garaż, a za nim sporą część rekreacyjną z siłownią, sauną i zapleczem sanitarnym, natomiast po przeciwnej stronie - gabinet i dużą sypialnię małżeńską z łazienką. Piętro to strefa prywatna z czterema sypialniami i dwiema łazienkami.
Dodatki do projektu
Opieka konsultacyjna
0zł
599 zł
Prenumerata 12 tytułów
0zł
599 zł
-
Tabela kosztów0 zł
-
Usługa wykonania kosztorysu ślepego123 zł
Prenumerata 12 tytułów
0zł
599 zł
-
Usługa wykonania kosztorysu inwestorskiego492 zł

Annecy (DCP360)
BD44248
Powierzchnia użytkowa
Łączna powierzchnia tzw. pomieszczeń użytkowych. Przede wszystkim nie zalicza się do niej powierzchni garażu, nieużytkowego strychu, piwnicy, kotłowni.
357,32 m2
Liczba pokoi
6
Liczba łazienek
5
Garaż
2
Powierzchnia zabudowy
Powierzchnia zajmowana przez budynek na działce. W praktyce tzw. powierzchnia rzutu budynku wyznaczana po obrysie ścian zewnętrznych.
334,46 m2
Kup projekt
15 970 zł
Projekt + opieka konsultacyjna
Tylko u nas
kupujesz projekt wraz z
opieką konsultacyjną w trakcie budowy domu
opieką konsultacyjną w trakcie budowy domu
Kup projekt
15 970 zł
Masz pytania?
Zadzwoń!
22 257 84 76
pon-pt: 9-17
