Skagen III (DCP401b)
Dodaj do porównania
Usuń z porównania
Dodaj do ulubionych
Usuń z ulubionych
Pow. użytkowa:
141.62m2
Pow. zabudowy:
140.22m2
Koszt budowy:
702000zł
Liczba pokoi:
5
Liczba łazienek:
3
Garaż:
1
Rzuty

Lustrzane odbicie
Rzut parteru
144.18 m2
Wiatrołap
5.74 m2
Komunikacja
2.44 m2
Kuchnia, jadalnia
14.16 m2
Pokój dzienny
25.85 m2
Pokój
11.16 m2
Łazienka
4.04 m2
Pralnia, c.o.
6.15 m2
Garaż
37.77 m2
Podest
15.08 m2
Taras
21.79 m2
Pobierz rysunki szczegółowe
Zapytaj, co możesz zmienić

Lustrzane odbicie
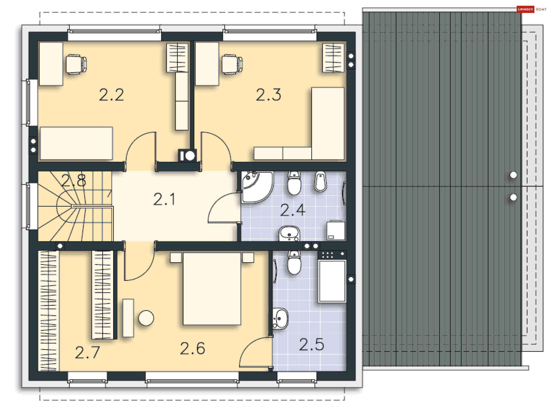
Rzut I piętra
72.08 m2
Komunikacja
6.66 m2
Pokój
13.94 m2
Pokój
14.04 m2
Łazienka
5.65 m2
Łazienka
6.81 m2
Pokój
14.07 m2
Garderoba
6.95 m2
Schody
3.96 m2
Pobierz rysunki szczegółowe
Zapytaj, co możesz zmienić

Lustrzane odbicie
Pobierz rysunki szczegółowe
Zapytaj, co możesz zmienić
Zamów rysunki szczegółowe
Zapoznaj się ze szczegółowymi rysunkami rzutów kondygnacji w PDF dla tego projektu.
ZAMAWIAM

Elewacje

Frontowa

Ogrodowa

Lewa

Prawa
Specyfikacja techniczna
Główne parametry
Powierzchnia użytkowa
141,62 m2
Łączna powierzchnia tzw. pomieszczeń użytkowych. Przede wszystkim nie zalicza się do niej powierzchni garażu, nieużytkowego strychu, piwnicy, kotłowni.
Liczba pokoi
5
Liczba łazienek
3
Garaż
1
Powierzchnia zabudowy
140,22 m2
Powierzchnia zajmowana przez budynek na działce. W praktyce tzw. powierzchnia rzutu budynku wyznaczana po obrysie ścian zewnętrznych.
Pełna specyfikacja
Maksymalna wysokość budynku
7,67 m
Wysokość wyznaczona od poziomu terenu do najwyżej położonej części dachu (np. kalenicy), zwykle bez uwzględnienia kominów.
Kąt nachylenia dachu
15,00°
Nachylenie połaci dachu podane w stopniach.
Minimalne wymiary działki (szerokość)
21,50 m
Szerokość działki wyznaczona przy założeniu, że minimalna odległość budynku od granic działki wynosi przynajmniej 3 m w przypadku ścian bez otworów okiennych lub drzwiowych, albo 4 m w przypadku ścian budynku z takimi otworami.
Minimalne wymiary działki (długość)
19,60 m
Długość działki wyznaczona przy założeniu, że minimalna odległość budynku od granic działki wynosi przynajmniej 3 m w przypadku ścian bez otworów okiennych lub drzwiowych, albo 4 m w przypadku ścian budynku z takimi otworami.
Technologia budowy
Murowany
Typ dachu
Dwuspadowy
Kształt dachu – płaski, jednospadowy (jedna skośna połać), dwuspadowy (dwie połacie), wielospadowy (w praktyce o przynajmniej czterech połaciach).
Energooszczędność
Energooszczędny
Energooszczędny – dom o zapotrzebowaniu na tzw. nieodnawialna energię pierwotną (EP) niższym, niż wymagana przepisami maksymalna wartość.
Typ zabudowy
Jednorodzinny
Powierzchnia netto budynku
181,29 m2
Łączna powierzchnia wszystkich kondygnacjach obliczana z pominięciem elementów
konstrukcyjnych (ściany nośne, słupy itp.) ale wraz z powierzchnią zajmowaną przez ścianki działowe lub inne elementy, które można potencjalnie zdemontować.
Kubatura budynku
820,00 m3
Objętość budynku, zwykle wraz z elementami konstrukcyjnymi (ścianami, stropami itd.).
Pokrycie dachu
tradycyjna więźba ciesielska
EUCO (energia użytkowa)
20,70 kWh/m2 rok
Sposób ogrzewania
c.o. podłogowe + c.w.u. - pompa ciepła ze źródłem dolnym
W stylu
Nowoczesnym
Liczba kondygnacji
Piętrowe
Za kondygnacje uznawane są również poddasza użytkowe oraz piwnice. Kondygnacją nie jest natomiast poddasze nieużytkowe ani antresola.
Koszty
Koszty budowy
702 000 zł
Koszt: Stan pod klucz
Obejmuje koszt wszystkich robót stanu surowego, wykonania instalacji wewnętrznych oraz robót wykończeniowych.
411 000 zł
Koszt: Stan surowy zamknięty
Koszt wzniesienia budynku wraz z pokryciem dachu i stolarką zewnętrzną (okna i drzwi). Bez instalacji, ocieplenia i robót wykończeniowych.
Koszty utrzymania
EP = 55,80 kWh/m2 rok
Oznacza ilość energii nieodnawialnej, jaką budynek może pozyskiwać z nieodnawialnych surowców energetycznych, czyli energii zawartej w paliwach i nośnikach takich jak węgiel, gaz czy ropa naftowa.
Opis
Kolejna odsłona pięknego domu energooszczędnego z użytkowym poddaszem, zaprojektowanego na planie kwadratu, co umożliwia bardzo funkcjonalne rozplanowanie przestrzeni. Na parterze znajduje się duża kuchnia z miejscem na rodzinny stół. Sercem domu jest wygodny salon z wyjściem a taras, który dzięki dużym przeszklonym oknom staje się jego przedłużeniem. Jest tu także gabinet – doskonałe rozwiązanie dla osób pracujących w domu oraz łazienka i pomieszczenie gospodarcze. Drugą kondygnację zajmują trzy sypialnie, w tym jedna z dużą, niezależną łazienką i garderobą. W bryłę domu wpisano garaż na jedno auto, a budynek urzeka harmonią, jest prosty i równocześnie elegancki.
Dodatki do projektu
Opieka konsultacyjna
0zł
599 zł
Prenumerata 12 tytułów
0zł
599 zł
-
Tabela kosztów0 zł
-
Usługa wykonania kosztorysu ślepego123 zł
Prenumerata 12 tytułów
0zł
599 zł
-
Usługa wykonania kosztorysu inwestorskiego492 zł

Skagen III (DCP401b)
BD44257
Powierzchnia użytkowa
Łączna powierzchnia tzw. pomieszczeń użytkowych. Przede wszystkim nie zalicza się do niej powierzchni garażu, nieużytkowego strychu, piwnicy, kotłowni.
141,62 m2
Liczba pokoi
5
Liczba łazienek
3
Garaż
1
Powierzchnia zabudowy
Powierzchnia zajmowana przez budynek na działce. W praktyce tzw. powierzchnia rzutu budynku wyznaczana po obrysie ścian zewnętrznych.
140,22 m2
Kup projekt
5 670 zł
Projekt + opieka konsultacyjna
Tylko u nas
kupujesz projekt wraz z
opieką konsultacyjną w trakcie budowy domu
opieką konsultacyjną w trakcie budowy domu
Kup projekt
5 670 zł
Masz pytania?
Zadzwoń!
22 257 84 76
pon-pt: 9-17