Pacifica II (DCP362a)
Dodaj do porównania
Usuń z porównania
Dodaj do ulubionych
Usuń z ulubionych
Pow. użytkowa:
191.3m2
Pow. zabudowy:
205.94m2
Koszt budowy:
950000zł
Liczba pokoi:
6
Liczba łazienek:
4
Garaż:
2
Rzuty

Lustrzane odbicie
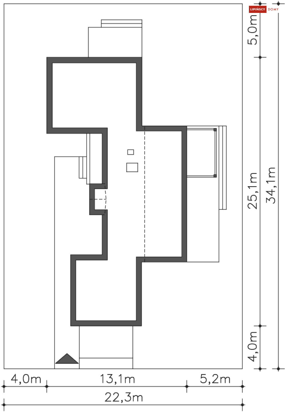
Rzut parteru
215.89 m2
Wiatrołap
4.83 m2
Komunikacja
8.23 m2
WC
1.66 m2
Kuchnia
11.32 m2
Spiżarnia
1.8 m2
Jadalnia
15.56 m2
Pokój dzienny
29.68 m2
Kotłownia
4.68 m2
Garaż
32.35 m2
Wiatrołap
2.63 m2
Pokój dzienny
18.97 m2
Kuchnia
5.05 m2
Spiżarnia
1.38 m2
Łazienka
7.14 m2
Pokój
11.37 m2
Podest
7.14 m2
Taras
38.1 m2
Taras
14 m2
Pobierz rysunki szczegółowe
Zapytaj, co możesz zmienić

Lustrzane odbicie
Rzut I piętra
83.03 m2
Schody
4.48 m2
Komunikacja
8.34 m2
Łazienka
7.55 m2
Łazienka
5.42 m2
Pokój
17.59 m2
Pokój
14.15 m2
Pokój
14.15 m2
Balkon
11.35 m2
Pobierz rysunki szczegółowe
Zapytaj, co możesz zmienić

Lustrzane odbicie
Pobierz rysunki szczegółowe
Zapytaj, co możesz zmienić
Zamów rysunki szczegółowe
Zapoznaj się ze szczegółowymi rysunkami rzutów kondygnacji w PDF dla tego projektu.
ZAMAWIAM

Elewacje

Frontowa

Ogrodowa

Lewa

Prawa
Specyfikacja techniczna
Główne parametry
Powierzchnia użytkowa
191,30 m2
Łączna powierzchnia tzw. pomieszczeń użytkowych. Przede wszystkim nie zalicza się do niej powierzchni garażu, nieużytkowego strychu, piwnicy, kotłowni.
Liczba pokoi
6
Liczba łazienek
4
Garaż
2
Powierzchnia zabudowy
205,94 m2
Powierzchnia zajmowana przez budynek na działce. W praktyce tzw. powierzchnia rzutu budynku wyznaczana po obrysie ścian zewnętrznych.
Pełna specyfikacja
Maksymalna wysokość budynku
9,00 m
Wysokość wyznaczona od poziomu terenu do najwyżej położonej części dachu (np. kalenicy), zwykle bez uwzględnienia kominów.
Kąt nachylenia dachu
30,00°
Nachylenie połaci dachu podane w stopniach.
Minimalne wymiary działki (szerokość)
22,30 m
Szerokość działki wyznaczona przy założeniu, że minimalna odległość budynku od granic działki wynosi przynajmniej 3 m w przypadku ścian bez otworów okiennych lub drzwiowych, albo 4 m w przypadku ścian budynku z takimi otworami.
Minimalne wymiary działki (długość)
34,10 m
Długość działki wyznaczona przy założeniu, że minimalna odległość budynku od granic działki wynosi przynajmniej 3 m w przypadku ścian bez otworów okiennych lub drzwiowych, albo 4 m w przypadku ścian budynku z takimi otworami.
Technologia budowy
Murowany
Typ dachu
Dwuspadowy
Kształt dachu – płaski, jednospadowy (jedna skośna połać), dwuspadowy (dwie połacie), wielospadowy (w praktyce o przynajmniej czterech połaciach).
Energooszczędność
Energooszczędny
Energooszczędny – dom o zapotrzebowaniu na tzw. nieodnawialna energię pierwotną (EP) niższym, niż wymagana przepisami maksymalna wartość.
Typ zabudowy
Jednorodzinny
Powierzchnia netto budynku
241,88 m2
Łączna powierzchnia wszystkich kondygnacjach obliczana z pominięciem elementów
konstrukcyjnych (ściany nośne, słupy itp.) ale wraz z powierzchnią zajmowaną przez ścianki działowe lub inne elementy, które można potencjalnie zdemontować.
Kubatura budynku
1 193,00 m3
Objętość budynku, zwykle wraz z elementami konstrukcyjnymi (ścianami, stropami itd.).
Ściany zewnętrzne (materiały)
Bloczek betonu komórkowego 24 cm + styropian 20 cm
Strop
gęstożebrowy
Pokrycie dachu
wiązary prefabrykowane
EUCO (energia użytkowa)
25,14 kWh/m2 rok
Sposób ogrzewania
c.o. grzejnikowe + c.w.u. - kocioł gazowy
W stylu
Nowoczesnym
Liczba kondygnacji
Piętrowe
Za kondygnacje uznawane są również poddasza użytkowe oraz piwnice. Kondygnacją nie jest natomiast poddasze nieużytkowe ani antresola.
Koszty
Koszty budowy
950 000 zł
Koszt: Stan pod klucz
Obejmuje koszt wszystkich robót stanu surowego, wykonania instalacji wewnętrznych oraz robót wykończeniowych.
610 000 zł
Koszt: Stan surowy zamknięty
Koszt wzniesienia budynku wraz z pokryciem dachu i stolarką zewnętrzną (okna i drzwi). Bez instalacji, ocieplenia i robót wykończeniowych.
Koszty utrzymania
EP = 67,05 kWh/m2 rok
Oznacza ilość energii nieodnawialnej, jaką budynek może pozyskiwać z nieodnawialnych surowców energetycznych, czyli energii zawartej w paliwach i nośnikach takich jak węgiel, gaz czy ropa naftowa.
Opis
Energooszczędny dom piętrowy, wielopokoleniowy, z wydzielonym osobnym mieszkaniem. Dom składa się z trzech połączonych ze sobą brył. Główny budynek ma dwie pełne kondygnacje, natomiast zlokalizowane po przeciwnych stronach jednopoziomowe dobudówki to: dwupokojowe mieszkanie z aneksem kuchennym i łazienką oraz dwustanowiskowy garaż. Wjazd do garażu jest zaplanowany w taki sposób, aby dom można było umieścić na stosunkowo wąskiej działce. Strefy dzienne obu mieszkań oraz wszystkie sypialnie są wyposażone w duże przeszklenia, dzięki którym wnętrza są jasne i przestronne. Część dzienna głównego budynku zajmuje niemal cały parter. Spore tarasy zostały tak zaplanowane aby nie kolidowały ze sobą i można było z nich korzystać niezależnie. Dom ten będzie wygodny dla wielopokoleniowej rodziny, ale może też stanowić dodatkowe źródło dochodu uzyskane z niezależnego mieszkania na wynajem.
CZYTAJ WIĘCEJ
Dodatki do projektu
Opieka konsultacyjna
0zł
599 zł
Prenumerata 12 tytułów
0zł
599 zł
-
Tabela kosztów0 zł
-
Usługa wykonania kosztorysu ślepego123 zł
Prenumerata 12 tytułów
0zł
599 zł
-
Usługa wykonania kosztorysu inwestorskiego492 zł

Pacifica II (DCP362a)
BD44263
Powierzchnia użytkowa
Łączna powierzchnia tzw. pomieszczeń użytkowych. Przede wszystkim nie zalicza się do niej powierzchni garażu, nieużytkowego strychu, piwnicy, kotłowni.
191,30 m2
Liczba pokoi
6
Liczba łazienek
4
Garaż
2
Powierzchnia zabudowy
Powierzchnia zajmowana przez budynek na działce. W praktyce tzw. powierzchnia rzutu budynku wyznaczana po obrysie ścian zewnętrznych.
205,94 m2
Kup projekt
6 170 zł
Projekt + opieka konsultacyjna
Tylko u nas
kupujesz projekt wraz z
opieką konsultacyjną w trakcie budowy domu
opieką konsultacyjną w trakcie budowy domu
Kup projekt
6 170 zł
Masz pytania?
Zadzwoń!
22 257 84 76
pon-pt: 9-17
Inne wersje projektu
PODOBNE PROJEKTY
