Medulin (DCP405)
Dodaj do porównania
Usuń z porównania
Dodaj do ulubionych
Usuń z ulubionych
Pow. użytkowa:
156.05m2
Pow. zabudowy:
152.05m2
Koszt budowy:
775000zł
Liczba pokoi:
5
Liczba łazienek:
3
Garaż:
1
Rzuty

Lustrzane odbicie
Rzut parteru
135.4 m2
Wiatrołap
9.65 m2
Komunikacja
7.61 m2
Pokój
10.85 m2
Jadalnia
17.5 m2
Salon
22.79 m2
Kuchnia
9.75 m2
Łazienka
2.88 m2
Spiżarnia
2.68 m2
Garaż
18.3 m2
Kotłownia
5.96 m2
Podest
6.48 m2
Taras
20.95 m2
Pobierz rysunki szczegółowe
Zapytaj, co możesz zmienić

Lustrzane odbicie
Rzut poddasza
72.43 m2
Korytarz
13.81 m2
Łazienka
6.17 m2
Pokój
15.69 m2
Łazienka
3.75 m2
Pralnia
2.89 m2
Pokój
12.24 m2
Pokój
12.33 m2
Schody
5.55 m2
Pobierz rysunki szczegółowe
Zapytaj, co możesz zmienić

Lustrzane odbicie
Pobierz rysunki szczegółowe
Zapytaj, co możesz zmienić
Zamów rysunki szczegółowe
Zapoznaj się ze szczegółowymi rysunkami rzutów kondygnacji w PDF dla tego projektu.
ZAMAWIAM

Elewacje

Frontowa

Ogrodowa

Lewa

Prawa
Specyfikacja techniczna
Główne parametry
Powierzchnia użytkowa
156,05 m2
Łączna powierzchnia tzw. pomieszczeń użytkowych. Przede wszystkim nie zalicza się do niej powierzchni garażu, nieużytkowego strychu, piwnicy, kotłowni.
Liczba pokoi
5
Liczba łazienek
3
Garaż
1
Powierzchnia zabudowy
152,05 m2
Powierzchnia zajmowana przez budynek na działce. W praktyce tzw. powierzchnia rzutu budynku wyznaczana po obrysie ścian zewnętrznych.
Pełna specyfikacja
Maksymalna wysokość budynku
8,30 m
Wysokość wyznaczona od poziomu terenu do najwyżej położonej części dachu (np. kalenicy), zwykle bez uwzględnienia kominów.
Kąt nachylenia dachu
45,00°
Nachylenie połaci dachu podane w stopniach.
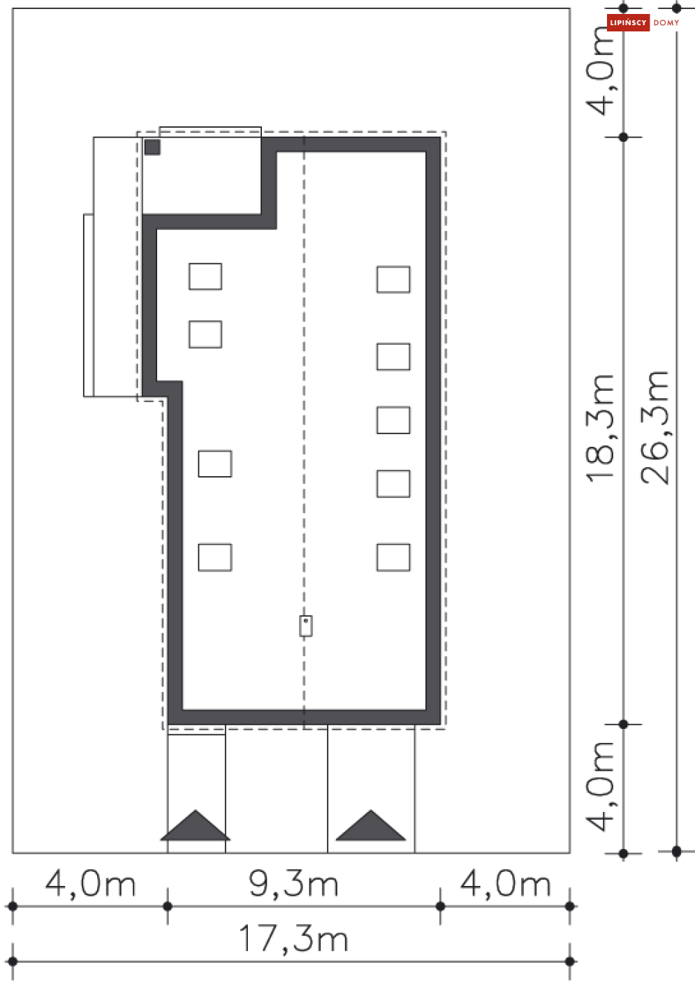
Minimalne wymiary działki (szerokość)
17,30 m
Szerokość działki wyznaczona przy założeniu, że minimalna odległość budynku od granic działki wynosi przynajmniej 3 m w przypadku ścian bez otworów okiennych lub drzwiowych, albo 4 m w przypadku ścian budynku z takimi otworami.
Minimalne wymiary działki (długość)
26,30 m
Długość działki wyznaczona przy założeniu, że minimalna odległość budynku od granic działki wynosi przynajmniej 3 m w przypadku ścian bez otworów okiennych lub drzwiowych, albo 4 m w przypadku ścian budynku z takimi otworami.
Technologia budowy
Murowany
Typ dachu
Dwuspadowy
Kształt dachu – płaski, jednospadowy (jedna skośna połać), dwuspadowy (dwie połacie), wielospadowy (w praktyce o przynajmniej czterech połaciach).
Energooszczędność
Energooszczędny
Energooszczędny – dom o zapotrzebowaniu na tzw. nieodnawialna energię pierwotną (EP) niższym, niż wymagana przepisami maksymalna wartość.
Typ zabudowy
Jednorodzinny
Powierzchnia netto budynku
202,45 m2
Łączna powierzchnia wszystkich kondygnacjach obliczana z pominięciem elementów
konstrukcyjnych (ściany nośne, słupy itp.) ale wraz z powierzchnią zajmowaną przez ścianki działowe lub inne elementy, które można potencjalnie zdemontować.
Kubatura budynku
909,00 m3
Objętość budynku, zwykle wraz z elementami konstrukcyjnymi (ścianami, stropami itd.).
Ściany zewnętrzne (materiały)
Pustak ceramiczny 25 cm + styropian 20 cm
Strop
żelbetowy typu filigran
Pokrycie dachu
tradycyjna więźba ciesielska,
pokrycie: blacha tytan-cynk
EUCO (energia użytkowa)
21,39 kWh/m2 rok
Sposób ogrzewania
c.o. podłogowe + c.w.u. - kocioł gazowy,
c.w.u - kolektory słoneczne
W stylu
Nowoczesnym
Liczba kondygnacji
Z poddaszem użytkowym
Za kondygnacje uznawane są również poddasza użytkowe oraz piwnice. Kondygnacją nie jest natomiast poddasze nieużytkowe ani antresola.
Koszty
Koszty budowy
775 000 zł
Koszt: Stan pod klucz
Obejmuje koszt wszystkich robót stanu surowego, wykonania instalacji wewnętrznych oraz robót wykończeniowych.
498 000 zł
Koszt: Stan surowy zamknięty
Koszt wzniesienia budynku wraz z pokryciem dachu i stolarką zewnętrzną (okna i drzwi). Bez instalacji, ocieplenia i robót wykończeniowych.
Koszty utrzymania
EP = 55,91 kWh/m2 rok
Oznacza ilość energii nieodnawialnej, jaką budynek może pozyskiwać z nieodnawialnych surowców energetycznych, czyli energii zawartej w paliwach i nośnikach takich jak węgiel, gaz czy ropa naftowa.
Opis
Nowoczesny dom z poddaszem użytkowym i dachem dwuspadowym. Mieszkańców i gości wita duży wiatrołap, w którym od razu można poczuć się jak w domu. Z wiatrołapu jest bezpośrednie przejście do części gospodarczej: jednostanowiskowego garażu i kotłowni. Wszystkich jednak zapraszamy do najpiękniejszej części domu, jaką stanowi przestronna część dzienna z wydzielonymi półotwartymi strefami: przytulnego salonu z wyjściem na taras; obszernej jadalni – wspaniale doświetlonej dzięki wysokim oknom i optycznie powiększonej poprzez antresolę; kuchni oddzielonej ścianką od salonu, ale otwartej na jadalnię. Jest to idealne miejsce do spożywania rodzinnych posiłków, jak i podejmowania gości na małych i większych przyjęciach. Dodatkowo na parterze znajduje się gabinet, który dobrze sprawdzi się również w roli pokoju gościnnego oraz łazienka. Na komfortowo rozplanowanym poddaszu mieści się strefa nocna domu, podzielona na dwie części. Jedna z nich to sypialnia małżeńska i mniejsza łazienka, zaś druga to dwie sypialnie, duża łazienka z miejscem zarówno na wannę, jak i kabinę prysznicową oraz pomieszczenie gospodarcze z funkcją pralni. W projekcie przewidziano ogrzewanie kotłem na gaz. Możliwa jest zmiana ogrzewania na pompę ciepła.
CZYTAJ WIĘCEJ

Medulin (DCP405)
BD44278
Powierzchnia użytkowa
Łączna powierzchnia tzw. pomieszczeń użytkowych. Przede wszystkim nie zalicza się do niej powierzchni garażu, nieużytkowego strychu, piwnicy, kotłowni.
156,05 m2
Liczba pokoi
5
Liczba łazienek
3
Garaż
1
Powierzchnia zabudowy
Powierzchnia zajmowana przez budynek na działce. W praktyce tzw. powierzchnia rzutu budynku wyznaczana po obrysie ścian zewnętrznych.
152,05 m2