Astrid (mała) G2








Charakterystyka: dom
parterowy z poddaszem użytkowym, niepodpiwniczony, z garażem dwustanowiskowym
Przeznaczenie: dom dla 4-5-osobowej
rodziny
Technologia
i konstrukcja:
Fundamenty:
ławy, bloczki betonowe 24 cm, ocieplenie styropian 15 cm
Ściany
zewnętrzne: murowane, dwuwarstwowe, beton komórkowy firmy H+H
24 cm, ocieplenie 20 cm
Ściany
wewnętrzne: murowane, beton komórkowy firmy H+H 24 cm i 11,5
cm
Strop: międzypiętrowy
gęstożebrowy Teriva
Dach: konstrukcja
drewniana, ocieplenie wełna mineralna ISOVER 30 cm, dachówka ceramiczna firmy Röben
Inne: schody
wewnętrzne drewniane
Rozwiązania
instalacyjne:
Ogrzewanie:
kocioł gazowy kondensacyjny, rozprowadzenie ciepła: grzejniki
Wentylacja:
grawitacyjna
OZE: kolektory słoneczne
Wykończenie:
Elewacje: tynk
cienkowarstwowy mineralny w kolorze TO-PA001 i TO-GY011 z palety firmy Termo
Organika, okładzina z płyty HPL z naturalną okleiną drewnianą firmy Prodema i okładzina kamienna
Stolarka: drewniana,
PVC lub aluminiowa, drzwi wejściowe i brama garażowa firmy Hörmann
Okna
połaciowe: rozwiązania technologiczne firmy VELUX
Otoczenie: system tarasowy ProDeck - deska kompozytowa Terra w kolorze orzech
Wersje - zapytaj o dostępność:
- Astrid
(mała) G1 – dom z poddaszem
do adaptacji, podobny układ funkcjonalny, dach o kącie nachylenia 30°, mniejsza
powierzchnia użytkowa, węższy budynek, z garażem jednostanowiskowym
- Astrid
(mała) II – dom z poddaszem do
adaptacji, mniejsza powierzchnia użytkowa, podobny układ funkcjonalny, dach o
kącie nachylenia 30°, węższy budynek, z garażem jedno- i dwustanowiskowym
- Astrid
– dom z poddaszem do adaptacji, mniejsza powierzchnia użytkowa, podobny układ
funkcjonalny, dach o kącie nachylenia 30°, szerszy budynek, z garażem jedno- i
dwustanowiskowym
- Astrid
II – dom z poddaszem użytkowym,
większa powierzchnia użytkowa, podobny układ funkcjonalny parteru, dach o kącie
nachylenia 35°, szerszy budynek, z garażem jedno- i dwustanowiskowym
- Astrid III – dom z poddaszem
użytkowym, większa powierzchnia użytkowa, podobny układ funkcjonalny parteru,
dach o kącie nachylenia 35°, szerszy budynek, z garażem jedno- i
dwustanowiskowym
Warianty z instalacjami energooszczędnymi:
pompą ciepła, wentylacją mechaniczną, systemem solarnym i ogrzewaniem
podłogowym:
- Astrid (mała) II ENERGO
PLUS – dom z poddaszem do adaptacji, mniejsza powierzchnia użytkowa, podobny
układ funkcjonalny, dach o kącie nachylenia 30°, węższy budynek, z garażem
jedno- i dwustanowiskowym
- Astrid III ENERGO
PLUS
– dom z poddaszem użytkowym, większa powierzchnia użytkowa, podobny układ
funkcjonalny parteru, dach o kącie nachylenia 35°, szerszy budynek, z garażem
jedno- i dwustanowiskowym
- Każda wersja z inną propozycją wykończenia elewacji
- Odbicie lustrzane do każdej wersji
Istnieje techniczna możliwość:
- podpiwniczenia budynku
- wykonania budynku w technologii szkieletowej
Atuty projektu okiem architekta:
- Nowoczesna kompozycja elewacji w ciepłym kolorze
beżu, szarości i bieli
- Reprezentacyjny salon z kominkiem oferujący
wiele możliwości aranżacji
- Duże przeszklenia od strony ogrodu oraz w
jadalni
- Zacieniony taras w podcieniu
- Wygodne zadaszenie nad wejściem do budynku jako
osłona przed wiatrem i śniegiem
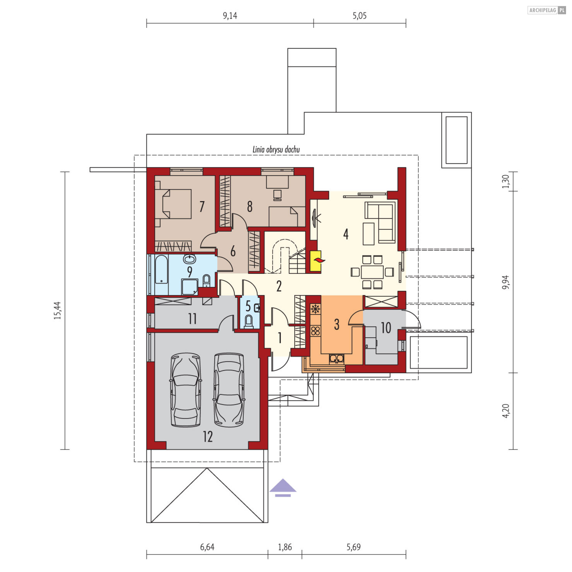
- Strefa nocna zlokalizowana zarówno na parterze,
jak i poddaszu wychodząca naprzeciw potrzebom mieszkańców w różnym wieku
- Praktyczna część gospodarcza domu: na parterze –
kotłownia oraz pomieszczenie przy kuchni mogące służyć za spiżarnię, a także
zlokalizowana przy łazience na poddaszu przestrzeń z przeznaczeniem np. na
pralnię z suszarnią
