Lorenzo G2








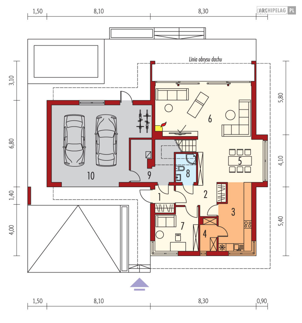
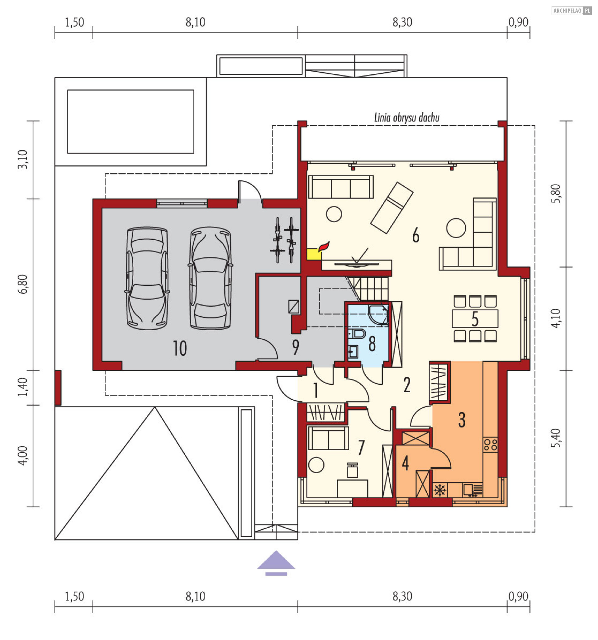
Charakterystyka: Dom piętrowy, niepodpiwniczony,
z garażem dwustanowiskowym
Przeznaczenie:
Dom dla 4-5 osobowej rodziny
Technologia i konstrukcja:
Ściany zewnętrzne: murowane, trójwarstwowe z pustaków ceramicznych
Strop: gęstożebrowy
Dach: konstrukcja drewniana, dachówka ceramiczna Röben. Więźba dachowa
dostępna również w systemie prefabrykacji drewnianej.
Rozwiązania instalacyjne:
Ogrzewanie: kocioł gazowy, rozprowadzenie ciepła: grzejniki
Wentylacja: grawitacyjna
Wykończenie:
Elewacje: warstwa licowa elewacji z
cegły klinkierowej firmy Röben, w dwóch kolorach. Cokoły, elementy nadprożowe i
parapety z cegły klinkierowej Röben
Stolarka: drewniana lub PCV
Inne: elementy tarasów i chodników z
cegły klinkierowe i kostki brukowej Röben
Wersje - zapytaj o dostępność:
- Lorenzo G1 – z garażem jednostanowiskowym
- Lorenzo – bez garażu
- Odbicia lustrzane do wszystkich wersji
Istnieje techniczna możliwość:
- podpiwniczenia budynku
- zbliźniaczenia
- wykonania domu dwulokalowego
-
Zmiany w projekcie0 zł
-
Teczka na dokumentację0 zł
-
1800 na start1 800 zł
-
Kosztorysy do projektów1 200 zł
-
Wentylacja mechaniczna1 000 zł
-
Pompa ciepła700 zł
-
Panele fotowoltaiczne500 zł
-
Ogrzewanie podłogowe700 zł
-
Centralny odkurzacz200 zł
-
Inteligentny dom400 zł
-
Oczyszczalnia ścieków300 zł
-
Szambo przydomowe200 zł
-
Ogrodzenie domu350 zł
-
Zagospodarowanie wody deszczowej300 zł
-
Dziennik budowy9,90 zł

opieką konsultacyjną w trakcie budowy domu
