Rodrigo III G1








Charakterystyka: Dom piętrowy, niepodpiwniczony, z garażem jednostanowiskowym
Przeznaczenie: Dom dla 3-4 osobowej rodziny
Technologia i konstrukcja:
Ściany zewnętrzne: murowane dwuwarstwowe, bloczki beton komórkowy 24 cm, ocieplenie wełna mineralna 12 cm
Strop: gęstożebrowy Teriva, ocieplenie wełna mineralna Isover 30 cm
Dach: konstrukcja drewniana, dachówka ceramiczna Röben
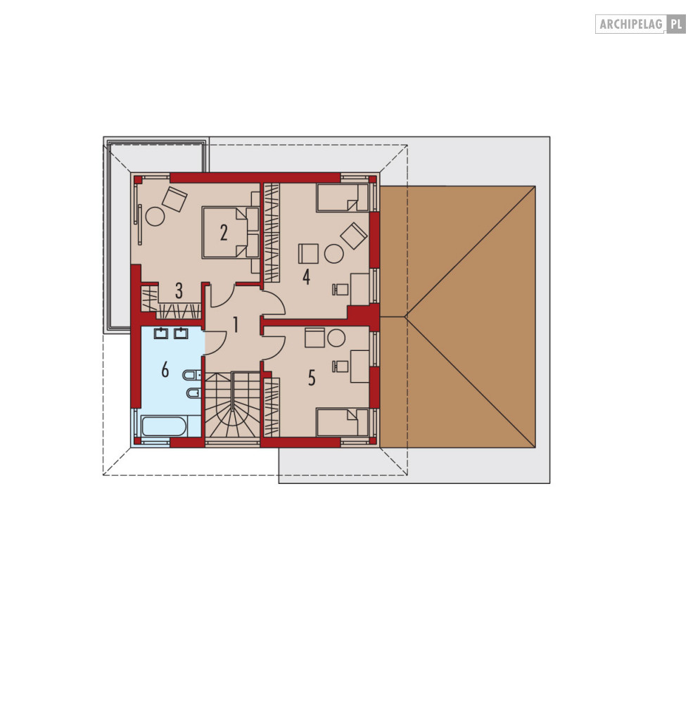
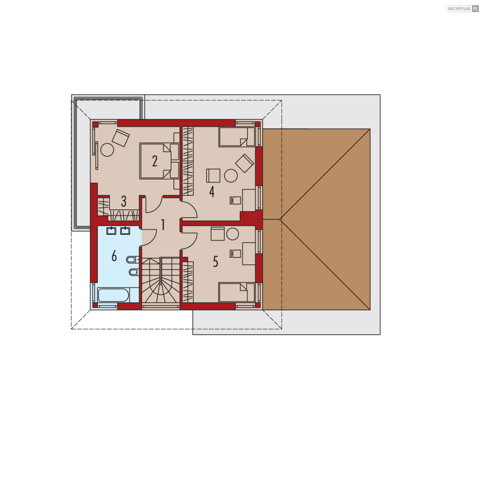
Inne: Schody wewnętrzne drewniane
Rozwiązania instalacyjne:
Ogrzewanie: kocioł gazowy, rozprowadzenie ciepła: grzejniki
Wentylacja: grawitacyjna
OZE: kolektory słoneczne
Wykończenie:
Elewacje: tynk mineralny oraz okładzina drewniana lub drewnopochodna. Cokół
kamienny lub wykończony tynkiem akrylowym
Stolarka: drewniana lub PCV
Wersje w serii Rodrigo - zapytaj o dostępność:
- Rodrigo G2 Leca®DOM – dom w technologii Leca® KERAMZYT
- Rodrigo II – dom w technologii murowanej z betonu komórkowego i cegły
wapienno-piaskowej
- Rodrigo III - inne wykończenie elewacji
- Rodrigo IV – dom w technologii ścian trójwarstwowych z ceramiki
poryzowanej
- Rodrigo G2 Multi-Comfort - dom w standardzie Multi-Comfort Grupy
Saint-Gobain
- wszystkie wersje o podobnym układzie funkcji oraz z inną
propozycją wykończenia elewacji
- różne warianty garaży dla każdej wersji
- odbicie lustrzane do każdej wersji
Wszystkie wersje domów możliwe w dwóch standardach/wariantach
instalacyjnych:
- ENERGO: kocioł gazowy kondensacyjny, grzejniki, wentylacja
grawitacyjna, OZE: kolektory słoneczne
- ENERGO PLUS: pompa ciepła, ogrzewanie podłogowe, wentylacja
mechaniczna, OZE: kolektory słoneczne lub panele fotowoltaiczne
Istnieją techniczne możliwości wykonania
zmian:
- podpiwniczenia budynku
- zbliźniaczenia

