Onyks 4 (SI)
Dodaj do porównania
Usuń z porównania
Dodaj do ulubionych
Usuń z ulubionych
Pow. użytkowa:
263.35m2
Pow. zabudowy:
274.11m2
Koszt budowy:
1308000zł
Liczba pokoi:
3
Liczba łazienek:
3
Garaż:
1
Rzuty

Lustrzane odbicie
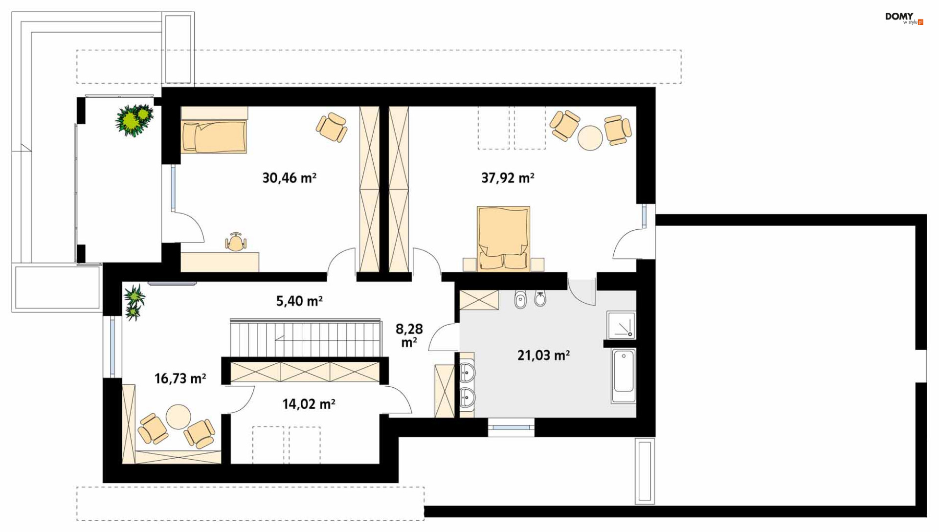
Rzut parteru
211.03 m2
hol
14.42 m2
kuchnia
13.42 m2
jadalnia
17.82 m2
salon
42.7 m2
gabinet
24.54 m2
korytarz/komunikacja
4.3 m2
łazienka
6.24 m2
WC
2.11 m2
pomieszczenie gospodarcze
5.83 m2
kotłownia
8.28 m2
garaż
71.37 m2
Pobierz rysunki szczegółowe
Zapytaj, co możesz zmienić

Lustrzane odbicie
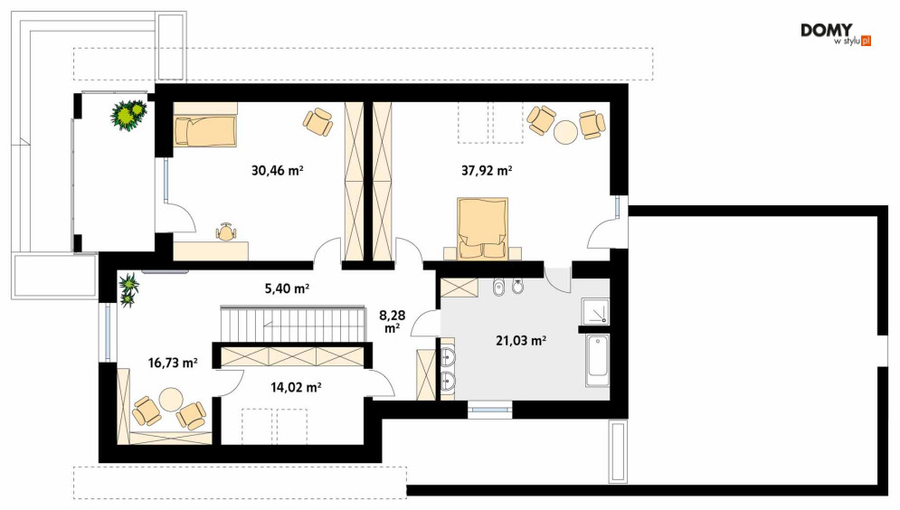
Rzut poddasza
123.69 m2
korytarz/komunikacja
8.28 m2
pomieszczenie gospodarcze
11.85 m2
pomieszczenie rekreacyjne
15.28 m2
korytarz/komunikacja
5.4 m2
pokój
27.55 m2
pokój
34.3 m2
łazienka
21.03 m2
Pobierz rysunki szczegółowe
Zapytaj, co możesz zmienić

Lustrzane odbicie
Pobierz rysunki szczegółowe
Zapytaj, co możesz zmienić
Zamów rysunki szczegółowe
Zapoznaj się ze szczegółowymi rysunkami rzutów kondygnacji w PDF dla tego projektu.
ZAMAWIAM

Elewacje

Frontowa

Ogrodowa

Lewa

Prawa
Specyfikacja techniczna
Główne parametry
Powierzchnia użytkowa
263,35 m2
Łączna powierzchnia tzw. pomieszczeń użytkowych. Przede wszystkim nie zalicza się do niej powierzchni garażu, nieużytkowego strychu, piwnicy, kotłowni.
Liczba pokoi
3
Liczba łazienek
3
Garaż
1
Powierzchnia zabudowy
274,11 m2
Powierzchnia zajmowana przez budynek na działce. W praktyce tzw. powierzchnia rzutu budynku wyznaczana po obrysie ścian zewnętrznych.
Pełna specyfikacja
Maksymalna wysokość budynku
9,63 m
Wysokość wyznaczona od poziomu terenu do najwyżej położonej części dachu (np. kalenicy), zwykle bez uwzględnienia kominów.
Kąt nachylenia dachu
35,00°
Nachylenie połaci dachu podane w stopniach.
Minimalne wymiary działki (szerokość)
32,20 m
Szerokość działki wyznaczona przy założeniu, że minimalna odległość budynku od granic działki wynosi przynajmniej 3 m w przypadku ścian bez otworów okiennych lub drzwiowych, albo 4 m w przypadku ścian budynku z takimi otworami.
Minimalne wymiary działki (długość)
22,00 m
Długość działki wyznaczona przy założeniu, że minimalna odległość budynku od granic działki wynosi przynajmniej 3 m w przypadku ścian bez otworów okiennych lub drzwiowych, albo 4 m w przypadku ścian budynku z takimi otworami.
Technologia budowy
Murowany
Typ dachu
Dwuspadowy
Kształt dachu – płaski, jednospadowy (jedna skośna połać), dwuspadowy (dwie połacie), wielospadowy (w praktyce o przynajmniej czterech połaciach).
Energooszczędność
Standardowy
Energooszczędny – dom o zapotrzebowaniu na tzw. nieodnawialna energię pierwotną (EP) niższym, niż wymagana przepisami maksymalna wartość.
Typ zabudowy
Jednorodzinny
Koszt: Wykoczńenie
48 035 zł
Powierzchnia garażu
71,37 m2
Kubatura budynku
904,49 m3
Objętość budynku, zwykle wraz z elementami konstrukcyjnymi (ścianami, stropami itd.).
Szerokość budynku
25,00 m
Maksymalna szerokość budynku wraz z grubością izolacji cieplnej oraz okładzin ściennych.
Długość budynku
13,00 m
Maksymalna długość budynku wraz z grubością izolacji cieplnej oraz okładzin ściennych.
W stylu
Nowoczesnym
Liczba kondygnacji
Z poddaszem użytkowym
Za kondygnacje uznawane są również poddasza użytkowe oraz piwnice. Kondygnacją nie jest natomiast poddasze nieużytkowe ani antresola.
Koszty
Koszty budowy
1 308 000 zł
Koszt: Stan pod klucz
Obejmuje koszt wszystkich robót stanu surowego, wykonania instalacji wewnętrznych oraz robót wykończeniowych.
840 000 zł
Koszt: Stan surowy zamknięty
Koszt wzniesienia budynku wraz z pokryciem dachu i stolarką zewnętrzną (okna i drzwi). Bez instalacji, ocieplenia i robót wykończeniowych.
Opis
Onyks 4 to nowoczesny dom jednorodzinny z użytkowym poddaszem idealny dla 4-osobowej rodziny. Bryła budynku łączy w sobie cechy zarówno domu nowoczesnego oraz tradycyjnego. Dwuspadowy dach w połączeniu z nowoczesnym wykończeniem elewacji frontowej tworzy intrygujący efekt końcowy. Na parterze oprócz kuchni z jadalnią oraz salonu, znajduje się apartament gospodarzy z własną łazienką oraz garderobą. Na poddaszu dodatkowo zaprojektowano dwie sypialnie, łazienkę oraz kącik rekreacyjny idealny do zagłębienia się w lekturze. Niewątpliwym atutem projektu jest dwustanowiskowy garaż oraz rozległy taras zlokalizowany tuż nad nim.

Onyks 4 (SI)
BD45183
Powierzchnia użytkowa
Łączna powierzchnia tzw. pomieszczeń użytkowych. Przede wszystkim nie zalicza się do niej powierzchni garażu, nieużytkowego strychu, piwnicy, kotłowni.
263,35 m2
Liczba pokoi
3
Liczba łazienek
3
Garaż
1
Powierzchnia zabudowy
Powierzchnia zajmowana przez budynek na działce. W praktyce tzw. powierzchnia rzutu budynku wyznaczana po obrysie ścian zewnętrznych.
274,11 m2
Inne wersje projektu
PODOBNE PROJEKTY
