Tercja 7 (CE)
Dodaj do porównania
Usuń z porównania
Dodaj do ulubionych
Usuń z ulubionych
Pow. użytkowa:
268.93m2
Pow. zabudowy:
238.64m2
Koszt budowy:
1318000zł
Liczba pokoi:
7
Liczba łazienek:
3
Rzuty

Lustrzane odbicie
Rzut piwnica
63.42 m2
pomieszczenie gospodarcze
36.57 m2
kotłownia
26.85 m2
Pobierz rysunki szczegółowe
Zapytaj, co możesz zmienić

Lustrzane odbicie
Rzut parteru
179.15 m2
wiatrołap
7.04 m2
garderoba
2.62 m2
korytarz/komunikacja
16.58 m2
kuchnia
15.04 m2
spiżarnia
2.6 m2
pomieszczenie gospodarcze
5.68 m2
gabinet
27.11 m2
salon/jadalnia
47 m2
sypialnia
30.28 m2
sypialnia
16.72 m2
łazienka
6.64 m2
WC
1.84 m2
Pobierz rysunki szczegółowe
Zapytaj, co możesz zmienić

Lustrzane odbicie
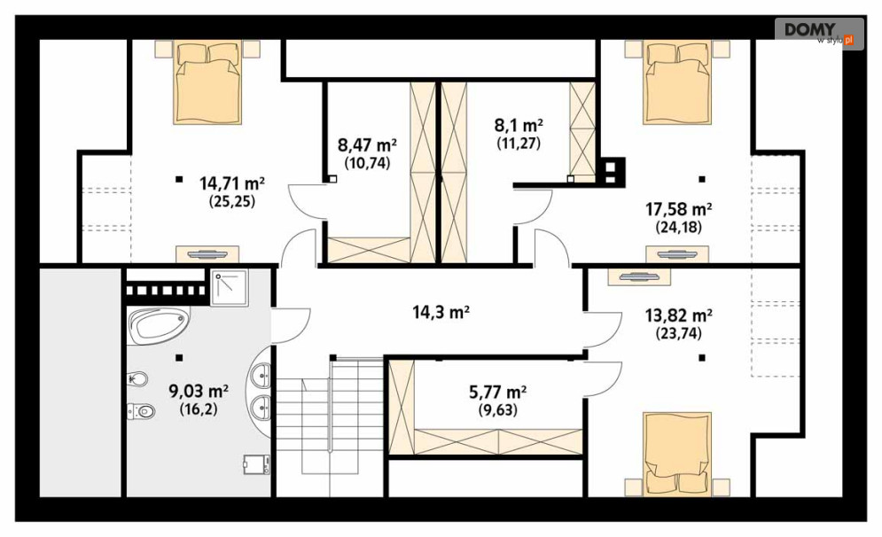
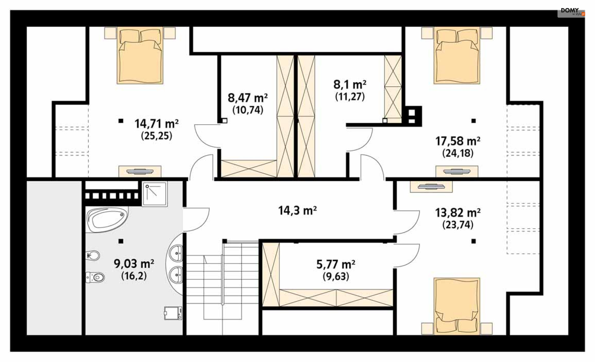
Rzut poddasza
91.78 m2
korytarz/komunikacja
14.3 m2
łazienka
9.03 m2
sypialnia
14.71 m2
garderoba
8.47 m2
garderoba
8.1 m2
sypialnia
17.58 m2
sypialnia
13.82 m2
garderoba
5.77 m2
Pobierz rysunki szczegółowe
Zapytaj, co możesz zmienić

Lustrzane odbicie
Pobierz rysunki szczegółowe
Zapytaj, co możesz zmienić
Zamów rysunki szczegółowe
Zapoznaj się ze szczegółowymi rysunkami rzutów kondygnacji w PDF dla tego projektu.
ZAMAWIAM

Elewacje

Frontowa

Ogrodowa

Lewa

Prawa
Specyfikacja techniczna
Główne parametry
Powierzchnia użytkowa
268,93 m2
Łączna powierzchnia tzw. pomieszczeń użytkowych. Przede wszystkim nie zalicza się do niej powierzchni garażu, nieużytkowego strychu, piwnicy, kotłowni.
Liczba pokoi
7
Liczba łazienek
3
Powierzchnia zabudowy
238,64 m2
Powierzchnia zajmowana przez budynek na działce. W praktyce tzw. powierzchnia rzutu budynku wyznaczana po obrysie ścian zewnętrznych.
Pełna specyfikacja
Maksymalna wysokość budynku
8,32 m
Wysokość wyznaczona od poziomu terenu do najwyżej położonej części dachu (np. kalenicy), zwykle bez uwzględnienia kominów.
Kąt nachylenia dachu
35,00°
Nachylenie połaci dachu podane w stopniach.
Minimalne wymiary działki (szerokość)
27,99 m
Szerokość działki wyznaczona przy założeniu, że minimalna odległość budynku od granic działki wynosi przynajmniej 3 m w przypadku ścian bez otworów okiennych lub drzwiowych, albo 4 m w przypadku ścian budynku z takimi otworami.
Minimalne wymiary działki (długość)
21,95 m
Długość działki wyznaczona przy założeniu, że minimalna odległość budynku od granic działki wynosi przynajmniej 3 m w przypadku ścian bez otworów okiennych lub drzwiowych, albo 4 m w przypadku ścian budynku z takimi otworami.
Technologia budowy
Murowany
Typ dachu
Wielospadowy
Kształt dachu – płaski, jednospadowy (jedna skośna połać), dwuspadowy (dwie połacie), wielospadowy (w praktyce o przynajmniej czterech połaciach).
Energooszczędność
Energooszczędny
Energooszczędny – dom o zapotrzebowaniu na tzw. nieodnawialna energię pierwotną (EP) niższym, niż wymagana przepisami maksymalna wartość.
Przystosowany pod instalacje
kotła na paliwa stałe
Typ zabudowy
Jednorodzinny
Koszt: Wykoczńenie
57 198 zł
Kubatura budynku
1 225,00 m3
Objętość budynku, zwykle wraz z elementami konstrukcyjnymi (ścianami, stropami itd.).
Szerokość budynku
19,99 m
Maksymalna szerokość budynku wraz z grubością izolacji cieplnej oraz okładzin ściennych.
Długość budynku
11,89 m
Maksymalna długość budynku wraz z grubością izolacji cieplnej oraz okładzin ściennych.
EK (energia końcowa)
11,02 kWh/m2 rok
EUCO (energia użytkowa)
8,18 kWh/m2 rok
W stylu
Dworkowym
Liczba kondygnacji
Z poddaszem użytkowym
Za kondygnacje uznawane są również poddasza użytkowe oraz piwnice. Kondygnacją nie jest natomiast poddasze nieużytkowe ani antresola.
Koszty
Koszty budowy
1 318 000 zł
Koszt: Stan pod klucz
Obejmuje koszt wszystkich robót stanu surowego, wykonania instalacji wewnętrznych oraz robót wykończeniowych.
858 000 zł
Koszt: Stan surowy zamknięty
Koszt wzniesienia budynku wraz z pokryciem dachu i stolarką zewnętrzną (okna i drzwi). Bez instalacji, ocieplenia i robót wykończeniowych.
Koszty utrzymania
EP = 13,53 kWh/m2 rok
Oznacza ilość energii nieodnawialnej, jaką budynek może pozyskiwać z nieodnawialnych surowców energetycznych, czyli energii zawartej w paliwach i nośnikach takich jak węgiel, gaz czy ropa naftowa.
Opis
Tercja 7 jest dużym domem jednorodzinnym z poddaszem użytkowym oraz piwnicą utrzymanym w stylu "dworkowym". Projekt szczególnie polecany licznej rodzinie. Na parterze usytuowano strefy: dzienną (kuchnia, salon z jadalnią i gabinet), nocną (dwie sypialnie, łazienka, wc). Na poddaszu znajdują się trzy sypianie z garderobami, łazienka z pralnią oraz ogólnodostępna garderoba. W piwnicy znajduje się duża kotłownia oraz pomieszczenie rekreacyjne. Projekt posiada charakterystyczną bryłę, nawiązującą do tradycji polskiego dworu.

Tercja 7 (CE)
BD45879
Powierzchnia użytkowa
Łączna powierzchnia tzw. pomieszczeń użytkowych. Przede wszystkim nie zalicza się do niej powierzchni garażu, nieużytkowego strychu, piwnicy, kotłowni.
268,93 m2
Liczba pokoi
7
Liczba łazienek
3
Powierzchnia zabudowy
Powierzchnia zajmowana przez budynek na działce. W praktyce tzw. powierzchnia rzutu budynku wyznaczana po obrysie ścian zewnętrznych.
238,64 m2
Inne wersje projektu
PODOBNE PROJEKTY
