Amber 3 (CE)
Dodaj do porównania
Usuń z porównania
Dodaj do ulubionych
Usuń z ulubionych
Pow. użytkowa:
193.57m2
Pow. zabudowy:
161m2
Koszt budowy:
961000zł
Liczba pokoi:
6
Liczba łazienek:
3
Garaż:
1
Rzuty

Lustrzane odbicie
Rzut piwnica
102.63 m2
pomieszczenie gospodarcze
23.91 m2
kotłownia
6.67 m2
skład opału
6.41 m2
pomieszczenie gospodarcze
21.89 m2
schody
6.06 m2
garaż
37.69 m2
Pobierz rysunki szczegółowe
Zapytaj, co możesz zmienić

Lustrzane odbicie
Rzut parteru
122.51 m2
wiatrołap
2.78 m2
hol
12.64 m2
kuchnia/jadalnia
21.89 m2
salon
29.32 m2
garderoba
2.33 m2
WC
1.8 m2
korytarz/komunikacja
2.12 m2
pokój
17.26 m2
łazienka
4.26 m2
wiatrołap
3.93 m2
kuchnia
6.25 m2
sypialnia
10.57 m2
schody
7.36 m2
Pobierz rysunki szczegółowe
Zapytaj, co możesz zmienić

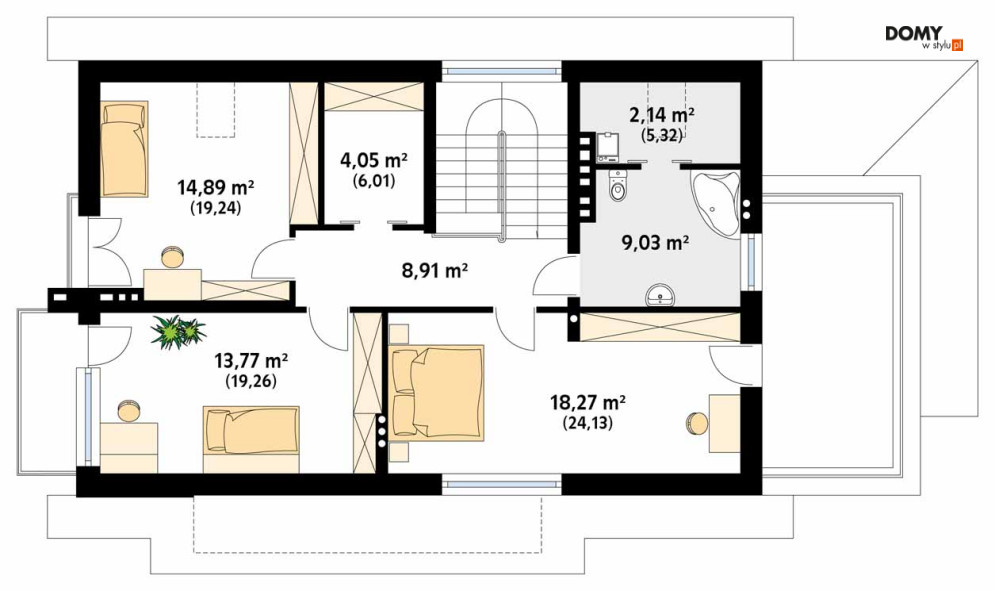
Lustrzane odbicie
Rzut poddasza
71.06 m2
korytarz/komunikacja
8.91 m2
sypialnia
13.77 m2
sypialnia
14.89 m2
pomieszczenie gospodarcze
4.05 m2
pralnia
2.14 m2
łazienka
9.03 m2
sypialnia
18.27 m2
Pobierz rysunki szczegółowe
Zapytaj, co możesz zmienić

Lustrzane odbicie
Pobierz rysunki szczegółowe
Zapytaj, co możesz zmienić
Zamów rysunki szczegółowe
Zapoznaj się ze szczegółowymi rysunkami rzutów kondygnacji w PDF dla tego projektu.
ZAMAWIAM

Elewacje

Frontowa

Ogrodowa

Lewa

Prawa
Specyfikacja techniczna
Główne parametry
Powierzchnia użytkowa
193,57 m2
Łączna powierzchnia tzw. pomieszczeń użytkowych. Przede wszystkim nie zalicza się do niej powierzchni garażu, nieużytkowego strychu, piwnicy, kotłowni.
Liczba pokoi
6
Liczba łazienek
3
Garaż
1
Powierzchnia zabudowy
161,00 m2
Powierzchnia zajmowana przez budynek na działce. W praktyce tzw. powierzchnia rzutu budynku wyznaczana po obrysie ścian zewnętrznych.
Pełna specyfikacja
Maksymalna wysokość budynku
8,49 m
Wysokość wyznaczona od poziomu terenu do najwyżej położonej części dachu (np. kalenicy), zwykle bez uwzględnienia kominów.
Kąt nachylenia dachu
40,00°
Nachylenie połaci dachu podane w stopniach.
Minimalne wymiary działki (szerokość)
26,94 m
Szerokość działki wyznaczona przy założeniu, że minimalna odległość budynku od granic działki wynosi przynajmniej 3 m w przypadku ścian bez otworów okiennych lub drzwiowych, albo 4 m w przypadku ścian budynku z takimi otworami.
Minimalne wymiary działki (długość)
19,25 m
Długość działki wyznaczona przy założeniu, że minimalna odległość budynku od granic działki wynosi przynajmniej 3 m w przypadku ścian bez otworów okiennych lub drzwiowych, albo 4 m w przypadku ścian budynku z takimi otworami.
Technologia budowy
Murowany
Typ dachu
Dwuspadowy
Kształt dachu – płaski, jednospadowy (jedna skośna połać), dwuspadowy (dwie połacie), wielospadowy (w praktyce o przynajmniej czterech połaciach).
Energooszczędność
Energooszczędny
Energooszczędny – dom o zapotrzebowaniu na tzw. nieodnawialna energię pierwotną (EP) niższym, niż wymagana przepisami maksymalna wartość.
Przystosowany pod instalacje
kotła na paliwa stałe
Koszt: Wykoczńenie
32 400 zł
Powierzchnia garażu
37,69 m2
Kubatura budynku
1 026,64 m3
Objętość budynku, zwykle wraz z elementami konstrukcyjnymi (ścianami, stropami itd.).
Szerokość budynku
18,24 m
Maksymalna szerokość budynku wraz z grubością izolacji cieplnej oraz okładzin ściennych.
Długość budynku
10,25 m
Maksymalna długość budynku wraz z grubością izolacji cieplnej oraz okładzin ściennych.
EK (energia końcowa)
60,39 kWh/m2 rok
EUCO (energia użytkowa)
19,56 kWh/m2 rok
W stylu
Nowoczesnym
Liczba kondygnacji
Z poddaszem użytkowym
Za kondygnacje uznawane są również poddasza użytkowe oraz piwnice. Kondygnacją nie jest natomiast poddasze nieużytkowe ani antresola.
Koszty
Koszty budowy
961 000 zł
Koszt: Stan pod klucz
Obejmuje koszt wszystkich robót stanu surowego, wykonania instalacji wewnętrznych oraz robót wykończeniowych.
617 000 zł
Koszt: Stan surowy zamknięty
Koszt wzniesienia budynku wraz z pokryciem dachu i stolarką zewnętrzną (okna i drzwi). Bez instalacji, ocieplenia i robót wykończeniowych.
Koszty utrzymania
EP = 56,58 kWh/m2 rok
Oznacza ilość energii nieodnawialnej, jaką budynek może pozyskiwać z nieodnawialnych surowców energetycznych, czyli energii zawartej w paliwach i nośnikach takich jak węgiel, gaz czy ropa naftowa.
Opis
Energooszczędny dom dwurodzinny o nowoczesnej bryle, idealny na pochyły teren. Jest to budynek dwurodzinny z oddzielnymi wejściami. Pierwsze mieszkanie ma na parterze część dzienną: salon z kuchnią i wc oraz na poddaszu trzy sypialnie i łazienkę z pralnią. Drugie mieszkanie znajduje się na parterze i zawiera salon, kuchnię, sypialnię i łazienkę. Zaprojektowano również piwnicę z dwustanowiskowym garażem dostępną z dwóch mieszkań.
Dodatki do projektu
Opieka konsultacyjna
0zł
599 zł
Prenumerata 12 tytułów
0zł
599 zł
-
Bioz0 zł
-
Charakterystyka energetyczna0 zł
-
Dziennik budowy0 zł
-
Rzut w skali 1 5000 zł
-
Zgoda na zmiany0 zł
Prenumerata 12 tytułów
0zł
599 zł
-
Dodatkowy egzemplarz projektu1 875 zł
-
Elektroniczna wersja projektu938 zł
-
Kosztorys650 zł
-
Rekuperacja750 zł
-
Schemat szamba60 zł

Amber 3 (CE)
BD46260
Powierzchnia użytkowa
Łączna powierzchnia tzw. pomieszczeń użytkowych. Przede wszystkim nie zalicza się do niej powierzchni garażu, nieużytkowego strychu, piwnicy, kotłowni.
193,57 m2
Liczba pokoi
6
Liczba łazienek
3
Garaż
1
Powierzchnia zabudowy
Powierzchnia zajmowana przez budynek na działce. W praktyce tzw. powierzchnia rzutu budynku wyznaczana po obrysie ścian zewnętrznych.
161,00 m2
Kup projekt
6 249 zł
Projekt + opieka konsultacyjna
Tylko u nas
kupujesz projekt wraz z
opieką konsultacyjną w trakcie budowy domu
opieką konsultacyjną w trakcie budowy domu
Kup projekt
6 249 zł
Masz pytania?
Zadzwoń!
22 257 84 76
pon-pt: 9-17