Przytulny (SI)
Dodaj do porównania
Usuń z porównania
Dodaj do ulubionych
Usuń z ulubionych
Pow. użytkowa:
1990.35m2
Pow. zabudowy:
655.42m2
Koszt budowy:
9076000zł
Rzuty

Lustrzane odbicie
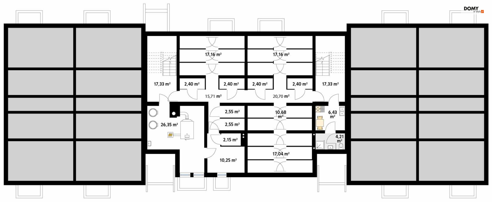
Rzut piwnica
197.2 m2
schody
17.33 m2
korytarz/komunikacja
15.71 m2
korytarz/komunikacja
20.7 m2
schody
17.33 m2
pomieszczenie pomocnicze
6.43 m2
pomieszczenie pomocnicze
4.21 m2
pomieszczenie pomocnicze
2.15 m2
skład opału
10.25 m2
kotłownia
26.35 m2
pomieszczenie gospodarcze
2.4 m2
pomieszczenie gospodarcze
17.16 m2
pomieszczenie gospodarcze
2.4 m2
pomieszczenie gospodarcze
2.4 m2
pomieszczenie gospodarcze
17.16 m2
pomieszczenie gospodarcze
2.4 m2
pomieszczenie gospodarcze
2.55 m2
pomieszczenie gospodarcze
2.55 m2
pomieszczenie gospodarcze
10.68 m2
pomieszczenie gospodarcze
17.04 m2
Pobierz rysunki szczegółowe
Zapytaj, co możesz zmienić

Lustrzane odbicie
Pobierz rysunki szczegółowe
Zapytaj, co możesz zmienić

Lustrzane odbicie
Pobierz rysunki szczegółowe
Zapytaj, co możesz zmienić
Zamów rysunki szczegółowe
Zapoznaj się ze szczegółowymi rysunkami rzutów kondygnacji w PDF dla tego projektu.
ZAMAWIAM

Elewacje

Frontowa

Ogrodowa

Lewa

Prawa
Specyfikacja techniczna
Główne parametry
Powierzchnia użytkowa
1 990,35 m2
Łączna powierzchnia tzw. pomieszczeń użytkowych. Przede wszystkim nie zalicza się do niej powierzchni garażu, nieużytkowego strychu, piwnicy, kotłowni.
Powierzchnia zabudowy
655,42 m2
Powierzchnia zajmowana przez budynek na działce. W praktyce tzw. powierzchnia rzutu budynku wyznaczana po obrysie ścian zewnętrznych.
Pełna specyfikacja
Maksymalna wysokość budynku
14,48 m
Wysokość wyznaczona od poziomu terenu do najwyżej położonej części dachu (np. kalenicy), zwykle bez uwzględnienia kominów.
Kąt nachylenia dachu
40,00°
Nachylenie połaci dachu podane w stopniach.
Technologia budowy
Murowany
Typ dachu
Dwuspadowy
Kształt dachu – płaski, jednospadowy (jedna skośna połać), dwuspadowy (dwie połacie), wielospadowy (w praktyce o przynajmniej czterech połaciach).
Energooszczędność
Standardowy
Energooszczędny – dom o zapotrzebowaniu na tzw. nieodnawialna energię pierwotną (EP) niższym, niż wymagana przepisami maksymalna wartość.
Przystosowany pod instalacje
kotła na paliwa stałe
Kubatura budynku
4 380,65 m3
Objętość budynku, zwykle wraz z elementami konstrukcyjnymi (ścianami, stropami itd.).
Szerokość budynku
45,75 m
Maksymalna szerokość budynku wraz z grubością izolacji cieplnej oraz okładzin ściennych.
Długość budynku
15,35 m
Maksymalna długość budynku wraz z grubością izolacji cieplnej oraz okładzin ściennych.
Liczba kondygnacji
Piętrowe
Za kondygnacje uznawane są również poddasza użytkowe oraz piwnice. Kondygnacją nie jest natomiast poddasze nieużytkowe ani antresola.
Koszty
Koszty budowy
9 076 000 zł
Koszt: Stan pod klucz
Obejmuje koszt wszystkich robót stanu surowego, wykonania instalacji wewnętrznych oraz robót wykończeniowych.
5 772 000 zł
Koszt: Stan surowy zamknięty
Koszt wzniesienia budynku wraz z pokryciem dachu i stolarką zewnętrzną (okna i drzwi). Bez instalacji, ocieplenia i robót wykończeniowych.
Opis
Przytulny to projekt budynku wielorodzinnego, w którym zaprojektowano 28 lokali mieszkalnych na trzech kondygnacjach. Budynek wyróżnia się dwuspadowym dachem oraz drewnianymi elementami wykończenia elewacji oraz balkonów. W budynku znajduje się piwnica, w której wyodrębniono kotłownię, liczne pomieszczenia pomocnicze oraz komórki lokatorskie. Projekt został podzielony na trzy segmenty, zróżnicowane pod kątem ilości i funkcjonalności mieszkań w nich zawartych. Dwa skrajne segmenty są swoim odbiciem lustrzanym i zawierają po jedenaście mieszkań o powierzchni od 33 m2 do 73 m2. W środkowej części budynku zaprojektowano dwa 74 -metrowe mieszkania oraz cztery mieszkania dwupoziomowe o powierzchni 89 m2.
Dodatki do projektu
Opieka konsultacyjna
0zł
599 zł
Prenumerata 12 tytułów
0zł
599 zł
-
Bioz0 zł
-
Dziennik budowy0 zł
-
Kosztorys0 zł
-
Rzut w skali 1 5000 zł
-
Zgoda na zmiany0 zł
Prenumerata 12 tytułów
0zł
599 zł
-
Dodatkowy egzemplarz projektu31 860 zł
-
Elektroniczna wersja projektu15 930 zł
-
Rekuperacja600 zł
-
Schemat szamba60 zł

Przytulny (SI)
BD46428
Powierzchnia użytkowa
Łączna powierzchnia tzw. pomieszczeń użytkowych. Przede wszystkim nie zalicza się do niej powierzchni garażu, nieużytkowego strychu, piwnicy, kotłowni.
1 990,35 m2
Powierzchnia zabudowy
Powierzchnia zajmowana przez budynek na działce. W praktyce tzw. powierzchnia rzutu budynku wyznaczana po obrysie ścian zewnętrznych.
655,42 m2
Kup projekt
106 200 zł
Projekt + opieka konsultacyjna
Tylko u nas
kupujesz projekt wraz z
opieką konsultacyjną w trakcie budowy domu
opieką konsultacyjną w trakcie budowy domu
Kup projekt
106 200 zł
Masz pytania?
Zadzwoń!
22 257 84 76
pon-pt: 9-17
