Azuryt (KO)
Dodaj do porównania
Usuń z porównania
Dodaj do ulubionych
Usuń z ulubionych
Pow. użytkowa:
122.08m2
Pow. zabudowy:
117.44m2
Koszt budowy:
606000zł
Liczba pokoi:
5
Liczba łazienek:
2
Garaż:
1
Rzuty

Lustrzane odbicie
Rzut parteru
89.26 m2
wiatrołap
3.82 m2
korytarz/komunikacja
11.76 m2
garderoba
5.65 m2
łazienka
3.72 m2
pokój
8.92 m2
salon
24.83 m2
kuchnia
8.93 m2
kotłownia
5.41 m2
garaż
16.22 m2
Pobierz rysunki szczegółowe
Zapytaj, co możesz zmienić

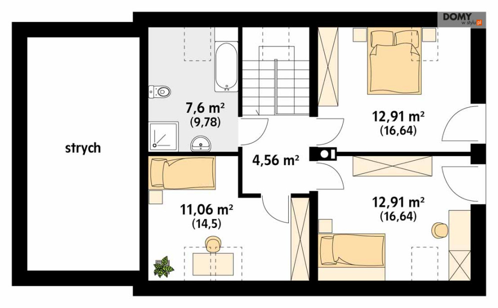
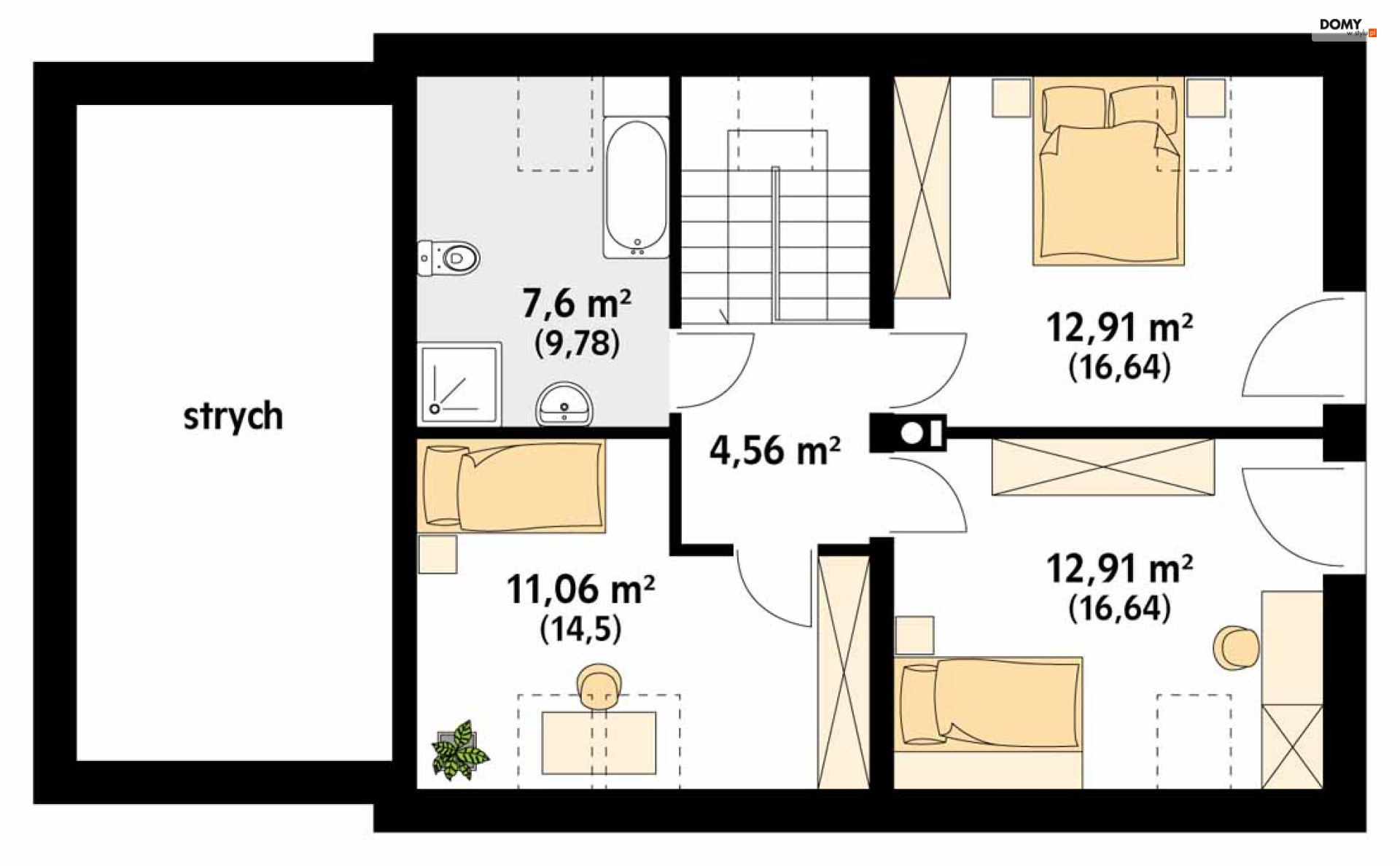
Lustrzane odbicie
Rzut poddasza
49.04 m2
korytarz/komunikacja
4.56 m2
łazienka
7.6 m2
pokój
12.91 m2
pokój
12.91 m2
pokój
11.06 m2
Pobierz rysunki szczegółowe
Zapytaj, co możesz zmienić

Lustrzane odbicie
Pobierz rysunki szczegółowe
Zapytaj, co możesz zmienić
Zamów rysunki szczegółowe
Zapoznaj się ze szczegółowymi rysunkami rzutów kondygnacji w PDF dla tego projektu.
ZAMAWIAM

Elewacje

Frontowa

Ogrodowa

Lewa

Prawa
Specyfikacja techniczna
Główne parametry
Powierzchnia użytkowa
122,08 m2
Łączna powierzchnia tzw. pomieszczeń użytkowych. Przede wszystkim nie zalicza się do niej powierzchni garażu, nieużytkowego strychu, piwnicy, kotłowni.
Liczba pokoi
5
Liczba łazienek
2
Garaż
1
Powierzchnia zabudowy
117,44 m2
Powierzchnia zajmowana przez budynek na działce. W praktyce tzw. powierzchnia rzutu budynku wyznaczana po obrysie ścian zewnętrznych.
Pełna specyfikacja
Maksymalna wysokość budynku
8,88 m
Wysokość wyznaczona od poziomu terenu do najwyżej położonej części dachu (np. kalenicy), zwykle bez uwzględnienia kominów.
Kąt nachylenia dachu
45,00°
Nachylenie połaci dachu podane w stopniach.
Minimalne wymiary działki (szerokość)
24,59 m
Szerokość działki wyznaczona przy założeniu, że minimalna odległość budynku od granic działki wynosi przynajmniej 3 m w przypadku ścian bez otworów okiennych lub drzwiowych, albo 4 m w przypadku ścian budynku z takimi otworami.
Minimalne wymiary działki (długość)
17,85 m
Długość działki wyznaczona przy założeniu, że minimalna odległość budynku od granic działki wynosi przynajmniej 3 m w przypadku ścian bez otworów okiennych lub drzwiowych, albo 4 m w przypadku ścian budynku z takimi otworami.
Technologia budowy
Murowany
Typ dachu
Dwuspadowy
Kształt dachu – płaski, jednospadowy (jedna skośna połać), dwuspadowy (dwie połacie), wielospadowy (w praktyce o przynajmniej czterech połaciach).
Energooszczędność
Energooszczędny
Energooszczędny – dom o zapotrzebowaniu na tzw. nieodnawialna energię pierwotną (EP) niższym, niż wymagana przepisami maksymalna wartość.
Przystosowany pod instalacje
kotła na paliwa stałe
Typ zabudowy
Jednorodzinny
Koszt: Wykoczńenie
23 271 zł
Powierzchnia garażu
16,22 m2
Kubatura budynku
650,74 m3
Objętość budynku, zwykle wraz z elementami konstrukcyjnymi (ścianami, stropami itd.).
Szerokość budynku
14,10 m
Maksymalna szerokość budynku wraz z grubością izolacji cieplnej oraz okładzin ściennych.
Długość budynku
8,45 m
Maksymalna długość budynku wraz z grubością izolacji cieplnej oraz okładzin ściennych.
EK (energia końcowa)
74,91 kWh/m2 rok
EUCO (energia użytkowa)
34,04 kWh/m2 rok
W stylu
Tradycyjnym,
Nowoczesnym
Liczba kondygnacji
Z poddaszem użytkowym
Za kondygnacje uznawane są również poddasza użytkowe oraz piwnice. Kondygnacją nie jest natomiast poddasze nieużytkowe ani antresola.
Koszty
Koszty budowy
606 000 zł
Koszt: Stan pod klucz
Obejmuje koszt wszystkich robót stanu surowego, wykonania instalacji wewnętrznych oraz robót wykończeniowych.
355 000 zł
Koszt: Stan surowy zamknięty
Koszt wzniesienia budynku wraz z pokryciem dachu i stolarką zewnętrzną (okna i drzwi). Bez instalacji, ocieplenia i robót wykończeniowych.
Koszty utrzymania
EP = 18,04 kWh/m2 rok
Oznacza ilość energii nieodnawialnej, jaką budynek może pozyskiwać z nieodnawialnych surowców energetycznych, czyli energii zawartej w paliwach i nośnikach takich jak węgiel, gaz czy ropa naftowa.
Opis
Azuryt jest projektem energooszczędnym, skrojonym na miarę potrzeb 4-osobowej rodziny. Charakteryzuje się prostą bryłą przykrytą dwuspadowym dachem. Stanowi umiejętne połączeniem tradycyjnej bryły z nowoczesną stylistyką. Do budynku przylega jednostanowiskowy garaż ze sporą kotłownią, posiadającą wejście od strony elewacji ogrodowej. Przestrzeń parteru wypełnia salon połączony z aneksem kuchennym - tworząc spójną całość. Dodatkowo na parterze znajduje się pokój/gabinet. Na poddaszu zaprojektowano trzy sypialnie oraz łazienkę. Projekt Azuryt posiada trzy wersje zagospodarowania przestrzeni nad garażem.

Azuryt (KO)
BD48269
Powierzchnia użytkowa
Łączna powierzchnia tzw. pomieszczeń użytkowych. Przede wszystkim nie zalicza się do niej powierzchni garażu, nieużytkowego strychu, piwnicy, kotłowni.
122,08 m2
Liczba pokoi
5
Liczba łazienek
2
Garaż
1
Powierzchnia zabudowy
Powierzchnia zajmowana przez budynek na działce. W praktyce tzw. powierzchnia rzutu budynku wyznaczana po obrysie ścian zewnętrznych.
117,44 m2