Bursztyn (CE)
Dodaj do porównania
Usuń z porównania
Dodaj do ulubionych
Usuń z ulubionych
Pow. użytkowa:
285.01m2
Pow. zabudowy:
282.94m2
Koszt budowy:
1512000zł
Liczba pokoi:
4
Liczba łazienek:
3
Garaż:
1
Rzuty

Lustrzane odbicie
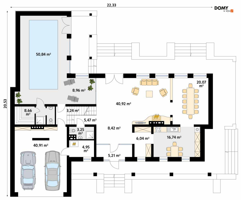
Rzut parteru
223.68 m2
wiatrołap
5.21 m2
hol
8.42 m2
łazienka
3.25 m2
korytarz/komunikacja
5.47 m2
schody
3.24 m2
sauna
8.66 m2
basen
50.84 m2
oranżeria
8.96 m2
salon
40.92 m2
jadalnia
20.07 m2
kuchnia/jadalnia
16.74 m2
spiżarnia
6.04 m2
kotłownia
4.95 m2
garaż
40.91 m2
Pobierz rysunki szczegółowe
Zapytaj, co możesz zmienić

Lustrzane odbicie
Pobierz rysunki szczegółowe
Zapytaj, co możesz zmienić
Zamów rysunki szczegółowe
Zapoznaj się ze szczegółowymi rysunkami rzutów kondygnacji w PDF dla tego projektu.
ZAMAWIAM

Elewacje

Frontowa

Ogrodowa

Lewa

Prawa
Specyfikacja techniczna
Główne parametry
Powierzchnia użytkowa
285,01 m2
Łączna powierzchnia tzw. pomieszczeń użytkowych. Przede wszystkim nie zalicza się do niej powierzchni garażu, nieużytkowego strychu, piwnicy, kotłowni.
Liczba pokoi
4
Liczba łazienek
3
Garaż
1
Powierzchnia zabudowy
282,94 m2
Powierzchnia zajmowana przez budynek na działce. W praktyce tzw. powierzchnia rzutu budynku wyznaczana po obrysie ścian zewnętrznych.
Pełna specyfikacja
Maksymalna wysokość budynku
8,48 m
Wysokość wyznaczona od poziomu terenu do najwyżej położonej części dachu (np. kalenicy), zwykle bez uwzględnienia kominów.
Kąt nachylenia dachu
16,00°
Nachylenie połaci dachu podane w stopniach.
Minimalne wymiary działki (szerokość)
30,59 m
Szerokość działki wyznaczona przy założeniu, że minimalna odległość budynku od granic działki wynosi przynajmniej 3 m w przypadku ścian bez otworów okiennych lub drzwiowych, albo 4 m w przypadku ścian budynku z takimi otworami.
Minimalne wymiary działki (długość)
29,53 m
Długość działki wyznaczona przy założeniu, że minimalna odległość budynku od granic działki wynosi przynajmniej 3 m w przypadku ścian bez otworów okiennych lub drzwiowych, albo 4 m w przypadku ścian budynku z takimi otworami.
Technologia budowy
Murowany
Typ dachu
Wielospadowy
Kształt dachu – płaski, jednospadowy (jedna skośna połać), dwuspadowy (dwie połacie), wielospadowy (w praktyce o przynajmniej czterech połaciach).
Energooszczędność
Standardowy
Energooszczędny – dom o zapotrzebowaniu na tzw. nieodnawialna energię pierwotną (EP) niższym, niż wymagana przepisami maksymalna wartość.
Typ zabudowy
Jednorodzinny
Koszt: Wykoczńenie
35 556 zł
Powierzchnia garażu
40,91 m2
Kubatura budynku
1 498,87 m3
Objętość budynku, zwykle wraz z elementami konstrukcyjnymi (ścianami, stropami itd.).
Szerokość budynku
22,33 m
Maksymalna szerokość budynku wraz z grubością izolacji cieplnej oraz okładzin ściennych.
Długość budynku
20,53 m
Maksymalna długość budynku wraz z grubością izolacji cieplnej oraz okładzin ściennych.
EK (energia końcowa)
100,90 kWh/m2 rok
EUCO (energia użytkowa)
82,34 kWh/m2 rok
W stylu
Tradycyjnym,
Nowoczesnym
Liczba kondygnacji
Piętrowe
Za kondygnacje uznawane są również poddasza użytkowe oraz piwnice. Kondygnacją nie jest natomiast poddasze nieużytkowe ani antresola.
Koszty
Koszty budowy
1 512 000 zł
Koszt: Stan pod klucz
Obejmuje koszt wszystkich robót stanu surowego, wykonania instalacji wewnętrznych oraz robót wykończeniowych.
992 000 zł
Koszt: Stan surowy zamknięty
Koszt wzniesienia budynku wraz z pokryciem dachu i stolarką zewnętrzną (okna i drzwi). Bez instalacji, ocieplenia i robót wykończeniowych.
Koszty utrzymania
EP = 114,82 kWh/m2 rok
Oznacza ilość energii nieodnawialnej, jaką budynek może pozyskiwać z nieodnawialnych surowców energetycznych, czyli energii zawartej w paliwach i nośnikach takich jak węgiel, gaz czy ropa naftowa.
Opis
Dom jednorodzinny dwukondygnacyjny, przeznaczony dla 4 – 5-osobowej rodziny. Cechuje go duże otwarcie przestrzeni parteru oraz zwarta część poddasza z pomieszczeniem do odpoczynku, które może być adaptowane na oddzielną sypialnię z łazienką. Dodatkowym atutem domu jest basen mieszczący się w obniżonej części budynku.
Dodatki do projektu
Opieka konsultacyjna
0zł
599 zł
Prenumerata 12 tytułów
0zł
599 zł
-
Bioz0 zł
-
Charakterystyka energetyczna0 zł
-
Dziennik budowy0 zł
-
Rzut w skali 1 5000 zł
-
Zgoda na zmiany0 zł
Prenumerata 12 tytułów
0zł
599 zł
-
Dodatkowy egzemplarz projektu3 255 zł
-
Elektroniczna wersja projektu1 628 zł
-
Kosztorys700 zł
-
Rekuperacja1 200 zł
-
Schemat szamba60 zł

Bursztyn (CE)
BD49374
Powierzchnia użytkowa
Łączna powierzchnia tzw. pomieszczeń użytkowych. Przede wszystkim nie zalicza się do niej powierzchni garażu, nieużytkowego strychu, piwnicy, kotłowni.
285,01 m2
Liczba pokoi
4
Liczba łazienek
3
Garaż
1
Powierzchnia zabudowy
Powierzchnia zajmowana przez budynek na działce. W praktyce tzw. powierzchnia rzutu budynku wyznaczana po obrysie ścian zewnętrznych.
282,94 m2
Kup projekt
10 849 zł
Projekt + opieka konsultacyjna
Tylko u nas
kupujesz projekt wraz z
opieką konsultacyjną w trakcie budowy domu
opieką konsultacyjną w trakcie budowy domu
Kup projekt
10 849 zł
Masz pytania?
Zadzwoń!
22 257 84 76
pon-pt: 9-17
Inne wersje projektu
