Bazalt (SI)
Dodaj do porównania
Usuń z porównania
Dodaj do ulubionych
Usuń z ulubionych
Pow. użytkowa:
322.01m2
Pow. zabudowy:
316.77m2
Koszt budowy:
1709000zł
Liczba pokoi:
7
Liczba łazienek:
4
Garaż:
1
Rzuty

Lustrzane odbicie
Rzut parteru
246.47 m2
wiatrołap
6.3 m2
korytarz/komunikacja
24.42 m2
garderoba
2.53 m2
pomieszczenie gospodarcze
2.53 m2
łazienka
3.38 m2
pokój
20.89 m2
pokój
13.06 m2
łazienka
17.18 m2
oranżeria
6.22 m2
salon
37.85 m2
jadalnia
18.85 m2
kuchnia
11.59 m2
kotłownia
17.46 m2
garaż
54.7 m2
schody
9.51 m2
Pobierz rysunki szczegółowe
Zapytaj, co możesz zmienić

Lustrzane odbicie
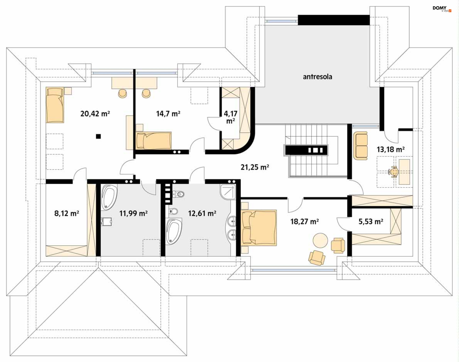
Rzut poddasza
130.24 m2
korytarz/komunikacja
21.25 m2
sypialnia
18.27 m2
garderoba
5.53 m2
łazienka
12.61 m2
łazienka
11.99 m2
sypialnia
20.42 m2
garderoba
8.12 m2
sypialnia
14.7 m2
garderoba
4.17 m2
gabinet
13.18 m2
Pobierz rysunki szczegółowe
Zapytaj, co możesz zmienić

Lustrzane odbicie
Pobierz rysunki szczegółowe
Zapytaj, co możesz zmienić
Zamów rysunki szczegółowe
Zapoznaj się ze szczegółowymi rysunkami rzutów kondygnacji w PDF dla tego projektu.
ZAMAWIAM

Elewacje

Frontowa

Ogrodowa

Lewa

Prawa
Specyfikacja techniczna
Główne parametry
Powierzchnia użytkowa
322,01 m2
Łączna powierzchnia tzw. pomieszczeń użytkowych. Przede wszystkim nie zalicza się do niej powierzchni garażu, nieużytkowego strychu, piwnicy, kotłowni.
Liczba pokoi
7
Liczba łazienek
4
Garaż
1
Powierzchnia zabudowy
316,77 m2
Powierzchnia zajmowana przez budynek na działce. W praktyce tzw. powierzchnia rzutu budynku wyznaczana po obrysie ścian zewnętrznych.
Pełna specyfikacja
Maksymalna wysokość budynku
9,43 m
Wysokość wyznaczona od poziomu terenu do najwyżej położonej części dachu (np. kalenicy), zwykle bez uwzględnienia kominów.
Kąt nachylenia dachu
38,00°
Nachylenie połaci dachu podane w stopniach.
Minimalne wymiary działki (szerokość)
30,99 m
Szerokość działki wyznaczona przy założeniu, że minimalna odległość budynku od granic działki wynosi przynajmniej 3 m w przypadku ścian bez otworów okiennych lub drzwiowych, albo 4 m w przypadku ścian budynku z takimi otworami.
Minimalne wymiary działki (długość)
29,00 m
Długość działki wyznaczona przy założeniu, że minimalna odległość budynku od granic działki wynosi przynajmniej 3 m w przypadku ścian bez otworów okiennych lub drzwiowych, albo 4 m w przypadku ścian budynku z takimi otworami.
Technologia budowy
Murowany
Typ dachu
Wielospadowy
Kształt dachu – płaski, jednospadowy (jedna skośna połać), dwuspadowy (dwie połacie), wielospadowy (w praktyce o przynajmniej czterech połaciach).
Energooszczędność
Energooszczędny
Energooszczędny – dom o zapotrzebowaniu na tzw. nieodnawialna energię pierwotną (EP) niższym, niż wymagana przepisami maksymalna wartość.
Przystosowany pod instalacje
kotła na paliwa stałe
Typ zabudowy
Jednorodzinny
Koszt: Wykoczńenie
75 813 zł
Powierzchnia garażu
54,70 m2
Kubatura budynku
1 120,00 m3
Objętość budynku, zwykle wraz z elementami konstrukcyjnymi (ścianami, stropami itd.).
Szerokość budynku
22,69 m
Maksymalna szerokość budynku wraz z grubością izolacji cieplnej oraz okładzin ściennych.
Długość budynku
18,02 m
Maksymalna długość budynku wraz z grubością izolacji cieplnej oraz okładzin ściennych.
EK (energia końcowa)
19,81 kWh/m2 rok
EUCO (energia użytkowa)
25,14 kWh/m2 rok
W stylu
Tradycyjnym,
Nowoczesnym
Liczba kondygnacji
Z poddaszem użytkowym
Za kondygnacje uznawane są również poddasza użytkowe oraz piwnice. Kondygnacją nie jest natomiast poddasze nieużytkowe ani antresola.
Koszty
Koszty budowy
1 709 000 zł
Koszt: Stan pod klucz
Obejmuje koszt wszystkich robót stanu surowego, wykonania instalacji wewnętrznych oraz robót wykończeniowych.
1 121 000 zł
Koszt: Stan surowy zamknięty
Koszt wzniesienia budynku wraz z pokryciem dachu i stolarką zewnętrzną (okna i drzwi). Bez instalacji, ocieplenia i robót wykończeniowych.
Koszty utrzymania
EP = 35,77 kWh/m2 rok
Oznacza ilość energii nieodnawialnej, jaką budynek może pozyskiwać z nieodnawialnych surowców energetycznych, czyli energii zawartej w paliwach i nośnikach takich jak węgiel, gaz czy ropa naftowa.
Opis
Jednorodzinny dom parterowy z użytkowym poddaszem w stylu rezydencji. Przeznaczony dla 6-osobowej rodziny. Na parterze przewidziano przestronną część dzienną: salon, jadalnię, otwartą kuchnię. Wzbogacono ją o oranżerię i antresolę. Zaprojektowano także dwa dodatkowe pokoje. Na poddaszu przewidziano cztery sypialnie z garderobami oraz dwie łazienki. Mimo zachowania klimatu rezydencji budynek posiada ciekawe, nowoczesne elewacje.
Dodatki do projektu
Opieka konsultacyjna
0zł
599 zł
Prenumerata 12 tytułów
0zł
599 zł
-
Bioz0 zł
-
Charakterystyka energetyczna0 zł
-
Dziennik budowy0 zł
-
Rzut w skali 1 5000 zł
-
Zgoda na zmiany0 zł
Prenumerata 12 tytułów
0zł
599 zł
-
Dodatkowy egzemplarz projektu3 255 zł
-
Elektroniczna wersja projektu1 628 zł
-
Kosztorys1 000 zł
-
Rekuperacja1 200 zł
-
Schemat szamba60 zł

Bazalt (SI)
BD50066
Powierzchnia użytkowa
Łączna powierzchnia tzw. pomieszczeń użytkowych. Przede wszystkim nie zalicza się do niej powierzchni garażu, nieużytkowego strychu, piwnicy, kotłowni.
322,01 m2
Liczba pokoi
7
Liczba łazienek
4
Garaż
1
Powierzchnia zabudowy
Powierzchnia zajmowana przez budynek na działce. W praktyce tzw. powierzchnia rzutu budynku wyznaczana po obrysie ścian zewnętrznych.
316,77 m2
Kup projekt
10 849 zł
Projekt + opieka konsultacyjna
Tylko u nas
kupujesz projekt wraz z
opieką konsultacyjną w trakcie budowy domu
opieką konsultacyjną w trakcie budowy domu
Kup projekt
10 849 zł
Masz pytania?
Zadzwoń!
22 257 84 76
pon-pt: 9-17
PODOBNE PROJEKTY
