Simon III







Charakterystyka: Dom
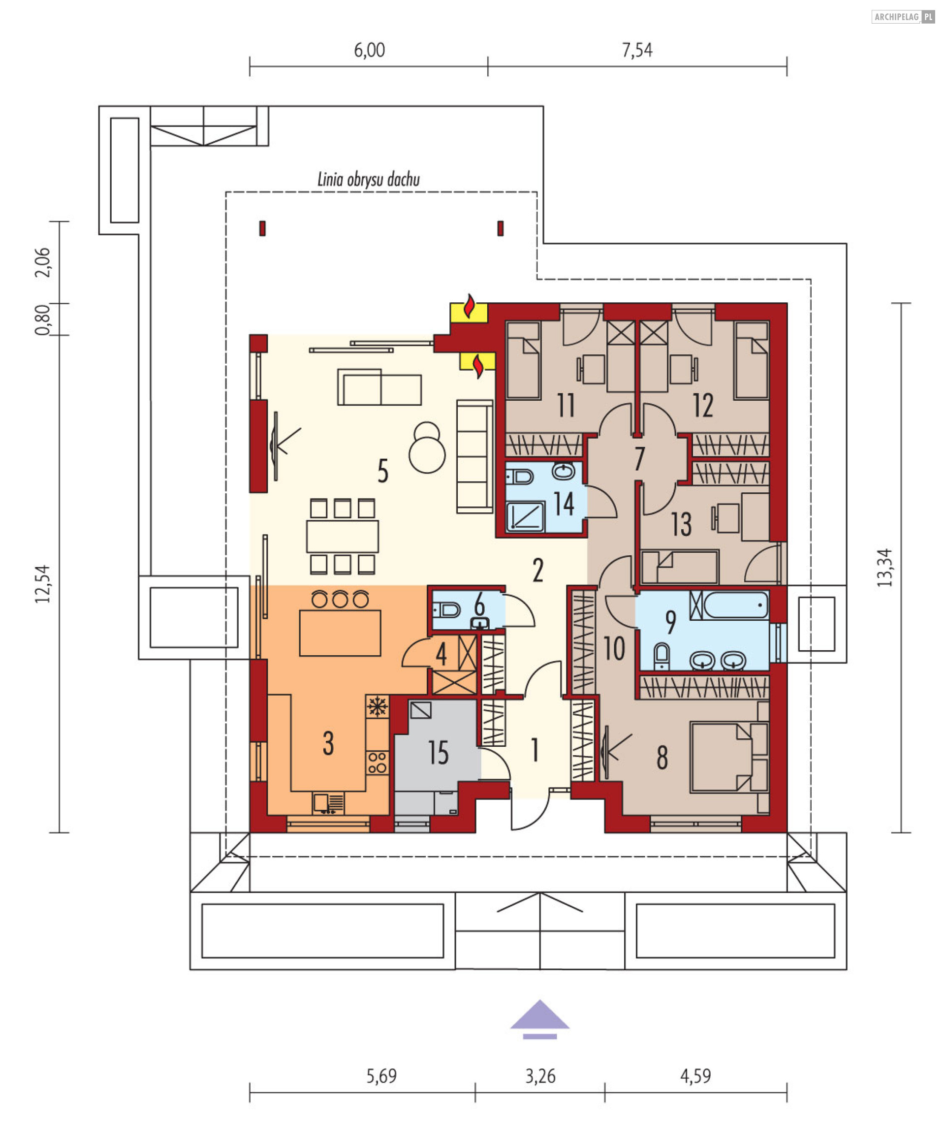
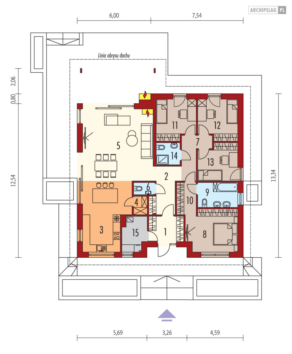
parterowy, niepodpiwniczony, z garażem dwustanowiskowym
Przeznaczenie: Dom dla 4-5-osobowej rodziny
Technologia i
konstrukcja:
Ściany zewnętrzne: murowane, dwuwarstwowe, beton komórkowy firmy H+H 24
cm, ocieplenie styropian Termo Organika 20 cm
Ściany wewnętrzne: nośne i działowe murowane, beton komórkowy firmy
H+H 24 cm i 12 cm
Strop: gęstożebrowy Teriva, ocieplenie wełna mineralna Isover Super-Mata 30 cm
Dach: konstrukcja drewniana, dachówka ceramiczna płaska Bergamo
firmy Röben, więźba dachowa dostępna również w systemie prefabrykacji
drewnianej
Rozwiązania
instalacyjne:
Ogrzewanie: kocioł gazowy kondensacyjny firmy Viessmann,
rozprowadzenie ciepła: grzejniki firmy Purmo
Wentylacja: grawitacyjna
OZE: kolektory słoneczne
firmy Viessmann
Wykończenie:
Elewacje: tynk cienkowarstwowy mineralny w kolorze białym
TO-PA001 z palety firmy Termo Organika, okładzina i podbitki okapu - system
elewacji wentylowanej: deski włóknocementowe Cedral w kolorze drewnopodobnym
CL104 i grafitowym C54
Stolarka: drewniana, PVC lub aluminiowa, drzwi tarasowe
podnoszono-przesuwne typu HS aluminiowo-drewniane INNOVIEW firmy
Fakro, rolety zewnętrzne w systemie QuadBox firmy BeClever, drzwi
wejściowe firmy Hörmann
Otoczenie: kostka betonowa i płyty tarasowe firmy Libet, system
tarasowy ProDeck - deska kompozytowa Terra w kolorze orzech
Wersje domów w
serii Simon - zapytaj o dostępność:
- Simon – dom z poddaszem do adaptacji, 3 sypialnie, dach o kącie
nachylenia 30°
- Simon II – dom z poddaszem użytkowym, 3 sypialnie + gabinet, dach
o kącie nachylenia 35°
- Simon III – dom parterowy, 4 sypialnie, dach o kącie nachylenia
25°
- Simon IV – dom parterowy, 3 sypialnie, dach o kącie nachylenia
25°
- Simon (mały) – dom z poddaszem do adaptacji, mniejsza
powierzchnia użytkowa, 3 sypialnie, dach o kącie nachylenia 35°
- Simon III (wiązary) – system suchej zabudowy ścian
działowych Rigips, wiązary prefabrykowane, rozwiązania
materiałowo-technologiczne Grupy Saint-Gobain, układ funkcji jak w domu Simon
III G2, dom parterowy, 4 sypialnie, dach o kącie nachylenia 25°
- Simon IV (bliźniak) – dom parterowy w zabudowie bliźniaczej, 3
sypialnie, dach o kącie nachylenia 25°
- Simon 01 (dwulokalowy) – dom z dwoma mieszkaniami, z poddaszem do
adaptacji, dach o kącie nachylenia 30°
– wszystkie wersje o podobnym układzie funkcji oraz
z inną propozycją wykończenia elewacji
– wszystkie wersje z trzema wariantami garaży: bez garażu, z
garażem jedno- i dwustanowiskowym (wyjątek: dom dwulokalowy – tylko w wariancie
bez garażu)
– odbicie lustrzane do każdej wersji
Wszystkie wersje
domów możliwe w dwóch standardach/wariantach instalacyjnych:
- ENERGO: kocioł gazowy kondensacyjny, grzejniki, wentylacja
grawitacyjna, OZE: kolektory słoneczne
- ENERGO PLUS: pompa ciepła, ogrzewanie podłogowe, wentylacja
mechaniczna, OZE: kolektory słoneczne lub panele fotowoltaiczne
Istnieją
techniczne możliwości wykonania zmian:
- podpiwniczenia budynku
- zmiany kąta nachylenia dachu do 30° lub 35° i adaptacji poddasza na cele
mieszkalne
- wykonania budynku w technologii szkieletowej
- dokonania zmian funkcjonalnych wg indywidualnych wymagań
Warianty działek dla wersji domu z garażem jedno i dwustanowiskowym:
-
Zmiany w projekcie0 zł
-
Teczka na dokumentację0 zł
-
1800 na start1 800 zł
-
Kosztorysy do projektów1 200 zł
-
Wentylacja mechaniczna1 000 zł
-
Pompa ciepła700 zł
-
Panele fotowoltaiczne500 zł
-
Ogrzewanie podłogowe700 zł
-
Centralny odkurzacz200 zł
-
Inteligentny dom400 zł
-
Oczyszczalnia ścieków300 zł
-
Szambo przydomowe200 zł
-
Ogrodzenie domu350 zł
-
Zagospodarowanie wody deszczowej300 zł
-
Dziennik budowy9,90 zł

opieką konsultacyjną w trakcie budowy domu