Amber







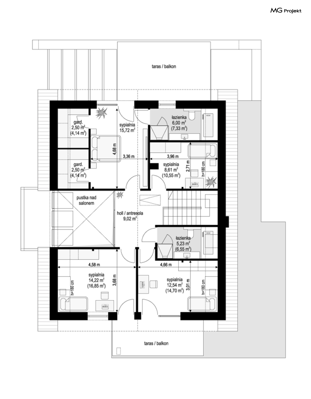
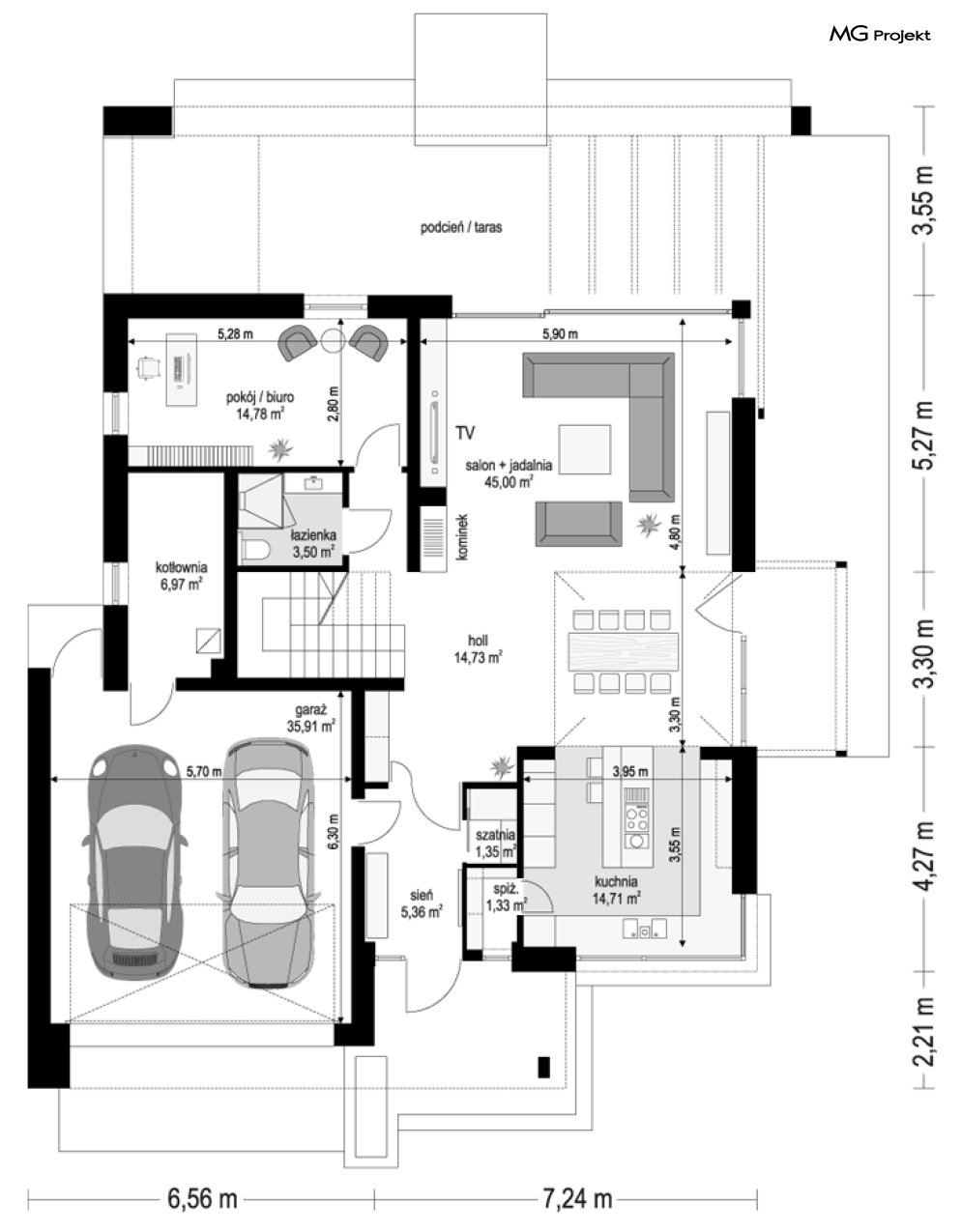
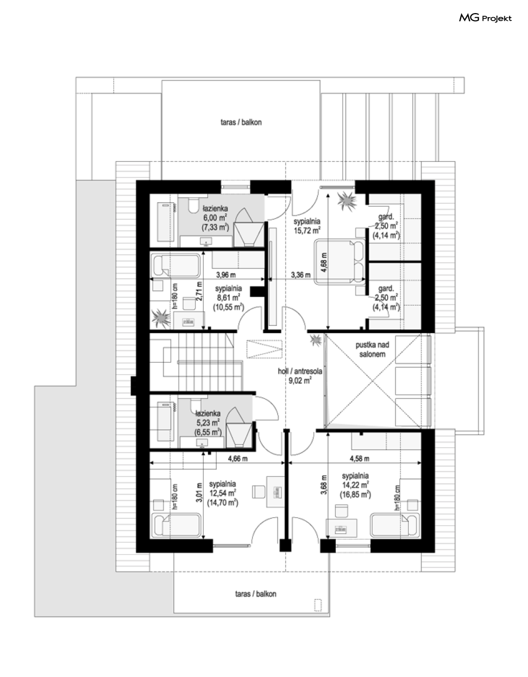
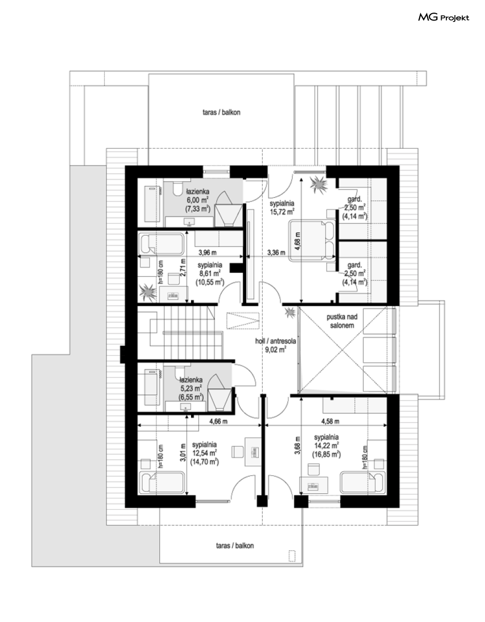
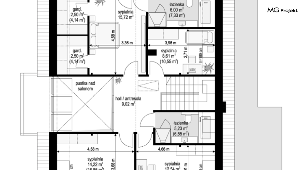
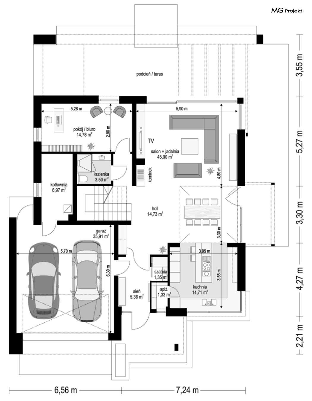
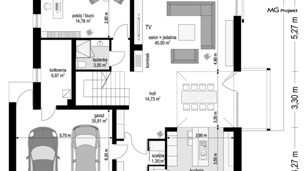
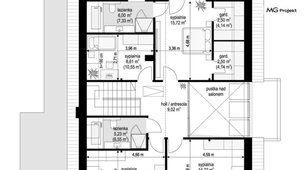
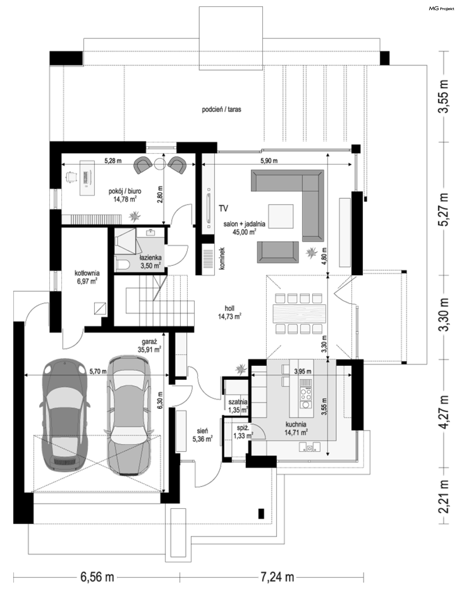
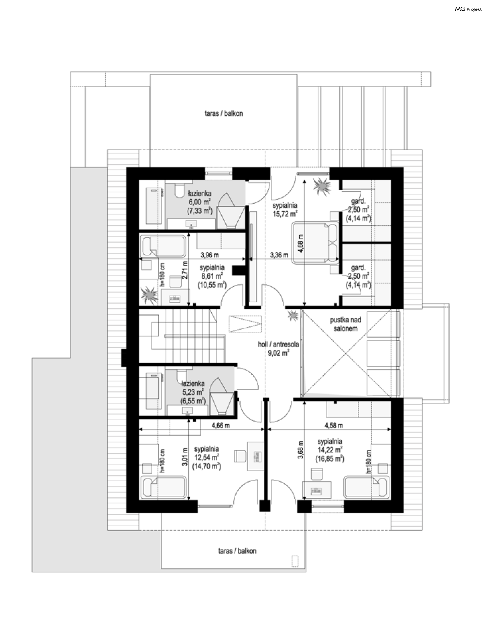
Projekt domu Amber jest to projekt domu jednorodzinnego dla 4-6 osobowej rodziny z serii „Amber”. Jest to projekt domu parterowego z poddaszem użytkowym, zbudowanego na prostokątnym rzucie, przykrytego dwuspadowym dachem, z dobudowaną parterową częścią garażową i zadaszeniem tarasu od strony ogrodu. Budynek zaprojektowano łącząc nowoczesną stylistykę i detale z tradycyjną powściągliwą w formie bryłą. Dwuspadowy dach przykryty dachówką kojarzy się z normalnością i prostotą. Natomiast zastosowane materiały, kontrastujące kolory okładzin ścian, oraz duże przeszklenia okien nadają sylwetce domu nowoczesny styl i dynamiczny wygląd. Elewację frontową ozdobiono pięknym narożnym oknem kuchni, oraz reprezentacyjnym podcieniem wejściowym z szerokimi drzwiami z naświetlami. Od strony elewacji ogrodowej główną rolę gra wielkie okno z salonu na taras i podcień z pergolą. Dodatkowo od strony elewacji bocznej mamy duże dwukondygnacyjne przeszklenie jadalni, dające piorunujący efekt we wnętrzu budynku. Architektura „Ambera” to połączenie skromności i spokoju, z ciekawymi bardzo atrakcyjnymi wizualnie detalami. Do środka domu wchodzimy reprezentacyjnym wejściem, przez przedsionek z szatnią, do holu i salonu z jadalnią. Znajdująca się od frontu kuchnia z wyspą i spiżarnią dopełnia wnętrze dzienne. Salon na części swojej powierzchni ma otwarcie przestrzenne z antresolą nad stołem jadalnym. Meble wypoczynkowe z kolei zaprojektowano naprzeciw ściany telewizyjno-kominkowej i drzwi balkonowych na taras. Na parterze znajduje się jeszcze dodatkowy pokój z łazienką, oraz garaż z kotłownią. Na poddaszu przewidziano cztery pokoje sypialnie z dwiema łazienkami, w tym oddzielny apartament rodziców z własną łazienką i garderobami. Dzięki wysokim ścianom kolankowym pokoje mają małe skosy i przestrzeń podłóg można wykorzystać niemal w całości. Nad poddaszem przewidziano dodatkowo sporą przestrzeń strychową. W budynku zastosowano nowoczesne materiały i technologie, energooszczędne instalacje i dobre izolacje przegród. Dzięki temu koszt późniejszej eksploatacji będzie niski. Dom ma prostą konstrukcję i powinien być łatwy w budowie. „Amber” to propozycja projektu dla Klientów planujących budowę domu średniej wielkości, pragnących komfortowego nowoczesnego domu w tradycyjnej powściągliwej bryle. Zapraszamy do zapoznania się ze wszystkimi domami z tej serii: https://www.mgprojekt.com.pl/amber, https://www.mgprojekt.com.pl/amber-2, https://www.mgprojekt.com.pl/amber-3, https://www.mgprojekt.com.pl/amber-4.
