Celina Oze



Opis projektu Celina OZE – energooszczędny dom z piwnicą
Projekt Celina OZE to dom dla inwestorów szukających domów ekonomicznych w budowie i użytkowaniu, oferujących jednocześnie dużą ilość dostępnej przestrzeni.
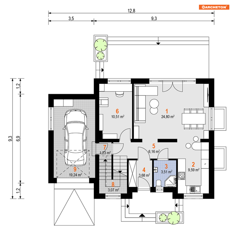
Prostopadłościenną bryłę domu przykryto dwuspadowym dachem. Dzięki zastosowaniu ścianki kolankowej wygospodarowano miejsce na wygodne poddasze użytkowe. W centralnej części frontowej elewacji znajduje się niewielka wnęka, która osłania strefę wejściową. Przy głównej bryle domu znajduje się garaż, który przykryto dachem jednospadowym. Elewacja ogrodowa to przede wszystkim duże przeszklenie zlokalizowane w salonie, które zapewnia komunikację z tarasem. Poddasze doświetlają klasyczne okna umieszczone w ścianach szczytowych. Uzupełniono je o dwa okna połaciowe.
Projekty OZE oferują gotowe rozwiązanie dla osób zdecydowanych na pozyskiwanie energii z odnawialnych źródeł. W projekcie Celina OZE opracowanie techniczne uwzględnia wykorzystanie paneli fotowoltaicznych oraz pompy ciepła. Celina OZE oferuje zwarty układ pomieszczeń zlokalizowanych na trzech poziomach, co pozytywnie przekłada się na niskie koszty eksploatacji. Piwnica to trzy pomieszczenia, w tym pralnia i przestronne pomieszczenie, które można zaaranżować zgodnie z potrzebami. Parter poza salonem i kuchnią oferuje dodatkowy pokój i łazienkę z miejscem na natrysk. Z holu, przez niewielki korytarz można się dostać do garażu. Poddasze to trzy przestronne sypialnie i jedna wspólna łazienka, w której wygospodarowano miejsce na instalację pralki i ewentualnej suszarki.
-
Teczka do przechowywania dokumentacji projektowej0 zł
-
Dziennik budowy0 zł
-
Tablica informacyjna na budowę - po otrzymaniu projektu domu i wypełnieniu ankiety0 zł
-
Zgoda na zmiany0 zł
-
Dokumentacja projektowa w plikach pdf0 zł

opieką konsultacyjną w trakcie budowy domu