Karol Polo
Dodaj do porównania
Usuń z porównania
Dodaj do ulubionych
Usuń z ulubionych
Pow. użytkowa:
132.71m2
Pow. zabudowy:
208.44m2
Koszt budowy:
767000zł
Liczba pokoi:
5
Liczba łazienek:
2
Garaż:
1
Rzuty

Lustrzane odbicie
Pobierz rysunki szczegółowe
Zapytaj, co możesz zmienić
Zamów rysunki szczegółowe
Zapoznaj się ze szczegółowymi rysunkami rzutów kondygnacji w PDF dla tego projektu.
ZAMAWIAM

Specyfikacja techniczna
Główne parametry
Powierzchnia użytkowa
132,71 m2
Łączna powierzchnia tzw. pomieszczeń użytkowych. Przede wszystkim nie zalicza się do niej powierzchni garażu, nieużytkowego strychu, piwnicy, kotłowni.
Liczba pokoi
5
Liczba łazienek
2
Garaż
1
Powierzchnia zabudowy
208,44 m2
Powierzchnia zajmowana przez budynek na działce. W praktyce tzw. powierzchnia rzutu budynku wyznaczana po obrysie ścian zewnętrznych.
Pełna specyfikacja
Kąt nachylenia dachu
30,00°
Nachylenie połaci dachu podane w stopniach.
Minimalne wymiary działki (szerokość)
22,90 m
Szerokość działki wyznaczona przy założeniu, że minimalna odległość budynku od granic działki wynosi przynajmniej 3 m w przypadku ścian bez otworów okiennych lub drzwiowych, albo 4 m w przypadku ścian budynku z takimi otworami.
Minimalne wymiary działki (długość)
24,30 m
Długość działki wyznaczona przy założeniu, że minimalna odległość budynku od granic działki wynosi przynajmniej 3 m w przypadku ścian bez otworów okiennych lub drzwiowych, albo 4 m w przypadku ścian budynku z takimi otworami.
Piwnica
Tak
Technologia budowy
Murowany
Typ dachu
Wielospadowy
Kształt dachu – płaski, jednospadowy (jedna skośna połać), dwuspadowy (dwie połacie), wielospadowy (w praktyce o przynajmniej czterech połaciach).
Typ zabudowy
Jednorodzinny
Powierzchnia garażu
33,94 m2
Powierzchnia netto budynku
172,17 m2
Łączna powierzchnia wszystkich kondygnacjach obliczana z pominięciem elementów
konstrukcyjnych (ściany nośne, słupy itp.) ale wraz z powierzchnią zajmowaną przez ścianki działowe lub inne elementy, które można potencjalnie zdemontować.
Powierzchnia całkowita budynku
208,44 m2
Łączna powierzchnia wszystkich kondygnacjach obliczana po obrysie ścian zewnętrznych, wraz z powierzchnią zajmowaną przez ściany wewnętrzne.
Kubatura budynku
1,07 m3
Objętość budynku, zwykle wraz z elementami konstrukcyjnymi (ścianami, stropami itd.).
Szerokość budynku
14,94 m
Maksymalna szerokość budynku wraz z grubością izolacji cieplnej oraz okładzin ściennych.
Długość budynku
16,34 m
Maksymalna długość budynku wraz z grubością izolacji cieplnej oraz okładzin ściennych.
Strop
dolny pas wiązarów MITEK
Sposób ogrzewania
Kocioł na gaz
W stylu
Tradycyjnym
Liczba kondygnacji
Parterowe
Za kondygnacje uznawane są również poddasza użytkowe oraz piwnice. Kondygnacją nie jest natomiast poddasze nieużytkowe ani antresola.
Koszty
Koszty budowy
767 000 zł
Koszt: Stan pod klucz
Obejmuje koszt wszystkich robót stanu surowego, wykonania instalacji wewnętrznych oraz robót wykończeniowych.
469 000 zł
Koszt: Stan surowy zamknięty
Koszt wzniesienia budynku wraz z pokryciem dachu i stolarką zewnętrzną (okna i drzwi). Bez instalacji, ocieplenia i robót wykończeniowych.
Opis
Dom parterowy z dachem wielospadowym Karol Polo będzie idealny dla czteroosobowej rodziny, która doceni funkcjonalny rozkład pomieszczeń. Z kolei nowoczesny, oscylujący na granicy minimalizmu design sprawia, że tym projektem powinni zainteresować się szczególnie miłośnicy nowoczesnej architektury.
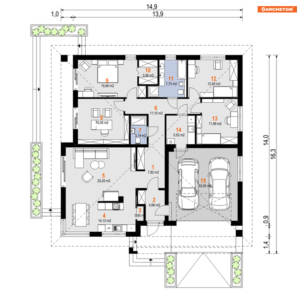
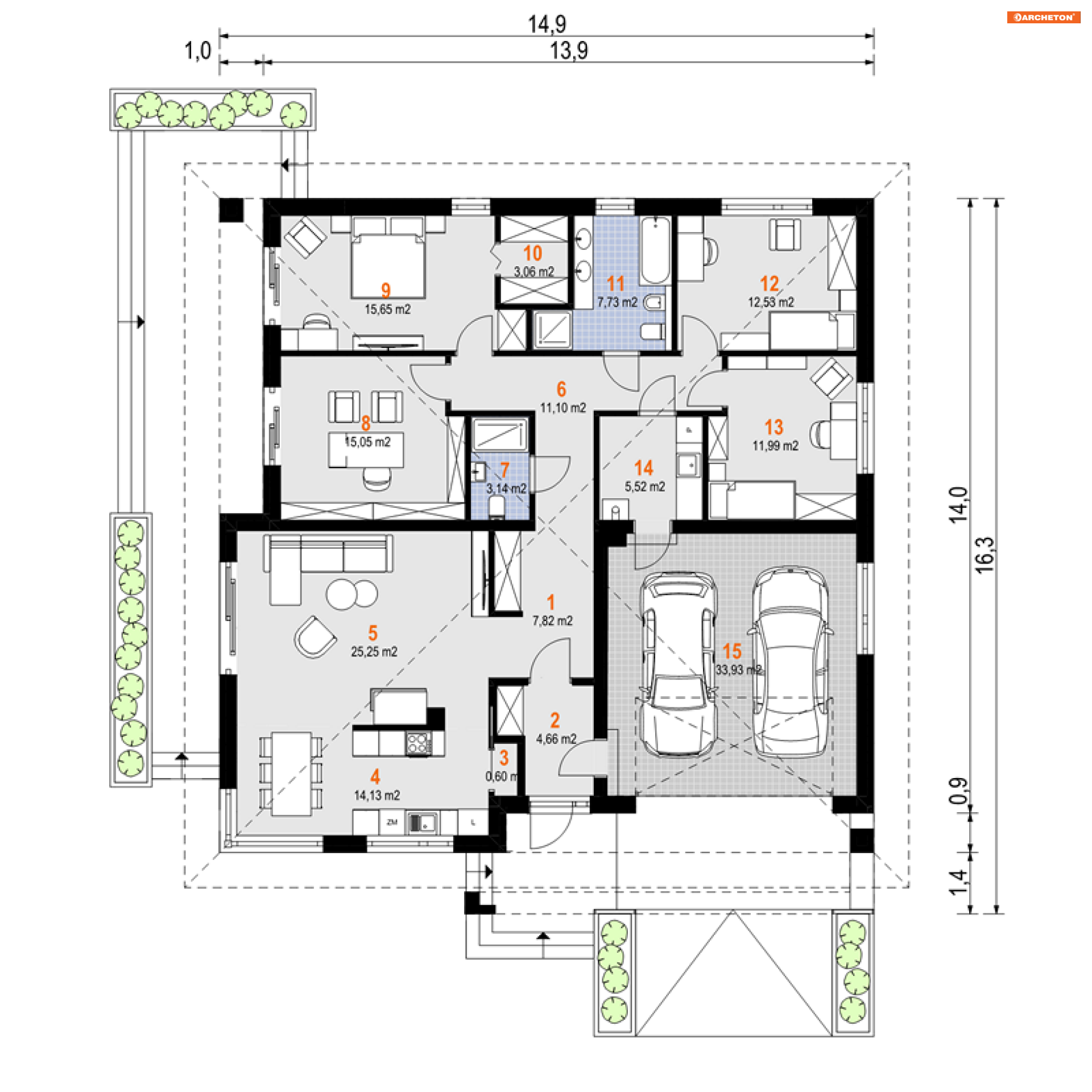
Projekt domu parterowego z dachem wielospadowym Karol Polo powstał z myślą o komforcie mieszkańców, dlatego układ pomieszczeń został starannie przemyślany. Sercem domu jest przestronny pokój dzienny o powierzchni ponad 25 m². Jest on połączony z kuchnią i wchodzi się do niego bezpośrednio z holu. Z kolei strefa prywatna znajduje się na tyłach i oprócz trzech sypialni jest tu druga łazienka oraz gabinet, który można zaadaptować na pokój gościnny. Dwustanowiskowy garaż, kotłowania z pralnią, spiżarnia i garderoba to przestrzenie, w których bez trudu można wygospodarować miejsce do przechowywania.
Z zewnątrz budynek urzeka swoją prostotą, gdyż żaden element poza okapem nie wystaje poza obrys prostokątnej bryły. Stonowana kolorystyka i nieoczywiste zestawienie szarości z jasnym brązem nadają mu ponadczasowej elegancji.
CZYTAJ WIĘCEJ

Karol Polo
BD51144
Powierzchnia użytkowa
Łączna powierzchnia tzw. pomieszczeń użytkowych. Przede wszystkim nie zalicza się do niej powierzchni garażu, nieużytkowego strychu, piwnicy, kotłowni.
132,71 m2
Liczba pokoi
5
Liczba łazienek
2
Garaż
1
Powierzchnia zabudowy
Powierzchnia zajmowana przez budynek na działce. W praktyce tzw. powierzchnia rzutu budynku wyznaczana po obrysie ścian zewnętrznych.
208,44 m2