Kordian Prima


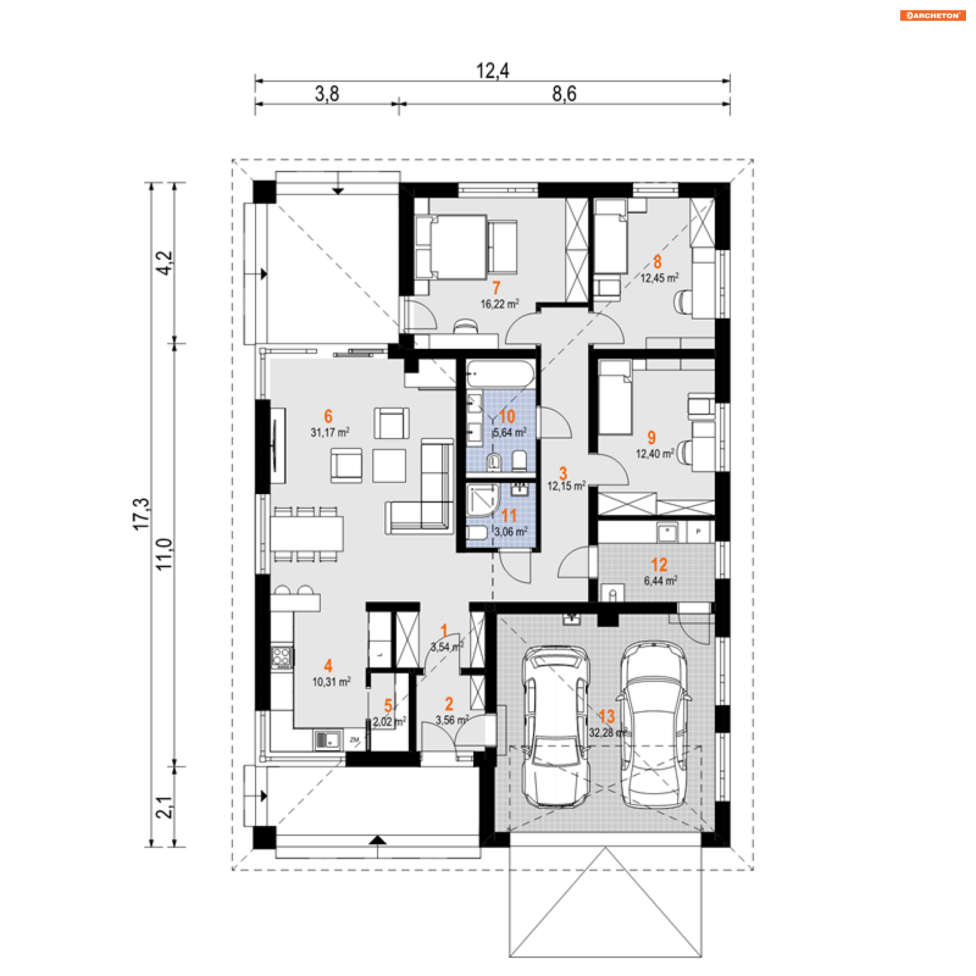
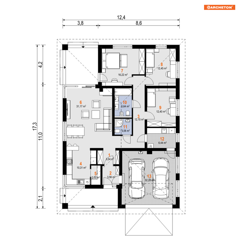
Projekt domu parterowego z garażem Kordian Prima to nieco mniejsza i bardziej nowoczesna odsłona popularnego projektu Kordian. Podobnie jak w wersji istniejącej już wcześniej, zachowano tu wydłużony zarys i dach z kalenicą.
W projekcie domu parterowego z garażem Kordian Prima poza obrys budynku nie wystaje żaden element – dwustanowiskowy garaż znajduje się w jego bryle, a tarasy mają zapewnioną stałą osłonę. W budynku komfortowo może mieszkać czteroosobowa rodzina, która do dyspozycji ma trzy sypialnie, z rozmysłem usytuowane na tyłach. Wygodnym rozwiązaniem są też dwie łazienki – większa, zaprojektowana na prywatny użytek domowników i mniejsza, z prysznicem, która świetnie sprawdzi się w roli łazienki gościnnej. Dodatkowa przestrzeń – taka jak wiatrołap, spiżarnia, kotłownia z pralnią sprawia, że nie brakuje tu miejsca do przechowywania zapasów, sprzętów używanych sezonowo czy narzędzi.
Dom parterowy z garażem Kordian Prima ma dwa tarasy. Do budynku wchodzi się poprzez taras frontowy, który jest dobrze widoczny przez kuchenne okna. Z kolei na taras ogrodowy można się dostać z przestronnego salonu, a także z głównej sypialni, co podkreśla jej prestiż w całym budynku.
