Tosia Nano Duo



Tosia Nano Duo to projekt bliźniaków połączonych garażem. Już z daleka budynek przykuwa wzrok nietuzinkowym kształtem i dynamiczną bryłą.
Efektowną ozdobą projektu bliźniaków połączonych garażem Tosia Nano Duo są m.in. lukarny, które dodają całości charakteru, przełamują płaszczyznę dachu i pozwalają na skuteczne doświetlenie pomieszczeń poddasza. Ciekawym akcentem jest też obniżenie dachu nad garażem, co daje wrażenie przenikających się, geometrycznych brył
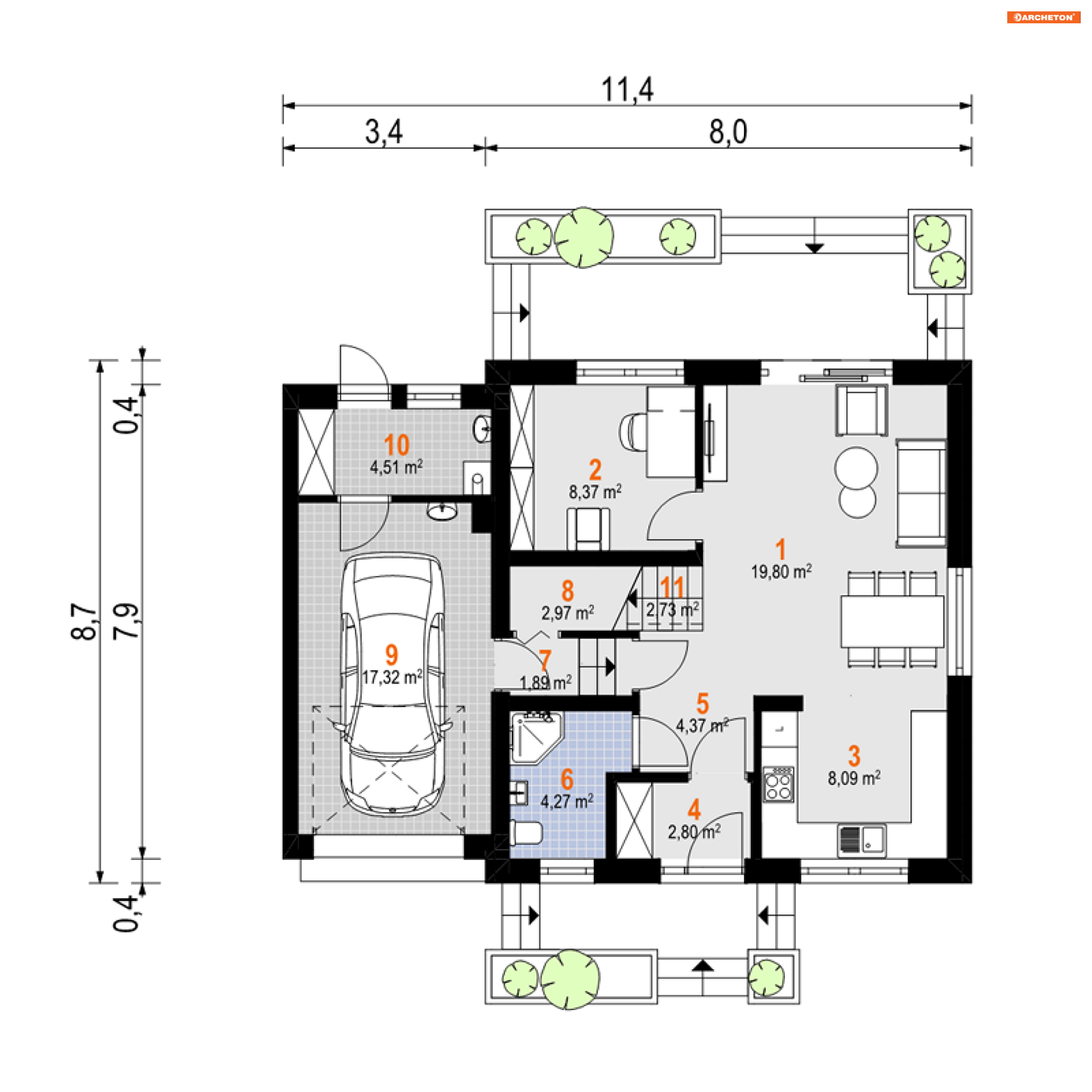
Projekt Tosia Nano Duo z powodzeniem zaspokoi potrzeby 5-osobowej rodziny. Przestrzeń podzielono tu w sposób typowy dla budynków w zabudowie bliźniaczej. Na parterze jest strefa dzienna – salon z wyjściem na taras, otwarta kuchnia, a także dodatkowy pokój i spora łazienka. Z tej kondygnacji, z klatki schodowej, można też dostać się do garażu, który jest połączony z kotłownią.
Strefa nocna znajduje się na piętrze. Oprócz trzech pokoi dla dzieci i obszernej łazienki, nad garażem znajduje się jeszcze jeden pokój z dodatkową łazienką – rozwiązanie często stosowane w projektach bliźniaków połączonych garażem. Usytuowanie na uboczu i bezpośredni dostęp do łazienki sprawia, że pokój ten to idealne miejsce na sypialnię rodziców.
