Dino Prima



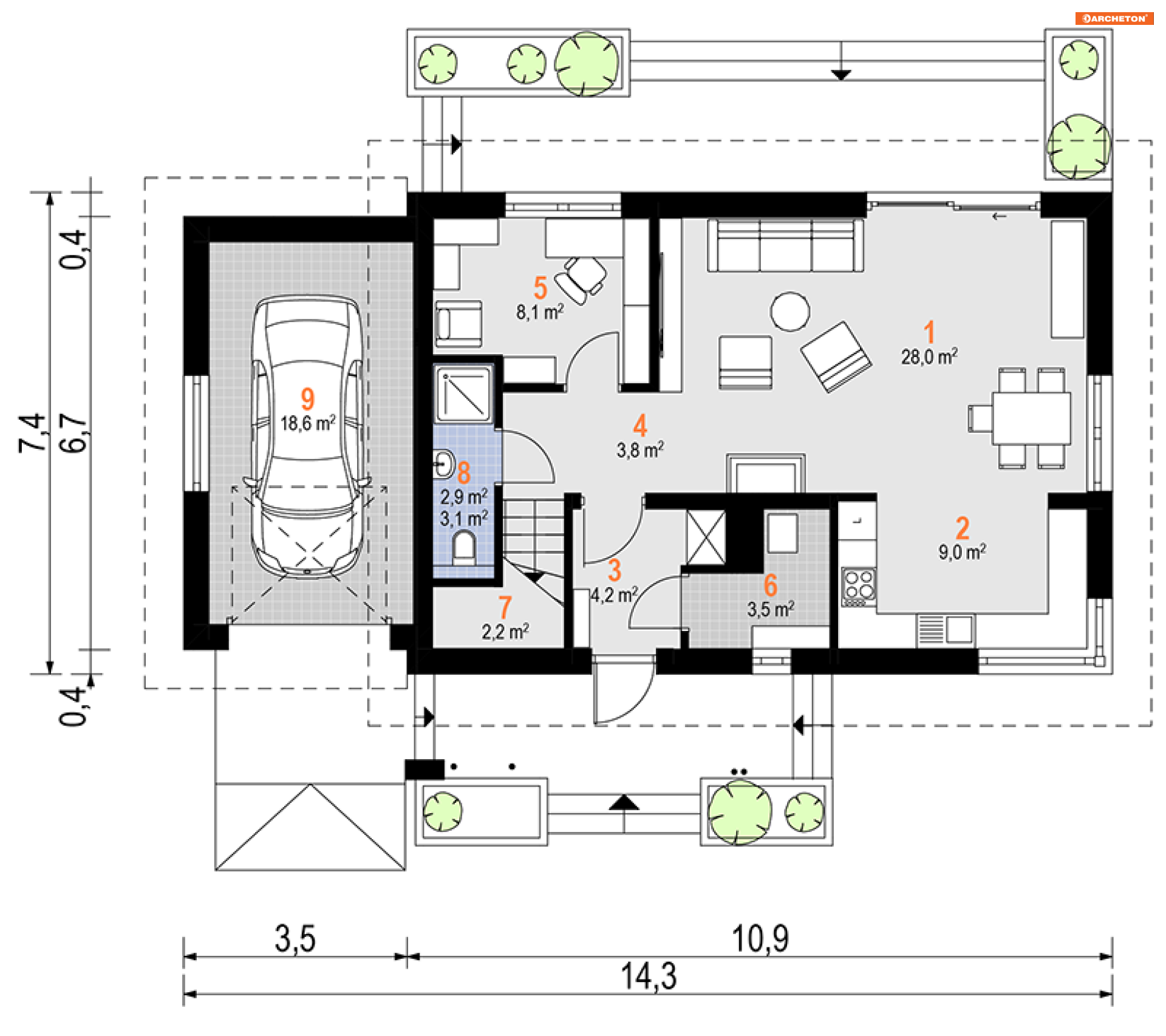
Projekt ten urzeka prostą formą, gdzie jedynym przełamaniem geometrycznej bryły budynku jest znajdujący się z boku garaż. Dom Dino Prima zaprojektowano na potrzeby dużych rodzin, które do dyspozycji mają aż 117,2 m².
Dino Prima to dom na rzucie prostokąta, na którego krótszym boku dobudowany jest jednostanowiskowy garaż. To jedyny element przełamujący prostą bryłę budynku z dwuspadowym dachem, pozbawioną lukarn, wykuszy czy balkonów. Jedynymi elementami, które mają potencjał dekoracyjny, jest rama z pergolą okalająca wejściowy taras. Na uwagę zasługują też szare i drewnopodobne akcenty na fasadzie, które nadają całości elegancji i ożywiają ten projekt.
Dom z garażem z boku Dino Prima ma aż 6 pokoi – na parterze znajduje się obszerny salon z kuchnią oraz gabinet, który może pełnić funkcję pokoju gościnnego, a także kotłownia i toaleta. Na użytkowym poddaszu zmieściły się aż cztery pokoje, łazienka oraz garderoba. Tak duża ilość pomieszczeń sprawia, że Dino Prima idealnie sprawdzi się w przypadku wieloosobowych rodzin.
