Dom przy Imbirowej 9
Dodaj do porównania
Usuń z porównania
Dodaj do ulubionych
Usuń z ulubionych
Pow. użytkowa:
81.78m2
Pow. zabudowy:
110.17m2
Koszt budowy:
347000zł
Liczba pokoi:
4
Liczba łazienek:
2
Garaż:
1
Rzuty

Lustrzane odbicie
Rzut parteru
79.86 m2
wiatrołap
2.04 m2
hall
6.2 m2
kuchnia
9.6 m2
pokój dzienny
16.68 m2
pokój
9.1 m2
kotłownia
4.61 m2
łazienka
3.35 m2
garaż
20.25 m2
pom. gosp.
8.03 m2
Pobierz rysunki szczegółowe
Zapytaj, co możesz zmienić

Lustrzane odbicie
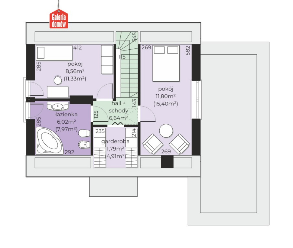
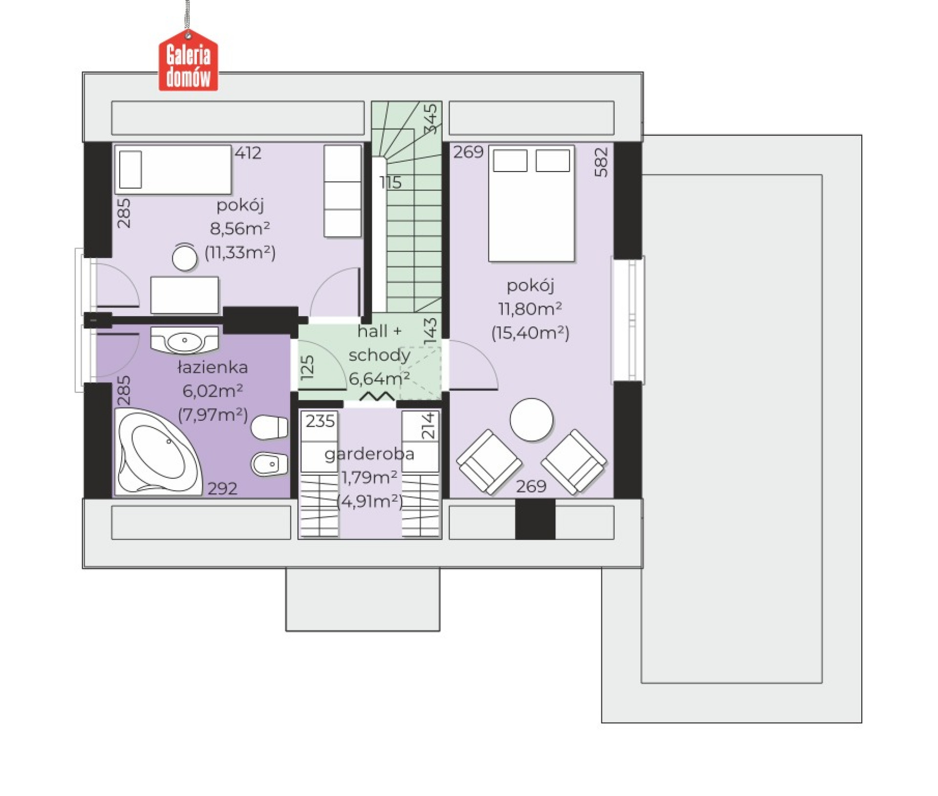
Rzut I piętra
34.81 m2
hall + schody
6.64 m2
pokój
11.8 m2
garderoba
1.79 m2
łazienka
6.02 m2
pokój
8.56 m2
Pobierz rysunki szczegółowe
Zapytaj, co możesz zmienić

Lustrzane odbicie
Pobierz rysunki szczegółowe
Zapytaj, co możesz zmienić
Zamów rysunki szczegółowe
Zapoznaj się ze szczegółowymi rysunkami rzutów kondygnacji w PDF dla tego projektu.
ZAMAWIAM

Elewacje

Frontowa

Ogrodowa

Lewa

Prawa
Specyfikacja techniczna
Główne parametry
Powierzchnia użytkowa
81,78 m2
Łączna powierzchnia tzw. pomieszczeń użytkowych. Przede wszystkim nie zalicza się do niej powierzchni garażu, nieużytkowego strychu, piwnicy, kotłowni.
Liczba pokoi
4
Liczba łazienek
2
Garaż
1
Powierzchnia zabudowy
110,17 m2
Powierzchnia zajmowana przez budynek na działce. W praktyce tzw. powierzchnia rzutu budynku wyznaczana po obrysie ścian zewnętrznych.
Pełna specyfikacja
Maksymalna wysokość budynku
7,71 m
Wysokość wyznaczona od poziomu terenu do najwyżej położonej części dachu (np. kalenicy), zwykle bez uwzględnienia kominów.
Kąt nachylenia dachu
40,00°
Nachylenie połaci dachu podane w stopniach.
Minimalne wymiary działki (szerokość)
18,60 m
Szerokość działki wyznaczona przy założeniu, że minimalna odległość budynku od granic działki wynosi przynajmniej 3 m w przypadku ścian bez otworów okiennych lub drzwiowych, albo 4 m w przypadku ścian budynku z takimi otworami.
Minimalne wymiary działki (długość)
19,70 m
Długość działki wyznaczona przy założeniu, że minimalna odległość budynku od granic działki wynosi przynajmniej 3 m w przypadku ścian bez otworów okiennych lub drzwiowych, albo 4 m w przypadku ścian budynku z takimi otworami.
Z poddaszem użytkowym
Tak
Typ dachu
Dwuspadowy
Kształt dachu – płaski, jednospadowy (jedna skośna połać), dwuspadowy (dwie połacie), wielospadowy (w praktyce o przynajmniej czterech połaciach).
Energooszczędność
Energooszczędny
Energooszczędny – dom o zapotrzebowaniu na tzw. nieodnawialna energię pierwotną (EP) niższym, niż wymagana przepisami maksymalna wartość.
Przystosowany pod instalacje
paneli PV
Typ zabudowy
Jednorodzinny
Powierzchnia garażu
20,25 m2
Kubatura budynku
557,43 m3
Objętość budynku, zwykle wraz z elementami konstrukcyjnymi (ścianami, stropami itd.).
Ściany zewnętrzne (materiały)
pustak 25 cm, styropian 20 cm
Pokrycie dachu
dachówka ceramiczna lub betonowa
Sposób ogrzewania
gazowe lub pompa ciepła lub paliwo stałe
W stylu
Nowoczesnym
Liczba kondygnacji
Z poddaszem użytkowym
Za kondygnacje uznawane są również poddasza użytkowe oraz piwnice. Kondygnacją nie jest natomiast poddasze nieużytkowe ani antresola.
Koszty
Koszty budowy
347 000 zł
Koszt: Stan pod klucz
Obejmuje koszt wszystkich robót stanu surowego, wykonania instalacji wewnętrznych oraz robót wykończeniowych.
204 000 zł
Koszt: Stan surowy zamknięty
Koszt wzniesienia budynku wraz z pokryciem dachu i stolarką zewnętrzną (okna i drzwi). Bez instalacji, ocieplenia i robót wykończeniowych.
Opis
Dom przy Imbirowej 9 to budynek mieszkalny jednorodzinny, z użytkowym poddaszem i pojedynczym garażem w bryle budynku. Przeznaczony do realizacji w technologii tradycyjnej, murowanej, z więźbą o konstrukcji drewnianej. Układ pomieszczeń przewiduje otwartą przestrzeń dzienną, na którą składa się słoneczny pokój i kuchnia oraz 3 sypialnie i 2 łazienki. W Domu przy Imbirowej 9 przewidziano dodatkowy pokój na parterze oraz funkcjonalną kotłownię z, garderobę i pomieszczenie gospodarcze. Elewację utrzymano w nowoczesnej stylistyce, z zastosowaniem drewna elewacyjnego oraz stalowo-białej kolorystyki. Dom energooszczędny, posiada dodatkowe projekty instalacji solarnej, fotowoltaicznej, wentylacji mechanicznej oraz pompy ciepła. Zwarta bryła, niewielkie rozmiary i przemyślane rozwiązania czynią go tanim i prostym w realizacji oraz oszczędnym w użytkowaniu. Nowoczesny i ekonomiczny w użytkowaniu dom na niewielkie działki. Projekt został opracowany w sposób umożliwiający dostosowanie do przyszłych wymagań dotyczących budynków zeroemisyjnych.
CZYTAJ WIĘCEJ

Dom przy Imbirowej 9
BD51611
Powierzchnia użytkowa
Łączna powierzchnia tzw. pomieszczeń użytkowych. Przede wszystkim nie zalicza się do niej powierzchni garażu, nieużytkowego strychu, piwnicy, kotłowni.
81,78 m2
Liczba pokoi
4
Liczba łazienek
2
Garaż
1
Powierzchnia zabudowy
Powierzchnia zajmowana przez budynek na działce. W praktyce tzw. powierzchnia rzutu budynku wyznaczana po obrysie ścian zewnętrznych.
110,17 m2