Dom przy Migdałowej 7
Dodaj do porównania
Usuń z porównania
Dodaj do ulubionych
Usuń z ulubionych
Pow. użytkowa:
92.57m2
Pow. zabudowy:
97.93m2
Koszt budowy:
392000zł
Liczba pokoi:
4
Liczba łazienek:
2
Garaż:
1
Rzuty

Lustrzane odbicie
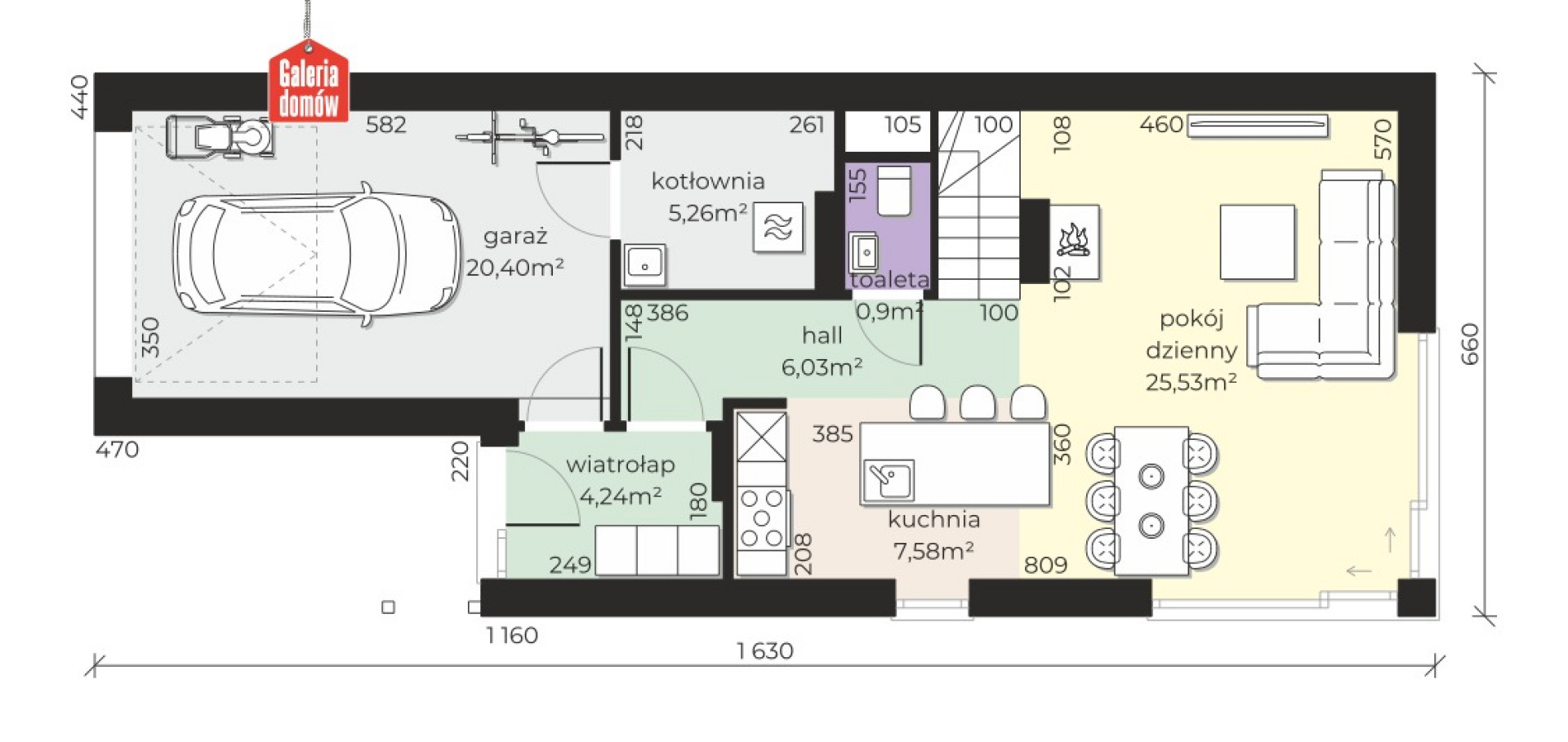
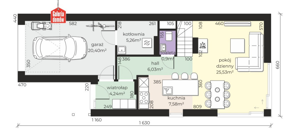
Rzut parteru
69.94 m2
wiatrołap
4.24 m2
hall
6.03 m2
garaż
20.4 m2
kotłownia
5.26 m2
toaleta
0.9 m2
pokój dzienny
25.53 m2
kuchnia
7.58 m2
Pobierz rysunki szczegółowe
Zapytaj, co możesz zmienić

Lustrzane odbicie
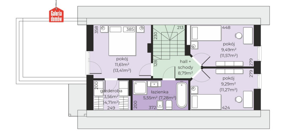
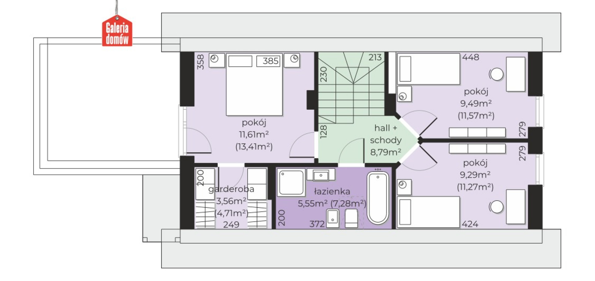
Rzut I piętra
68.97 m2
hall + schody
8.79 m2
pokój
9.49 m2
pokój
9.29 m2
łazienka
5.55 m2
garderoba
3.56 m2
pokój
11.61 m2
taras
20.68 m2
Pobierz rysunki szczegółowe
Zapytaj, co możesz zmienić

Lustrzane odbicie
Pobierz rysunki szczegółowe
Zapytaj, co możesz zmienić
Zamów rysunki szczegółowe
Zapoznaj się ze szczegółowymi rysunkami rzutów kondygnacji w PDF dla tego projektu.
ZAMAWIAM

Elewacje

Frontowa

Ogrodowa

Lewa

Prawa
Specyfikacja techniczna
Główne parametry
Powierzchnia użytkowa
92,57 m2
Łączna powierzchnia tzw. pomieszczeń użytkowych. Przede wszystkim nie zalicza się do niej powierzchni garażu, nieużytkowego strychu, piwnicy, kotłowni.
Liczba pokoi
4
Liczba łazienek
2
Garaż
1
Powierzchnia zabudowy
97,93 m2
Powierzchnia zajmowana przez budynek na działce. W praktyce tzw. powierzchnia rzutu budynku wyznaczana po obrysie ścian zewnętrznych.
Pełna specyfikacja
Maksymalna wysokość budynku
7,82 m
Wysokość wyznaczona od poziomu terenu do najwyżej położonej części dachu (np. kalenicy), zwykle bez uwzględnienia kominów.
Kąt nachylenia dachu
40,00°
Nachylenie połaci dachu podane w stopniach.
Minimalne wymiary działki (szerokość)
13,60 m
Szerokość działki wyznaczona przy założeniu, że minimalna odległość budynku od granic działki wynosi przynajmniej 3 m w przypadku ścian bez otworów okiennych lub drzwiowych, albo 4 m w przypadku ścian budynku z takimi otworami.
Minimalne wymiary działki (długość)
24,30 m
Długość działki wyznaczona przy założeniu, że minimalna odległość budynku od granic działki wynosi przynajmniej 3 m w przypadku ścian bez otworów okiennych lub drzwiowych, albo 4 m w przypadku ścian budynku z takimi otworami.
Z poddaszem użytkowym
Tak
Typ dachu
Dwuspadowy
Kształt dachu – płaski, jednospadowy (jedna skośna połać), dwuspadowy (dwie połacie), wielospadowy (w praktyce o przynajmniej czterech połaciach).
Energooszczędność
Energooszczędny
Energooszczędny – dom o zapotrzebowaniu na tzw. nieodnawialna energię pierwotną (EP) niższym, niż wymagana przepisami maksymalna wartość.
Typ zabudowy
Jednorodzinny
Powierzchnia garażu
20,40 m2
Kubatura budynku
565,00 m3
Objętość budynku, zwykle wraz z elementami konstrukcyjnymi (ścianami, stropami itd.).
Ściany zewnętrzne (materiały)
pustak 25 cm, styropian 20 cm
Pokrycie dachu
dachówka ceramiczna lub betonowa
Sposób ogrzewania
gazowe lub pompa ciepła lub paliwo stałe
W stylu
Nowoczesnym
Liczba kondygnacji
Z poddaszem użytkowym
Za kondygnacje uznawane są również poddasza użytkowe oraz piwnice. Kondygnacją nie jest natomiast poddasze nieużytkowe ani antresola.
Koszty
Koszty budowy
392 000 zł
Koszt: Stan pod klucz
Obejmuje koszt wszystkich robót stanu surowego, wykonania instalacji wewnętrznych oraz robót wykończeniowych.
231 000 zł
Koszt: Stan surowy zamknięty
Koszt wzniesienia budynku wraz z pokryciem dachu i stolarką zewnętrzną (okna i drzwi). Bez instalacji, ocieplenia i robót wykończeniowych.
Opis
Dom w Migdałowej 7 to projekt domu jednorodzinnego o powierzchni użytkowej 92,57 m². Dom z poddaszem użytkowym i dachem dwuspadowym posiada garaż w bryle głównej budynku. Migdałowa 7 doskonale nadaje się do realizacji na wąskich działkach, o minimalnej szerokości 13,5 m. Układ funkcjonalny składa się z 4 pokoi, kuchni, 2 łazienek, garderoby oraz kotłowni. Na parterze znajduje się nasłoneczniona część dzienna z salonem o powierzchni 25 m² oraz otwartą kuchnią. Poddasze to przytulna część nocna. Znajdziemy tu 3 wygodne sypialnie z dostępem do francuskich balkonów oraz główną łazienkę. Sypialnia typu master bedroom wychodzi na przestronny taras. Projekt opracowany zgodnie z normami technicznymi WT 2021. Został zaprojektowany z myślą o warunkach, jakie powinny w przyszłości spełniać projekty domów zeroemisyjnych.
CZYTAJ WIĘCEJ
Dodatki do projektu
Opieka konsultacyjna
0zł
599 zł
Prenumerata 12 tytułów
0zł
599 zł
-
Charakterystyka energetyczna wraz z analizą porównawczą0 zł
-
Certyfikat oryginalności0 zł
-
Koszty dostawy0 zł
Prenumerata 12 tytułów
0zł
599 zł
-
Projekt szamba0 zł
-
Solidne opakowanie0 zł

Dom przy Migdałowej 7
BD51620
Powierzchnia użytkowa
Łączna powierzchnia tzw. pomieszczeń użytkowych. Przede wszystkim nie zalicza się do niej powierzchni garażu, nieużytkowego strychu, piwnicy, kotłowni.
92,57 m2
Liczba pokoi
4
Liczba łazienek
2
Garaż
1
Powierzchnia zabudowy
Powierzchnia zajmowana przez budynek na działce. W praktyce tzw. powierzchnia rzutu budynku wyznaczana po obrysie ścian zewnętrznych.
97,93 m2
Kup projekt
3 990 zł
Projekt + opieka konsultacyjna
Tylko u nas
kupujesz projekt wraz z
opieką konsultacyjną w trakcie budowy domu
opieką konsultacyjną w trakcie budowy domu
Kup projekt
3 990 zł
Masz pytania?
Zadzwoń!
22 257 84 76
pon-pt: 9-17