Iryda Rex Duo



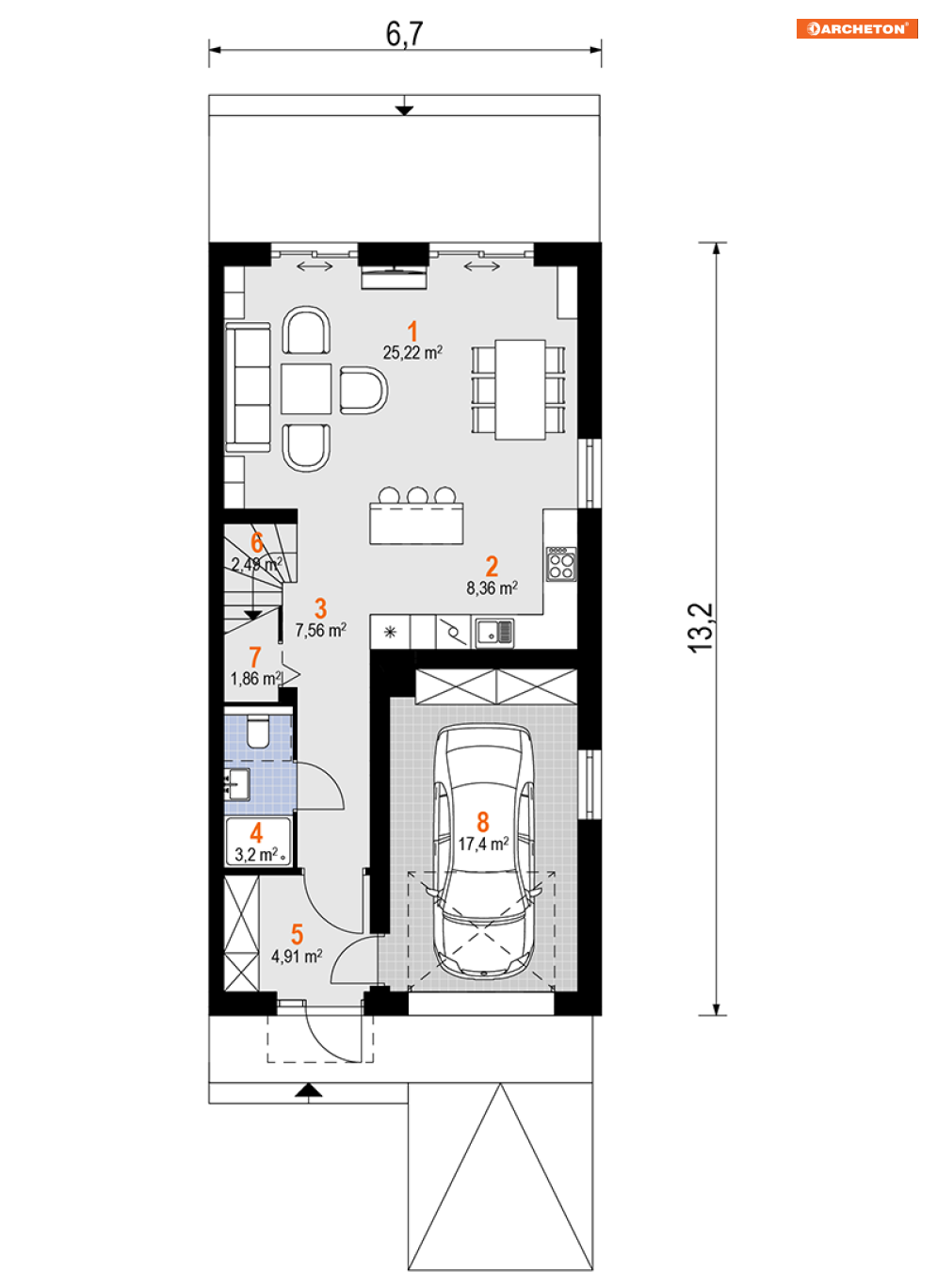
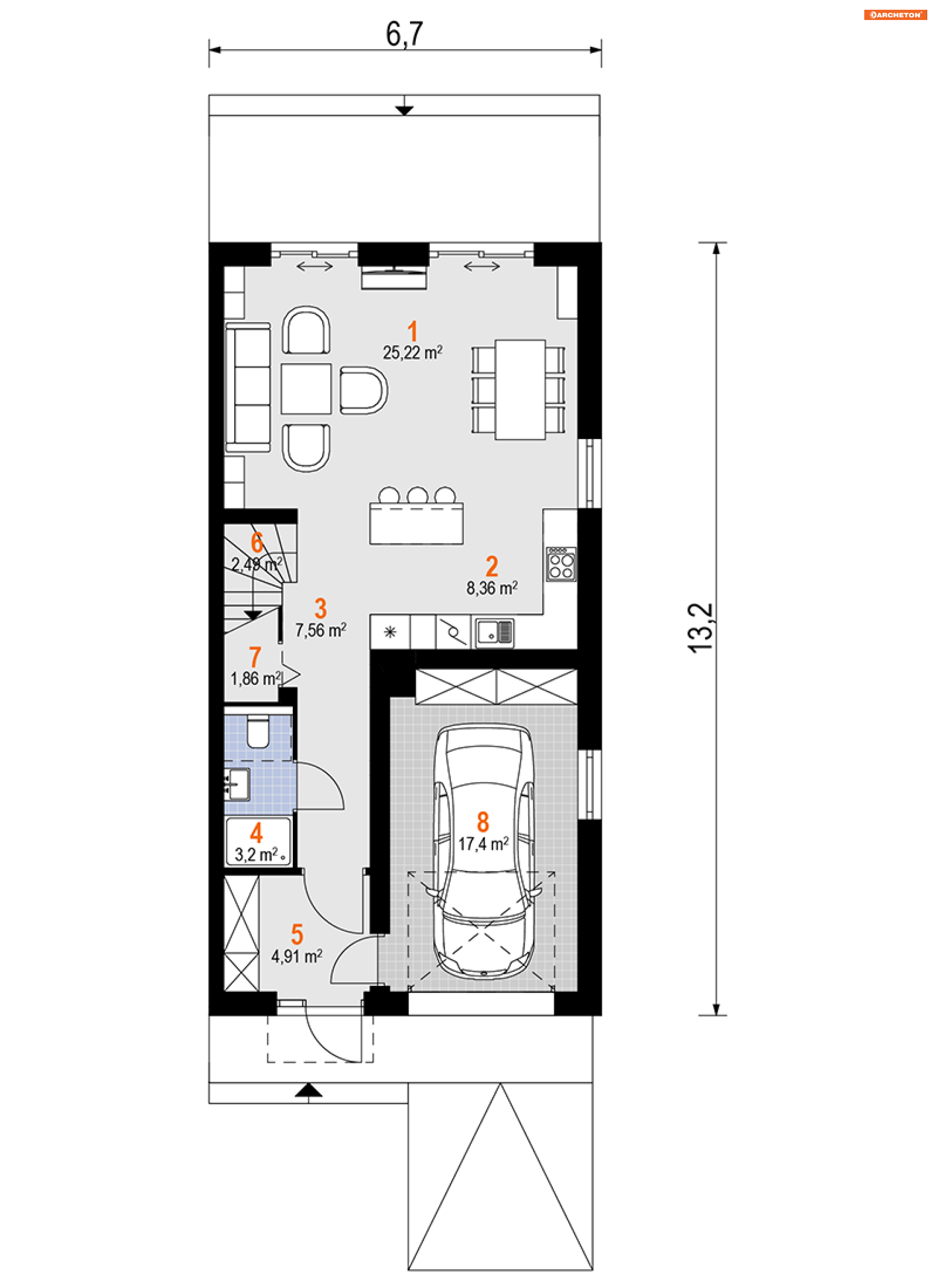
Maksimum prywatności oraz funkcjonalność – to główne cechy domu bliźniaka piętrowego z garażem Iryda Rex Duo. Bezokapowy dach, brak lukarn, balkonów czy wykuszy sprawia, że budynek ma bardzo zwartą, ergonomiczną bryłę, w której obrysie znajduje się jednak wszystko to, co jest potrzebne nawet pięcioosobowej rodzinie.
Iryda Rex Duo to budynek, w którym dobrze będą się czuli miłośnicy minimalistycznych rozwiązań w architekturze, stawiający na domy tanie w eksploatacji, które można także wybudować niewielkim kosztem. Właśnie taki jest dom bliźniak piętrowy z garażem umieszczonym w bryle budynku. Dzięki takiej konstrukcji straty energii są ograniczone do minimum, a na obniżenie kosztów eksploatacji wpływa też zmniejszenie liczby ścian zewnętrznych.
Na powierzchni użytkowej 116 m² udało się zmieścić aż 4 pokoje i łazienkę (na piętrze) oraz spory pokój dzienny z kuchnią i łazienkę na parterze. Na dolnej kondygnacji oprócz garażu, w którym obok auta zmieści się też sprzęt sportowy czy narzędzia, znalazła się również przestrzeń na schowek i wiatrołap.
-
Teczka do przechowywania dokumentacji projektowej0 zł
-
Dziennik budowy0 zł
-
Tablica informacyjna na budowę - po otrzymaniu projektu domu i wypełnieniu ankiety0 zł
-
Zgoda na zmiany0 zł
-
Dokumentacja projektowa w plikach pdf0 zł

opieką konsultacyjną w trakcie budowy domu