Elza Beta



Elza Beta to liczący niemal 200 m powierzchni użytkowej dom dla 6-osobowej rodziny, który przykuwa uwagę na wskroś nowoczesną bryłą. Jest to jednocześnie budynek bardzo funkcjonalny i komfortowy, zaprojektowany z myślą o wygodzie każdego z domowników.
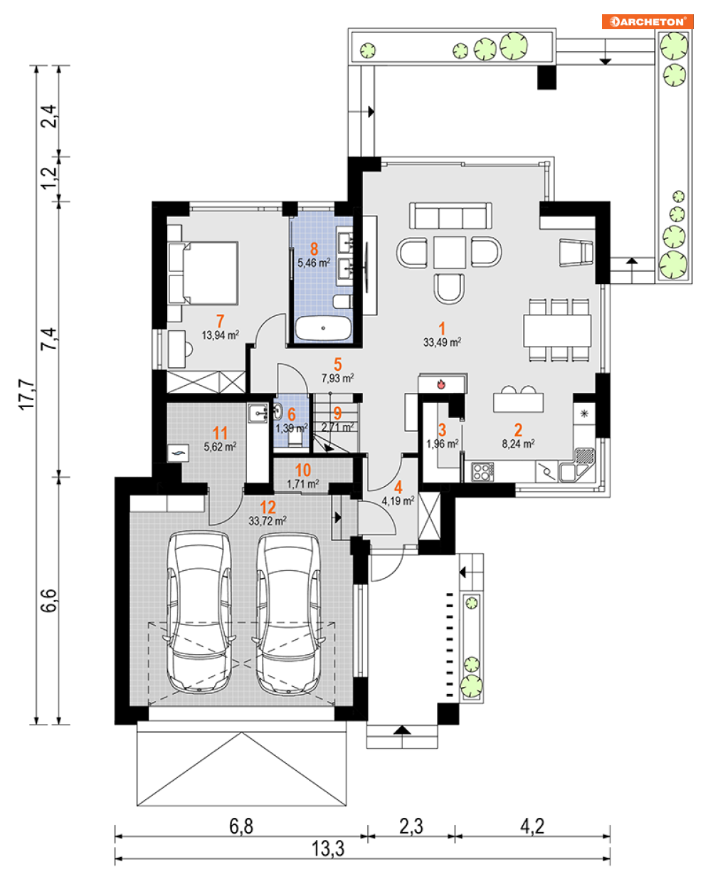
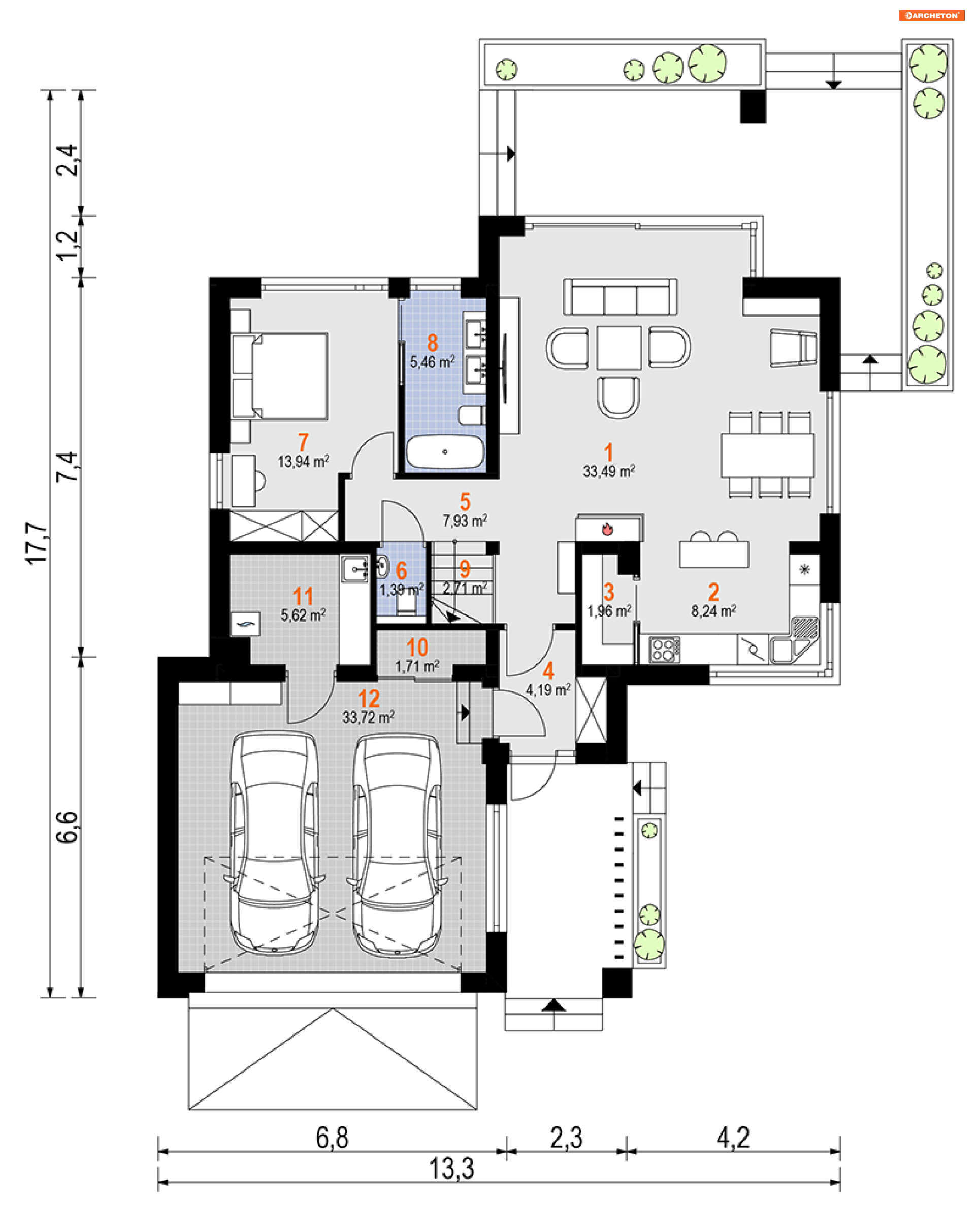
Jednorodzinny dom z poddaszem użytkowym Elza Beta ma 138 m² przestrzeni, która jest dobrze doświetlona dzięki dużym oknom. Dwustanowiskowy garaż jest wysunięty do przodu budynku, a jego zadaszenie przesunięte jest na prawo aż nad wejście główne, dla którego stanowi osłonę. Od strony ogrodu mieszkańcy mają do dyspozycji taras, który jest częściowo osłonięty pionową pergolą – daje to poczucie prywatności oraz chroni przed wiatrem.
Na parterze znajduje się przestronny pokój dzienny i połączona z nim kuchnia, do której przylega spiżarka. Dzięki temu przygotowywanie posiłków jest prawdziwą przyjemnością. Na tej kondygnacji znajduje się jeszcze dodatkowy pokój, który można przeznaczyć na lokum dla gości, gabinet czy sypialnię. Komfort użytkowania wspólnej przestrzeni parteru gwarantują też łazienka z toaletą oraz dodatkowe WC.
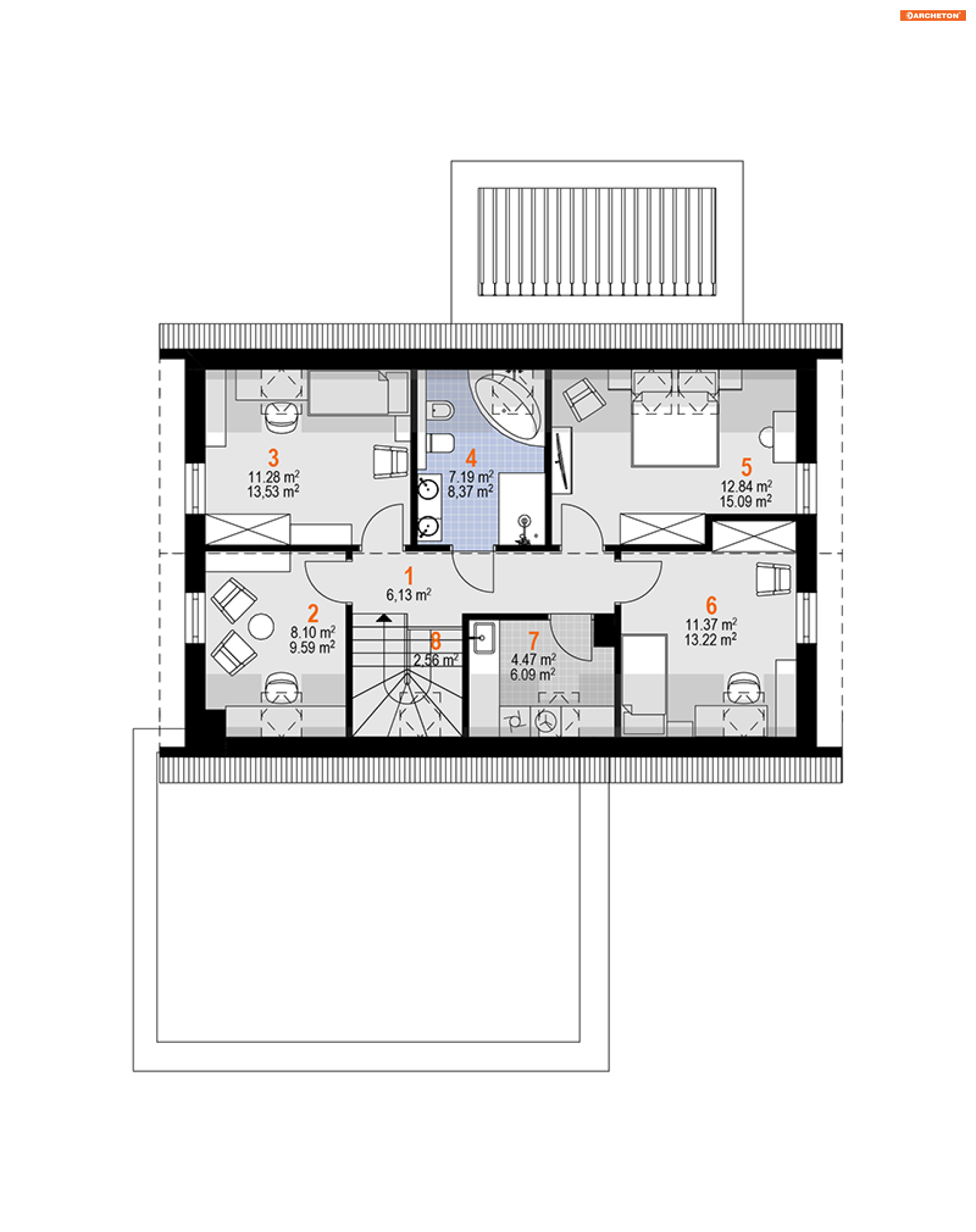
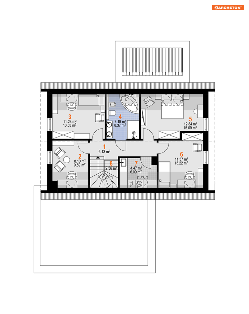
W zaprojektowanym na potrzeby 6-osobowej rodziny domu znalazło się też miejsce na drugą łazienkę na piętrze. Zaplanowano ją tak, aby zapewnić wygodny dostęp do niej z każdego z czterech pokoi. Na tej kondygnacji udało się też wygospodarować przestrzeń na pralnię, co w połączeniu z licznymi wnękami na szafy i przylegającą do garażu kotłownią daje dużo przestrzeni do przechowywania.
-
Teczka do przechowywania dokumentacji projektowej0 zł
-
Dziennik budowy0 zł
-
Tablica informacyjna na budowę - po otrzymaniu projektu domu i wypełnieniu ankiety0 zł
-
Zgoda na zmiany0 zł
-
Dokumentacja projektowa w plikach pdf0 zł

opieką konsultacyjną w trakcie budowy domu