Lila Prima Duolit



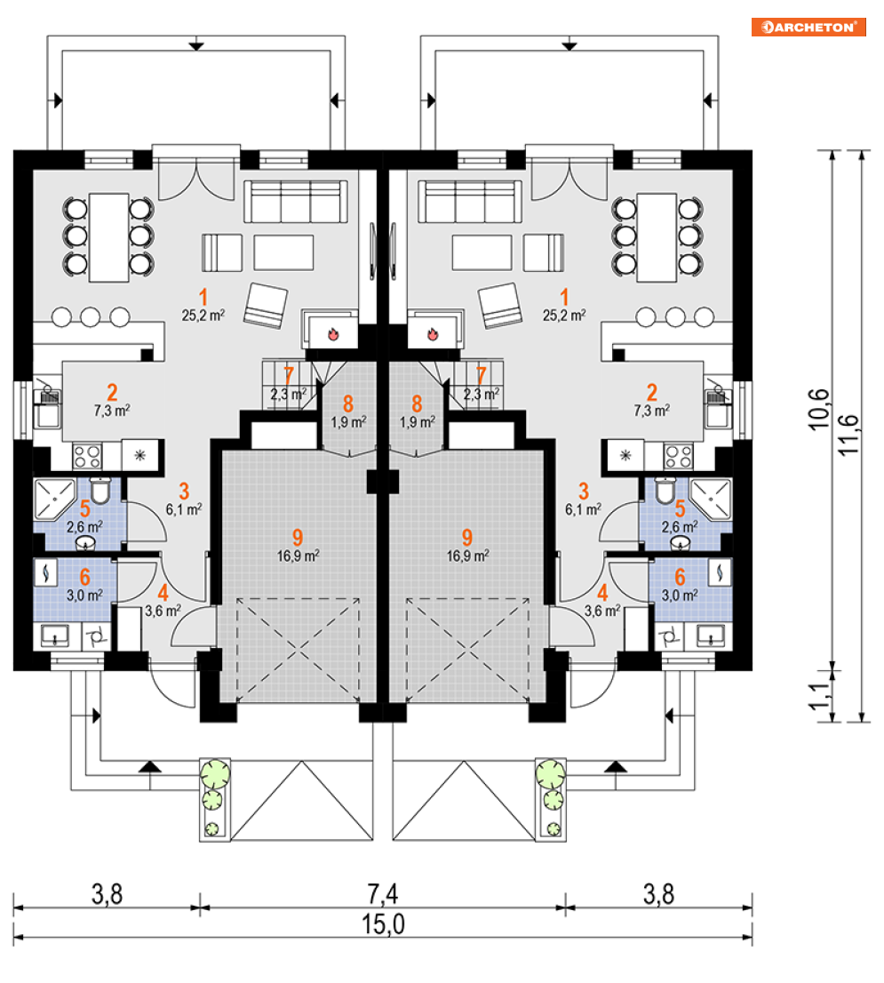
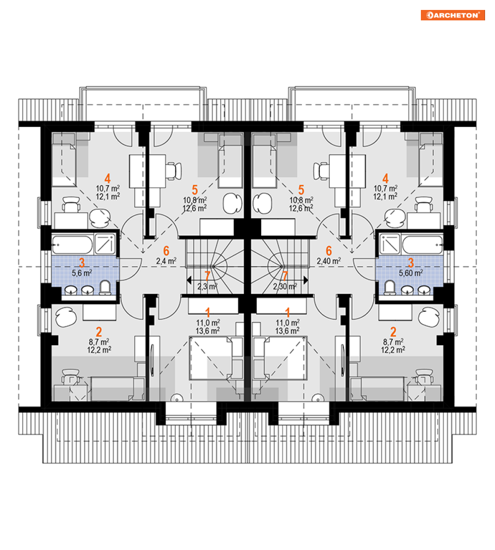
Dwa wygodne lokale mieszkalne, rozplanowane tak, jak w wariancie do zabudowy bliźniaczej Lila Prima Duo proponuje projekt Lila Prima Duolit. Cały budynek szer. 15 m mieści się na działce szer. 23 m. Każde z mieszkań pomieści nawet 5 osobową rodzinę. Wysunięty ku przodowi garaż tworzy praktyczną wnękę wejściową i zapewnia prywatność. Część dzienna znalazła się w całości na tyłach domu, a od frontu, oprócz wjazdu do garażu, pozostało miejsce na małą kotłownię i łazienkę przy wejściu. Głębiej, naprzeciwko schodów otwiera się kuchnia, a dalej salon z jadalnią. Na poddaszu zmieściły się cztery sypialnie z dużą łazienką. Projekt domu Lila Prima Duolit ma zwarty rzut, tradycyjną bryłę i detal architektoniczny. Dwuspadowy dach wzbogacają od frontu małe lukarny a od ogrodu duże ryzality z balkonami. Zamiast jednego przeszklenia w salonie zaproponowano układ mniejszych okien i podwójnych drzwi balkonowych. Balkon sypialni położonych od ogrodu stanowi osłonę tarasu.
-
Teczka do przechowywania dokumentacji projektowej0 zł
-
Dziennik budowy0 zł
-
Tablica informacyjna na budowę - po otrzymaniu projektu domu i wypełnieniu ankiety0 zł
-
Zgoda na zmiany0 zł
-
Dokumentacja projektowa w plikach pdf0 zł

opieką konsultacyjną w trakcie budowy domu