Tosia Nano Duolit



Opis projektu Tosia Nano Duolit – nietuzinkowy bliźniak dla 5-osobowej rodziny
Tosia Nano Duolit to projekt nowoczesnego domu dedykowanego do zabudowy bliźniaczej. Na blisko 105 m2 każdego z segmentów zaplanowano wygodną przestrzeń, która komfortowo pomieści nawet pięć osób.
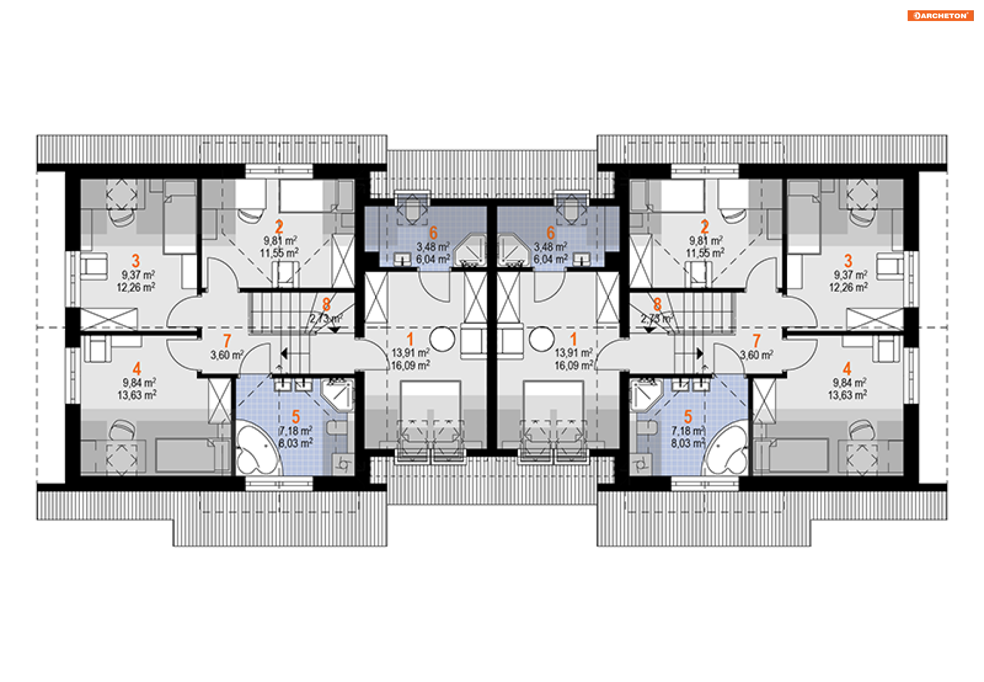
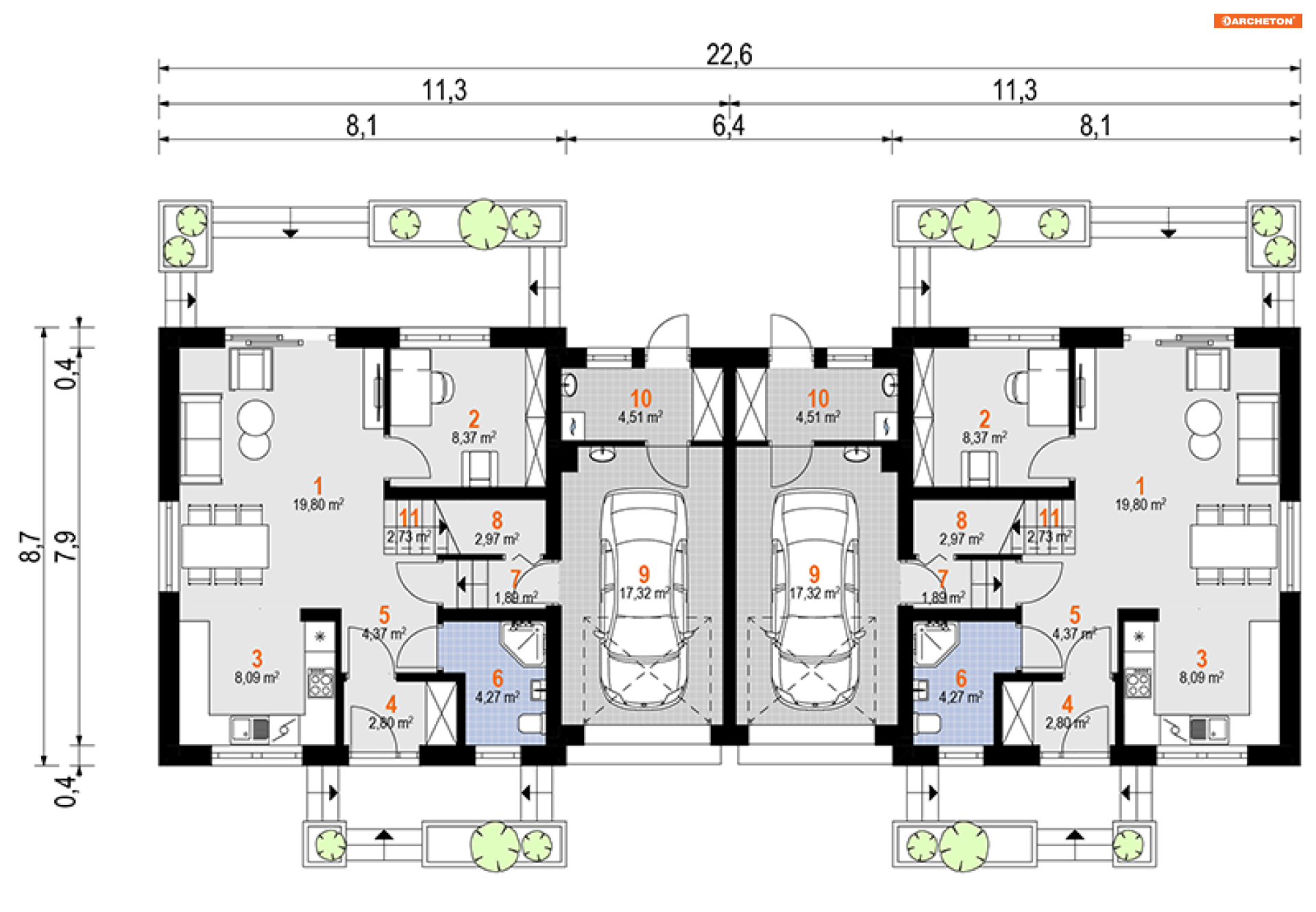
Na przykuwający uwagę wygląd budynku składa się urozmaicona elewacja i dwuspadowy dach. Jego połać od strony frontowej, została na fragmencie przedłużona, nadając całości dynamicznego charakteru i tworząc praktyczną osłonę strefy wejściowej. Poza oknami połaciowymi, w dachu zaprojektowano dwie lukarny, które doświetlają i zwiększają powierzchnię użytkową poddasza. Dostęp na taras jest możliwy przez drzwi przesuwne, zlokalizowane w salonie. Połączenie dwóch części bliźniaka ścianą garażową sprawia, że tarasy są od siebie maksymalnie oddalone, zapewniając tym samym prywatność tego miejsca.
Projekty bliźniaków, takie jak Tosia Nano Duolit, łączą w sobie zalety zabudowy bliźniaczej z bardzo funkcjonalnym układem wnętrza. Parter to części wspólne, na które składa się salon z miejscem na jadalnię, kuchnia, łazienka z natryskiem, a także pokój, który można zaadaptować na gabinet, lub dodatkową sypialnię. Przestrzeń pod schodami zagospodarowano na praktyczny schowek. Z części garażowej wydzielono pomieszczenie kotłowni. Na poddaszu zaprojektowano aż cztery sypialnie i dwie łazienki, z czego jedna z łazienek jest dostępna bezpośrednio z sypialni zlokalizowanej nad garażem. W projekcie przewidziano sporą ilość miejsca na pełnowymiarowe szafy. Na potrzeby realizacji bliźniaczych segmentów na samodzielnych działkach stworzono wariant Tosia Nano Duo.
-
Teczka do przechowywania dokumentacji projektowej0 zł
-
Dziennik budowy0 zł
-
Tablica informacyjna na budowę - po otrzymaniu projektu domu i wypełnieniu ankiety0 zł
-
Zgoda na zmiany0 zł
-
Dokumentacja projektowa w plikach pdf0 zł

opieką konsultacyjną w trakcie budowy domu