Iryda Duo




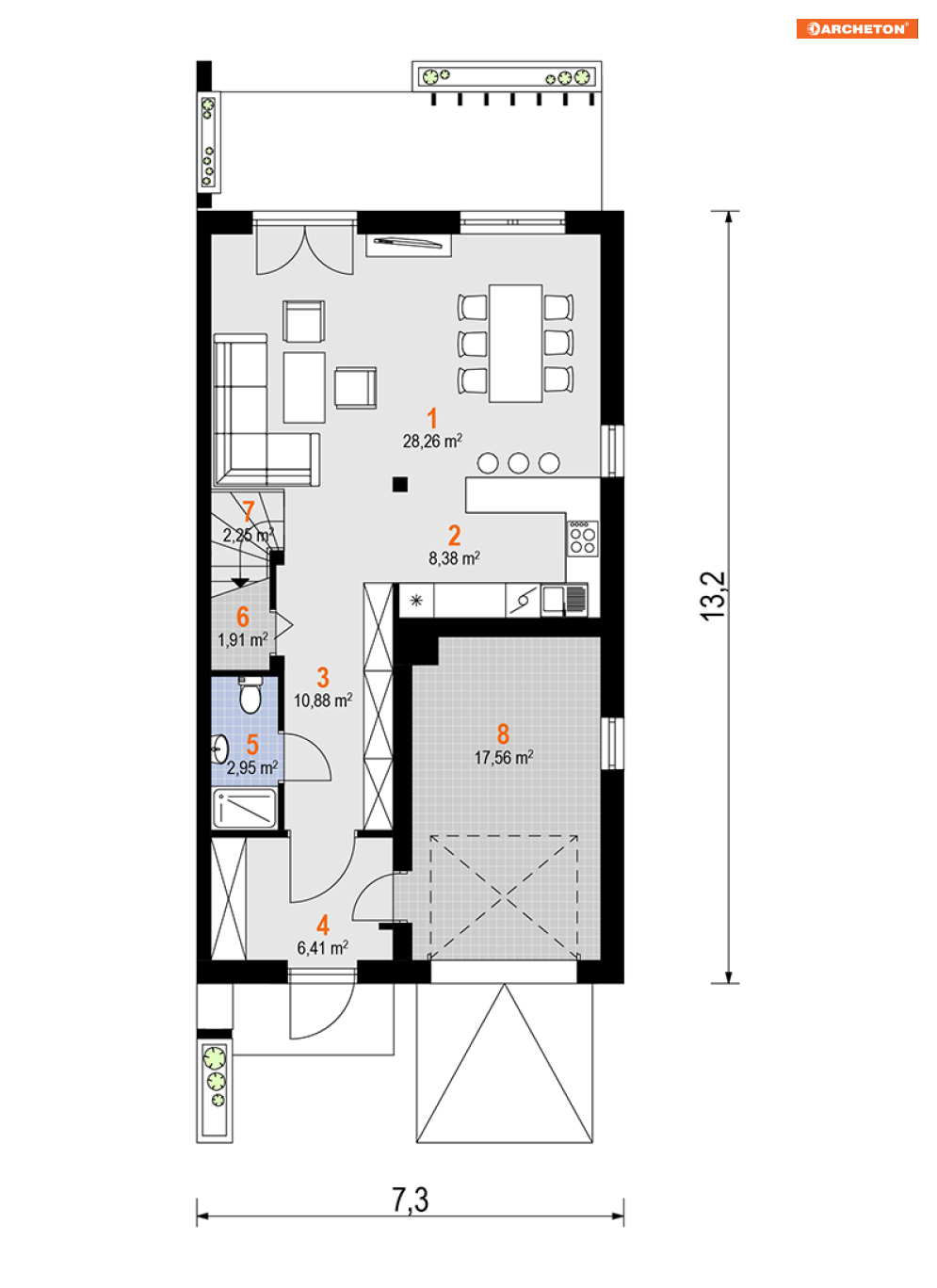
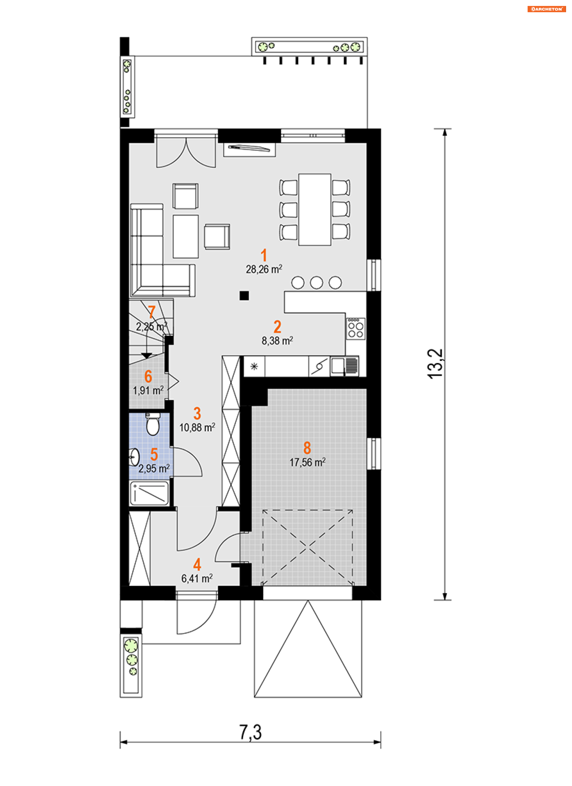
Koncepcja Irydy należy do rozwiązań większych domów z garażem do zabudowy bliźniaczej (w granicy działki). Reprezentuje przy tym najprostszy styl - oszczędny w detale. Na miejski charakter architektury w projekcie domu Iryda Duo składa się konsekwentnie zwarta sylwetka na zdyscyplinowanym, energooszczędnym planie oraz wysokość, obejmująca dwie pełne kondygnacje i niezbyt stromy dach bez okapu. Zaskakująco wygodny jest układ funkcjonalny mieszkania, mimo wydłużonego rzutu. Elementy konstrukcyjne naturalnie wtapiają się w atrakcyjnie rozplanowaną przestrzeń. Garaż zabiera od frontu parteru 1/4 powierzchni ale równoległy pas wykorzystano zręcznie na dużą sień i hol z mnóstwem miejsca do przechowywania. Pozostałą połowę planu, od ogrodu, zajął pokój dzienny z otwartymi schodami. Na piętrze przestronny przedpokój prowadzi do 4 sypialni, z których każda ma regularny kształt. Poddasze można częściowo wykorzystać na cele użytkowe. Elewacje w projekcie domu Iryda Duo są gładkie, ascetyczne, bez balkonów. Pozostawiają dużą swobodę indywidualizacji elementami małej architektury i konstrukcji ogrodowych.
Wersję do zabudowy szeregowej proponuje projekt domu Iryda Multi.
-
Teczka do przechowywania dokumentacji projektowej0 zł
-
Dziennik budowy0 zł
-
Tablica informacyjna na budowę - po otrzymaniu projektu domu i wypełnieniu ankiety0 zł
-
Zgoda na zmiany0 zł
-
Dokumentacja projektowa w plikach pdf0 zł

opieką konsultacyjną w trakcie budowy domu