Hania Duolit



Opis projektu Hania Duolit – zwarty bliźniak z garażem
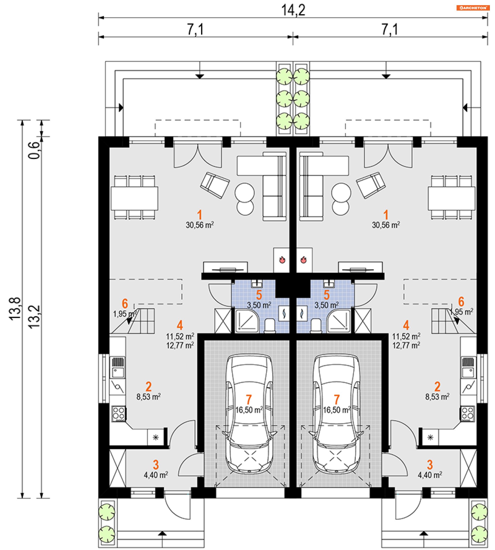
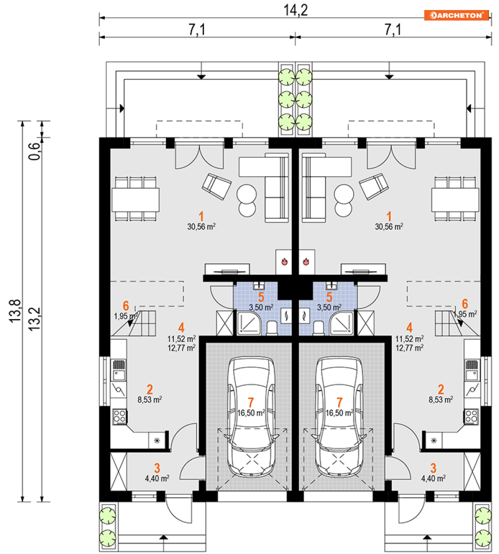
Hania Duolit to bliźniak o zwartej bryle, w której znalazło się miejsce na garaż. Pojedynczy segment zaprojektowano na planie wydłużonego prostokąta, dzięki czemu ten dom sprawdzi się także na wąskich działkach.
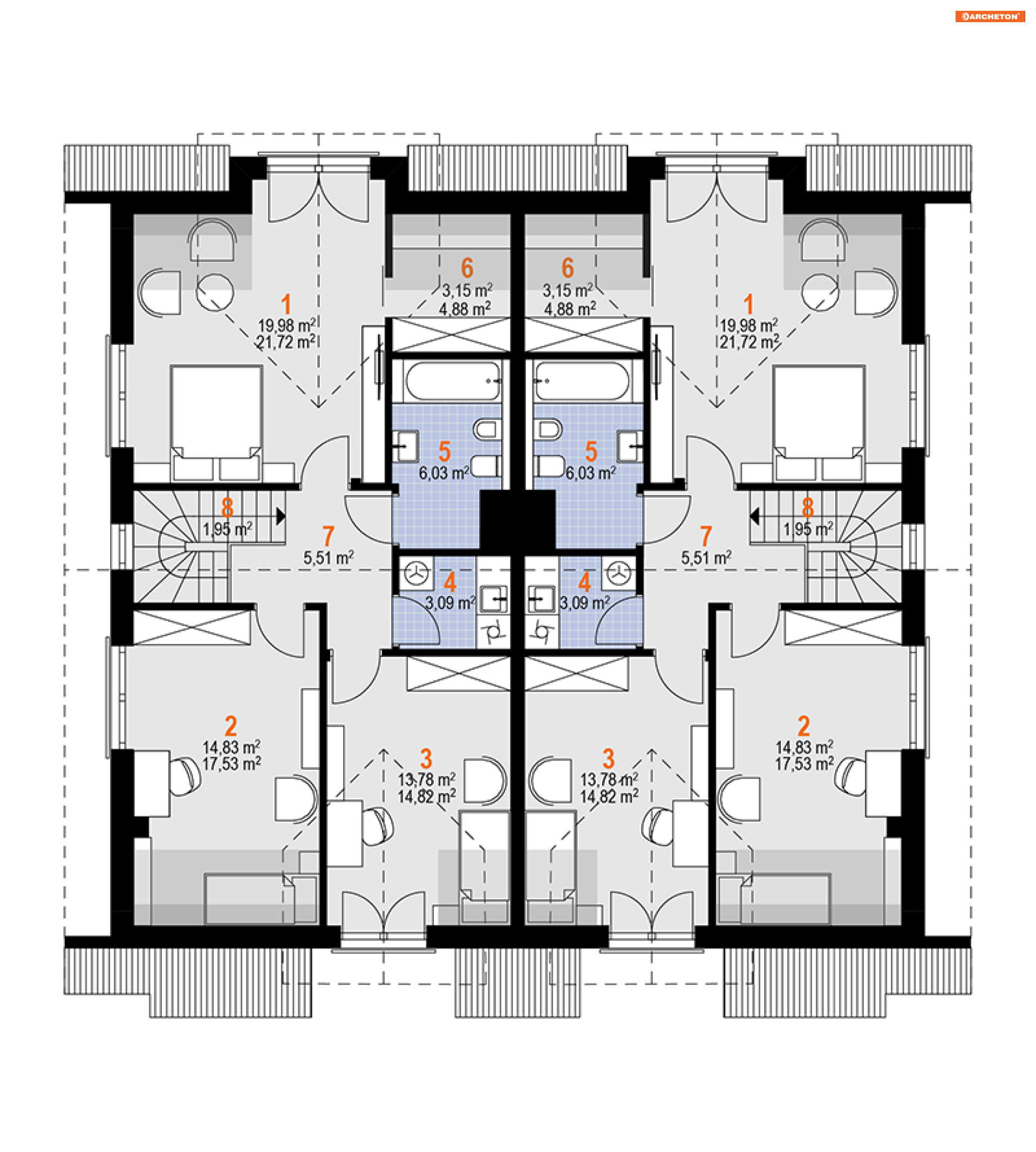
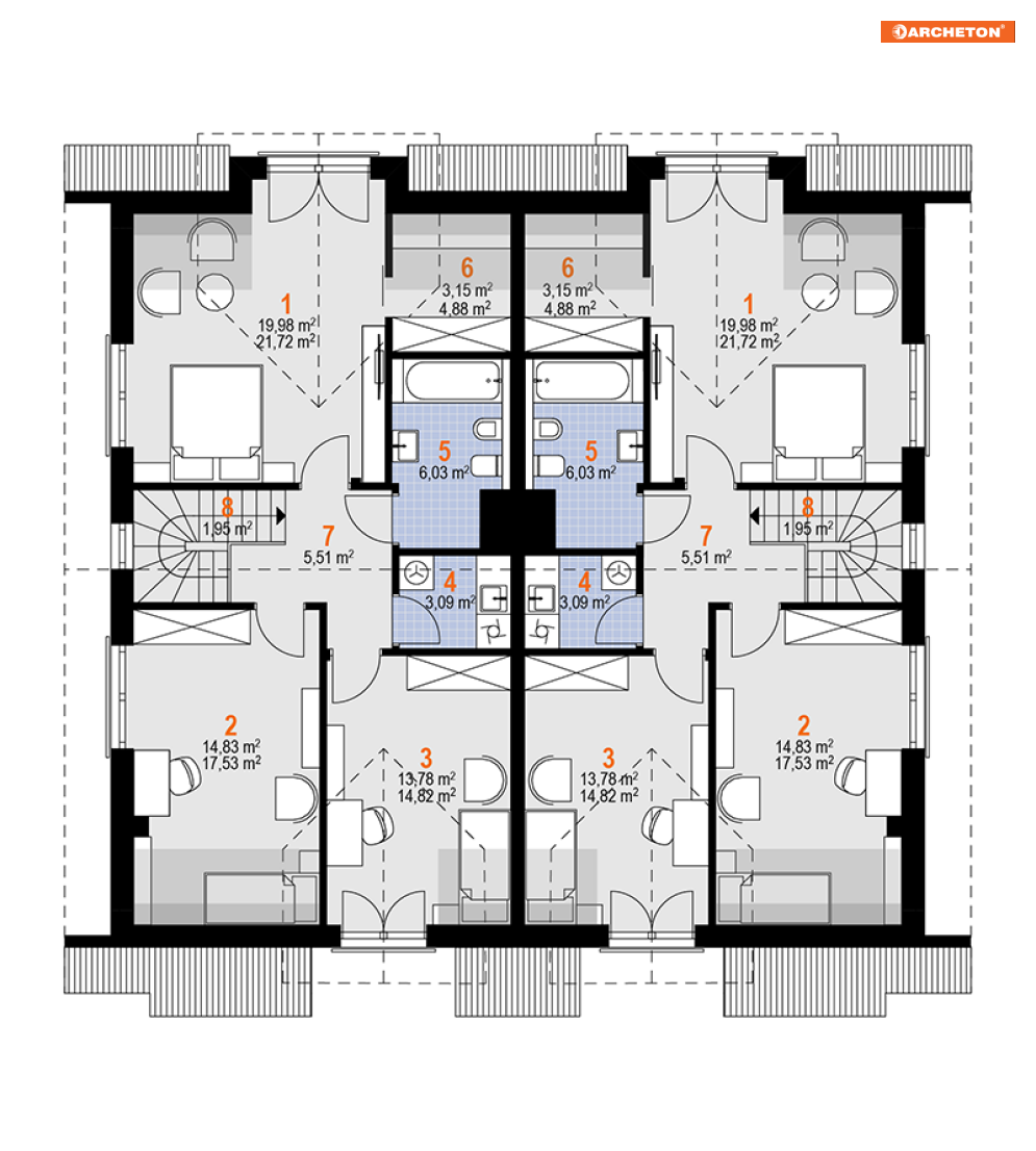
Cały bliźniak ma prostą bryłę, przykrytą dachem dwuspadowym, w którym znalazło się miejsce na smukłe lukarny. Elewacja frontowa ma tradycyjną formę, a nieco wysunięta połać dachu nad drzwiami wejściowymi osłania tę strefę. Elewacja ogrodowa to przede wszystkim duże drzwi na taras i okna sięgające podłogi. Wysunięty wykusz lukarny urozmaica elewację i zawiera w sobie duże przeszklenie balkonu francuskiego.
Projekty bliźniaków posiadają tak zaplanowaną przestrzeń, aby segment jedną ze ścian bocznych mógł stanąć na granicy działki. Niewątpliwym atutem projektu Hania Duolit, jest fakt, że znaczną część tej ściany stanowi ściana garażu. Dzięki temu pozostałe pomieszczenia zlokalizowano przy ścianach z przeszkleniami. Rzut parteru posiada otwartą strefę dzienną z miejscem na kominek. Klatka schodowa znajduje się w centralnej części i częściowo oddziela kuchnie od salonu połączonego z jadalnią. Na poddaszu przewidziano główną sypialnię z garderobą, oraz dwa pokoje zlokalizowane od frontu. Dopełnieniem jest przestronna łazienka i oddzielna pralnia. Wersja Hania Duo jest przeznaczona do budowy na granicy dwóch odrębnych działek.
-
Teczka do przechowywania dokumentacji projektowej0 zł
-
Dziennik budowy0 zł
-
Tablica informacyjna na budowę - po otrzymaniu projektu domu i wypełnieniu ankiety0 zł
-
Zgoda na zmiany0 zł
-
Dokumentacja projektowa w plikach pdf0 zł

opieką konsultacyjną w trakcie budowy domu