Longinus Prima



Longinus Prima to mały dom dla 5-osobowej rodziny – idealny na wąską działkę. Z zewnątrz uwagę przykuwa pięknie zaprojektowana elewacja, gdzie ciepły odcień drewnopodobnej okładziny kontrastuje z białym tynkiem okalającym górną kondygnację. Takie połączenie nadaje budynkowi nieco rustykalny rys.
Obok desek elewacyjnych, które są bardzo wyrazistym akcentem, oryginalnym pomysłem jest też duże, sięgające podłogi okno na ścianie frontowej (na lewo od wejścia), oraz równie wysokie, wąskie okno na prawo od drzwi, doświetlające garderobę.
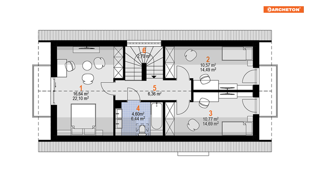
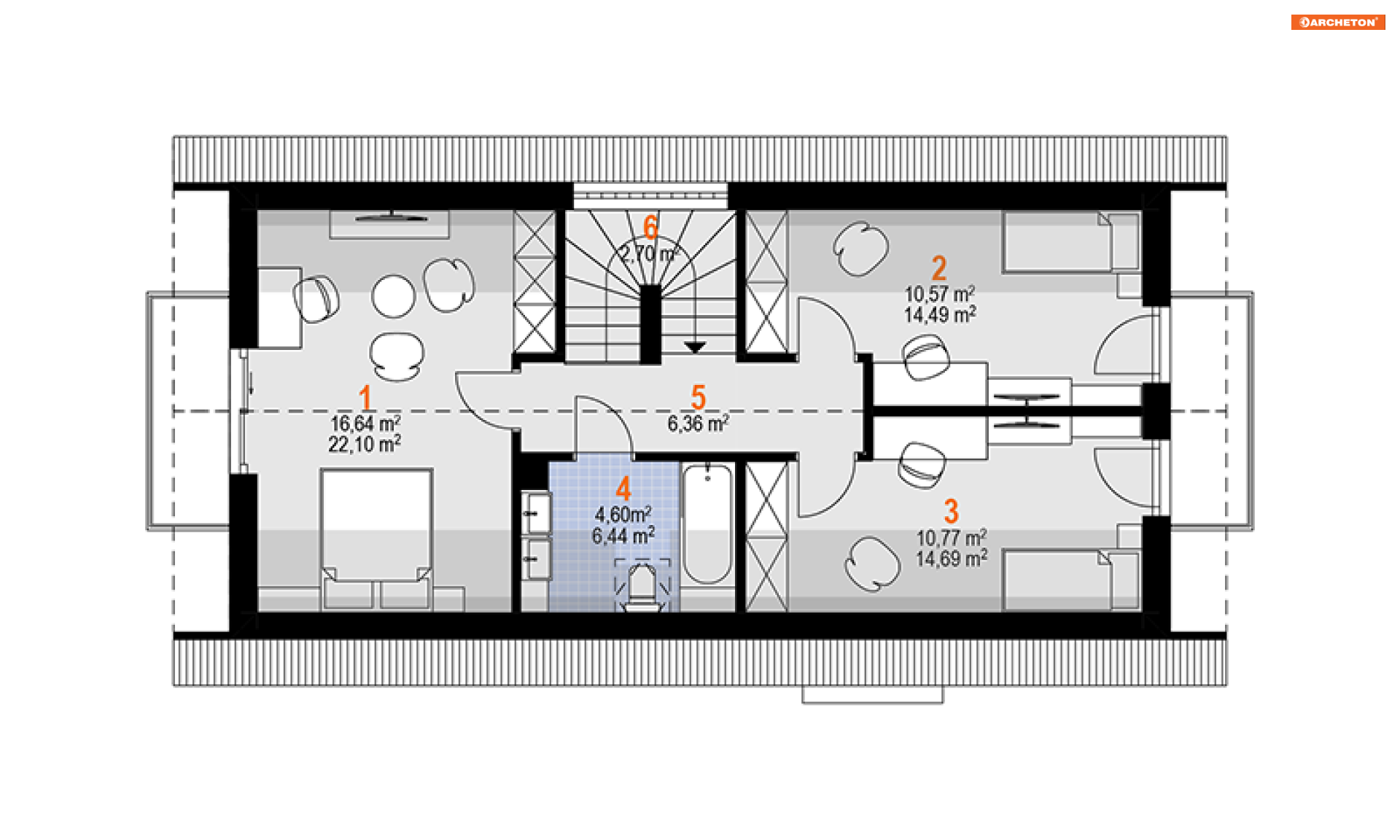
Jak przystało na zaprojektowany dla 5-osobowej rodziny mały dom o nieco rustykalnym stylu, w usytuowanym na parterze salonie znajduje się kominek, współtworzący wrażenie przytulności. Latem dostępna powierzchnia powiększa się o duży taras, na który wychodzi się bezpośrednio z salonu. Na parterze znajduje się jeszcze kotłownia oraz dodatkowy pokój z przylegającą do niego łazienką i sporą garderobą z oknem. Na piętrze są trzy przestronne, ustawne pokoje. Z każdego z nich można wyjść na jeden z dwóch balkonów, które są symetrycznie umieszczone na ścianach szczytowych i osłonięte przez okap szczytowy.
Mały dom dla 5-osobowej rodziny Longinus Prima ma 114.3 m² powierzchni. Minimalna szerokość i długość działki wynoszą odpowiednio 21,4x13,5 m – dzięki temu można postawić go nawet na wąskiej działce.
-
Teczka do przechowywania dokumentacji projektowej0 zł
-
Dziennik budowy0 zł
-
Tablica informacyjna na budowę - po otrzymaniu projektu domu i wypełnieniu ankiety0 zł
-
Zgoda na zmiany0 zł
-
Dokumentacja projektowa w plikach pdf0 zł

opieką konsultacyjną w trakcie budowy domu