Dingo Duolit



Opis projektu Dingo Duolit - dom bliźniak połączony garażem
Dingo Duolit to interesujący projekt domów bliźniaków połączonych garażem. Zwarta, nieco minimalistyczna konstrukcja jest niedroga w budowie i eksploatacji, choć oczywiście nie oznacza to żadnych kompromisów na rzecz komfortu.
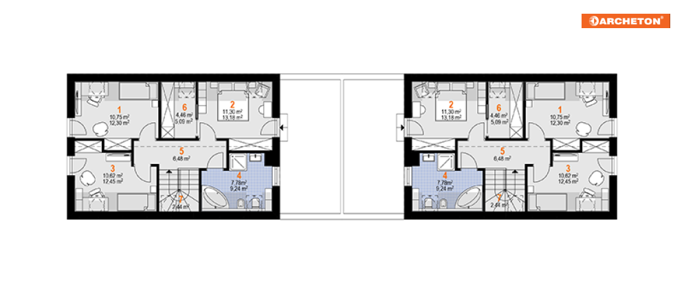
Połączone garażami z płaskim dachem budynki są przykryte dachami dwuspadowymi, których kalenice usytuowane są równolegle do drogi dojazdowej. Ta nieoczywista gra geometrią form daje bardzo ciekawy architektonicznie efekt. Wnętrze każdego z domów bliźniaków połączonych garażem to z kolei cała gama sprawdzonych i cenionych w tego typu budownictwie rozwiązań. Na parterze znajduje się wspólna przestrzeń: obszerny pokój dzienny z kuchnią i jadalnią, a także łazienka i dodatkowy pokój. Po schodach, które doświetlone są światłem dziennym, wchodzi się na wyższą kondygnację. Znajdują się tu trzy pokoje (w tym jeden połączony z garderobą) oraz duża łazienka. Wszystkie pomieszczenia są bardzo dobrze doświetlone dzięki portfenetrom oraz oknom dachowym.
Dom bliźniak połączony garażem Dingo Duolit to propozycja idealna dla dwóch rodzin 2+2, a także dla rodzin wielopokoleniowych.
-
Teczka do przechowywania dokumentacji projektowej0 zł
-
Dziennik budowy0 zł
-
Tablica informacyjna na budowę - po otrzymaniu projektu domu i wypełnieniu ankiety0 zł
-
Zgoda na zmiany0 zł
-
Dokumentacja projektowa w plikach pdf0 zł

opieką konsultacyjną w trakcie budowy domu