Sosenka 5 wariant D
Dodaj do porównania
Usuń z porównania
Dodaj do ulubionych
Usuń z ulubionych
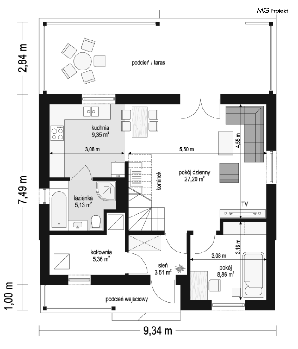
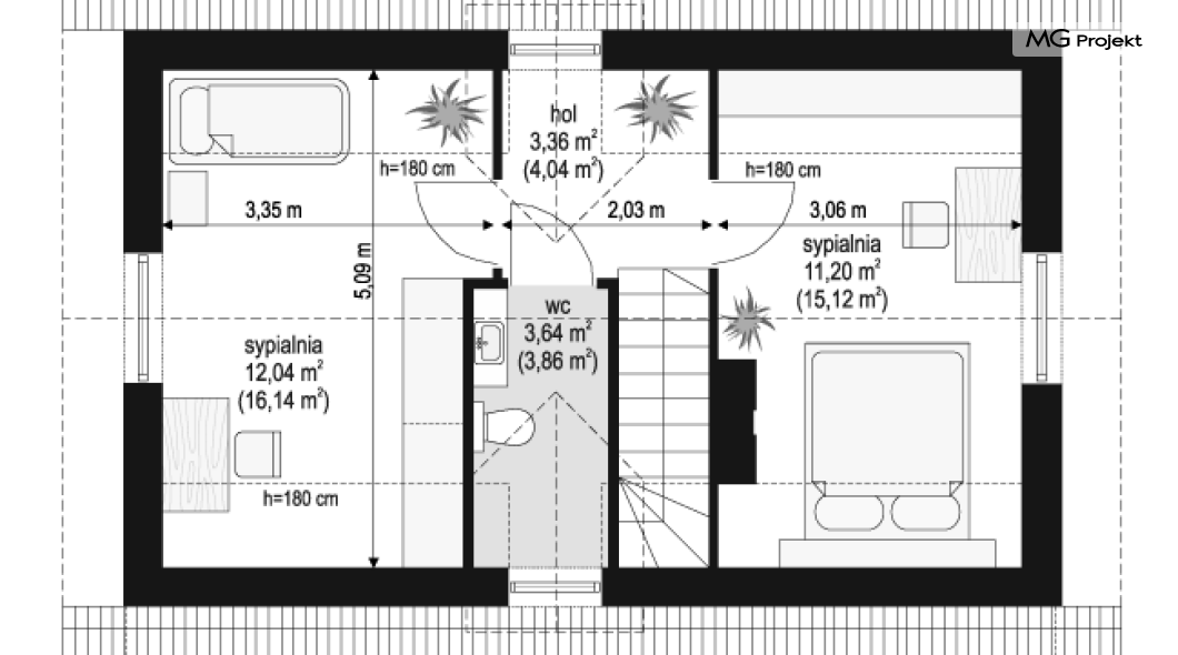
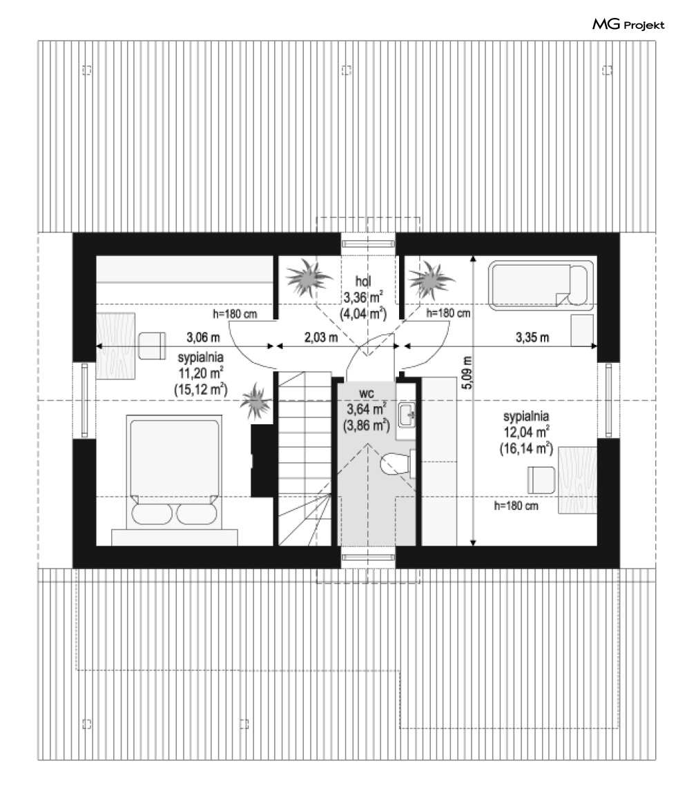
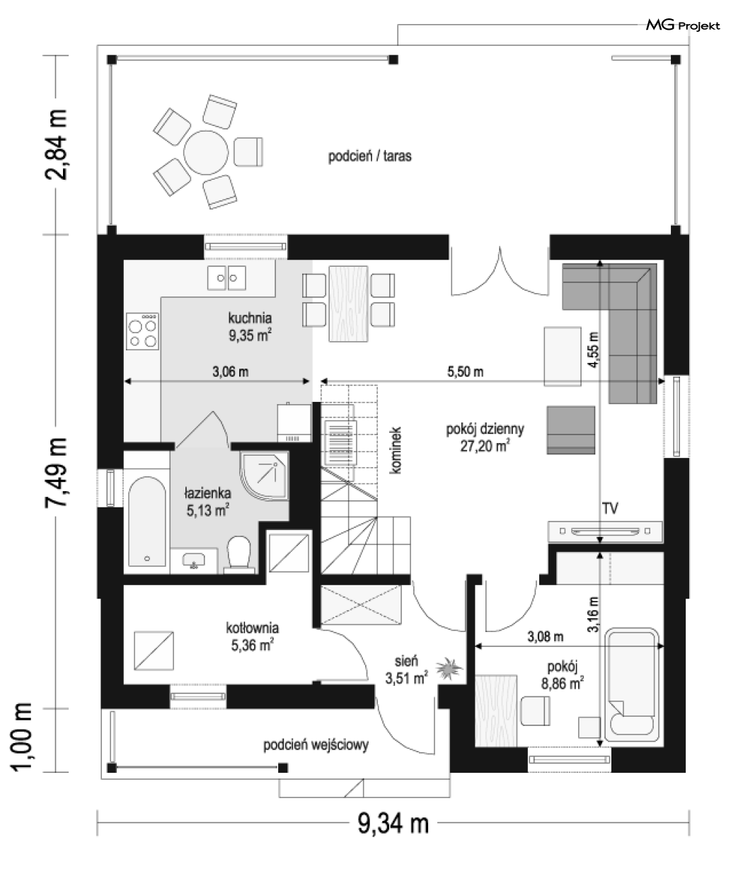
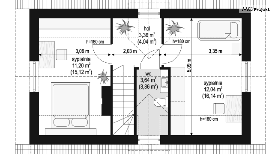
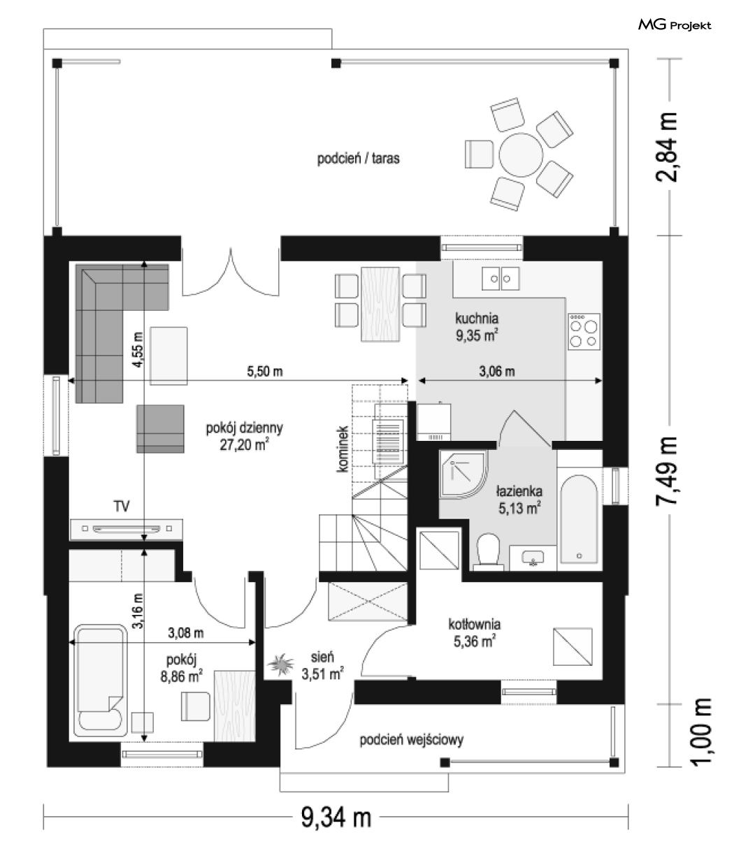
Pow. użytkowa:
84.29m2
Pow. zabudowy:
73.51m2
Koszt budowy:
328000zł
Liczba pokoi:
4
Liczba łazienek:
2
Rzuty

Lustrzane odbicie
Pobierz rysunki szczegółowe
Zapytaj, co możesz zmienić

Lustrzane odbicie
Pobierz rysunki szczegółowe
Zapytaj, co możesz zmienić
Zamów rysunki szczegółowe
Zapoznaj się ze szczegółowymi rysunkami rzutów kondygnacji w PDF dla tego projektu.
ZAMAWIAM

Elewacje

Frontowa

Ogrodowa

Lewa

Prawa
Specyfikacja techniczna
Główne parametry
Powierzchnia użytkowa
84,29 m2
Łączna powierzchnia tzw. pomieszczeń użytkowych. Przede wszystkim nie zalicza się do niej powierzchni garażu, nieużytkowego strychu, piwnicy, kotłowni.
Liczba pokoi
4
Liczba łazienek
2
Powierzchnia zabudowy
73,51 m2
Powierzchnia zajmowana przez budynek na działce. W praktyce tzw. powierzchnia rzutu budynku wyznaczana po obrysie ścian zewnętrznych.
Pełna specyfikacja
Maksymalna wysokość budynku
7,39 m
Wysokość wyznaczona od poziomu terenu do najwyżej położonej części dachu (np. kalenicy), zwykle bez uwzględnienia kominów.
Kąt nachylenia dachu
45,00°
Nachylenie połaci dachu podane w stopniach.
Minimalne wymiary działki (szerokość)
17,34 m
Szerokość działki wyznaczona przy założeniu, że minimalna odległość budynku od granic działki wynosi przynajmniej 3 m w przypadku ścian bez otworów okiennych lub drzwiowych, albo 4 m w przypadku ścian budynku z takimi otworami.
Minimalne wymiary działki (długość)
18,33 m
Długość działki wyznaczona przy założeniu, że minimalna odległość budynku od granic działki wynosi przynajmniej 3 m w przypadku ścian bez otworów okiennych lub drzwiowych, albo 4 m w przypadku ścian budynku z takimi otworami.
Technologia budowy
Szkieletowy
Typ dachu
Dwuspadowy
Kształt dachu – płaski, jednospadowy (jedna skośna połać), dwuspadowy (dwie połacie), wielospadowy (w praktyce o przynajmniej czterech połaciach).
Energooszczędność
Standardowy
Energooszczędny – dom o zapotrzebowaniu na tzw. nieodnawialna energię pierwotną (EP) niższym, niż wymagana przepisami maksymalna wartość.
Typ zabudowy
Jednorodzinny
Koszt: Instalacje
58 620 zł
Łączny koszt wykonania wszystkich niezbędnych instalacji wewnętrznych – grzewczej, wentylacyjnej, wodno-kanalizacyjnej, elektrycznej itd.
Koszt: Wykoczńenie
263 383 zł
Powierzchnia netto budynku
89,65 m2
Łączna powierzchnia wszystkich kondygnacjach obliczana z pominięciem elementów
konstrukcyjnych (ściany nośne, słupy itp.) ale wraz z powierzchnią zajmowaną przez ścianki działowe lub inne elementy, które można potencjalnie zdemontować.
Powierzchnia całkowita budynku
106,28 m2
Łączna powierzchnia wszystkich kondygnacjach obliczana po obrysie ścian zewnętrznych, wraz z powierzchnią zajmowaną przez ściany wewnętrzne.
Kubatura budynku
369,00 m3
Objętość budynku, zwykle wraz z elementami konstrukcyjnymi (ścianami, stropami itd.).
Szerokość budynku
9,34 m
Maksymalna szerokość budynku wraz z grubością izolacji cieplnej oraz okładzin ściennych.
Długość budynku
8,49 m
Maksymalna długość budynku wraz z grubością izolacji cieplnej oraz okładzin ściennych.
Liczba kondygnacji
Z poddaszem użytkowym
Za kondygnacje uznawane są również poddasza użytkowe oraz piwnice. Kondygnacją nie jest natomiast poddasze nieużytkowe ani antresola.
Koszty
Koszty budowy
328 000 zł
Koszt: Stan pod klucz
Obejmuje koszt wszystkich robót stanu surowego, wykonania instalacji wewnętrznych oraz robót wykończeniowych.
191 000 zł
Koszt: Stan surowy zamknięty
Koszt wzniesienia budynku wraz z pokryciem dachu i stolarką zewnętrzną (okna i drzwi). Bez instalacji, ocieplenia i robót wykończeniowych.
Opis
Budynek w technologii szkieletowej.
Dodatki do projektu
Opieka konsultacyjna
0zł
599 zł
Prenumerata 12 tytułów
0zł
599 zł
-
Projekt szamba szczelnego0 zł399 zł
-
Charakterystyka energetyczna0 zł200 zł
-
Pakiet energooszczędny0 zł150 zł
-
Dziennik budowy0 zł60 zł
-
Tablica budowy0 zł120 zł
-
Wersja elektroniczna projektu550 zł
-
Pakiet kosztorys inwestorski550 zł
-
Pakiet ogrzewanie podłogowe470 zł
-
Powietrzna pompa ciepła470 zł
-
Pakiet wentylacja mechaniczna i kominek DGP470 zł
Prenumerata 12 tytułów
0zł
599 zł
-
Dodatkowy egzemplarz projektu500 zł
-
Pakiet kotłownia na paliwo stałe470 zł
-
Pakiet instalacja fotowoltaiczna470 zł
-
Pakiet klimatyzacja w domu470 zł
-
Pakiet gruntowa pompa ciepła470 zł
-
Pakiet odkurzacz centralny470 zł
-
Pakiet płaszcz wodny470 zł
-
Pakiet kominek DGP399 zł
-
Projekty altan i grillów ogrodowych650 zł
-
Pakiet instalacja solarna470 zł

Sosenka 5 wariant D
BD52387
Powierzchnia użytkowa
Łączna powierzchnia tzw. pomieszczeń użytkowych. Przede wszystkim nie zalicza się do niej powierzchni garażu, nieużytkowego strychu, piwnicy, kotłowni.
84,29 m2
Liczba pokoi
4
Liczba łazienek
2
Powierzchnia zabudowy
Powierzchnia zajmowana przez budynek na działce. W praktyce tzw. powierzchnia rzutu budynku wyznaczana po obrysie ścian zewnętrznych.
73,51 m2
Kup projekt
5 490 zł
Projekt + opieka konsultacyjna
Tylko u nas
kupujesz projekt wraz z
opieką konsultacyjną w trakcie budowy domu
opieką konsultacyjną w trakcie budowy domu
Kup projekt
5 490 zł
Masz pytania?
Zadzwoń!
22 257 84 76
pon-pt: 9-17
Inne wersje projektu
PODOBNE PROJEKTY
