Willa Siedziba 3







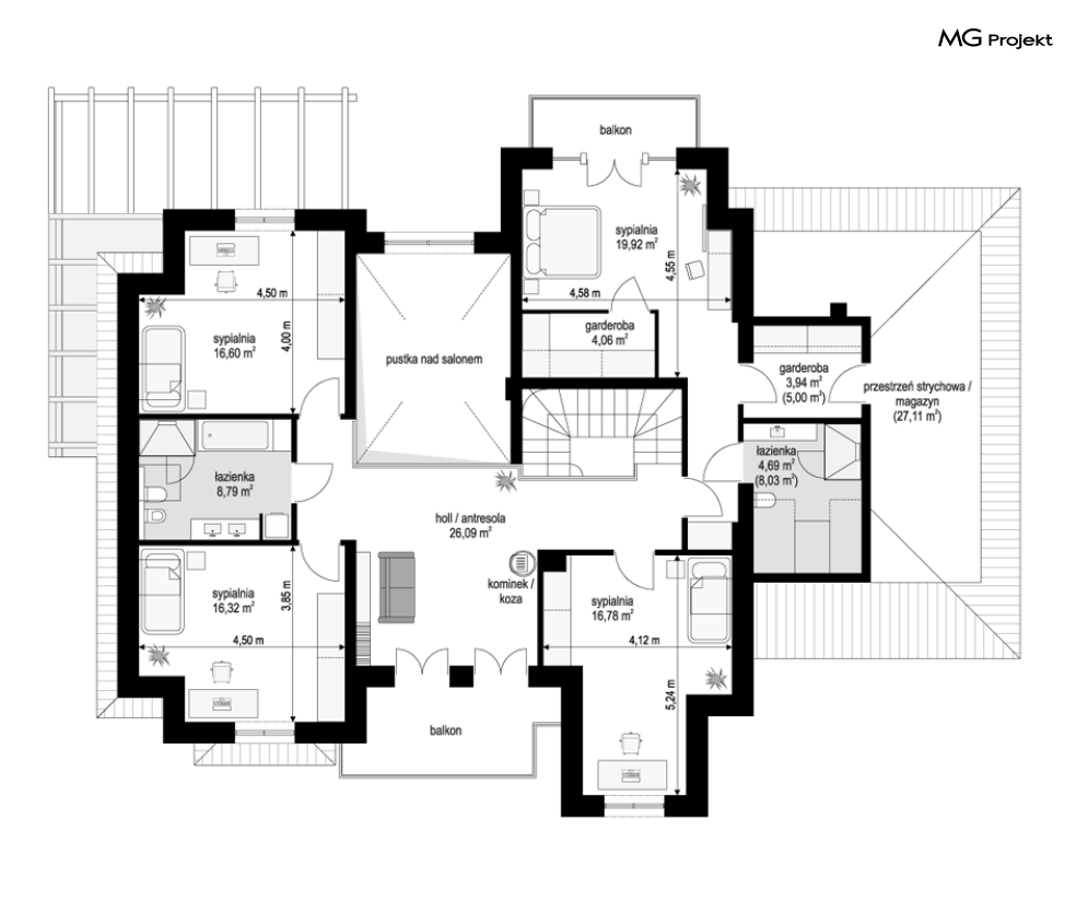
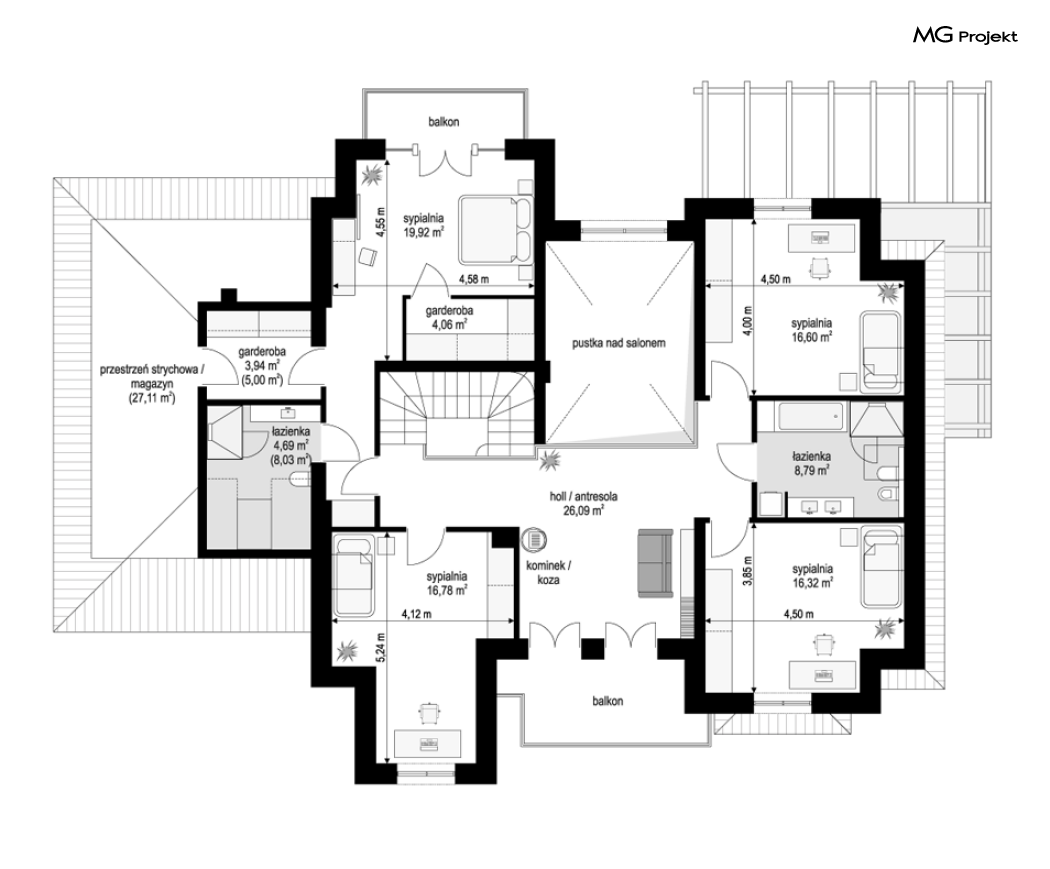
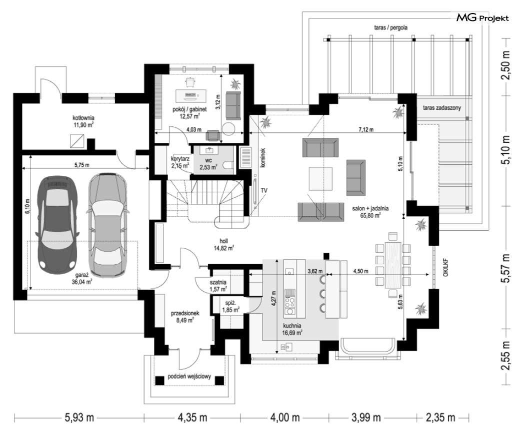
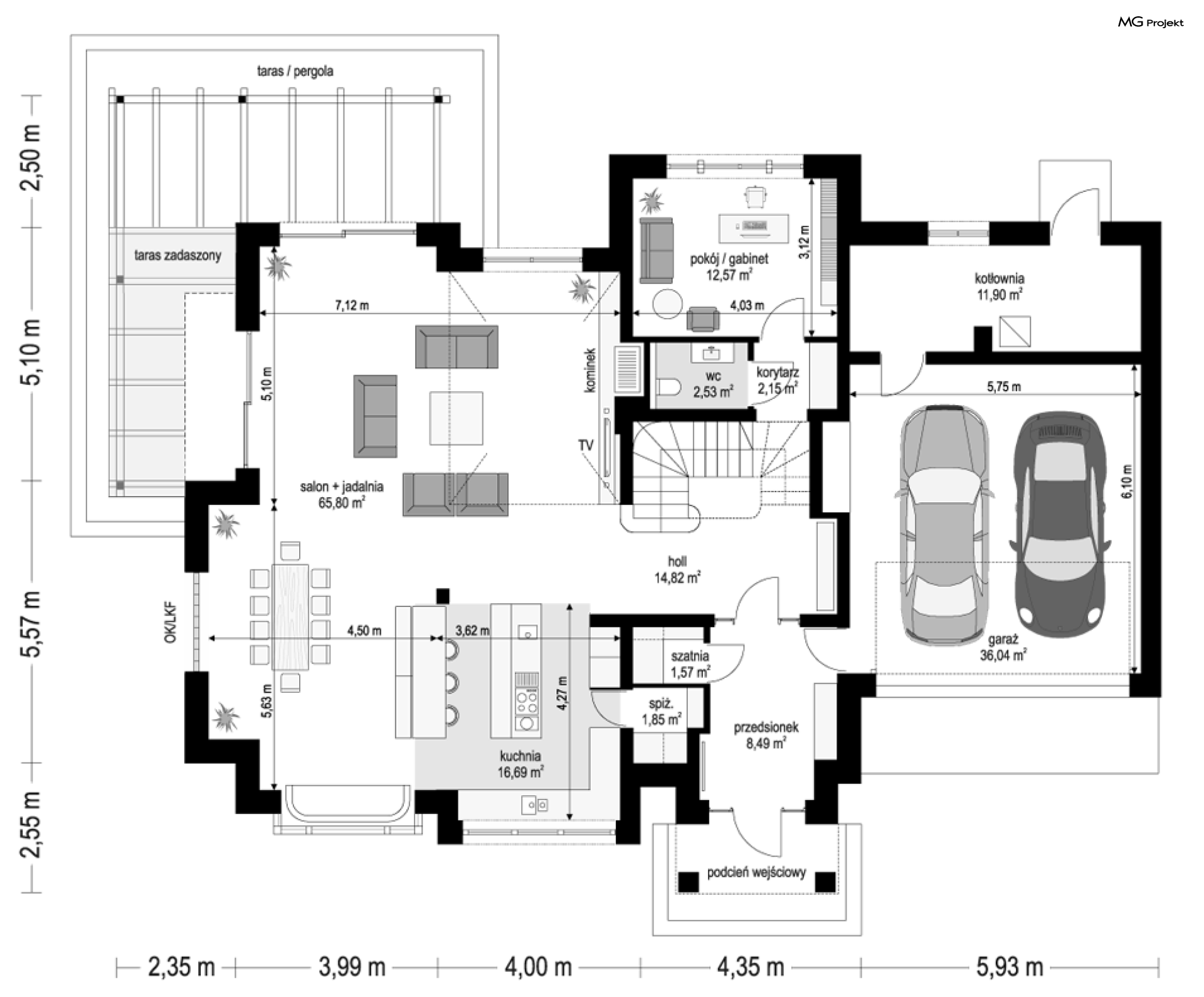
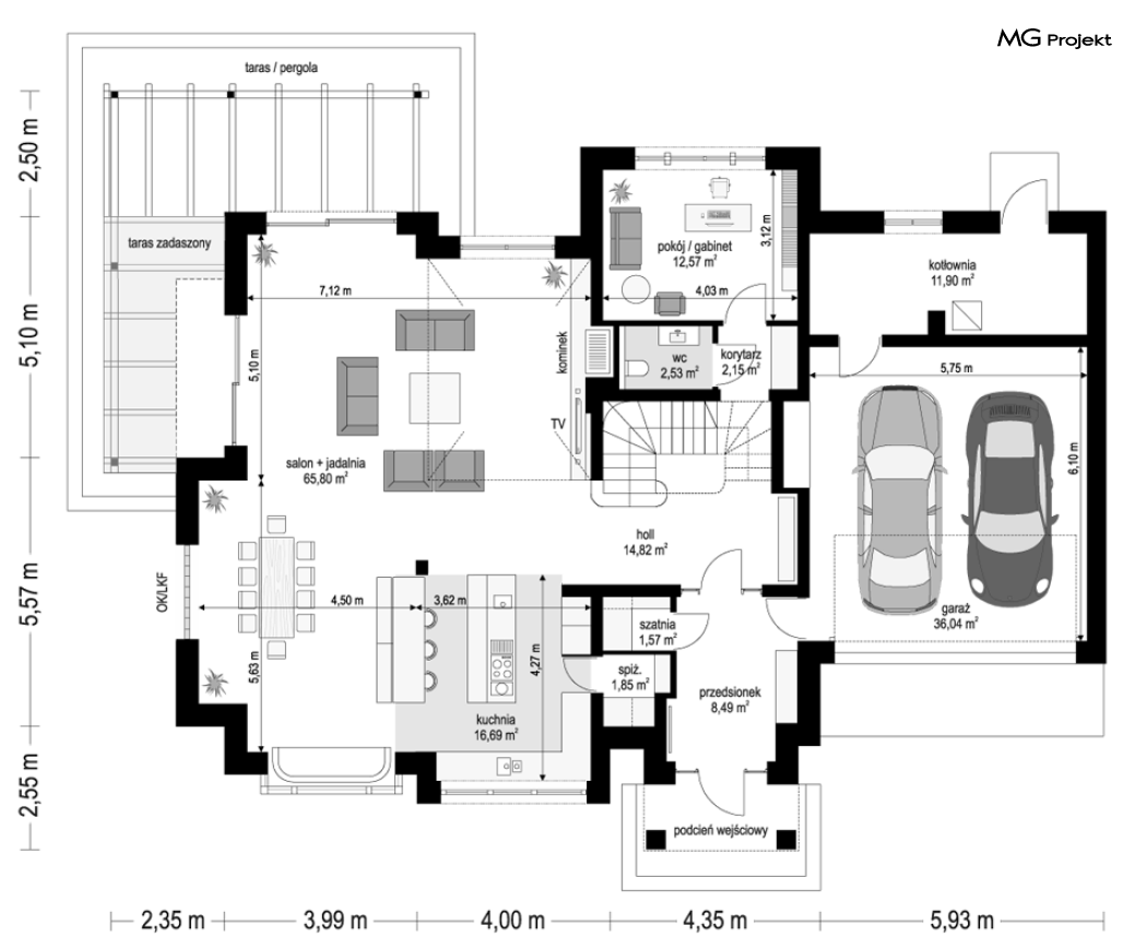
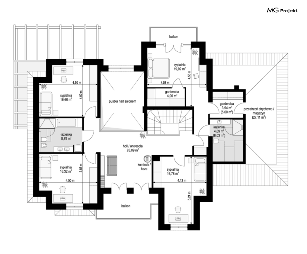
Projekt domu Willa Siedziba 3 to nowa odsłona cieszącego się uznaniem projektu Willa Siedziba. Nowy wariant to zmniejszony o 50 m2 dom, ze zwężoną o 5 metrów szerokością bryły, dzięki czemu budynek zmieści się na węższej 26-metrowej działce. Willa Siedziba 3 to reprezentacyjna miejska willa, nawiązująca swoją formą i stylistyką do wczesno dwudziestowiecznych rezydencji, jakie możemy spotkać do dziś w prestiżowych willowych dzielnicach większych miast. Dom ma powierzchnię użytkową wynoszącą ca 240 m2 i jest przeznaczony dla 4-6cioosobowej rodziny. Bryłę budynku zaprojektowano na prostokątnym planie i składa się z dwóch części - wyżej mieszkalnej, przykrytej czterospadowym dachem, oraz niższej bryły garażu. Dach budynku został osadzony na wysokości umożliwiającej interpretację tego budynku jako dom z poddaszem użytkowym. Główna bryła urozmaicona została czterema masywnymi lukarnami, skrywającymi w swojej szerokości pokoje górnej kondygnacji. Od strony elewacji fontowej willi mamy reprezentacyjne wejście z szerokimi drzwiami z naświetlami. Następnie dwa wykusze - kuchenny i jadalni - oba o innej formie, ale harmonizujące ze sobą. Dalej balkon z ozdobną balustradą, dostępny z holu-saloniku piętra, oraz wspomniane dwie lukarny pokoi piętra spinające całą kompozycję bryły. Trochę wycofany garaż nie narzuca się i pozwala znaleźć miejsce na swobodne parkowanie aut przed drzwiami garażowymi. Strona ogrodowa to jeszcze bardziej urozmaicona fasada. Mamy tutaj wystające lukarny pięter, między nimi dwupiętrowe okno salonu, balkon sypialni master, oraz przepiękną pergolę przykrywającą częściowo taras. Wnętrze domu na parterze to przede wszystkim duża przestrzeń dzienna połączonych pomieszczeń salonu, kuchni i jadalni, tworząca razem ponad 80-metrową powierzchnię. Dodatkowym urozmaiceniem jest tutaj otwarcie przestrzenne - pustka nad salonem, połączona z antresolą piętra, gdzie znajduje się hol-salonik. Do domu wchodzimy przez wygodny przedsionek z szatnią, do holu z reprezentacyjnymi schodami, a dalej do przestrzeni dziennej. Dodatkowe pomieszczenia na parterze to oczywiście duży garaż z pomieszczeniem technicznym, oraz oddzielony akustycznie gabinet. Na piętrze zaprojektowano 4 pokoje sypialne, w tym apartament master z oddzielną łazienką i garderobami. Willa Siedziba 3 została zaprojektowana jako dom energooszczędny, z dobrej jakości materiałów, z dobrą izolacją termiczną i z nowoczesnymi instalacjami. Budynek mimo skomplikowanej formy wykonano w tradycyjnej technologii, z rozwiązaniami spotykanymi na każdej budowie. Budowa budynku nie powinna być problematyczna dla fachowego wykonawcy. Willa Siedziba 3 to propozycja dla Inwestorów marzących o budowie prawdziwego pełnokrwistego domu o odpowiedniej skali, dającego przestrzeń do komfortowego życia, marzących o realizacji projektu nietuzinkowego o ponadczasowej stylistyce. Zapraszamy !
-
Projekt szamba szczelnego0 zł399 zł
-
Charakterystyka energetyczna0 zł200 zł
-
Pakiet energooszczędny0 zł150 zł
-
Dziennik budowy0 zł60 zł
-
Tablica budowy0 zł120 zł
-
Wersja elektroniczna projektu550 zł
-
Pakiet kosztorys inwestorski550 zł
-
Pakiet ogrzewanie podłogowe470 zł
-
Powietrzna pompa ciepła470 zł
-
Pakiet wentylacja mechaniczna i kominek DGP470 zł
-
Dodatkowy egzemplarz projektu500 zł
-
Pakiet kotłownia na paliwo stałe470 zł
-
Pakiet instalacja fotowoltaiczna470 zł
-
Pakiet klimatyzacja w domu470 zł
-
Pakiet gruntowa pompa ciepła470 zł
-
Pakiet odkurzacz centralny470 zł
-
Pakiet płaszcz wodny470 zł
-
Pakiet kominek DGP399 zł
-
Projekty altan i grillów ogrodowych650 zł
-
Pakiet instalacja solarna470 zł

opieką konsultacyjną w trakcie budowy domu