Bolero







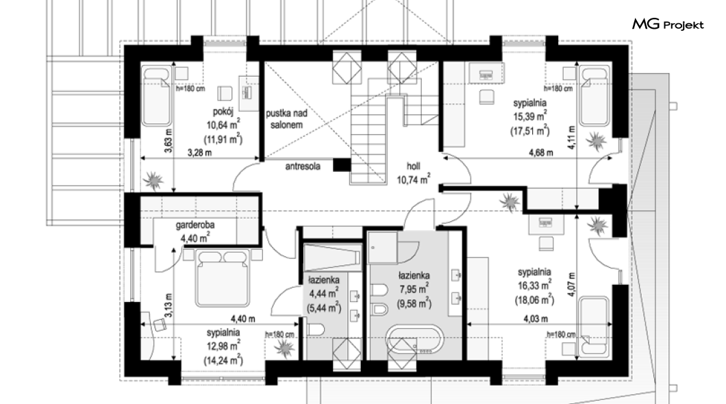
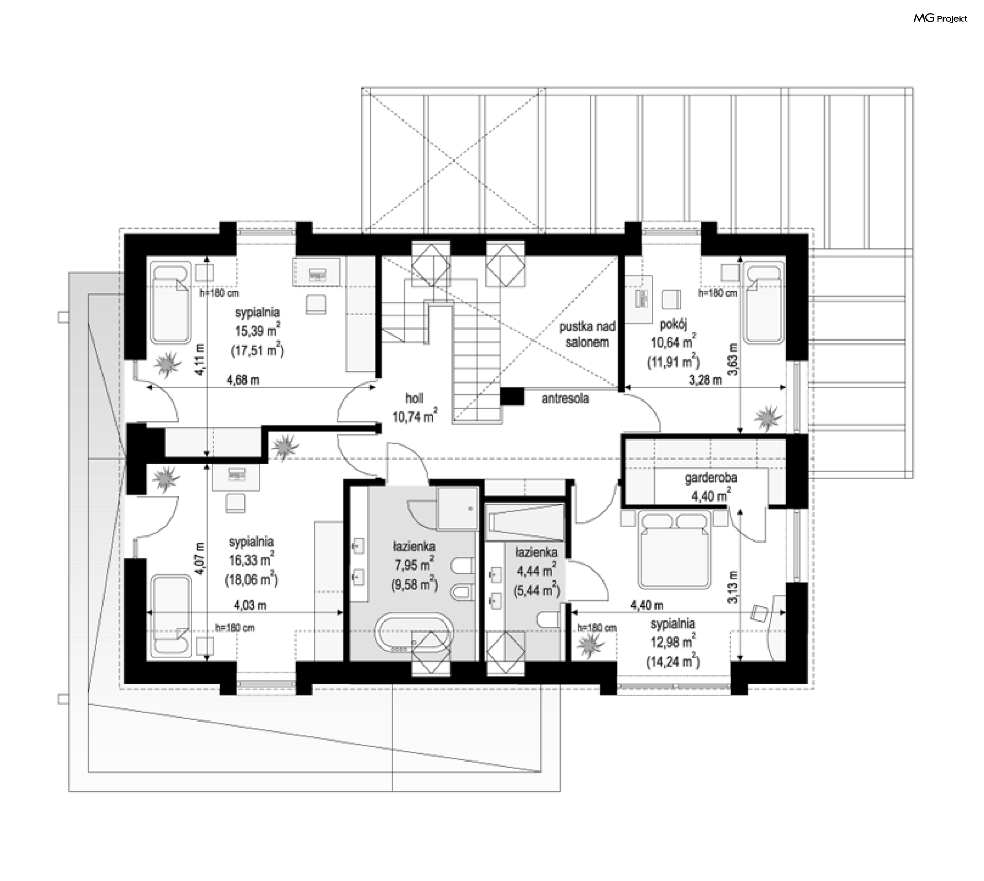
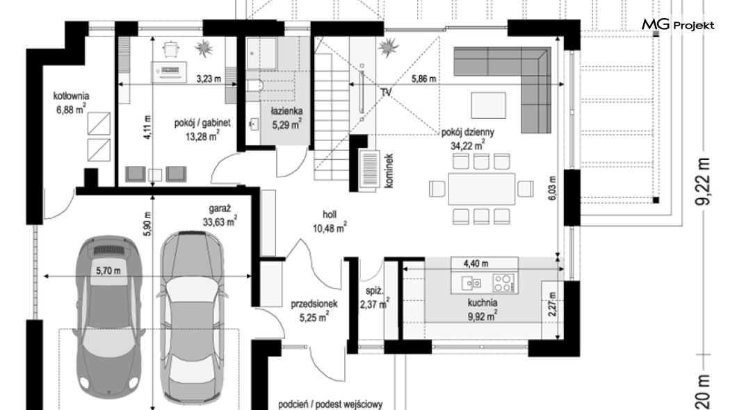
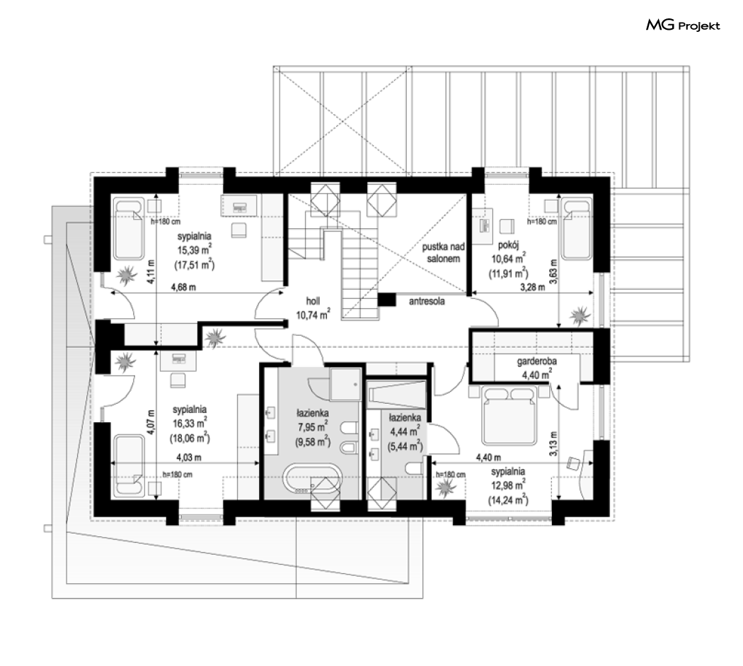
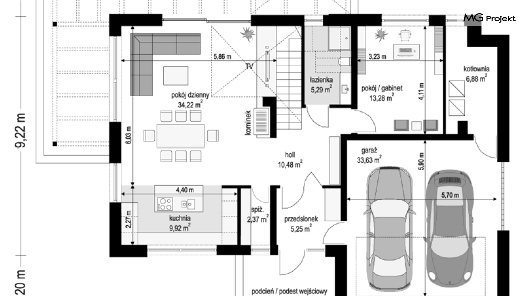
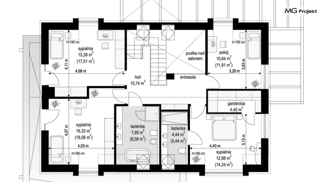
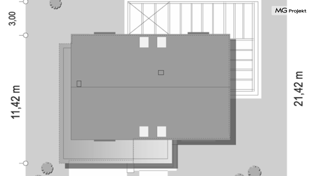
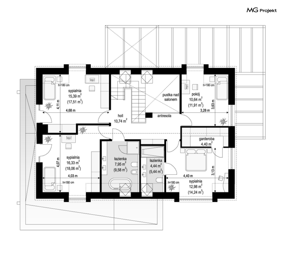
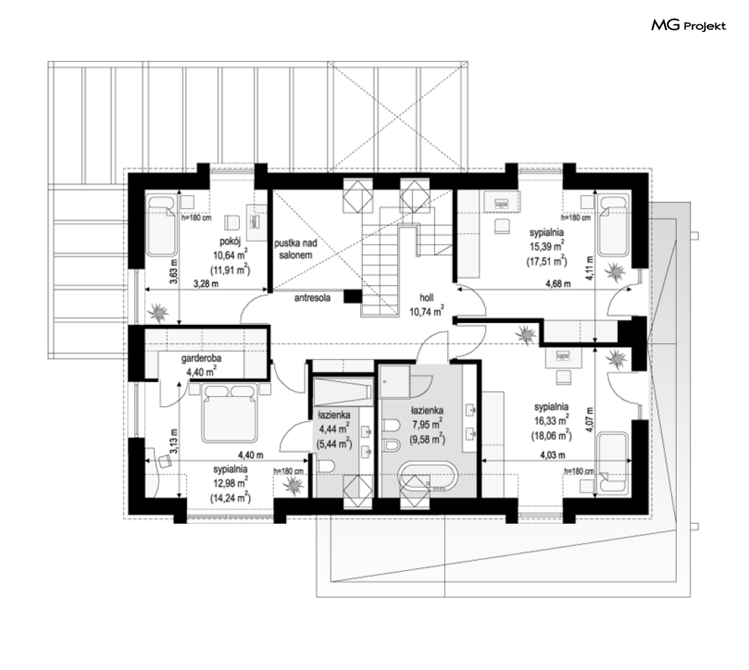
Projekt domu Bolero to projekt domu jednorodzinnego - z naszej serii taneczno-imprezowych domów (Mambo, Lambada, Makarena, Party, Biba, Tango, Salsa, Rumba). Bolero to propozycja praktycznego, funkcjonalnego domu jednorodzinnego, parterowego z poddaszem użytkowym, o nowoczesnej architekturze, w popularnej stylistyce domu-stodoły. Budynek wyróżnia zwarta bryła, nowoczesne detale architektoniczne i funkcjonalne wnętrze. Prostokątny plan, z wbudowanym częściowo garażem przykryto dwuspadowym symetrycznym dachem z wysoką ścianą kolankową poddasza. Sylwetkę domu urozmaicono kubicznymi lukarnami poddasza, a całą fasadę podzielono na poziome pasy wykończone kontrastującymi materiałami. Propozycja elewacji to miks płytki klinkierowej, z fragmentami wykończenia drewnem, oraz tynku. Całość kompozycji zwieńcza dach pokryty płaską dachówką. Oczywiście to jedna z możliwych opcji wykończenia domu od zewnątrz – wszystko zależy od inwencji, wyobraźni i preferencji przyszłych właścicieli. Elewację frontową podkreśla reprezentacyjne wejście z szerokimi drzwiami z naświetlami bocznymi, piękne duże okno kuchni z wyspą, oraz lukarny poddasza z dużymi przeszkleniami. Od strony ogrodowej dom ma spokojniejszą bardziej jednorodną fasadę, z dużymi narożnymi przeszkleniami części dziennej i dodaną pergolą zadaszającą taras ogrodowy. Wnętrze domu zaskakuje poczuciem przestrzeni, niełatwym do uzyskania w 150-metrowym domu. Poczucie przestronności części dziennej potęgują duże przeszklenia salonu na taras, oraz pustka nad salonem i schodami, łącząca pokój dzienny z antresolą na poddaszu. Wnętrze jest bardzo nowoczesne. Przykładem może tu być niebanalna kuchnia z dużą wyspą i oryginalnym baletem roboczym przy oknie. Na parterze prócz salonu zaprojektowano dodatkowy pokój z łazienką, oraz garaż z pomieszczeniem technicznym. Na poddaszu przewidziano cztery pokoje z dwiema łazienkami, w tym apartament master z własną łazienką i garderobą. Wnętrze można dowolnie kształtować, ale bez problemu zmieści się tutaj 4-6cioosobowa rodzina. Budynek zaprojektowano jako energooszczędny, z dobrymi izolacjami i nowoczesnymi instalacjami. Dom ma prostą konstrukcję i zwartą bryłę, dzięki czemu będzie łatwy w budowie i niedrogi w późniejszej eksploatacji. Bolero to propozycja dla Inwestorów pragnących zbudować nowoczesny, nietuzinkowy i ciekawy architektonicznie dom o nieprzesadzonej wielkości. Dom dla Inwestorów chcących połączyć tradycyjną funkcjonalność z ciekawymi designerskimi detalami. Zapraszamy do zapoznania się z całą serią "roztańczonych domów": https://www.mgprojekt.com.pl/makarena, https://www.mgprojekt.com.pl/bolero, https://www.mgprojekt.com.pl/lambada, https://www.mgprojekt.com.pl/party, https://www.mgprojekt.com.pl/party-2, https://www.mgprojekt.com.pl/biba, https://www.mgprojekt.com.pl/tango, https://www.mgprojekt.com.pl/salsa, https://www.mgprojekt.com.pl/rumba, https://www.mgprojekt.com.pl/mambo.
-
Projekt szamba szczelnego0 zł399 zł
-
Charakterystyka energetyczna0 zł200 zł
-
Pakiet energooszczędny0 zł150 zł
-
Dziennik budowy0 zł60 zł
-
Tablica budowy0 zł120 zł
-
Wersja elektroniczna projektu550 zł
-
Pakiet kosztorys inwestorski550 zł
-
Pakiet ogrzewanie podłogowe470 zł
-
Powietrzna pompa ciepła470 zł
-
Pakiet wentylacja mechaniczna i kominek DGP470 zł
-
Dodatkowy egzemplarz projektu500 zł
-
Pakiet kotłownia na paliwo stałe470 zł
-
Pakiet instalacja fotowoltaiczna470 zł
-
Pakiet klimatyzacja w domu470 zł
-
Pakiet gruntowa pompa ciepła470 zł
-
Pakiet odkurzacz centralny470 zł
-
Pakiet płaszcz wodny470 zł
-
Pakiet kominek DGP399 zł
-
Projekty altan i grillów ogrodowych650 zł
-
Pakiet instalacja solarna470 zł

opieką konsultacyjną w trakcie budowy domu