Lambada







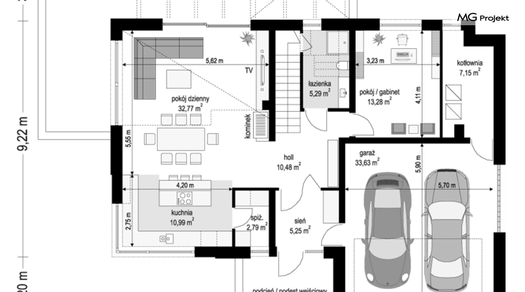
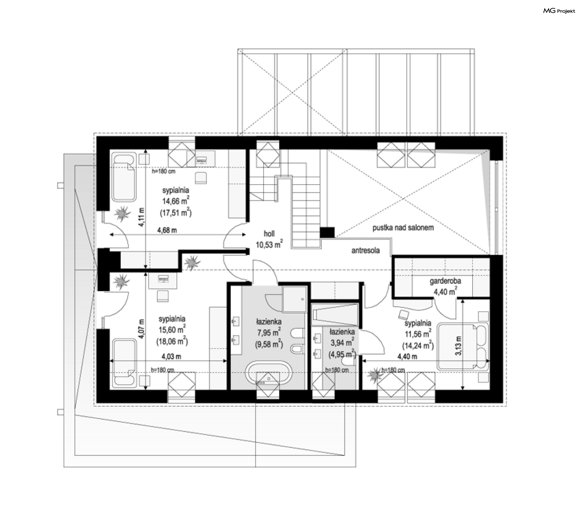
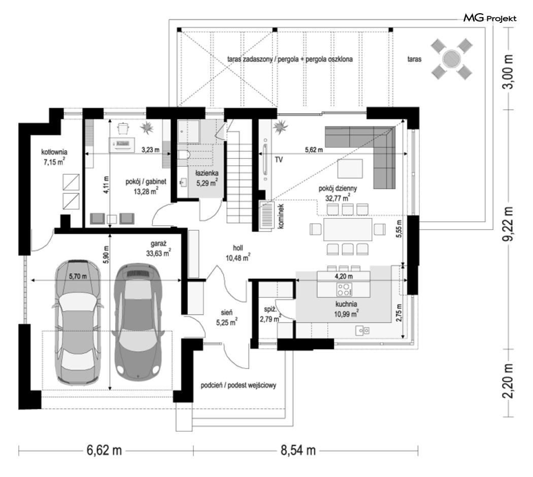
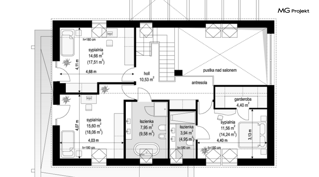
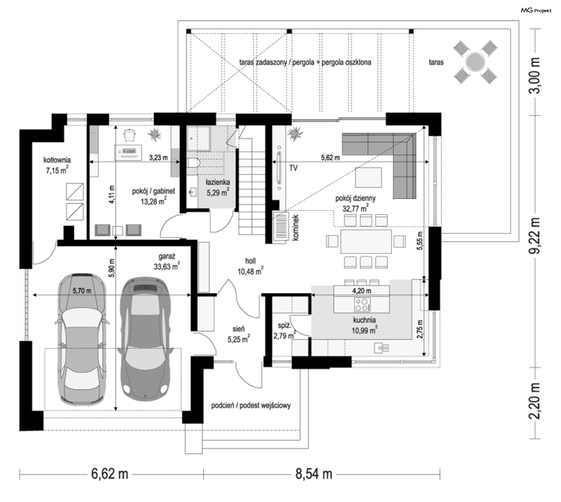
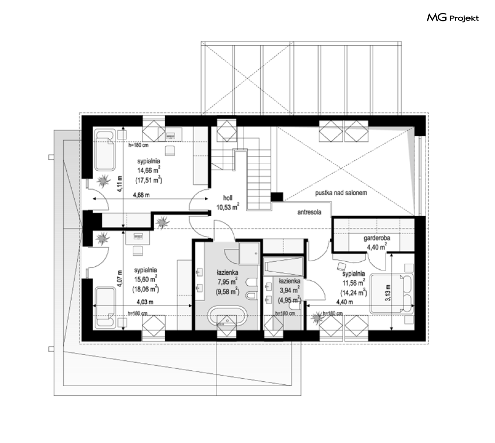
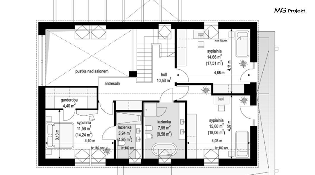
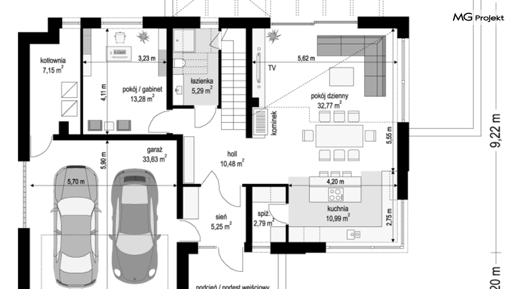
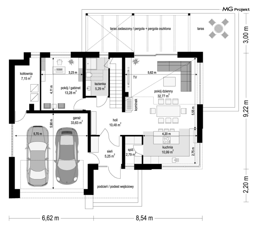
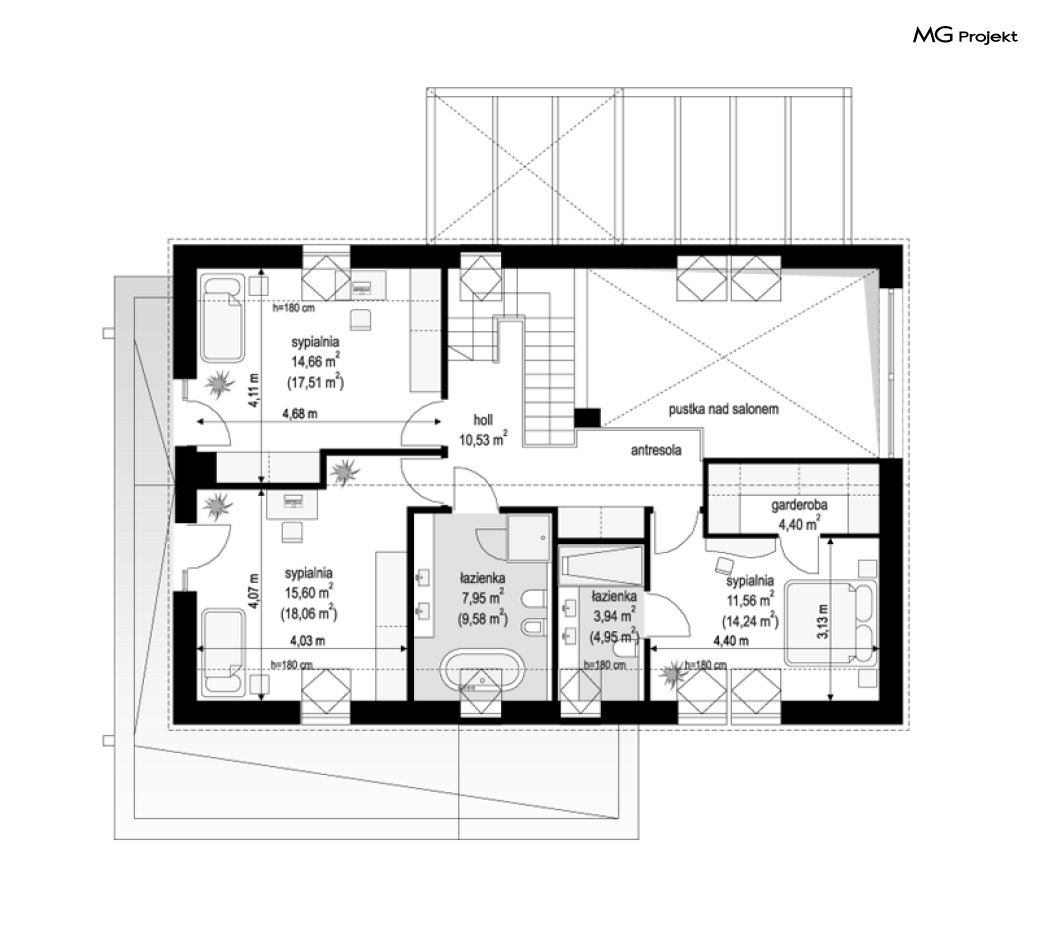
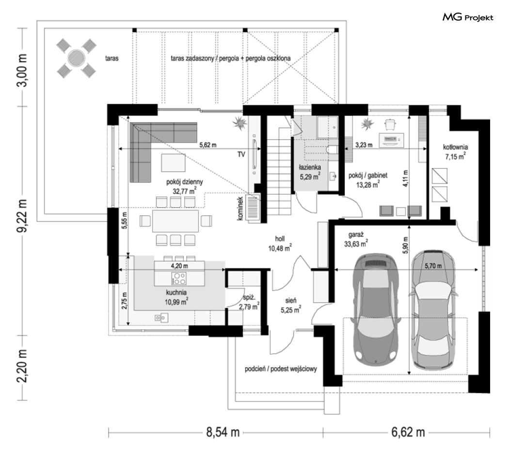
Projekt domu Lambada to projekt z naszej serii taneczno-imprezowych domów (Mambo, Bolero, Makarena, Party, Biba, Tango, Salsa, Rumba). Lambada to propozycja parterowego domu jednorodzinnego z poddaszem użytkowym, o nowoczesnej architekturze w stylistyce domu-stodoły. Budynek wyróżnia zwarta bryła, nowoczesna czysta architektura pozbawiona zbędnych elementów, oraz funkcjonalne wnętrze. Prostokątny rzut domu, z wbudowanym parterowym garażem, wieńczy dwuspadowy symetryczny dach z wysoką ścianą kolankową poddasza. Elewacje domu zdominowane są przez jasne tynkowane ściany i duże przeszklenia okienne. Kontrastujące zestawienie kolorystyczne bieli z czarnymi i szarymi elementami obróbek blacharskich, dachu, ram okiennych i fragmentów ścian, dają czystą i wyrazistą sylwetkę domu, pełną świeżości i przywołującą wrażenie solidności porządku. Elewację frontową podkreślają reprezentacyjne drzwi wejściowe z naświetlami bocznymi schowane w podcieniu, narożne okno kuchenne, oraz okna połaciowe z oknami kolankowymi. Od strony ogrodowej atrakcyjności elewacji dodają duże przeszklenia salonu wraz z wysokim oknem antresoli w szczycie domu, oraz pergola stanowiąca częściowe zadaszenie tarasów. Wnętrze domu zaskakuje poczuciem przestrzeni - trudnym do uzyskania w 150-metrowym domu. Poczucie przestronności części dziennej potęgują duże przeszklenia, oraz pustka nad salonem i schodami, łącząca pokój dzienny z antresolą na poddaszu. Wnętrze jest bardzo nowoczesne. Salon, dzięki dużym przeszkleniom, otwiera wnętrze na otaczający ogród i skąpany jest w świetle słonecznym. Na parterze prócz części dziennej znajdziemy dodatkowy pokój z łazienką, oraz garaż z pomieszczeniem kotłowni. Na poddaszu przewidziano trzy pokoje sypialne z dwiema łazienkami, w tym apartament master z własną łazienką i garderobą. Wnętrze można dowolnie kształtować, ale bez problemu zmieści się tutaj 4-6cioosobowa rodzina. Budynek zaprojektowano jako energooszczędny, z dobrymi izolacjami i nowoczesnymi instalacjami. Dom ma prostą konstrukcję i zwartą bryłę, dzięki czemu będzie łatwy w budowie i niedrogi w późniejszej eksploatacji. Lambada to propozycja dla Inwestorów pragnących zbudować nowoczesny, czysty w formie, ciekawy architektonicznie dom o nieprzesadzonej skali. Dom dla Inwestorów chcących połączyć tradycyjną funkcjonalność z ciekawą formą architektoniczną. Zapraszamy do zapoznania się z całą serią "roztańczonych domów": https://www.mgprojekt.com.pl/makarena, https://www.mgprojekt.com.pl/bolero, https://www.mgprojekt.com.pl/lambada, https://www.mgprojekt.com.pl/party, https://www.mgprojekt.com.pl/party-2, https://www.mgprojekt.com.pl/biba, https://www.mgprojekt.com.pl/tango, https://www.mgprojekt.com.pl/salsa, https://www.mgprojekt.com.pl/rumba.
-
Projekt szamba szczelnego0 zł399 zł
-
Charakterystyka energetyczna0 zł200 zł
-
Pakiet energooszczędny0 zł150 zł
-
Dziennik budowy0 zł60 zł
-
Tablica budowy0 zł120 zł
-
Wersja elektroniczna projektu550 zł
-
Pakiet kosztorys inwestorski550 zł
-
Pakiet ogrzewanie podłogowe470 zł
-
Powietrzna pompa ciepła470 zł
-
Pakiet wentylacja mechaniczna i kominek DGP470 zł
-
Dodatkowy egzemplarz projektu500 zł
-
Pakiet kotłownia na paliwo stałe470 zł
-
Pakiet instalacja fotowoltaiczna470 zł
-
Pakiet klimatyzacja w domu470 zł
-
Pakiet gruntowa pompa ciepła470 zł
-
Pakiet odkurzacz centralny470 zł
-
Pakiet płaszcz wodny470 zł
-
Pakiet kominek DGP399 zł
-
Projekty altan i grillów ogrodowych650 zł
-
Pakiet instalacja solarna470 zł

opieką konsultacyjną w trakcie budowy domu