Mambo







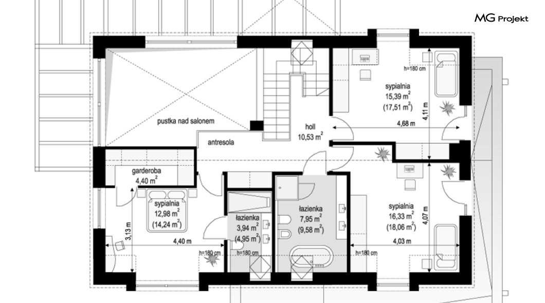
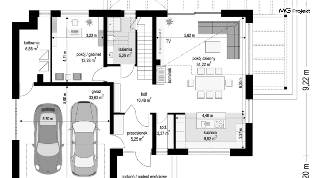
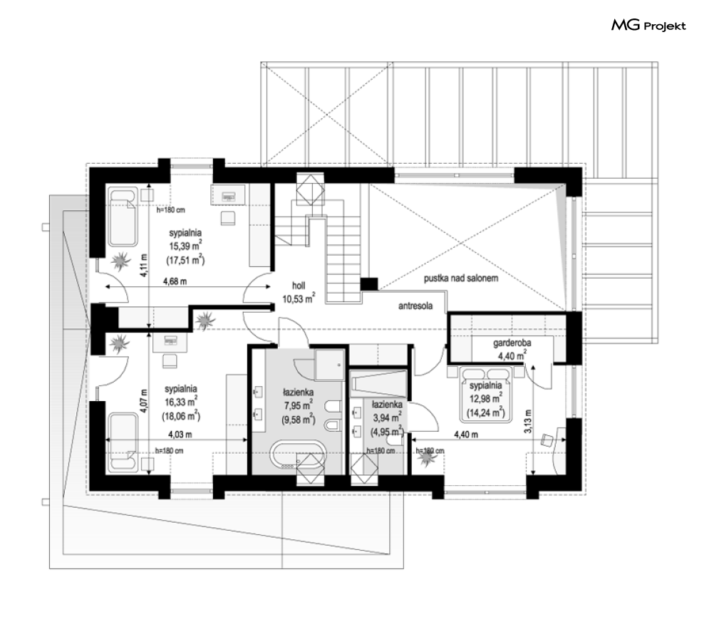
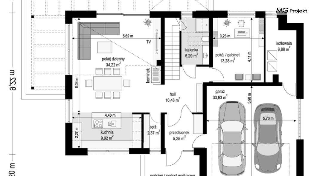
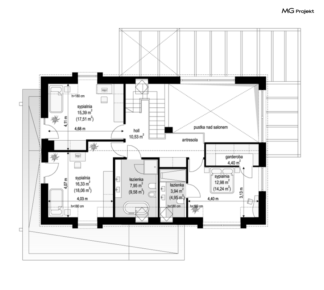
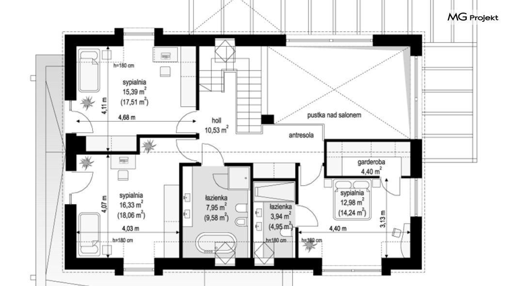
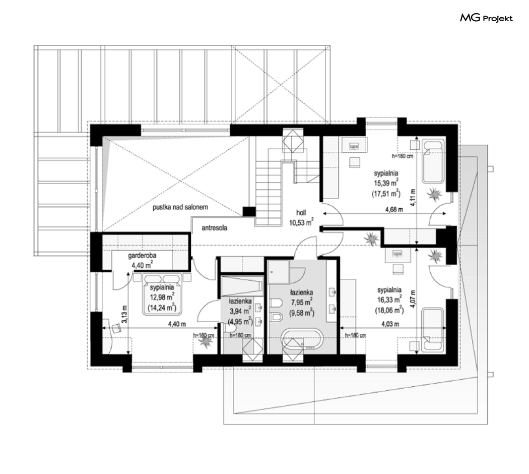
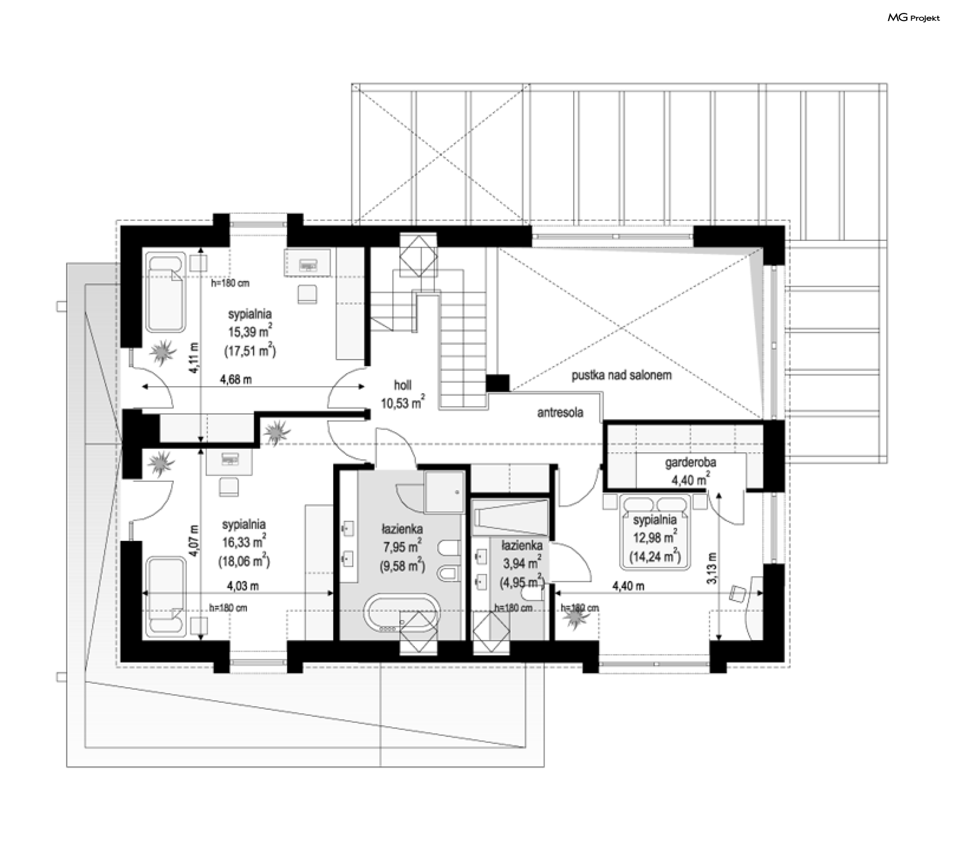
Projekt domu Mambo to kolejna propozycja z naszej serii „imprezowych” domów (Makarena, Bolero, Lambada, Party, Biba, Tango, Salsa, Rumba). Projekt domu Mambo to propozycja praktycznego, funkcjonalnego domu jednorodzinnego, parterowego z poddaszem użytkowym, o nowoczesnej architekturze, w popularnej stylistyce domu-stodoły. Bryła budynku i zastosowane detale architektoniczne tworzą nastrój komfortowej wygodnej podmiejskiej willi. Ciekawie zaprojektowane narożne przeszklenia salonu z pustką i antresolą, przełamują monotonię i oczywistość rozwiązań typowych dla domu parterowego z poddaszem i wprowadzają efekt jak w budynku piętrowym. Przeszklenia salonu na dwóch ścianach mają wysokość 1,5 kondygnacji i równej wysokości nadproża, nawiązując tym samym do dwukondygnacyjnych salonów domów piętrowych. Takie rozwiązanie dodaje domowi elegancji i oryginalności, zarówno jego fasadzie, jak i wnętrzu. Prostokątny rzut budynku przykryto dwuspadowym symetrycznym dachem z wysoką ścianą kolankową poddasza, a sylwetkę urozmaicają : od frontu - wbudowany w bryłę parterowy garaż, kubiczne lukarny poddasza i od tyłu - dobudowana pergola przykrywająca taras. Fasada domu została podzielona kolorystycznie i materiałowo na poziome pasy. Mamy tutaj : biel tynkowanych ścian, fragmenty kontrastowe tynku w odcieniach szarości, fragmenty elewacji drewnianej i dach pokryty antracytową płaską dachówką. Wnętrze budynku zaskakuje poczuciem przestrzeni, niełatwym do uzyskania w 150-metrowym domu. Największym zaskoczeniem jest tu pokój dzienny, którego narożne podwyższone okna sprawiają wrażenie jakbyśmy znaleźli się w wysokim salonie domu piętrowego. Pokój dzienny jest bardzo reprezentacyjny i oryginalny. Gubimy tutaj typowy motyw skośnego dachu we wnętrzu domu z poddaszem. Na parterze prócz salonu zaprojektowano dodatkowy pokój z łazienką, oraz garaż z pomieszczeniem kotłowni. Na poddaszu przewidziano trzy pokoje z dwiema łazienkami, w tym apartament master z własną łazienką i garderobą. Wnętrze można dowolnie kształtować, ale bez problemu zmieści się tutaj 4-6cioosobowa rodzina. Budynek zaprojektowano jako energooszczędny, z dobrymi izolacjami i nowoczesnymi instalacjami. Dom ma prostą konstrukcję i zwartą bryłę, dzięki czemu będzie łatwy w budowie i niedrogi w późniejszej eksploatacji. Mambo to propozycja dla Inwestorów pragnących zbudować nowoczesny, ciekawy i oryginalny architektonicznie dom o sensownej skali. Budynek o wysokiej jakości, ale niekoniecznie wielki. Dom dla Inwestorów chcących połączyć tradycyjną funkcjonalność z ciekawymi designerskimi detalami. Zapraszamy do zapoznania się z całą serią "roztańczonych domów": https://www.mgprojekt.com.pl/makarena, https://www.mgprojekt.com.pl/bolero, https://www.mgprojekt.com.pl/lambada, https://www.mgprojekt.com.pl/party, https://www.mgprojekt.com.pl/party-2, https://www.mgprojekt.com.pl/biba, https://www.mgprojekt.com.pl/tango, https://www.mgprojekt.com.pl/salsa, https://www.mgprojekt.com.pl/rumba.
-
Projekt szamba szczelnego0 zł399 zł
-
Charakterystyka energetyczna0 zł200 zł
-
Pakiet energooszczędny0 zł150 zł
-
Dziennik budowy0 zł60 zł
-
Tablica budowy0 zł120 zł
-
Wersja elektroniczna projektu550 zł
-
Pakiet kosztorys inwestorski550 zł
-
Pakiet ogrzewanie podłogowe470 zł
-
Powietrzna pompa ciepła470 zł
-
Pakiet wentylacja mechaniczna i kominek DGP470 zł
-
Dodatkowy egzemplarz projektu500 zł
-
Pakiet kotłownia na paliwo stałe470 zł
-
Pakiet instalacja fotowoltaiczna470 zł
-
Pakiet klimatyzacja w domu470 zł
-
Pakiet gruntowa pompa ciepła470 zł
-
Pakiet odkurzacz centralny470 zł
-
Pakiet płaszcz wodny470 zł
-
Pakiet kominek DGP399 zł
-
Projekty altan i grillów ogrodowych650 zł
-
Pakiet instalacja solarna470 zł

opieką konsultacyjną w trakcie budowy domu