Weranda 5 (CE)
Dodaj do porównania
Usuń z porównania
Dodaj do ulubionych
Usuń z ulubionych
Pow. użytkowa:
150.71m2
Pow. zabudowy:
133.44m2
Koszt budowy:
687000zł
Liczba pokoi:
3
Liczba łazienek:
2
Rzuty

Lustrzane odbicie
Rzut parteru
100.49 m2
wiatrołap
3.74 m2
korytarz/komunikacja
5.89 m2
salon
40.46 m2
kuchnia
7.7 m2
łazienka
4.66 m2
pomieszczenie gospodarcze
4.25 m2
sypialnia
30.52 m2
pomieszczenie techniczne
3.27 m2
Pobierz rysunki szczegółowe
Zapytaj, co możesz zmienić

Lustrzane odbicie
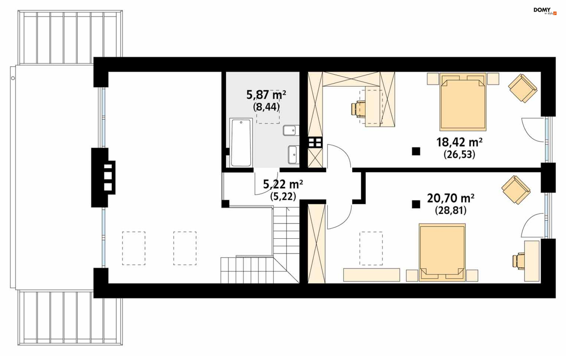
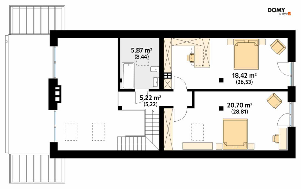
Rzut poddasza
50.21 m2
korytarz/komunikacja
5.22 m2
łazienka
5.87 m2
sypialnia
18.42 m2
sypialnia
20.7 m2
Pobierz rysunki szczegółowe
Zapytaj, co możesz zmienić

Lustrzane odbicie
Pobierz rysunki szczegółowe
Zapytaj, co możesz zmienić
Zamów rysunki szczegółowe
Zapoznaj się ze szczegółowymi rysunkami rzutów kondygnacji w PDF dla tego projektu.
ZAMAWIAM

Elewacje

Frontowa

Ogrodowa

Lewa

Prawa
Specyfikacja techniczna
Główne parametry
Powierzchnia użytkowa
150,71 m2
Łączna powierzchnia tzw. pomieszczeń użytkowych. Przede wszystkim nie zalicza się do niej powierzchni garażu, nieużytkowego strychu, piwnicy, kotłowni.
Liczba pokoi
3
Liczba łazienek
2
Powierzchnia zabudowy
133,44 m2
Powierzchnia zajmowana przez budynek na działce. W praktyce tzw. powierzchnia rzutu budynku wyznaczana po obrysie ścian zewnętrznych.
Pełna specyfikacja
Maksymalna wysokość budynku
7,97 m
Wysokość wyznaczona od poziomu terenu do najwyżej położonej części dachu (np. kalenicy), zwykle bez uwzględnienia kominów.
Kąt nachylenia dachu
40,00°
Nachylenie połaci dachu podane w stopniach.
Minimalne wymiary działki (szerokość)
24,98 m
Szerokość działki wyznaczona przy założeniu, że minimalna odległość budynku od granic działki wynosi przynajmniej 3 m w przypadku ścian bez otworów okiennych lub drzwiowych, albo 4 m w przypadku ścian budynku z takimi otworami.
Minimalne wymiary działki (długość)
17,33 m
Długość działki wyznaczona przy założeniu, że minimalna odległość budynku od granic działki wynosi przynajmniej 3 m w przypadku ścian bez otworów okiennych lub drzwiowych, albo 4 m w przypadku ścian budynku z takimi otworami.
Technologia budowy
Murowany
Typ dachu
Dwuspadowy
Kształt dachu – płaski, jednospadowy (jedna skośna połać), dwuspadowy (dwie połacie), wielospadowy (w praktyce o przynajmniej czterech połaciach).
Energooszczędność
Energooszczędny
Energooszczędny – dom o zapotrzebowaniu na tzw. nieodnawialna energię pierwotną (EP) niższym, niż wymagana przepisami maksymalna wartość.
Typ zabudowy
Jednorodzinny
Koszt: Wykoczńenie
119 415 zł
Kubatura budynku
590,03 m3
Objętość budynku, zwykle wraz z elementami konstrukcyjnymi (ścianami, stropami itd.).
Szerokość budynku
15,98 m
Maksymalna szerokość budynku wraz z grubością izolacji cieplnej oraz okładzin ściennych.
Długość budynku
8,33 m
Maksymalna długość budynku wraz z grubością izolacji cieplnej oraz okładzin ściennych.
EK (energia końcowa)
15,45 kWh/m2 rok
EUCO (energia użytkowa)
19,62 kWh/m2 rok
W stylu
Nowoczesnym
Liczba kondygnacji
Z poddaszem użytkowym
Za kondygnacje uznawane są również poddasza użytkowe oraz piwnice. Kondygnacją nie jest natomiast poddasze nieużytkowe ani antresola.
Koszty
Koszty budowy
687 000 zł
Koszt: Stan pod klucz
Obejmuje koszt wszystkich robót stanu surowego, wykonania instalacji wewnętrznych oraz robót wykończeniowych.
437 000 zł
Koszt: Stan surowy zamknięty
Koszt wzniesienia budynku wraz z pokryciem dachu i stolarką zewnętrzną (okna i drzwi). Bez instalacji, ocieplenia i robót wykończeniowych.
Koszty utrzymania
EP = 46,36 kWh/m2 rok
Oznacza ilość energii nieodnawialnej, jaką budynek może pozyskiwać z nieodnawialnych surowców energetycznych, czyli energii zawartej w paliwach i nośnikach takich jak węgiel, gaz czy ropa naftowa.
Opis
Weranda 5 to nowoczesny projekt domu z użytkowym poddaszem, który charakteryzuje się rozległam tarasem z drewnianą pergola. Budynek został utrzymany w nowoczesnej stylistyce. Elewacja została wykończona drewnianą szalówką, która współgra z kolorem stolarki oraz dachu. Układ funkcjonalny został podzielony na strefę dzienną i nocną. Strefa dzienna na parterze stanowi otwartą przestrzeń z tzw. wysokim sufitem sięgającym wysokości dwóch kondygnacji. Wysokie, panoramiczne przeszklenia idealnie doświetlają wnętrze naturalnym światłem. Na strefę dzienną składa się salon, jadalnia oraz kuchnia z półwyspem. Całość tworzy funkcjonalne wnętrze, łączące poszczególne funkcje w spójną całość. Nad częścią dzienną znajduje się również antresola. Układ funkcjonalny na parterze uzupełnia przestronna sypialnia gospodarzy oraz sąsiadująca z nią łazienka z pralnią. Na poddaszu zaprojektowano dwie dodatkowe sypialnie oraz łazienkę. Strefę wypoczynkową na świeżym powietrzu tworzy taras przykryty drewnianą pergolą. Elementem charakterystycznym jest zewnętrzny kominek, który umili czas na zewnątrz w chłodniejsze wieczory.
CZYTAJ WIĘCEJ

Weranda 5 (CE)
BD37781
Powierzchnia użytkowa
Łączna powierzchnia tzw. pomieszczeń użytkowych. Przede wszystkim nie zalicza się do niej powierzchni garażu, nieużytkowego strychu, piwnicy, kotłowni.
150,71 m2
Liczba pokoi
3
Liczba łazienek
2
Powierzchnia zabudowy
Powierzchnia zajmowana przez budynek na działce. W praktyce tzw. powierzchnia rzutu budynku wyznaczana po obrysie ścian zewnętrznych.
133,44 m2
Inne wersje projektu
PODOBNE PROJEKTY
