Weranda 6 (CE)
                
                    Dodaj do porównania
                
                
                    Usuń z porównania
                
            
            
        
                
                    Dodaj do ulubionych
                
                
                    Usuń z ulubionych
                
            
            
        
        Pow. użytkowa:
    
    
        110.58m2
    
        Pow. zabudowy:
    
    
        121.45m2
    
        Koszt budowy:
    
    
        548000zł
    
        Liczba pokoi:
    
    
        4
    
        Liczba łazienek:
    
    
        2
    
        Garaż:
    
    
        1
    
        Rzuty
    
        
                                                        
                        
                        Lustrzane odbicie
                    
                    
                                    Rzut parteru
                                
                                
                                    91.91 m2
                                
                            
                                            wiatrołap
                                        
                                        
                                            3.75 m2
                                        
                                    
                                            korytarz/komunikacja
                                        
                                        
                                            3.2 m2
                                        
                                    
                                            salon/jadalnia
                                        
                                        
                                            40.5 m2
                                        
                                    
                                            kuchnia
                                        
                                        
                                            7.7 m2
                                        
                                    
                                            łazienka
                                        
                                        
                                            4.66 m2
                                        
                                    
                                            pomieszczenie gospodarcze
                                        
                                        
                                            4.27 m2
                                        
                                    
                                            kotłownia
                                        
                                        
                                            6.18 m2
                                        
                                    
                                            garaż
                                        
                                        
                                            21.65 m2
                                        
                                    
                            
                            Pobierz rysunki szczegółowe
                        
                        
                            
                            Zapytaj, co możesz zmienić
                        
                    
                        
                        Lustrzane odbicie
                    
                    
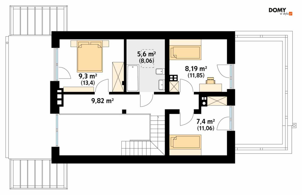
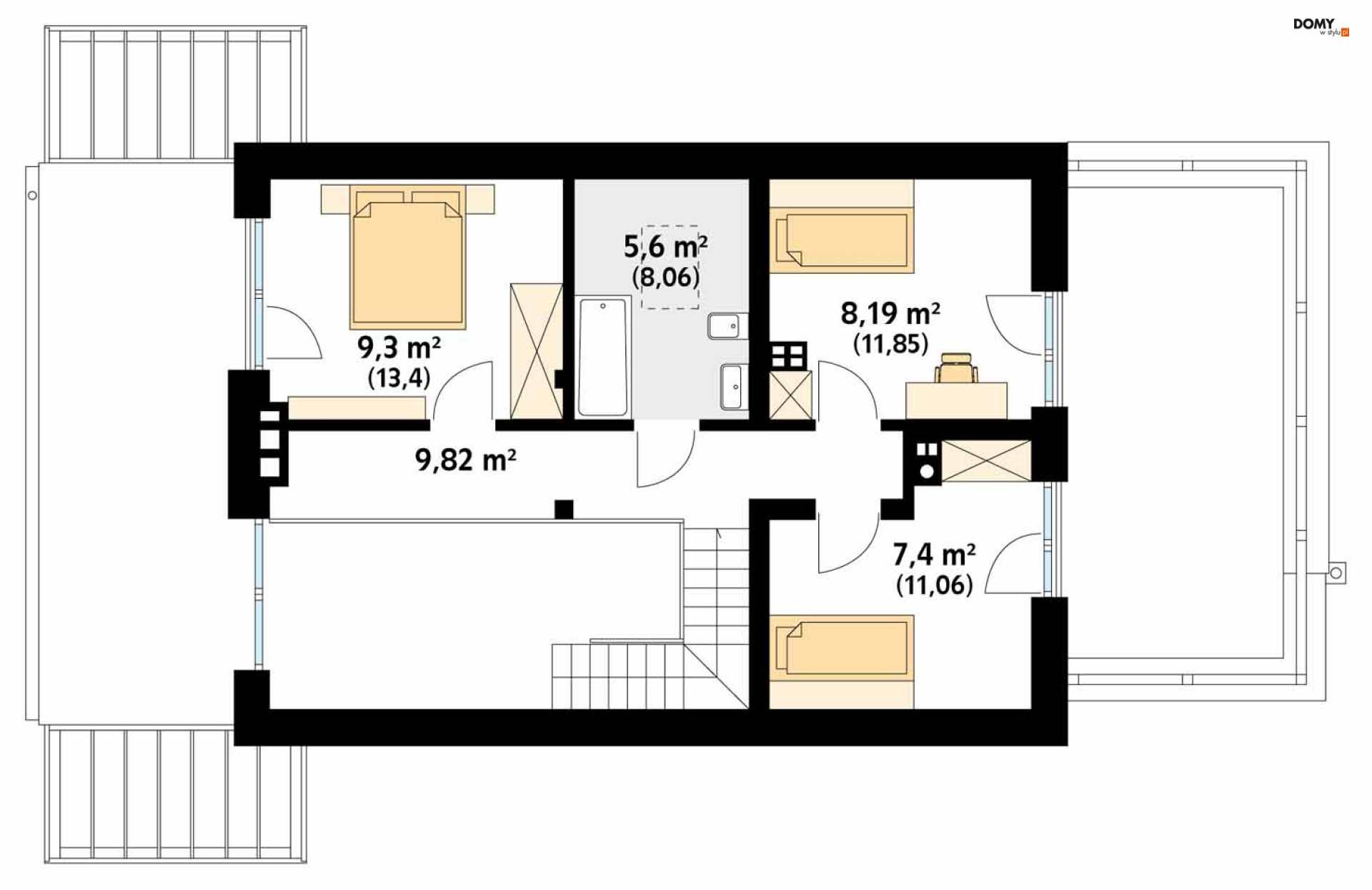
                                    Rzut poddasza
                                
                                
                                    40.31 m2
                                
                            
                                            korytarz/komunikacja
                                        
                                        
                                            9.82 m2
                                        
                                    
                                            sypialnia
                                        
                                        
                                            9.3 m2
                                        
                                    
                                            łazienka
                                        
                                        
                                            5.6 m2
                                        
                                    
                                            sypialnia
                                        
                                        
                                            8.19 m2
                                        
                                    
                                            sypialnia
                                        
                                        
                                            7.4 m2
                                        
                                    
                            
                            Pobierz rysunki szczegółowe
                        
                        
                            
                            Zapytaj, co możesz zmienić
                        
                    
                        
                        Lustrzane odbicie
                    
                    
                            
                            Pobierz rysunki szczegółowe
                        
                        
                            
                            Zapytaj, co możesz zmienić
                        
                    
            Zamów rysunki szczegółowe
        
        
            Zapoznaj się ze szczegółowymi rysunkami rzutów kondygnacji w PDF dla tego projektu.
        
        
            ZAMAWIAM
        
    
    
                    Elewacje
                
            
                                Frontowa
                            
                                                            
                                Ogrodowa
                            
                                                            
                                Lewa
                            
                                                            
                                Prawa
                            
                                                            
        Specyfikacja techniczna
    
    
        Główne parametry
    
    
                            Powierzchnia użytkowa
                        
                        
                                                            
                                                                                                                                                                                        110,58 m2
                                
                                                    
                                                    
                                Łączna powierzchnia tzw. pomieszczeń użytkowych. Przede wszystkim nie zalicza się do niej powierzchni garażu, nieużytkowego strychu, piwnicy, kotłowni.
                            
                                            
                            Liczba pokoi
                        
                        
                                                            
                                                                                                                                                                                        4 
                                
                                                    
                                            
                            Liczba łazienek
                        
                        
                                                            
                                                                                                                                                                                        2 
                                
                                                    
                                            
                            Garaż
                        
                        
                                                            
                                                                                                                                                                                        1 
                                
                                                    
                                            
                            Powierzchnia zabudowy
                        
                        
                                                            
                                                                                                                                                                                        121,45 m2
                                
                                                    
                                                    
                                Powierzchnia zajmowana przez budynek na działce. W praktyce tzw. powierzchnia rzutu budynku wyznaczana po obrysie ścian zewnętrznych.
                            
                                            
        Pełna specyfikacja
    
    
                            Maksymalna wysokość budynku
                        
                        
                                                            
                                                                                                                                                                                        8,12 m
                                
                                                    
                                                    
                                Wysokość wyznaczona od poziomu terenu do najwyżej położonej części dachu (np. kalenicy), zwykle bez uwzględnienia kominów.
                            
                                            
                            Kąt nachylenia dachu
                        
                        
                                                            
                                                                                                                                                                                        40,00°
                                
                                                    
                                                    
                                Nachylenie połaci dachu podane w stopniach.
                            
                                            
                            Minimalne wymiary działki (szerokość)
                        
                        
                                                            
                                                                                                                                                                                        21,21 m
                                
                                                    
                                                    
                                Szerokość działki wyznaczona przy założeniu, że minimalna odległość budynku od granic działki wynosi przynajmniej 3 m w przypadku ścian bez otworów okiennych lub drzwiowych, albo 4 m w przypadku ścian budynku z takimi otworami.
                            
                                            
                            Minimalne wymiary działki (długość)
                        
                        
                                                            
                                                                                                                                                                                        17,33 m
                                
                                                    
                                                    
                                Długość działki wyznaczona przy założeniu, że minimalna odległość budynku od granic działki wynosi przynajmniej 3 m w przypadku ścian bez otworów okiennych lub drzwiowych, albo 4 m w przypadku ścian budynku z takimi otworami.
                            
                                            
                            Technologia budowy
                        
                        
                                                            
                                                                            Murowany
                                                                    
                                                    
                                            
                            Typ dachu
                        
                        
                                                            
                                                                            Dwuspadowy
                                                                    
                                                    
                                                    
                                Kształt dachu – płaski, jednospadowy (jedna skośna połać), dwuspadowy (dwie połacie), wielospadowy (w praktyce o przynajmniej czterech połaciach).
                            
                                            
                            Energooszczędność
                        
                        
                                                            
                                                                            Energooszczędny
                                                                    
                                                    
                                                    
                                Energooszczędny – dom o zapotrzebowaniu na tzw. nieodnawialna energię pierwotną (EP) niższym, niż wymagana przepisami maksymalna wartość.
                            
                                            
                            Typ zabudowy
                        
                        
                                                            
                                                                            Jednorodzinny
                                                                    
                                                    
                                            
                            Koszt: Wykoczńenie
                        
                        
                                                            
                                                                                                                                                                                                                                                                    134 515 zł
                                
                                                    
                                            
                            Powierzchnia garażu
                        
                        
                                                            
                                                                                                                                                                                        21,65 m2
                                
                                                    
                                            
                            Kubatura budynku
                        
                        
                                                            
                                                                                                                                                                                        692,33 m3
                                
                                                    
                                                    
                                Objętość budynku, zwykle wraz z elementami konstrukcyjnymi (ścianami, stropami itd.).
                            
                                            
                            Szerokość budynku
                        
                        
                                                            
                                                                                                                                                                                        15,21 m
                                
                                                    
                                                    
                                Maksymalna szerokość budynku wraz z grubością izolacji cieplnej oraz okładzin ściennych.
                            
                                            
                            Długość budynku
                        
                        
                                                            
                                                                                                                                                                                        8,33 m
                                
                                                    
                                                    
                                Maksymalna długość budynku wraz z grubością izolacji cieplnej oraz okładzin ściennych.
                            
                                            
                            EK (energia końcowa)
                        
                        
                                                            
                                                                                                                                                                                        84,36 kWh/m2 rok
                                
                                                    
                                            
                            EUCO (energia użytkowa)
                        
                        
                                                            
                                                                                                                                                                                        47,83 kWh/m2 rok
                                
                                                    
                                            
                            W stylu
                        
                        
                                                            
                                                                            Nowoczesnym
                                                                    
                                                    
                                            
                            Liczba kondygnacji
                        
                        
                                                            
                                                                            Z poddaszem użytkowym
                                                                    
                                                    
                                                    
                                Za kondygnacje uznawane są również poddasza użytkowe oraz piwnice. Kondygnacją nie jest natomiast poddasze nieużytkowe ani antresola.
                            
                                            
                    Koszty
                
            
                            Koszty budowy
                        
                        
                                        548 000 zł
                                    
                                    
                                        Koszt: Stan pod klucz
                                    
                                                                            
                                            Obejmuje koszt wszystkich robót stanu surowego, wykonania instalacji wewnętrznych oraz robót wykończeniowych.
                                        
                                                                    
                                        321 000 zł
                                    
                                                                            
                                            Koszt: Stan surowy zamknięty
                                        
                                                                                                                
                                            Koszt wzniesienia budynku wraz z pokryciem dachu i stolarką zewnętrzną (okna i drzwi). Bez instalacji, ocieplenia i robót wykończeniowych.
                                        
                                                                    
                            Koszty utrzymania
                        
                        
                            EP = 69,07  kWh/m2 rok
                        
                        
                            Oznacza ilość energii nieodnawialnej, jaką budynek może pozyskiwać z nieodnawialnych surowców energetycznych, czyli energii zawartej w paliwach i nośnikach takich jak węgiel, gaz czy ropa naftowa.
                        
                    
            Opis
        
        
            Projekt domu Weranda 6 to nowoczesny projekt domu z użytkowym poddaszem.  Prosta bryła została zaprojektowana na planie prostokąta oraz przykryta dwuspadowym dachem.  Są to elementy charakterystyczne dla stylu nowoczesnej stodoły.  Projekt wyróżnia się także  elewacją w nowoczesnym stylu, która w większości została wykończona ciemnym drewnem skontrastowanym jasną stolarką oraz kamieniem elewacyjnym w okolicy wejścia głównego.  Układ funkcjonalny został podzielony na część dzienną na parterze oraz nocną na poddaszu.  Wielofunkcyjna część dzienna składa się z salonu z kominkiem, jadalni oraz otwartej kuchni z barkiem śniadaniowym.  Nad częścią salonu znajduje się antresola.  Z salonu znajduje się wyjście na duży taras z zewnętrznym kominkiem, zadaszonym drewnianą pergolą.  Na poddaszu zaprojektowano część nocna domu, na którą składają się trzy sypialnie oraz ogólnodostępna łazienka.  Dwie z sypialni posiadają dostęp na taras zaprojektowany nad garażem.  W projekcie znajduje się również część gospodarcza z jednostanowiskowy garażem oraz kotłownią gazową.
        
                            
                CZYTAJ WIĘCEJ
                
            
            
                            Weranda 6 (CE)
                        
                        
                            BD40377
                        
                    
                            Powierzchnia użytkowa
                                                            
                                    
                                
                                
                        
                                    Łączna powierzchnia tzw. pomieszczeń użytkowych. Przede wszystkim nie zalicza się do niej powierzchni garażu, nieużytkowego strychu, piwnicy, kotłowni.
                                
                                                    
                            110,58 m2
                        
                    
                            Liczba pokoi
                                                    
                        
                            4 
                        
                    
                            Liczba łazienek
                                                    
                        
                            2 
                        
                    
                            Garaż
                                                    
                        
                            1 
                        
                    
                            Powierzchnia zabudowy
                                                            
                                    
                                
                                
                        
                                    Powierzchnia zajmowana przez budynek na działce. W praktyce tzw. powierzchnia rzutu budynku wyznaczana po obrysie ścian zewnętrznych.
                                
                                                    
                            121,45 m2
                        
                    
            Inne wersje projektu
        
        
    
            PODOBNE PROJEKTY