Słoneczny 2 (CE)
                
                    Dodaj do porównania
                
                
                    Usuń z porównania
                
            
            
        
                
                    Dodaj do ulubionych
                
                
                    Usuń z ulubionych
                
            
            
        
        Pow. użytkowa:
    
    
        161.04m2
    
        Pow. zabudowy:
    
    
        131.19m2
    
        Koszt budowy:
    
    
        734000zł
    
        Liczba pokoi:
    
    
        5
    
        Liczba łazienek:
    
    
        3
    
        Rzuty
    
        
                                                         
                        
                        Lustrzane odbicie
                    
                    
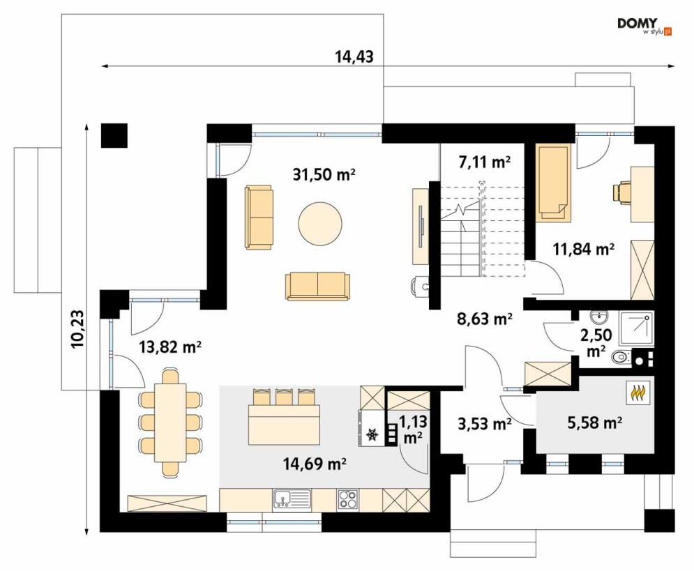
                                    Rzut parteru
                                
                                
                                    100.33 m2
                                
                            
                                            wiatrołap
                                        
                                        
                                            3.53 m2
                                        
                                    
                                            hol
                                        
                                        
                                            8.63 m2
                                        
                                    
                                            kuchnia
                                        
                                        
                                            14.69 m2
                                        
                                    
                                            spiżarnia
                                        
                                        
                                            1.13 m2
                                        
                                    
                                            jadalnia
                                        
                                        
                                            13.82 m2
                                        
                                    
                                            salon
                                        
                                        
                                            31.5 m2
                                        
                                    
                                            schody
                                        
                                        
                                            7.11 m2
                                        
                                    
                                            gabinet
                                        
                                        
                                            11.84 m2
                                        
                                    
                                            łazienka
                                        
                                        
                                            2.5 m2
                                        
                                    
                                            kotłownia
                                        
                                        
                                            5.58 m2
                                        
                                    
                            
                            Pobierz rysunki szczegółowe
                        
                        
                            
                            Zapytaj, co możesz zmienić
                        
                     
                        
                        Lustrzane odbicie
                    
                    
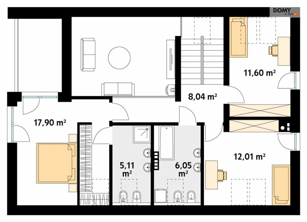
                                    Rzut poddasza
                                
                                
                                    60.71 m2
                                
                            
                                            korytarz/komunikacja
                                        
                                        
                                            8.04 m2
                                        
                                    
                                            sypialnia
                                        
                                        
                                            11.6 m2
                                        
                                    
                                            sypialnia
                                        
                                        
                                            12.01 m2
                                        
                                    
                                            łazienka
                                        
                                        
                                            6.05 m2
                                        
                                    
                                            łazienka
                                        
                                        
                                            5.11 m2
                                        
                                    
                                            sypialnia
                                        
                                        
                                            17.9 m2
                                        
                                    
                            
                            Pobierz rysunki szczegółowe
                        
                        
                            
                            Zapytaj, co możesz zmienić
                        
                     
                        
                        Lustrzane odbicie
                    
                    
                            
                            Pobierz rysunki szczegółowe
                        
                        
                            
                            Zapytaj, co możesz zmienić
                        
                    
            Zamów rysunki szczegółowe
        
        
            Zapoznaj się ze szczegółowymi rysunkami rzutów kondygnacji w PDF dla tego projektu.
        
        
            ZAMAWIAM
        
     
    
        Specyfikacja techniczna
    
    
        Główne parametry
    
    
                            Powierzchnia użytkowa
                        
                        
                                                            
                                                                                                                                                                                        161,04 m2
                                
                                                    
                                                    
                                Łączna powierzchnia tzw. pomieszczeń użytkowych. Przede wszystkim nie zalicza się do niej powierzchni garażu, nieużytkowego strychu, piwnicy, kotłowni.
                            
                                            
                            Liczba pokoi
                        
                        
                                                            
                                                                                                                                                                                        5 
                                
                                                    
                                            
                            Liczba łazienek
                        
                        
                                                            
                                                                                                                                                                                        3 
                                
                                                    
                                            
                            Powierzchnia zabudowy
                        
                        
                                                            
                                                                                                                                                                                        131,19 m2
                                
                                                    
                                                    
                                Powierzchnia zajmowana przez budynek na działce. W praktyce tzw. powierzchnia rzutu budynku wyznaczana po obrysie ścian zewnętrznych.
                            
                                            
        Pełna specyfikacja
    
    
                            Maksymalna wysokość budynku
                        
                        
                                                            
                                                                                                                                                                                        7,73 m
                                
                                                    
                                                    
                                Wysokość wyznaczona od poziomu terenu do najwyżej położonej części dachu (np. kalenicy), zwykle bez uwzględnienia kominów.
                            
                                            
                            Kąt nachylenia dachu
                        
                        
                                                            
                                                                                                                                                                                        30,00°
                                
                                                    
                                                    
                                Nachylenie połaci dachu podane w stopniach.
                            
                                            
                            Minimalne wymiary działki (szerokość)
                        
                        
                                                            
                                                                                                                                                                                        22,43 m
                                
                                                    
                                                    
                                Szerokość działki wyznaczona przy założeniu, że minimalna odległość budynku od granic działki wynosi przynajmniej 3 m w przypadku ścian bez otworów okiennych lub drzwiowych, albo 4 m w przypadku ścian budynku z takimi otworami.
                            
                                            
                            Minimalne wymiary działki (długość)
                        
                        
                                                            
                                                                                                                                                                                        19,23 m
                                
                                                    
                                                    
                                Długość działki wyznaczona przy założeniu, że minimalna odległość budynku od granic działki wynosi przynajmniej 3 m w przypadku ścian bez otworów okiennych lub drzwiowych, albo 4 m w przypadku ścian budynku z takimi otworami.
                            
                                            
                            Technologia budowy
                        
                        
                                                            
                                                                            Murowany
                                                                    
                                                    
                                            
                            Typ dachu
                        
                        
                                                            
                                                                            Dwuspadowy
                                                                    
                                                    
                                                    
                                Kształt dachu – płaski, jednospadowy (jedna skośna połać), dwuspadowy (dwie połacie), wielospadowy (w praktyce o przynajmniej czterech połaciach).
                            
                                            
                            Energooszczędność
                        
                        
                                                            
                                                                            Energooszczędny
                                                                    
                                                    
                                                    
                                Energooszczędny – dom o zapotrzebowaniu na tzw. nieodnawialna energię pierwotną (EP) niższym, niż wymagana przepisami maksymalna wartość.
                            
                                            
                            Przystosowany pod instalacje
                        
                        
                                                            
                                                                            kotła na paliwa stałe
                                                                    
                                                    
                                            
                            Typ zabudowy
                        
                        
                                                            
                                                                            Jednorodzinny
                                                                    
                                                    
                                            
                            Kubatura budynku
                        
                        
                                                            
                                                                                                                                                                                        808,68 m3
                                
                                                    
                                                    
                                Objętość budynku, zwykle wraz z elementami konstrukcyjnymi (ścianami, stropami itd.).
                            
                                            
                            Szerokość budynku
                        
                        
                                                            
                                                                                                                                                                                        14,43 m
                                
                                                    
                                                    
                                Maksymalna szerokość budynku wraz z grubością izolacji cieplnej oraz okładzin ściennych.
                            
                                            
                            Długość budynku
                        
                        
                                                            
                                                                                                                                                                                        10,23 m
                                
                                                    
                                                    
                                Maksymalna długość budynku wraz z grubością izolacji cieplnej oraz okładzin ściennych.
                            
                                            
                            EK (energia końcowa)
                        
                        
                                                            
                                                                                                                                                                                        60,64 kWh/m2 rok
                                
                                                    
                                            
                            EUCO (energia użytkowa)
                        
                        
                                                            
                                                                                                                                                                                        22,31 kWh/m2 rok
                                
                                                    
                                            
                            W stylu
                        
                        
                                                            
                                                                            Nowoczesnym
                                                                    
                                                    
                                            
                            Liczba kondygnacji
                        
                        
                                                            
                                                                            Z poddaszem użytkowym
                                                                    
                                                    
                                                    
                                Za kondygnacje uznawane są również poddasza użytkowe oraz piwnice. Kondygnacją nie jest natomiast poddasze nieużytkowe ani antresola.
                            
                                            
                    Koszty
                
            
                            Koszty budowy
                        
                        
                                        734 000 zł
                                    
                                    
                                        Koszt: Stan pod klucz
                                    
                                                                            
                                            Obejmuje koszt wszystkich robót stanu surowego, wykonania instalacji wewnętrznych oraz robót wykończeniowych.
                                        
                                                                    
                                        467 000 zł
                                    
                                                                            
                                            Koszt: Stan surowy zamknięty
                                        
                                                                                                                
                                            Koszt wzniesienia budynku wraz z pokryciem dachu i stolarką zewnętrzną (okna i drzwi). Bez instalacji, ocieplenia i robót wykończeniowych.
                                        
                                                                    
                            Koszty utrzymania
                        
                        
                            EP = 19,13  kWh/m2 rok
                        
                        
                            Oznacza ilość energii nieodnawialnej, jaką budynek może pozyskiwać z nieodnawialnych surowców energetycznych, czyli energii zawartej w paliwach i nośnikach takich jak węgiel, gaz czy ropa naftowa.
                        
                    
            Opis
        
        
            Słoneczny 2 to projekt domu z użytkowym poddaszem bez garażu.  Układ funkcjonalny domu podzielono pomiędzy dwie kondygnacje.  Na parterze znalazła się część dzienna.  Tworzą ją przestronny salon, jadalnia z wyjściem na taras oraz kuchnia, w której wygospodarowano miejsce na wyspę.  Przy kuchni pojawiła się praktyczna spiżarnia.   Układ funkcjonalny parteru dopełnia dodatkowy pokój, łazienka oraz duża kotłownia.  Na poddaszu zaproponowano trzy wygodne sypialnie oraz rodzinną łazienkę.  Jedna z sypialni zaprojektowana została jako apartament gospodarzy z prywatną łazienką i garderobą. Niewątpliwym atutem projektu jest zadaszony taras, dostępny zarówno z salonu, jak i jadalni oraz otwarta część dzienna z licznymi przeszkleniami i antresolą.
        
                     
                            Słoneczny 2 (CE)
                        
                        
                            BD38027
                        
                    
                            Powierzchnia użytkowa
                                                            
                                    
                                
                                
                        
                                    Łączna powierzchnia tzw. pomieszczeń użytkowych. Przede wszystkim nie zalicza się do niej powierzchni garażu, nieużytkowego strychu, piwnicy, kotłowni.
                                
                                                    
                            161,04 m2
                        
                    
                            Liczba pokoi
                                                    
                        
                            5 
                        
                    
                            Liczba łazienek
                                                    
                        
                            3 
                        
                    
                            Powierzchnia zabudowy
                                                            
                                    
                                
                                
                        
                                    Powierzchnia zajmowana przez budynek na działce. W praktyce tzw. powierzchnia rzutu budynku wyznaczana po obrysie ścian zewnętrznych.
                                
                                                    
                            131,19 m2
                        
                     
 
 
 
 
 
 
 
 
 
 
 
 
 
 
 
 
 
 
 
 
 
 
 
 
 
 
 
 
             
 
 
 
 
 
                                         
 
                                         
 
                                         
                         
                         
                     
                         
                        