22 257 84 76 pon-pt: 9-17
Menu

Daniel IV G2

Dodaj do porównania Usuń z porównania
Dodaj do ulubionych Usuń z ulubionych
Code icon
Lustrzane odbicie
Pow. użytkowa:
136.46m2
Koszt budowy:
676000zł
Liczba pokoi:
4
Liczba łazienek:
1
Garaż:
2
Rzuty Elewacja Specyfikacja techniczna Koszty Opis
Share icon
Rzuty
Daniel IV G2
Lustrzane odbicie
Rzut parteru
167.32 m2
Wiatrołap
3.82 m2
Hol
5.68 m2
Kuchnia
10.42 m2
Spiżarnia
1.28 m2
Jadalnia + schody
11.62 m2
Pokój dzienny + schody
26.43 m2
Garderoba
1.67 m2
Łazienka
3.51 m2
Korytarz
8.71 m2
Sypialnia
14.18 m2
Garderoba
4.71 m2
Sypialnia
11.57 m2
Sypialnia
11.57 m2
Łazienka
7.21 m2
Kotłownia
6.31 m2
Garaż
38.63 m2
Pobierz rysunki szczegółowe
Zapytaj, co możesz zmienić
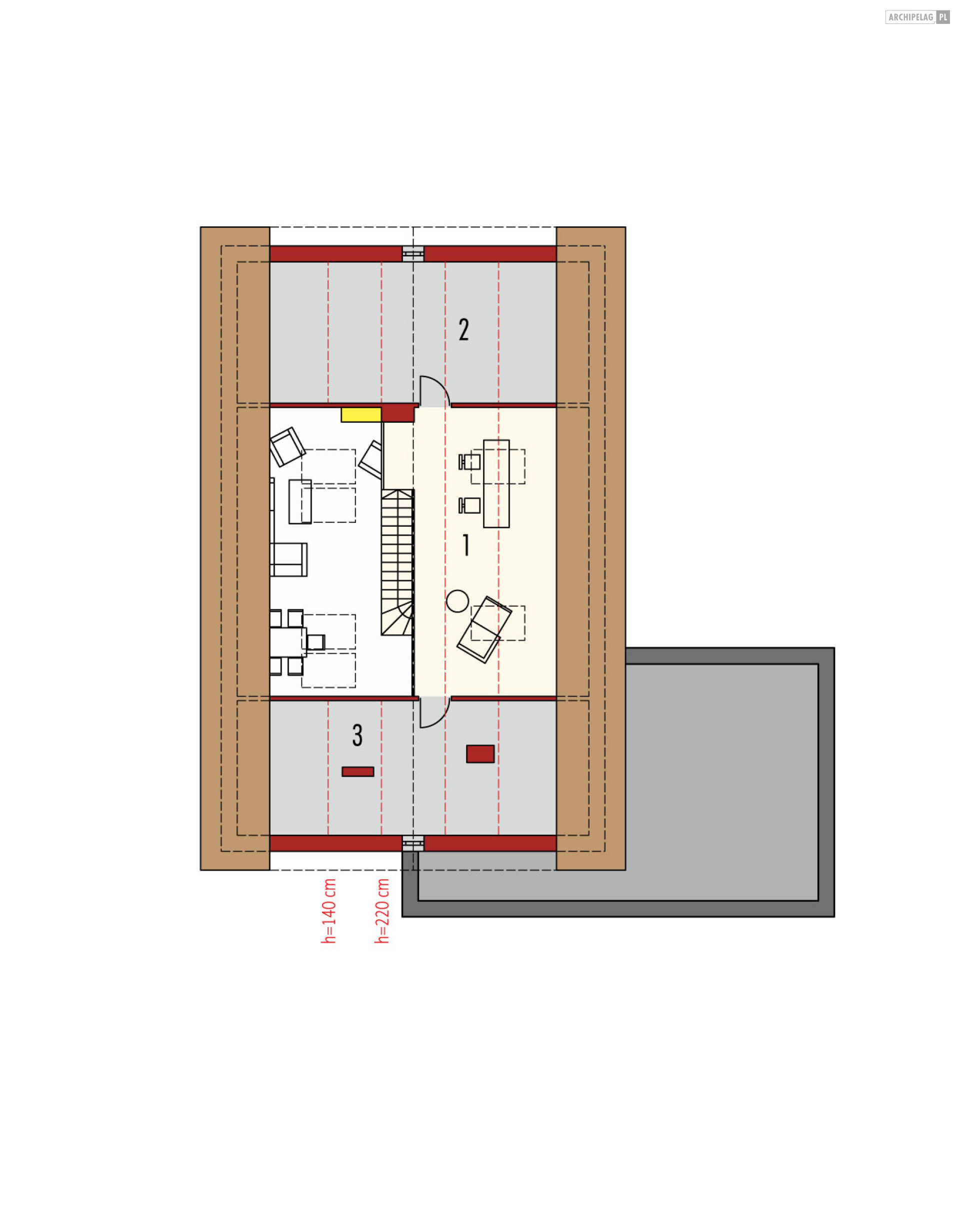
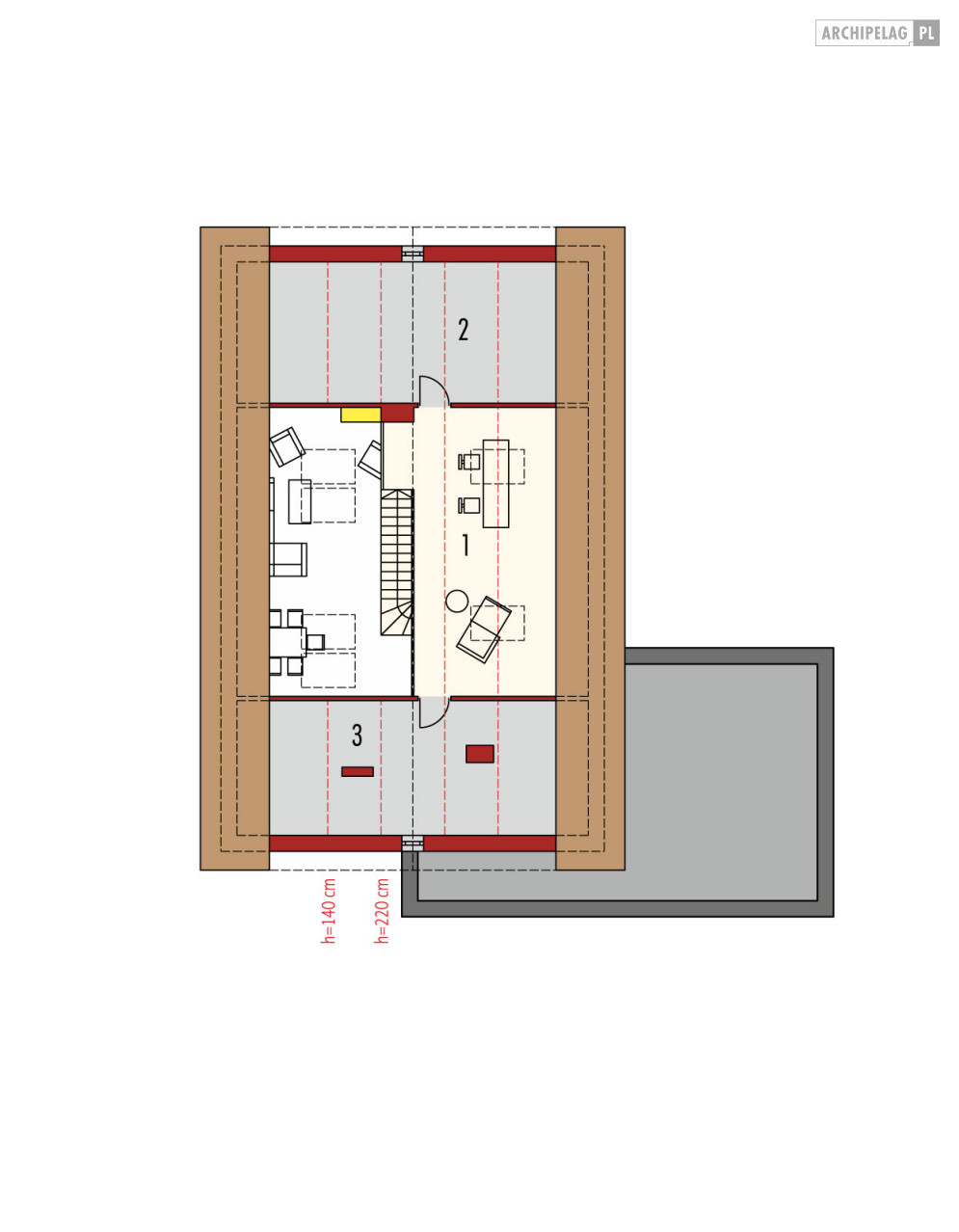
Daniel IV G2
Lustrzane odbicie
Rzut poddasza
38.16 m2
Antresola
14.08 m2
Pom. dodatkowe (np. strych)
12.51 m2
Pom. dodatkowe (np. strych)
11.57 m2
Pobierz rysunki szczegółowe
Zapytaj, co możesz zmienić
Daniel IV G2
Lustrzane odbicie
Pobierz rysunki szczegółowe
Zapytaj, co możesz zmienić
Zamów rysunki szczegółowe
Zapoznaj się ze szczegółowymi rysunkami rzutów kondygnacji w PDF dla tego projektu.
ZAMAWIAM
Order drawings image
Elewacje
Daniel IV G2
Frontowa
Daniel IV G2
Ogrodowa
Daniel IV G2
Lewa
Daniel IV G2
Prawa
Specyfikacja techniczna
Główne parametry
Powierzchnia użytkowa
136,46 m2
Łączna powierzchnia tzw. pomieszczeń użytkowych. Przede wszystkim nie zalicza się do niej powierzchni garażu, nieużytkowego strychu, piwnicy, kotłowni.
Liczba pokoi
4
Liczba łazienek
1
Garaż
2
Pełna specyfikacja
Maksymalna wysokość budynku
7,83 m
Wysokość wyznaczona od poziomu terenu do najwyżej położonej części dachu (np. kalenicy), zwykle bez uwzględnienia kominów.
Kąt nachylenia dachu
35,00°
Nachylenie połaci dachu podane w stopniach.
Minimalne wymiary działki (szerokość)
23,84 m
Szerokość działki wyznaczona przy założeniu, że minimalna odległość budynku od granic działki wynosi przynajmniej 3 m w przypadku ścian bez otworów okiennych lub drzwiowych, albo 4 m w przypadku ścian budynku z takimi otworami.
Minimalne wymiary działki (długość)
26,44 m
Długość działki wyznaczona przy założeniu, że minimalna odległość budynku od granic działki wynosi przynajmniej 3 m w przypadku ścian bez otworów okiennych lub drzwiowych, albo 4 m w przypadku ścian budynku z takimi otworami.
Technologia budowy
Murowany
Typ dachu
Dwuspadowy
Kształt dachu – płaski, jednospadowy (jedna skośna połać), dwuspadowy (dwie połacie), wielospadowy (w praktyce o przynajmniej czterech połaciach).
Energooszczędność
Standardowy
Energooszczędny – dom o zapotrzebowaniu na tzw. nieodnawialna energię pierwotną (EP) niższym, niż wymagana przepisami maksymalna wartość.
Koszt: Instalacje
51 588
Łączny koszt wykonania wszystkich niezbędnych instalacji wewnętrznych – grzewczej, wentylacyjnej, wodno-kanalizacyjnej, elektrycznej itd.
Powierzchnia netto budynku
288,61 m2
Łączna powierzchnia wszystkich kondygnacjach obliczana z pominięciem elementów konstrukcyjnych (ściany nośne, słupy itp.) ale wraz z powierzchnią zajmowaną przez ścianki działowe lub inne elementy, które można potencjalnie zdemontować.
Powierzchnia całkowita budynku
211,29 m2
Łączna powierzchnia wszystkich kondygnacjach obliczana po obrysie ścian zewnętrznych, wraz z powierzchnią zajmowaną przez ściany wewnętrzne.
Kubatura budynku
792,46 m3
Objętość budynku, zwykle wraz z elementami konstrukcyjnymi (ścianami, stropami itd.).
Szerokość budynku
16,84 m
Maksymalna szerokość budynku wraz z grubością izolacji cieplnej oraz okładzin ściennych.
Długość budynku
18,44 m
Maksymalna długość budynku wraz z grubością izolacji cieplnej oraz okładzin ściennych.
Liczba kondygnacji
Z poddaszem do adaptacji
Za kondygnacje uznawane są również poddasza użytkowe oraz piwnice. Kondygnacją nie jest natomiast poddasze nieużytkowe ani antresola.
Koszty
Koszty budowy
676 000 zł
Koszt: Stan pod klucz
Obejmuje koszt wszystkich robót stanu surowego, wykonania instalacji wewnętrznych oraz robót wykończeniowych.
396 000 zł
Koszt: Stan surowy zamknięty
Koszt wzniesienia budynku wraz z pokryciem dachu i stolarką zewnętrzną (okna i drzwi). Bez instalacji, ocieplenia i robót wykończeniowych.
Koszty utrzymania
EP = 63,85 kWh/m2 rok
Oznacza ilość energii nieodnawialnej, jaką budynek może pozyskiwać z nieodnawialnych surowców energetycznych, czyli energii zawartej w paliwach i nośnikach takich jak węgiel, gaz czy ropa naftowa.
Opis

Więźba dachowa w systemie prefabrykacji drewnianej w systemie płytki kolczastej MITEK.

Charakterystyka: Dom parterowy z poddaszem do późniejszej adaptacji, niepodpiwniczony, z garażem dwustanowiskowym
Przeznaczenie: Dom dla 3-4-osobowej rodziny

Technologia i konstrukcja:
Ściany zewnętrzne:
murowane, dwuwarstwowe, pustaki ceramiczne 24 cm, ocieplenie styropian Termo Organika 20 cm
Ściany wewnętrzne: nośne i działowe murowane, pustaki ceramiczne 24 cm i 12 cm
Strop i stropodach nad garażem: strop gęstożebrowy Teriva i pas dolny wiązara stanowi konstrukcję, nad garażem stropodach pełny
Dach: więźba dachowa w systemie prefabrykacji drewnianej, ocieplenie wełna mineralna ISOVER 30 cm, dachówka ceramiczna płaska typu Bergamo firmy Röben

Rozwiązania instalacyjne:
Ogrzewanie:
kocioł gazowy kondensacyjny, rozprowadzenie ciepła: grzejniki
Wentylacja: grawitacyjna
OZE: kolektory słoneczne

Wykończenie:
Elewacje:
tynk cienkowarstwowy mineralny w kolorze TO-PA001 z palety firmy Termo Organika, okładzina drewniana, płytki ceramiczne elewacyjne firmy Röben
Stolarka: drewniana, PVC lub aluminiowa, rolety zewnętrzne w systemie CleverBox firmy BeClever, okna połaciowe firmy Fakro, drzwi wejściowe i brama garażowa firmy Hörmann
Otoczenie: płyty tarasowe firmy Libet, system tarasowy ProDeck - deska kompozytowa Terra w kolorze orzech

Wersje - zapytaj o dostępność:
- Daniel – dom parterowy, podobny układ funkcjonalny, tradycyjna więźba dachowa
- Daniel G1 (30 stopni) - dach o kącie nachylenia 30°, tradycyjna więźba dachowa, garaż jednostanowiskowy
- Daniel II – dom parterowy, podobny układ funkcjonalny, tradycyjna więźba dachowa
- Daniel III - dom parterowy, wysoki salon z dodatkowym doświetleniem oknami dachowymi, tradycyjna więźba dachowa
- Daniel IV - bez garażu lub z garażem jednostanowiskowym
- Daniel V ENERGO PLUS - dom z poddaszem użytkowym, prefabrykowane wiązary dachowe, dach o kącie nachylenia 42°, instalacje energooszczędne: pompa ciepła, ogrzewanie podłogowe, wentylacja mechaniczna, system solarny
- każda wersja z inną propozycją wykończenia elewacji
- różne wersje garaży do każdego domu: bez garażu, z garażem jedno- i dwustanowiskowym
- odbicie lustrzane do każdej wersji

Istnieje techniczna możliwość:
- podpiwniczenia budynku
- wykonania budynku w technologii szkieletowej

CZYTAJ WIĘCEJ
Daniel IV G2
BD42637
Powierzchnia użytkowa
Łączna powierzchnia tzw. pomieszczeń użytkowych. Przede wszystkim nie zalicza się do niej powierzchni garażu, nieużytkowego strychu, piwnicy, kotłowni.
136,46 m2
Liczba pokoi
4
Liczba łazienek
1
Garaż
2
Projekt domu Daniel IV G2
Pobierz rysunki szczegółowe tego domu i sprawdź dokładne wymiary pomieszczeń! Wypełnij wszystkie pola, aby dostać rysunki
Administratorem Twoich danych jest AVT-Korporacja sp. z o.o. z siedzibą ul. Leszczynowa 11, 03-197 Warszawa. Chodzi o dane osobowe, które zbieramy, aby móc wysłać Ci nasze produkty (czasopisma w formie drukowanej lub elektronicznej i inne towary) oraz faktury za ich zakup. ... Chcemy przetwarzać Twoje dane osobowe w celach opisanych w naszej polityce prywatności, a w szczególności: w celu realizacji usług świadczonych w naszym sklepie internetowym oraz w innych prawnie usprawiedliwionych celach, w tym marketingu bezpośredniego naszych produktów i usług (tzw. uzasadniony interes administratora). Bez Twojej zgody nie przekażemy i nie będziemy dokonywać obrotu (nie użyczymy, nie sprzedamy) Twoich danych osobowych innym osobom lub instytucjom. Twoje dane osobowe możemy przekazać jedynie podmiotom uprawnionym do ich uzyskania na podstawie obowiązującego prawa (np. sądy lub organy ścigania) – ale tylko na ich żądanie w oparciu o stosowną podstawę prawną. Będziemy przetwarzać Twoje dane osobowe tak długo, jak będzie to niezbędne do wykonania umowy, a po tym czasie – przez okres odpowiadający okresowi przedawnienia roszczeń, jakie może podnosić administrator danych i jakie mogą być podnoszone wobec administratora danych. Masz prawo do żądania od administratora dostępu do Twoich danych, ich sprostowania, usunięcia, ograniczenia ich przetwarzania, wniesienia sprzeciwu wobec przetwarzania Twoich danych lub ich przenoszenia. W każdej chwili możesz odwołać zgodę na przetwarzanie Twoich danych osobowych oraz możesz zażądać, by Twoje wszystkie dane zostały przez nas usunięte. Podstawy prawne przetwarzania Twoich danych osobowych: art. 5, 6, art. 12, art. 13 Ogólnego rozporządzenia o ochronie danych osobowych (RODO), art. 10 Ustawy o świadczeniu usług drogą elektroniczną, Rozporządzenie Ministra Finansów w sprawie przesyłania faktur w formie elektronicznej, zasad ich przechowywania oraz trybu udostępniania organowi podatkowemu lub organowi kontroli skarbowej z dnia 20 grudnia 2012 r. (Dz.U. z 2012 r. poz. 1528) oraz zasadami wystawiania, przesyłania i przechowywania faktury elektronicznej. Czytaj dalej Zwiń
Close icon
Projekt domu Daniel IV G2
Pobierz rysunki szczegółowe tego domu i sprawdź dokładne wymiary pomieszczeń! Wypełnij wszystkie pola, aby dostać rysunki
Administrator danych osobowych: AVT-Korporacja sp. z o.o. z siedzibą: ul. Leszczynowa 11, 03-197 Warszawa. Cel przetwarzania danych: realizacja wysyłki newslettera ...
Przez 26 lata
z nami zbudowano 500 000 domów
Nawet, jeśli nie kupisz u nas projektu, skorzystaj z naszej wiedzy.
Przeczytaj porady zebrane w naszych publikacjach. Zamów bezpłatnie:
Prenumeratę (3 numery) magazynu Budujemy Dom
Zamów bezpłatnie
3 tomy Praktyczna Szkoła Budowania
Zamów bezpłatnie
Zapisz się do Klubu Budujących Dom by kontynuować dowolnie długą bezpłatną prenumeratę magazynu Budujemy Dom
Ostatnio oglądane
Projekt domu Daniel IV G2
Administratorem Twoich danych jest AVT-Korporacja sp. z o.o. z siedzibą ul. Leszczynowa 11, 03-197 Warszawa. Chodzi o dane osobowe, które zbieramy, aby móc wysłać Ci nasze produkty (czasopisma w formie drukowanej lub elektronicznej i inne towary) oraz faktury za ich zakup. ... Chcemy przetwarzać Twoje dane osobowe w celach opisanych w naszej polityce prywatności, a w szczególności: w celu realizacji usług świadczonych w naszym sklepie internetowym oraz w innych prawnie usprawiedliwionych celach, w tym marketingu bezpośredniego naszych produktów i usług (tzw. uzasadniony interes administratora). Bez Twojej zgody nie przekażemy i nie będziemy dokonywać obrotu (nie użyczymy, nie sprzedamy) Twoich danych osobowych innym osobom lub instytucjom. Twoje dane osobowe możemy przekazać jedynie podmiotom uprawnionym do ich uzyskania na podstawie obowiązującego prawa (np. sądy lub organy ścigania) – ale tylko na ich żądanie w oparciu o stosowną podstawę prawną. Będziemy przetwarzać Twoje dane osobowe tak długo, jak będzie to niezbędne do wykonania umowy, a po tym czasie – przez okres odpowiadający okresowi przedawnienia roszczeń, jakie może podnosić administrator danych i jakie mogą być podnoszone wobec administratora danych. Masz prawo do żądania od administratora dostępu do Twoich danych, ich sprostowania, usunięcia, ograniczenia ich przetwarzania, wniesienia sprzeciwu wobec przetwarzania Twoich danych lub ich przenoszenia. W każdej chwili możesz odwołać zgodę na przetwarzanie Twoich danych osobowych oraz możesz zażądać, by Twoje wszystkie dane zostały przez nas usunięte. Podstawy prawne przetwarzania Twoich danych osobowych: art. 5, 6, art. 12, art. 13 Ogólnego rozporządzenia o ochronie danych osobowych (RODO), art. 10 Ustawy o świadczeniu usług drogą elektroniczną, Rozporządzenie Ministra Finansów w sprawie przesyłania faktur w formie elektronicznej, zasad ich przechowywania oraz trybu udostępniania organowi podatkowemu lub organowi kontroli skarbowej z dnia 20 grudnia 2012 r. (Dz.U. z 2012 r. poz. 1528) oraz zasadami wystawiania, przesyłania i przechowywania faktury elektronicznej. Czytaj dalej Zwiń