Logan G1








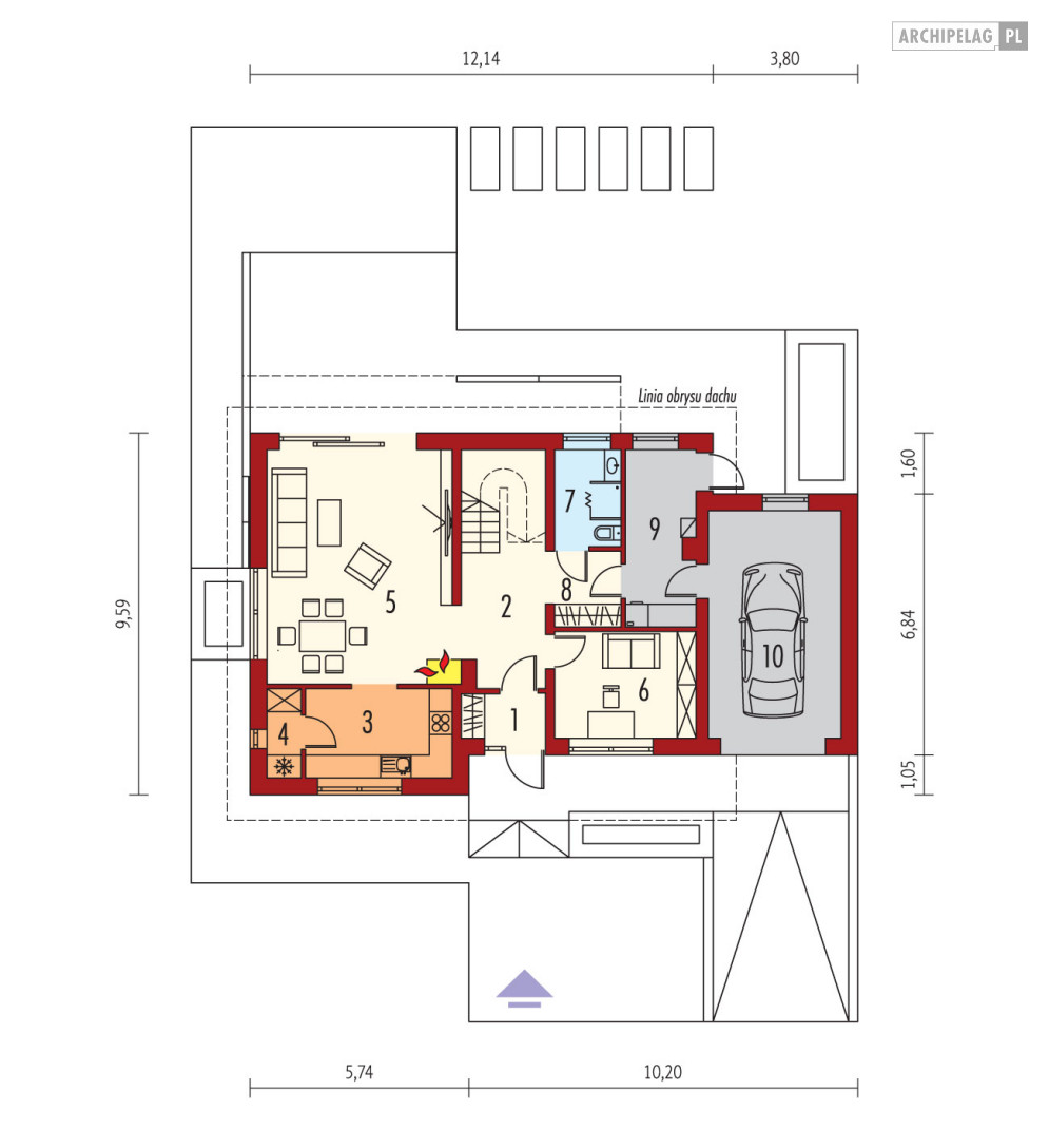
Charakterystyka: Dom parterowy z
poddaszem użytkowym, niepodpiwniczony, z garażem jednostanowiskowym
Przeznaczenie: Dom dla 3-5-osobowej rodziny
Technologia i
konstrukcja:
Ściany zewnętrzne: murowane,
dwuwarstwowe, pustaki ceramiczne 24 cm, ocieplenie wełna
mineralna 20 cm
Strop: strop międzypiętrowy gęstożebrowy Teriva
Dach: konstrukcja drewniana, ocieplenie wełna mineralna 30 cm, dachówka ceramiczna
płaska Bergamo firmy Röben
Inne: schody wewnętrzne drewniane
Rozwiązania
instalacyjne:
Ogrzewanie: kocioł
gazowy kondensacyjny, rozprowadzenie ciepła: grzejniki
Wentylacja: grawitacyjna
OZE: kolektory słoneczne
Wykończenie:
Elewacje: tynk
cienkowarstwowy mineralny w kolorze TO-PA001 i TO-GY014 z palety firmy Termo
Organika, okładzina z płyty HPL z naturalną okleiną drewnianą firmy Prodema
Stolarka: drewniana, PVC lub aluminiowa, drzwi wejściowe i brama garażowa firmy Hörmann
Otoczenie: system tarasowy ProDeck - deska kompozytowa Terra w kolorze złoty dąb
Okna połaciowe: rozwiązania technologiczne i wyłaz dachowy firmy Velux. Pobierz ekspercki poradnik VELUX i dowiedz się jak wybrać okna dachowe
Wersje -zapytaj o dostępność:
- Logan – bez garażu lub z
garażem dwustanowiskowym
- Logan II - z filarem od
frontu, inne wykończenie elewacji, różne wersje garaży
- odbicie lustrzane do każdej wersji
Istnieje techniczna możliwość:
-
podpiwniczenia budynku
- wykonania budynku w technologii szkieletowej
