Kornel V ENERGO







Charakterystyka: Dom
parterowy, niepodpiwniczony
Przeznaczenie: Dom
dla 2-4-osobowej rodziny
Technologia
i konstrukcja:
Fundamenty: ławy,
bloczki keramzytowe 24 cm, ocieplenie styropian 15 cm
Ściany zewnętrzne: murowane, dwuwarstwowe, keramzyt 24 cm, ocieplenie 20 cm
Strop: gęstożebrowy, ocieplenie wełna mineralna 30 cm
Dach: konstrukcja drewniana, dachówka płaska lub inna o
podobnych parametrach
Rozwiązania
instalacyjne:
Ogrzewanie:
kocioł
gazowy kondensacyjny, rozprowadzenie ciepła: grzejniki
Wentylacja:
grawitacyjna
OZE: kolektory słoneczne
Wykończenie:
Elewacje:
tynk
cienkowarstwowy mineralny, okładzina z płyty HPL
z naturalną okleiną drewnianą firmy Prodema
Stolarka:
drewniana,
PVC lub aluminiowa, drzwi wejściowe firmy Hörmann, rolety zewnętrzne w systemie CleverBox firmy BeClever
Otoczenie: płyty tarasowe firmy Libet, system tarasowy ProDeck - deska kompozytowa Terra w kolorze wiśnia/złoty dąb
Wersje - zapytaj o dostępność:
- Kornel V – z garażem jedno lub dwustanowiskowym
- Kornel – inne wykończenie elewacji, różne
wersje garaży
- Kornel II – inne wykończenie elewacji, różne
wersje garaży, wersja z wiatą
- Kornel III – inne wykończenie elewacji, strefa
wejściowa zaakcentowana zadaszeniem, różne wersje garaży
- Kornel IV – wersja z systemami suchej zabudowy
ścian działowych i sufitów podwieszanych Rigips, więźba prefabrykowana, inne
wykończenie elewacji, różne wersje garaży
- Odbicie lustrzane do każdej wersji
Istnieje techniczna możliwość:
-
podpiwniczenia budynku
- zmiany kąta nachylenia dachu do 30º i adaptacji poddasza na strych
-
wykonania budynku w technologii szkieletowej
Atuty projektu okiem architekta:
- Nowoczesna estetyka: połączenie białego tynku, drewna na
elewacji i płaskiej dachówki
- Zwarta bryła budynku sprzyjająca energooszczędności o
znakomitych parametrach cieplnych
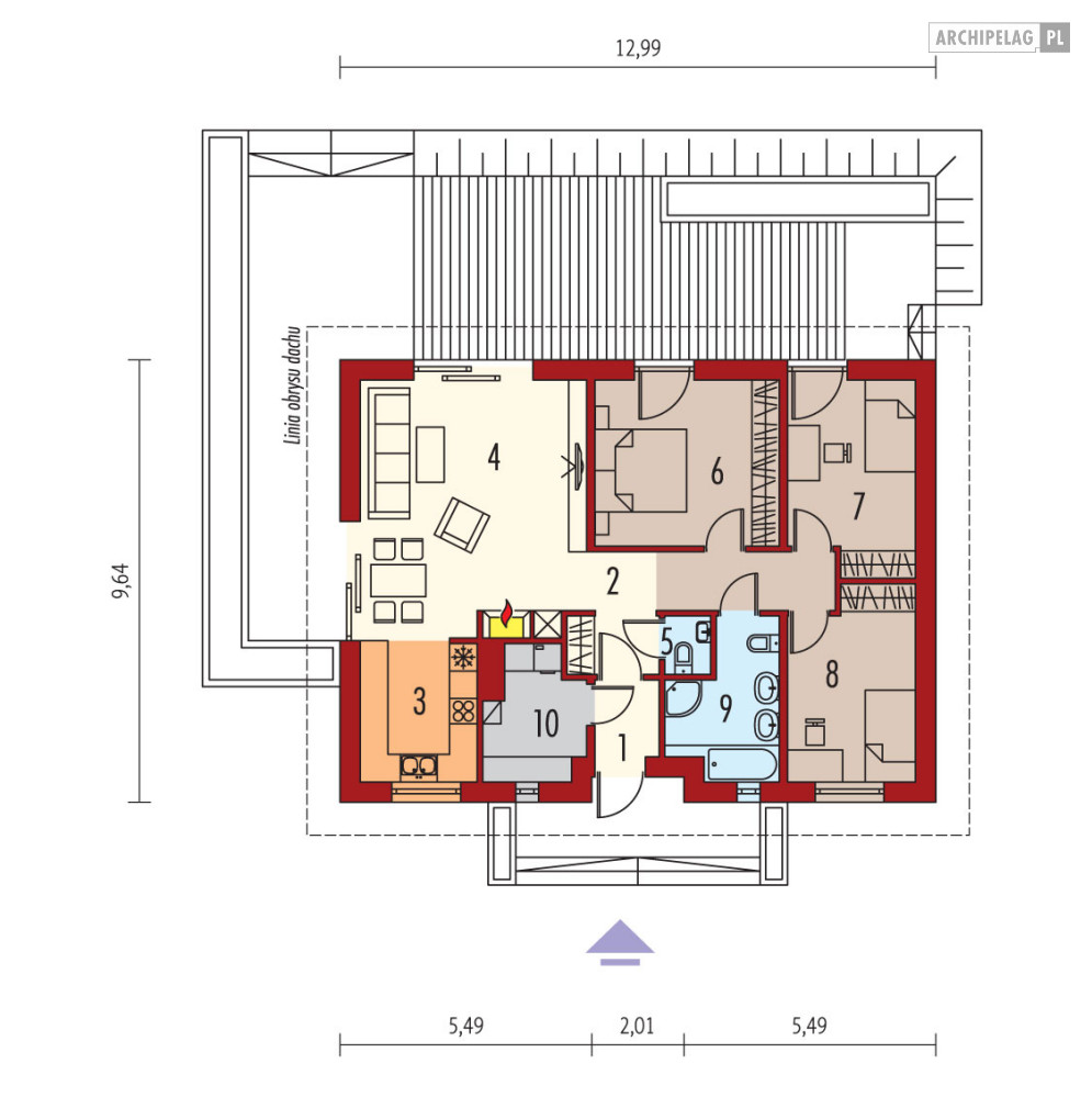
- Funkcjonalne i ergonomiczne wnętrze z podziałem na strefę
dzienną i nocną
- Bezpośrednie wyjście z sypialni na taras ogrodowy
- Prosta forma i konstrukcja - ekonomiczna budowa
-
Zblokowane piony instalacyjne to oszczędność na etapie budowy i eksploatacji
instalacji
-
Zmiany w projekcie0 zł
-
Teczka na dokumentację0 zł
-
1800 na start1 800 zł
-
Kosztorysy do projektów1 200 zł
-
Wentylacja mechaniczna1 000 zł
-
Pompa ciepła700 zł
-
Panele fotowoltaiczne500 zł
-
Ogrzewanie podłogowe700 zł
-
Centralny odkurzacz200 zł
-
Inteligentny dom400 zł
-
Oczyszczalnia ścieków300 zł
-
Szambo przydomowe200 zł
-
Ogrodzenie domu350 zł
-
Zagospodarowanie wody deszczowej300 zł
-
Dziennik budowy9,90 zł

opieką konsultacyjną w trakcie budowy domu